Projecten
Producten
Bedrijven
Vacatures
Agenda
Awards
Podcasts
more_horiz
Videos
Magazine
Favorieten
Profiel
Uitloggen
Abonneer je nu op onze nieuwsbrieven!
Abonneren
Nee, bedankt
Ja, denk met me mee rond de
materialisering van mijn project
Copyright: Lucas van der Wee
Copyright: Lucas van der Wee
Copyright: Lucas van der Wee
Copyright: Lucas van der Wee
Copyright: Lucas van der Wee
Copyright: Lucas van der Wee
Copyright: Lucas van der Wee
Copyright: Lucas van der Wee
Copyright: Lucas van der Wee
Copyright: Lucas van der Wee
Copyright: Lucas van der Wee
Copyright: Lucas van der Wee
Copyright: Lucas van der Wee
Copyright: Lucas van der Wee
Copyright: Lucas van der Wee
Copyright: Lucas van der Wee
Copyright: Lucas van der Wee
Copyright: Lucas van der Wee
Copyright: IRIS architecten
Copyright: IRIS architecten
Copyright: IRIS architecten
Copyright: IRIS architecten
Spoorwachterswoning in Utrecht uitgebreid met houten aanbouw
25 juni 2020, 13:54
Naar ontwerp van
IRIS architecten
is een monumentale spoorwachterswoning aan de vroegere Oosterspoorbaan in Utrecht uitgebreid met een aanbouw. Om het monument in zijn waarde te laten, heeft het nieuwe volume dezelfde vorm gekregen en is het in de lengte korter. Doordat de aanbouw is teruggeplaatst, blijft de wachterswoning bovendien als hoofdvolume zichtbaar.
De wachterswoning werd in 1890 gebouwd als huisvesting voor de spoorwachter en bood toezicht op de spoorwegovergang om de seinen te bedienen. Het spoor is inmiddels buiten gebruik en maakt deel uit van het park Oosterspoorbaan. Omdat de wachterswoning de lijn van het spoor volgt, wijkt de situering af van de omliggende bebouwing.
De uitbreiding heeft een archetypische hoofdvorm, volledig opgetrokken in houtskeletbouw. Aan de buitenzijde is de nieuwbouw afgewerkt met zwarthouten delen, waarmee het contrasteert met het gemetselde monument. De gevelopeningen zijn zodanig geplaatst dat ze aan straatzijde voldoende privacy bieden, terwijl het volume aan de andere kant via een pui is verbonden met de tuin. Achter de pui bevindt zich de woonkeuken.
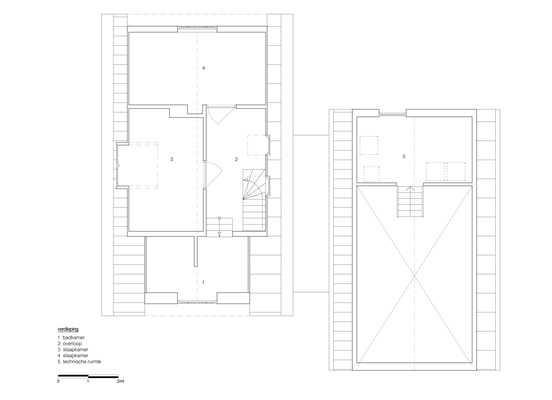
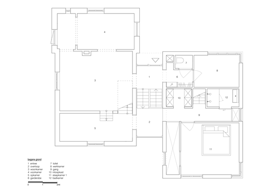
Opkamerstructuur
Bijzonder aan de locatie is verder het terpachtige heuveltje, waardoor de bestaande woonkamer in het monument hoger is gelegen. Deze opkamerstructuur is doorgezet in de vloerniveaus van de uitbreiding. Het splitlevelontwerp vormt samen met verschillende wand- en vloeropeningen een ruimtelijk geheel met veel doorkijkjes en verschillende sferen.
Het transparante tussendeel is de spil van de woning. Hier wordt oud met nieuw verbonden en worden de verschillende vloerniveaus met betonnen trappen aan elkaar verbonden. Door ook de entree van de woning in het glazen tussendeel te plaatsen wordt deze spilfunctie geaccentueerd.
Trefwoorden
woning
utrecht
iris architecten
spoorwachterswoning
Locatie
Best gelezen
1
Woontoren Front door Monadnock wint tiende Architectuurprijs Nijmegen
donderdag, 9 april
2
Spoorwegverleden inspireert ontwerp woonblok Wisselspoor 10 in Utrecht
woensdag, 8 april
3
Rotterdam mag woningen gaan bouwen aan de Parkhaven
woensdag, 8 april
4
SeARCH en Heutink Groep winnen tender voor woongebouw Sluisbuurt
vrijdag, 10 april
5
KOW wint met Marker Woods tender voor nieuwe wijk Eschmarkerveld
woensdag, 8 april
Gerelateerde nieuwsberichten
Nieuwe woonkeuken verbindt woning met tuin
14 november 2022
10 opvallende villa's met een houten gevel
6 april 2022
Start woningbouw op archeologische schatplaats in Museumkwartier Utrecht
10 februari 2021
Tankstation Dudok wordt groene verblijfsplek aan het water
21 november 2019
Nieuwe woonkeuken verbindt woning met tuin
14 november 2022
10 opvallende villa's met een houten gevel
6 april 2022
Start woningbouw op archeologische schatplaats in Museumkwartier Utrecht
10 februari 2021
Tankstation Dudok wordt groene verblijfsplek aan het water
21 november 2019
Toon alles
Andere nieuwsberichten
Architect Cees Dam op 93-jarige leeftijd overleden
Gisteren, 14:35
De oprichter van Dam & Partners architecten ontwierp onder meer de Stopera in Amsterdam (samen met Wilhelm Holzbauer), het stadhuis van Almere en het Huis van de Toekomst in Rosmalen.
Powerhouse Company wint aanbesteding voor verbouwing Vista College Maastricht
Gisteren, 12:16
Het onderkomen van de mbo-school wordt gerenoveerd en uitgebreid met een houten gebouwdeel, dat onder meer de nieuwe hoofdentree en twee atria bevat. Ook moet de nieuwbouw de bestaande gebouwen beter met elkaar verbinden.
Stedelijk Museum organiseert tentoonstelling over ontwerper Kho Liang Ie
Gisteren, 10:52
Met zijn ontwerpen voor meubels en interieurs van de jaren vijftig tot zijn dood halverwege de jaren zeventig nam Kho een centrale positie in binnen de Nederlandse vormgeving. Vermaard is onder meer zijn inrichting van luchthaven Schiphol.
Restauratie Atlasbeeld op dak Koninklijk Paleis Amsterdam afgerond
10 april, 3:38
Het beeld op het fronton van het paleis was in juli van zijn plek gehaald voor een uitgebreide onderhoudsbeurt in Antwerpen.
AFM: funderingsproblemen bij bijna 220.000 woningen
Gisteren, 13:25
De huizen van bijna een half miljoen woningeigenaren hebben een hoog risico op funderingsproblemen of een mogelijke kwetsbare fundering.
Oprichter omgevallen vastgoedconcern Evergrande bekent schuld
Gisteren, 09:17
Evergrande was ooit de grootste projectontwikkelaar van China, maar kwam in de problemen toen het zijn schulden niet kon terugbetalen.
Grote en kleine gemeenten balen van bouwregels Zuid-Holland
10 april, 4:31
Grote en kleine gemeenten in Zuid-Holland hebben hun zorgen geuit over nieuwe regels van de provincie, die volgens hen de woningbouw belemmeren.
Twijfels in Zuid-Holland over halen van doelen landelijk gebied
10 april, 12:18
De meeste partijen in de Zuid-Hollandse politiek hebben twijfels over de plannen die in zestien deelgebieden zijn gemaakt voor de aanpak van het landelijk gebied.
Huurprijzen stijgen harder dan koopwoningprijzen
10 april, 9:31
Volgens Huurwoningen.nl en Pararius moesten nieuwe huurders in het eerste kwartaal gemiddeld 21,12 euro per vierkante meter per maand neerleggen.
ABN AMRO: investeringen defensie vergroten druk op bouwcapaciteit
9 april, 12:29
Kazernes, opslagplaatsen en oefenterreinen dingen om dezelfde aannemers, ingenieurs en installateurs die ook nodig zijn voor bijvoorbeeld woningbouw.
Ga naar het nieuws-archief
Ronnie Weessies
Redacteur
1
0
0
0
Voor een optimale gebruikservaring plaatst Architectenweb functionele cookies. Wat de verschillende cookies precies doen leggen we uit in een
overzicht
. Cookies van social media kun je optioneel
aanzetten
.
Akkoord
Instellingen
Annuleren
OK
Sluiten
Doorgaan
Inloggen
Maak een gratis persoonlijk account aan
Feedback
Feedback
Wij horen graag jouw feedback. Laat je reactie achter en eventueel jouw e-mail adres.
Reactie
Verstuur