Projecten
Producten
Bedrijven
Vacatures
Agenda
Awards
Podcasts
more_horiz
Videos
Magazine
Favorieten
Profiel
Uitloggen
Abonneer je nu op onze nieuwsbrieven!
Abonneren
Nee, bedankt
Ja, denk met me mee rond de
materialisering van mijn project
Producten
Het centrale hart
Copyright: Eva Bloem
IKC De Burg in Nieuwerbrug aan den Rijn
Copyright: Eva Bloem
Copyright: Eva Bloem
Copyright: Eva Bloem
Multifunctioneel gebruik
Copyright: Eva Bloem
Entree IKC De Brug
Copyright: Eva Bloem
Copyright: Eva Bloem
Gebogen, groen dak geeft onderwijsgebouw een kenmerkend silhouet
Copyright: Eva Bloem
Copyright: Eva Bloem
Copyright: Eva Bloem
Copyright: Eva Bloem
Copyright: Eva Bloem
Gymzaal
Copyright: Eva Bloem
Kleedkamers
Copyright: Eva Bloem
Copyright: Eva Bloem
Copyright: Eva Bloem
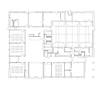
Plattegrond
Copyright: De Zwarte Hond
Producttags
AAN
UIT
IKC De Brug
24 juni 2025
0
0
0
0
Het biobased schoolgebouw IKC De Brug in Nieuwerbrug aan den Rijn is ontworpen door De Zwarte Hond en heeft een volledig houten draagstructuur. Onder een gebogen, groen dak zijn peuterspeelzaal, basisonderwijs, buitenschoolse opvang en een gymzaal geïntegreerd rondom een centraal hart. Deze opzet bevordert samenwerking en multifunctioneel gebruik.
Een school voor alle kinderen van het dorp
Als onderdeel van de dorpsuitbreiding heeft Nieuwerbrug aan de Rijn gekozen voor de bouw van een nieuwe basisschool voor alle kinderen in het dorp. Om een soepele overgang tussen peuterspeelzaal, basisonderwijs en buitenschoolse opvang te realiseren, zijn deze functies samengebracht in Integraal Kindcentrum (IKC) De Brug. Het gebouw, gelegen aan de rand van het dorp, biedt ruimte voor gezamenlijk leren en werken vanuit één gedeelde pedagogische visie.
Biobased ontwerp en kenmerkend sillhouet
Het ontwerp van De Zwarte Hond sluit aan bij de hoge duurzaamheidsambities van het schoolbestuur en de gemeente. De keuze voor een volledig houten draagstructuur was daarbij een belangrijk uitgangspunt. Aan de buitenzijde oogt het gebouw met zijn gevel van metselwerk in koppenformaat robuust, en het is bovendien duurzaam en onderhoudsarm. Binnen zorgt de houten constructie voor een verrassend contrast. De houten spanten, gordingen en kolommen zijn bewust in het zicht gelaten, wat het interieur een warme en natuurlijke uitstraling geeft. Dankzij de houten constructie kon tevens worden gewerkt met vloeiende vormen. Het resultaat is een speels, gebogen dak, dat niet alleen zorgt voor een geborgen sfeer, maar ook bijdraagt aan lage CO
2
-uitstoot en een gezond binnenklimaat. Het zandkleurige metselwerk geeft het gebouw bovendien een herkenbaar silhouet dat van ver zichtbaar is.
Groene inbedding
Het dak is volledig begroeid en voorzien van zonnepanelen, voornamelijk gepositioneerd op het hogere volume van de sportzaal. Doordat het gebouw centaal op de kavel staat, wordt het aan alle zijden omringd door groen. Aan de noordzijde ligt een groen entreeplein en aan de oost- en westzijde zijn natuurlijke speelplekken ingericht. De noordgevel (dorpszijde) verwijst met zijn kapvorm naar het dorpse karakter en heeft door de lichte curve een speelse, uitnodigende uitstraling. De zuidgevel (polderzijde) oogt robuuster.
Samenwerking en multifunctioneel gebruik
Het nieuwe gebouw stimuleert samenwerking tussen de drie partners binnen het IKC. Alle klaslokalen grenzen aan een centrale ontmoetingsruimte, het hart van het gebouw. Grote raampartijen aan weerszijden van de lokalen creëren rust en ruimte. Het hart is multifunctioneel ingericht met werkplekken, een bibliotheek, een podium en een atelier. De gymzaal en de volledig glazen schuifwand van de BSO maken het gebouw zeer geschikt voor grote festiviteiten, zoals een Sinterklaasintocht of gezamenlijk kerstdiner.
Stel jezelf kort voor! Dan weet het betreffende bedrijf wie hun model gedownload heeft.
Wil je niet bij elke download jouw gegevens in hoeven voeren?
Klik dan hier om in te loggen
.
Heb je nog geen account?
Maak dan hier een gratis account aan
.
Voornaam
Achternaam
E-mailadres
Downloaden
Wanneer je modellen downloadt op Architectenweb.nl worden relevante gegevens van jou – zoals jouw naam en e-mailadres – met het betreffende bedrijf gedeeld. Meer hierover lees je in ons
privacybeleid
.
Locatie
Trefwoorden
samenwerking
ikc de brug
energieneutraal
groen dak
de zwarte hond
onderwijs
duurzaamheid
architectuur
biobased architectuur
biobased
ikc
houtbouw
multifunctioneel
houtconstructie
Architectenweb Awards 2025
Schoolgebouw van het Jaar
Winnaar
Bekijk alle genomineerden
De Zwarte Hond
Neem contact op
Projectdata
Staat van realisatie
Voltooid
Start ontwerpproces
2022
Start bouw
2024
Oplevering
2025
Ingebruikname
2025
Plaats
Nieuwerbrug aan den Rijn
Meewerkende partijen
Architect
De Zwarte Hond
Projectarchitect
Bart van Kampen
Ontwerpteam
André van der Slik, Clementien Peeters, Daniela Mikova, Nika van Berkel, Claudia Martelli, Rick Buurman
Opdrachtgever
Gemeente Bodegraven-Reeuwijk
Aannemer
Kwakkenbos B.V.
Constructeur
Swinn B.V.
Adviseurs installaties E & W
Merosch
Fotograaf
Eva Bloem
Projectmanagement
ICS Adviseurs
Adviseur bouwfysica
Merosch
Adviseur bouwkosten
Vitruvius Bouwkostenadvies
Adviseur brandveiligheid
Merosch
Onderaannemer
De Groot Vroomshoop
Leveranciers
Dakluik met steekladder
Gorter Luiken BV
Troldtekt akoestisch plafond
Troldtekt Benelux
Overig
Solarlux Nederland B.V.
Neem contact op met
De Zwarte Hond
Je bent momenteel niet ingelogd. Hierdoor is het alleen mogelijk om meer informatie per e-mail op te vragen. Wil je liever gebeld worden of documentatie per post ontvangen?
Klik dan hier om in te loggen
.
Heb je nog geen account?
Maak dan hier een gratis account aan
.
Voornaam
Achternaam
E-mailadres
Opmerkingen
Bij iedere aanvraag worden relevante gegevens van jou gedeeld met het betreffende bedrijf. Meer hierover lees je in ons
privacybeleid
.
Ja, denk met me mee rond de
materialisering van mijn project
Meer projecten van De Zwarte Hond
Merwede – Agora Hub030
De Zwarte Hond
MO*town Track 8
De Zwarte Hond
Gilde Vakcollege Techniek
De Zwarte Hond
Hart van de Waalsprong
De Zwarte Hond
IKC+ Katwijk
De Zwarte Hond
Herta Mohrgebouw, Universiteit Leiden
De Zwarte Hond
Regulateur Grunobuurt
De Zwarte Hond
Het Element
De Zwarte Hond
Stationskwartier Assen
De Zwarte Hond
Groot Handelshuis Groningen
De Zwarte Hond
De Boezem
De Zwarte Hond
The Cube
De Zwarte Hond
Kindcentrum Zuiderkroon
De Zwarte Hond
Het Kielzog: huis voor cultuur en bestuur
De Zwarte Hond
SuperHub Meerstad
De Zwarte Hond
Alliander Westpoort
De Zwarte Hond
Kindcentrum de Samenstroom
De Zwarte Hond
Theater Zuidplein
De Zwarte Hond
Noorderhuis
De Zwarte Hond
Park Paviljoen Het Nationale Park De Hoge Veluwe
De Zwarte Hond
Appartementen Blokweer
De Zwarte Hond
Merwede – Agora Hub030
De Zwarte Hond
MO*town Track 8
De Zwarte Hond
Gilde Vakcollege Techniek
De Zwarte Hond
Hart van de Waalsprong
De Zwarte Hond
IKC+ Katwijk
De Zwarte Hond
Herta Mohrgebouw, Universiteit Leiden
De Zwarte Hond
Regulateur Grunobuurt
De Zwarte Hond
Het Element
De Zwarte Hond
Stationskwartier Assen
De Zwarte Hond
Groot Handelshuis Groningen
De Zwarte Hond
De Boezem
De Zwarte Hond
The Cube
De Zwarte Hond
Kindcentrum Zuiderkroon
De Zwarte Hond
Het Kielzog: huis voor cultuur en bestuur
De Zwarte Hond
SuperHub Meerstad
De Zwarte Hond
Alliander Westpoort
De Zwarte Hond
Kindcentrum de Samenstroom
De Zwarte Hond
Theater Zuidplein
De Zwarte Hond
Noorderhuis
De Zwarte Hond
Park Paviljoen Het Nationale Park De Hoge Veluwe
De Zwarte Hond
Appartementen Blokweer
De Zwarte Hond
Toon alles
Gerelateerde producten
Gorter RHT dakluik met ladder
Gorter Luiken BV
Troldtekt akoestiek Cradle to Cradle Gold & Futurecem
Good Acoustics
Troldtekt Benelux
Andere Projecten
Houtlook lamellen voor aantrekkelijke nieuwbouw
Renson
Orato Offices | Nederland
ALUCOBOND®
Westerpark West: Salt, Blend & Pepper: balkons
M.C. Kersten B.V.
TU Eindhoven: complete trappenhuizen
M.C. Kersten B.V.
Onderhoud groene gevels zonder visuele impact
Aerial Access
Luxe en transparantie in Villa te Zeewolde
Axess B.V. Lift Solutions
De Koepel Haarlem: kozijnen, deuren, trappen
M.C. Kersten B.V.
Platformlift Tech Centrum Hoornbeeck – Amersfoort
Axess B.V. Lift Solutions
Cellenvleugel De Koepel De Vest: Kozijnen trappen
M.C. Kersten B.V.
Hourglass: Trappen en balustraden
M.C. Kersten B.V.
Woonhuis Otterlo: wenteltrappen
M.C. Kersten B.V.
Circulair bouwen met een biobased kern
Faay Vianen B.V.
Ga naar het projecten-overzicht
Voor een optimale gebruikservaring plaatst Architectenweb functionele cookies. Wat de verschillende cookies precies doen leggen we uit in een
overzicht
. Cookies van social media kun je optioneel
aanzetten
.
Akkoord
Instellingen
Annuleren
OK
Sluiten
Doorgaan
Inloggen
Maak een gratis persoonlijk account aan
Feedback
Feedback
Wij horen graag jouw feedback. Laat je reactie achter en eventueel jouw e-mail adres.
Reactie
Verstuur