Projecten
Producten
Bedrijven
Vacatures
Agenda
Awards
Podcasts
more_horiz
Videos
Magazine
Favorieten
Profiel
Uitloggen
Abonneer je nu op onze nieuwsbrieven!
Abonneren
Nee, bedankt
Ja, denk met me mee rond de
materialisering van mijn project
Producten
Gilde Vakcollege Techniek
Copyright: Eva Bloem
Copyright: Eva Bloem
Copyright: Eva Bloem
Copyright: Eva Bloem
De centrale binnenstraat
Copyright: Eva Bloem
Praktijklokaal
Copyright: Eva Bloem
Copyright: Eva Bloem
Copyright: Eva Bloem
Copyright: Eva Bloem
Robuuste zitelementen in de centrale ruimte
Copyright: Eva Bloem
Installaties en constructie zijn in het zicht gelaten
Copyright: Eva Bloem
Gilde Vakcollege op de innovatiecampus
Copyright: Eva Bloem
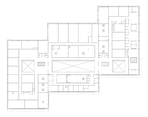
Plattegrond begane grond
Copyright: De Zwarte Hond
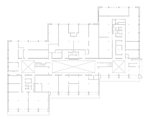
Plattegrond 1e verdieping
Copyright: De Zwarte Hond
Plattegrond 2e verdieping
Copyright: De Zwarte Hond
Producttags
AAN
UIT
Gilde Vakcollege Techniek
23 juni 2025
0
0
0
0
Techniek als leerobject: nieuwbouw Gilde Vakcollege in Gorinchem.
In opdracht van Willem van Oranje Onderwijsgroep ontwierp De Zwarte Hond, op de scholencampus in Gorinchem, de nieuwe huisvesting voor het Gilde Vakcollege; een vmbo-techniekschool. Door de installaties en constructie in het zicht te laten, is het gebouw zelf ook leerobject in het technsiche onderwijs. Met als doel jongeren uit dagen en stimuleren om voor techniek te kiezen en te voldoen aan de grote vraag naar technische geschoolde mensen.
De ontbrekende schakel op de campus
Het ontwerp voor het Gilde is de ontbrekende schakel op de nieuwe campus. Door het gebouw op te delen in drie, ten opzichte van elkaar, verschoven volumes, heeft het een menselijke maat en nestelt het zich in de bestaande campusstructuur. Op de begane grond bevinden zich ruime praktijklokalen, met directe toegang tot veranda’s aan de campuszijde en grenzend aan een centrale binnenstraat – het kloppend hart van de school. Deze binnenstraat roept de sfeer op van een fabriek, maar voelt tegelijkertijd huiselijk aan. Op de 1e verdieping bevinden zich de theorielokalen en leerpleinen, via vides visueel verbonden met de praktijkruimtes.
Vakmanschap zichtbaar in architectuur
Het Gilde is een extraverte, uitnodigende plek, waar vakmanschap en techniek centraal staan. Dit blijkt uit het gebruik van natuurlijke materialen zoals hout, staal en beton, en de drie kenmerkende sheddaken die refereren aan fabrieken. De verfijnde metselwerkpatronen in de gevel en bewust zichtbare constructie en installaties maken de techniek tastbaar. Hout en kleur creëren binnen een warme sfeer, waardoor de nieuwbouw zowel de technische werkomgeving als een veilige leeromgeving weerspiegelt.
Duurzaam en energieneutraal
Het Gilde Vakcollege is duurzaam en energiezuinig met een gezond en comfortabel binnenklimaat. Het voldoet aan alle thema’s binnen het Programma van Eisen Frisse Scholen Klasse B. Het gebouw is energieneutraal (ENG), met een energielabel A+++++, doordat de drie sheddaken volledig zijn voorzien van PV-panelen (ruim 1.200 stuks). Het eindresultaat is een techniekschool waar de techniek enerzijds zichtbaar aanwezig is en anderzijds een rustige werk- en leeromgeving ontstaat.
Stel jezelf kort voor! Dan weet het betreffende bedrijf wie hun model gedownload heeft.
Wil je niet bij elke download jouw gegevens in hoeven voeren?
Klik dan hier om in te loggen
.
Heb je nog geen account?
Maak dan hier een gratis account aan
.
Voornaam
Achternaam
E-mailadres
Downloaden
Wanneer je modellen downloadt op Architectenweb.nl worden relevante gegevens van jou – zoals jouw naam en e-mailadres – met het betreffende bedrijf gedeeld. Meer hierover lees je in ons
privacybeleid
.
Locatie
Trefwoorden
vakcollege
architectuur en duurzaamheid
willem van oranje onderwijsgroep
binnenstraat
constructie in het zicht
de zwarte hond
schoolgebouw
campusontwikkeling
gilde vakcollege
ambacht
energieneutraal
gorinchem
techniekschool
De Zwarte Hond
Neem contact op
Projectdata
Staat van realisatie
Voltooid
Start ontwerpproces
2020
Start bouw
2023
Oplevering
2024
Ingebruikname
2024
Plaats
Gorinchem
Bruto m
2
10599
Meewerkende partijen
Architect
De Zwarte Hond
Projectarchitect
Bart van Kampen
Ontwerpteam
Marco Overwijk, Thomas Drenth, Charis Nika, Daniela Mikova, Beyza Paksoy, Kerstin Tresselt, Rick Buurman, Richard Vrijland
Opdrachtgever
Willem van Oranje Onderwijsgroep
Aannemer
Burgland Bouw B.V.
Constructeur
H4D constructie
Fotograaf
Eva Bloem
Projectmanagement
HEVO
Adviseur bouwfysica
dGmR bouwfysica
Adviseur installaties E
BINK
Adviseur installaties W
Klimaatservice Holland
Interieurbouwer
Visker interieurbouw
Leveranciers
Deuren
Solarlux Nederland B.V.
Neem contact op met
De Zwarte Hond
Je bent momenteel niet ingelogd. Hierdoor is het alleen mogelijk om meer informatie per e-mail op te vragen. Wil je liever gebeld worden of documentatie per post ontvangen?
Klik dan hier om in te loggen
.
Heb je nog geen account?
Maak dan hier een gratis account aan
.
Voornaam
Achternaam
E-mailadres
Opmerkingen
Bij iedere aanvraag worden relevante gegevens van jou gedeeld met het betreffende bedrijf. Meer hierover lees je in ons
privacybeleid
.
Ja, denk met me mee rond de
materialisering van mijn project
Meer projecten van De Zwarte Hond
Merwede – Agora Hub030
De Zwarte Hond
IKC De Brug
De Zwarte Hond
MO*town Track 8
De Zwarte Hond
Hart van de Waalsprong
De Zwarte Hond
IKC+ Katwijk
De Zwarte Hond
Herta Mohrgebouw, Universiteit Leiden
De Zwarte Hond
Regulateur Grunobuurt
De Zwarte Hond
Het Element
De Zwarte Hond
Stationskwartier Assen
De Zwarte Hond
Groot Handelshuis Groningen
De Zwarte Hond
De Boezem
De Zwarte Hond
The Cube
De Zwarte Hond
Kindcentrum Zuiderkroon
De Zwarte Hond
Het Kielzog: huis voor cultuur en bestuur
De Zwarte Hond
SuperHub Meerstad
De Zwarte Hond
Alliander Westpoort
De Zwarte Hond
Kindcentrum de Samenstroom
De Zwarte Hond
Theater Zuidplein
De Zwarte Hond
Noorderhuis
De Zwarte Hond
Park Paviljoen Het Nationale Park De Hoge Veluwe
De Zwarte Hond
Appartementen Blokweer
De Zwarte Hond
Merwede – Agora Hub030
De Zwarte Hond
IKC De Brug
De Zwarte Hond
MO*town Track 8
De Zwarte Hond
Hart van de Waalsprong
De Zwarte Hond
IKC+ Katwijk
De Zwarte Hond
Herta Mohrgebouw, Universiteit Leiden
De Zwarte Hond
Regulateur Grunobuurt
De Zwarte Hond
Het Element
De Zwarte Hond
Stationskwartier Assen
De Zwarte Hond
Groot Handelshuis Groningen
De Zwarte Hond
De Boezem
De Zwarte Hond
The Cube
De Zwarte Hond
Kindcentrum Zuiderkroon
De Zwarte Hond
Het Kielzog: huis voor cultuur en bestuur
De Zwarte Hond
SuperHub Meerstad
De Zwarte Hond
Alliander Westpoort
De Zwarte Hond
Kindcentrum de Samenstroom
De Zwarte Hond
Theater Zuidplein
De Zwarte Hond
Noorderhuis
De Zwarte Hond
Park Paviljoen Het Nationale Park De Hoge Veluwe
De Zwarte Hond
Appartementen Blokweer
De Zwarte Hond
Toon alles
Andere Projecten
Gebouw 50 – Slimme, duurzame geveloptimalisatie
EQUITONE gevelpanelen
Schaalbaar honderden modulaire woningen bouwen?
Buro De Haan
Eigentijds wonen met concept Ankum
Innoblox
Nieuwbouw kantoorpand
Knauf B.V.
woningbouw poortmeesters delft
VYA architectuur en stedenbouw
Onderwijsgebouw Aurora, Wageningen
WEBO
Sandwichpanelenwand hygiënische afbouw
Sentho B.V.
Transformeerbare vergaderruimtes in HNK Amsterdam
BREEDVELD mobiele wandsystemen
Complete buiteninrichting kantooromgeving
Falco B.V.
TopAccess Dakluik bij Porsche Service Factory
Staka Dakluiken
Nieuwbouw villa Tegenbosch, Eindhoven, Noord-Braba
van Os Architecten
Moderne villa Alkmaar
BNLA architecten
Ga naar het projecten-overzicht
Voor een optimale gebruikservaring plaatst Architectenweb functionele cookies. Wat de verschillende cookies precies doen leggen we uit in een
overzicht
. Cookies van social media kun je optioneel
aanzetten
.
Akkoord
Instellingen
Annuleren
OK
Sluiten
Doorgaan
Inloggen
Maak een gratis persoonlijk account aan
Feedback
Feedback
Wij horen graag jouw feedback. Laat je reactie achter en eventueel jouw e-mail adres.
Reactie
Verstuur