Projecten
Producten
Bedrijven
Vacatures
Agenda
Awards
Podcasts
more_horiz
Videos
Magazine
Thema's
Favorieten
Profiel
Uitloggen
Abonneer je nu op onze nieuwsbrieven!
Abonneren
Nee, bedankt
Ja, denk met me mee rond de
materialisering van mijn project
Producten
Copyright: De Zwarte Hond - Eva Bloem
Copyright: De Zwarte Hond - Eva Bloem
Copyright: De Zwarte Hond - Eva Bloem
Copyright: De Zwarte Hond - Eva Bloem
Copyright: De Zwarte Hond - Eva Bloem
Copyright: De Zwarte Hond - Eva Bloem
Copyright: De Zwarte Hond - Eva Bloem
Copyright: De Zwarte Hond - Eva Bloem
Copyright: De Zwarte Hond - Eva Bloem
Copyright: De Zwarte Hond - Eva Bloem
Copyright: De Zwarte Hond
Copyright: De Zwarte Hond - Jordi Huisman
Copyright: De Zwarte Hond - Eva Bloem
Copyright: De Zwarte Hond - Jordi Huisman
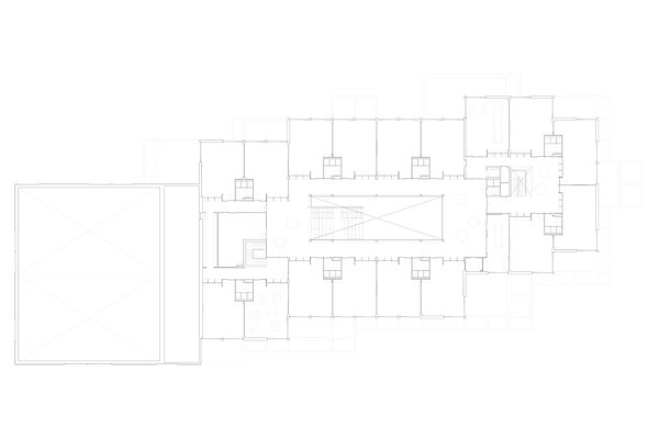
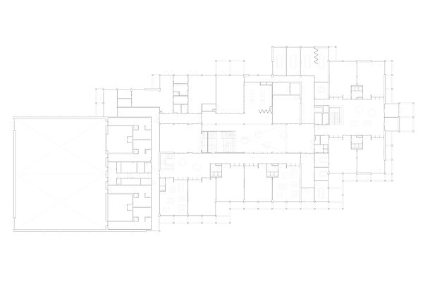
Begane grond
Copyright: De Zwarte Hond
1e verdieping
Copyright: De Zwarte Hond
Situatie
Copyright: De Zwarte Hond
Producttags
AAN
UIT
Kindcentrum Zuiderkroon
21 juni 2022
1
0
0
0
In oktober 2021 is het door De Zwarte Hond ontworpen nieuwe Kindcentrum ‘’De Zuiderkroon’’ in gebruik genomen. In het ontwerp staan inclusiviteit en multifunctionaliteit centraal.
De Zuiderkroon verbindt een openbare gefuseerde basisschool met een basisschool voor speciaal onderwijs. Ook is er een kinderdagverblijf inbegrepen. Alle ruimtes worden met een centraal hart verbonden, waar het licht rijkelijk binnenvalt doormiddel van dakramen. Leerlingen krijgen les in hoge, lichte klaslokalen en hebben een eigen keuken voor praktijkonderwijs. Daarnaast hebben ze toegang tot een technieklokaal en twee geschakelde gymzalen. De grote omvang van het gebouw (5.100 m2) wordt door de gebruikers als kleinschalig ervaren. Dit komt doordat het bouwvolume is versnipperd om aan te sluiten op de schaal van het kind. De gevel is in twee lagen opgedeeld. De onderste laag is afgewerkt met robuust beton. De bovenste laag is afgewerkt met handgemaakte groen-blauwe tegels die in samenwerking met de Koninklijke Tichelaar zijn ontworpen en verwijzen naar de omgeven boomtoppen. In het ontwerp van de binnenruimten is ook de verbinding gezocht met de omgeving. Met grote glazen schuifdeuren wordt de binnenruimte direct met een pergola en de buitenruimte verbonden, zodat zowel binnen- als buitenonderwijs kan worden gegeven.
Stel jezelf kort voor! Dan weet het betreffende bedrijf wie hun model gedownload heeft.
Wil je niet bij elke download jouw gegevens in hoeven voeren?
Klik dan hier om in te loggen
.
Heb je nog geen account?
Maak dan hier een gratis account aan
.
Voornaam
Achternaam
E-mailadres
Downloaden
Wanneer je modellen downloadt op Architectenweb.nl worden relevante gegevens van jou – zoals jouw naam en e-mailadres – met het betreffende bedrijf gedeeld. Meer hierover lees je in ons
privacybeleid
.
Locatie
Trefwoorden
kindcentrum
de zwarte hond
zuiderkroon
nieuwbouw
hoogezand
Architectenweb Awards 2022
Schoolgebouw van het Jaar
Winnaar
Bekijk alle genomineerden
De Zwarte Hond
Neem contact op
Projectdata
Staat van realisatie
Voltooid
Start ontwerpproces
2020
Start bouw
2021
Oplevering
2021
Ingebruikname
2021
Plaats
Hoogezand
Meewerkende partijen
Architect
De Zwarte Hond
Interieurarchitect
De Zwarte Hond
Projectarchitect
Henk Stadens, Martijn Korendijk
Opdrachtgever
Gemeente Midden-Groningen
Aannemer
Hesco Bouw
Constructeur
Alferink van Schievensyp
Adviseurs installaties E & W
Sijperda-Hardy BV
Fotograaf
Eva Bloem, Jordi Huisman
Ontwerper
Henk Stadens
Landschapsarchitect
Snoek Puur Groen
Visualisaties
De Zwarte Hond
Leveranciers
Geglazuurde steenstrips
Koninklijke Tichelaar Makkum
Overig
Smit Bedum
Neem contact op met
De Zwarte Hond
Je bent momenteel niet ingelogd. Hierdoor is het alleen mogelijk om meer informatie per e-mail op te vragen. Wil je liever gebeld worden of documentatie per post ontvangen?
Klik dan hier om in te loggen
.
Heb je nog geen account?
Maak dan hier een gratis account aan
.
Voornaam
Achternaam
E-mailadres
Opmerkingen
Bij iedere aanvraag worden relevante gegevens van jou gedeeld met het betreffende bedrijf. Meer hierover lees je in ons
privacybeleid
.
Ja, denk met me mee rond de
materialisering van mijn project
Meer projecten van De Zwarte Hond
Merwede – Agora Hub030
De Zwarte Hond
IKC De Brug
De Zwarte Hond
MO*town Track 8
De Zwarte Hond
Gilde Vakcollege Techniek
De Zwarte Hond
Hart van de Waalsprong
De Zwarte Hond
IKC+ Katwijk
De Zwarte Hond
Herta Mohrgebouw, Universiteit Leiden
De Zwarte Hond
Regulateur Grunobuurt
De Zwarte Hond
Het Element
De Zwarte Hond
Stationskwartier Assen
De Zwarte Hond
Groot Handelshuis Groningen
De Zwarte Hond
De Boezem
De Zwarte Hond
The Cube
De Zwarte Hond
Het Kielzog: huis voor cultuur en bestuur
De Zwarte Hond
SuperHub Meerstad
De Zwarte Hond
Alliander Westpoort
De Zwarte Hond
Kindcentrum de Samenstroom
De Zwarte Hond
Theater Zuidplein
De Zwarte Hond
Noorderhuis
De Zwarte Hond
Park Paviljoen Het Nationale Park De Hoge Veluwe
De Zwarte Hond
Appartementen Blokweer
De Zwarte Hond
Merwede – Agora Hub030
De Zwarte Hond
IKC De Brug
De Zwarte Hond
MO*town Track 8
De Zwarte Hond
Gilde Vakcollege Techniek
De Zwarte Hond
Hart van de Waalsprong
De Zwarte Hond
IKC+ Katwijk
De Zwarte Hond
Herta Mohrgebouw, Universiteit Leiden
De Zwarte Hond
Regulateur Grunobuurt
De Zwarte Hond
Het Element
De Zwarte Hond
Stationskwartier Assen
De Zwarte Hond
Groot Handelshuis Groningen
De Zwarte Hond
De Boezem
De Zwarte Hond
The Cube
De Zwarte Hond
Het Kielzog: huis voor cultuur en bestuur
De Zwarte Hond
SuperHub Meerstad
De Zwarte Hond
Alliander Westpoort
De Zwarte Hond
Kindcentrum de Samenstroom
De Zwarte Hond
Theater Zuidplein
De Zwarte Hond
Noorderhuis
De Zwarte Hond
Park Paviljoen Het Nationale Park De Hoge Veluwe
De Zwarte Hond
Appartementen Blokweer
De Zwarte Hond
Toon alles
Andere Projecten
Toegangscontrole op een dynamisch terrein
Heras
Biobased bouwen naast Natura 2000-gebied
KUBUS | Specialist in Archicad
5Tracks - inspirerende atriums met JUNG
Jung | Hateha B.V.
Totaalrealisatie nieuwe kantoorlocatie A. Vogel
Intermontage B.V.
Sweco Wonderwoods — Duurzame kantoorinrichting
Hal2
Gare Maritime, Brussel
WEBO
De transformatie van de Lintveldebrink
Grohe Nederland B.V.
Sweco WTC Den Haag — Duurzame kantoorinrichting
Hal2
Uitbreiding Hotel Martin's Klooster, Leuven
OWA Benelux - Akoestiek & Design
RVS plinten kantoor Moore DRV
Storax
Nieuwbouw keuken Stark Hoogeveen
KeraStone
Transformatie van meubelzaak naar autobedrijf
Buro De Haan
Ga naar het projecten-overzicht
Voor een optimale gebruikservaring plaatst Architectenweb functionele cookies. Wat de verschillende cookies precies doen leggen we uit in een
overzicht
. Cookies van social media kun je optioneel
aanzetten
.
Akkoord
Instellingen
Annuleren
OK
Sluiten
Doorgaan
Inloggen
Maak een gratis persoonlijk account aan
Feedback
Feedback
Wij horen graag jouw feedback. Laat je reactie achter en eventueel jouw e-mail adres.
Reactie
Verstuur