Abonneer je nu op onze nieuwsbrieven!
Abonneren
Nee, bedankt
Ja, denk met me mee rond de
materialisering van mijn project
Producten
Copyright: ScagliolaBrakkee
Copyright: ScagliolaBrakkee
Copyright: ScagliolaBrakkee
Copyright: ScagliolaBrakkee
ProducttagsAANUIT

Noorderhuis

9 juli 2019
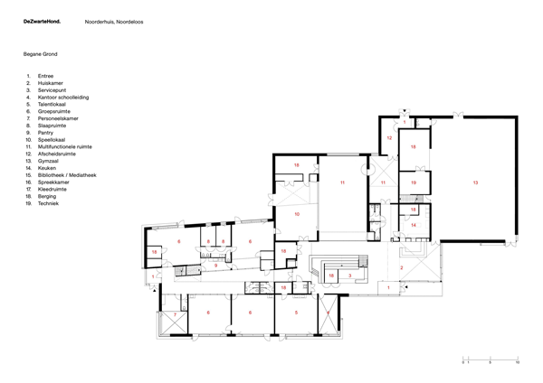
Iets ten zuiden van de Lek, de provinciegrens tussen Utrecht en Zuid-Holland, ligt het dorp Noordeloos. Als je door de polder naar het dorp loopt, zie je eerst de kerktoren opdoemen. Maar als je beter kijkt, zie je achter een bomenrij ook een prachtige houten gevel. Het blijken drie subtiel in elkaar geduwde gebouwen te zijn, die samen het Noorderhuis vormen. Hier zitten school, gymzaal, kinderopvang, peuterspeelzaal, buurthuis, bibliotheek en zelfs opbaarruimte samen onder één dak, of liever: drie daken, en dan ook nog energieneutraal.

Door het materiaalgebruik en de hellende daken sluit het gebouw mooi aan bij de rest van het dorp en past het goed in de landelijke omgeving. Aan ene kant van het gebouw is het schoolplein, aan de andere kant het dorpsplein. Beide pleinen bieden uitzicht op het dorp én de polder. Bij het Noorderhuis kan het hele dorp samenkomen, van jong tot oud, binnen en buiten.

Verspringend effect
Het Noorderhuis is een multifunctionele accommodatie en combineert sportzaal, dorpshuis en basisschool. ‘Wij wonnen in 2015 de architectenselectie omdat we het forse programma in verschillende delen of huizen hebben opgeknipt en ten opzichte van elkaar ruimtelijk geaccentueerd, waardoor er een verspringend effect ontstaat’, verklaart architect André van der Slik het ontwerp. ‘Met de kappen hebben we hoogteaccenten in het gebouw gebracht, waardoor de lokalen en het hart veel hoger en speelser zijn geworden. Door die verspringing hebben we ruimte om het gebouw heen gehouden en volgen we ook de morfologie van de omliggende wijk.’

Interactie
Om het kavel maximaal te kunnen benutten, zijn de drie ‘huizen’ als het ware in elkaar geschoven. Voor alle functies is een passende plaats gevonden. Zelfs voor een opbaarruimte, die dankzij de hoogte en de lichtinval een sacrale, meditatieve sfeer heeft. De entree is zo ontworpen dat er veel interactie mogelijk is tussen binnen en buiten, bijvoorbeeld op zomerse dagen of bij festiviteiten. Ook binnen is veel interactie mogelijk; met behulp van vouwwanden zijn ruimtes in het dorpshuis naar wens af te sluiten of met elkaar te verbinden. Zo kan de trap in de centrale hal ook dienen als tribune voor de theaterzaal. De ramen en lichthappers zorgen in het hele gebouw voor een overvloed aan natuurlijk licht en uitzicht op de omgeving.

Energieneutraal
Het gebouw is energieneutraal, met een Energie Prestatie Coëfficiënt van 0. Warmtekoudeopslag zorgt voor de verwarming en koeling van het gebouw. Door het slimme compacte ontwerp wordt die energie bovendien efficiënt gebruikt. Een groot deel van het dakoppervlak, 540 vierkante meter, is bedekt met zonnepanelen. De zichtbare daken zijn groen, goed voor de isolatie en waterberging. Het hele pand heeft een uitstekende isolatie. Ook het materiaalgebruik is duurzaam: hout – in het bijzonder de hier gebruikte lariks uit Siberië – is aanmerkelijk minder milieubelastend dan andere bouwmaterialen. Het eindresultaat is een gezond, toekomstbestendig gebouw met een aangenaam binnenklimaat, waar alle inwoners van Noordeloos terechtkunnen.

Download brochures

Stel jezelf kort voor! Dan weet het betreffende bedrijf wie hun brochure gedownload heeft.
Wil je niet bij elke download jouw gegevens in hoeven voeren?
Klik dan hier om in te loggen. Heb je nog geen account? Maak dan hier een gratis account aan.
Voornaam
Achternaam
E-mailadres
Downloaden
Wanneer je brochures downloadt op Architectenweb.nl worden relevante gegevens van jou – zoals jouw naam en e-mailadres – met het betreffende bedrijf gedeeld. Meer hierover lees je in ons privacybeleid.
Wanneer je brochures downloadt op Architectenweb.nl worden relevante gegevens van jou – zoals jouw naam en e-mailadres – met het betreffende bedrijf gedeeld. Meer hierover lees je in ons privacybeleid.

Stel jezelf kort voor! Dan weet het betreffende bedrijf wie hun model gedownload heeft.
Wil je niet bij elke download jouw gegevens in hoeven voeren?
Klik dan hier om in te loggen.

Heb je nog geen account? Maak dan hier een gratis account aan.
Voornaam
Achternaam
E-mailadres
Downloaden
Wanneer je modellen downloadt op Architectenweb.nl worden relevante gegevens van jou – zoals jouw naam en e-mailadres – met het betreffende bedrijf gedeeld. Meer hierover lees je in ons privacybeleid.

Locatie

Neem contact op met De Zwarte Hond

Je bent momenteel niet ingelogd. Hierdoor is het alleen mogelijk om meer informatie per e-mail op te vragen. Wil je liever gebeld worden of documentatie per post ontvangen? Klik dan hier om in te loggen.
Heb je nog geen account? Maak dan hier een gratis account aan.
Voornaam
Achternaam
E-mailadres
Opmerkingen
Bij iedere aanvraag worden relevante gegevens van jou gedeeld met het betreffende bedrijf. Meer hierover lees je in ons privacybeleid.
Ja, denk met me mee rond de
materialisering van mijn project

Meer projecten van De Zwarte Hond

ATAG Nederland
KUBUS | Specialist in Archicad
SAPA
Reynaers Aluminium Nederland
Jansen
SAB-profiel bv
Aliplast Aluminium Systems
Kingspan Light & Air
ALUCOBOND®
Caparol
Tarkett BV
Kawneer
Grohe Nederland B.V.
Malaysian Timber Council
OCS | Office Cabling Systems
Swisspearl Nederland
Forster Nederland N.V.
VELUX Commercial Benelux B.V.
Sempergreen
Houthandel van Dam
Aluprof Nederland BV
QbiQ Wall Systems
Forbo Flooring
Schüco Nederland
Cedral
Sto Isoned bv
Triflex bv
Gorter Luiken BV
wienerberger
DUCO Ventilation & Sun Control
BEWI IsoBouw
ROCKWOOL B.V.
Mview+
Rockfon (ROCKWOOL B.V.)
Gira Nederland B.V.
Kingspan Geïsoleerde Panelen
GEZE Benelux  B.V.
Renson
Metaglas Groep
ABB | Busch-Jaeger
Jung | Hateha B.V.
Knauf B.V.
Saint-Gobain Glass Benelux
Faay Vianen B.V.
objectflor
Boon Edam Nederland B.V.
Hunter Douglas Architectural
VOLA Nederland BV
Forbo Eurocol Nederland B.V.
EQUITONE gevelpanelen
Holonite B.V.
Tata Steel Colorcoat®
Architectenweb
Over ons
Contact

© 2002 - 2026 Architectenweb BV / Voorwaarden / Privacy / Disclaimer / Sitemap
Annuleren
OK
Sluiten
Doorgaan
Inloggen
Maak een gratis persoonlijk account aan