Projecten
Producten
Bedrijven
Vacatures
Agenda
Awards
Podcasts
more_horiz
Videos
Magazine
Thema's
Favorieten
Profiel
Uitloggen
Copyright: MWA Hart Nibbrig
Copyright: MWA Hart Nibbrig
Copyright: MWA Hart Nibbrig
Copyright: MWA Hart Nibbrig
Copyright: MWA Hart Nibbrig
Copyright: MWA Hart Nibbrig
Copyright: MWA Hart Nibbrig
Copyright: MWA Hart Nibbrig
Copyright: MWA Hart Nibbrig
Copyright: MWA Hart Nibbrig
Copyright: MWA Hart Nibbrig
Copyright: MWA Hart Nibbrig
Maquette
Copyright: Kevin Veenhuizen Architects
Oude situatie
Copyright: Kevin Veenhuizen Architects
Doorsnede
Copyright: Kevin Veenhuizen Architects
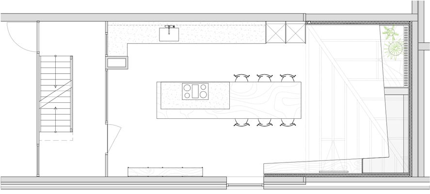
Plattegrond
Copyright: Kevin Veenhuizen Architects
Woninguitbreiding onder een vlinderdak
28 oktober 2019, 13:11
Een woning in Amsterdam is uitgebreid door de oorspronkelijke patio op de eerste verdieping bij de keuken te trekken.
Kevin Veenhuizen Architects
ontwierp de uitbouw met opvallend ‘vlinderdak’ en meubilair op maat.
In het ontwerp heeft de architect optimaal gebruik gemaakt van de gegeven hoogte van de patiomuren, die tot de tweede verdieping van de woning reiken. Deze aanvankelijke buitenmuren zijn nageïsoleerd met voorzetwanden om behaaglijkheid van de nieuwe binnenruimte te kunnen waarborgen.
Vlinderdak
De oorspronkelijke buitenruimte is overdekt met een op maat gemaakte houten dakconstructie. Op de buitenwanden liggen rondom gelamineerde liggers, evenals een diagonale hoofdkeper, legt architect Veenhuizen uit.
De gordingen zijn onder een hoek geplaatst, zodat regenwater naar het laagste punt stroomt en daar via een geïntegreerde regenpijp kan worden afgevoerd. Op de houten vlinderdakconstructie is een glasdak met elektrisch te openen dakramen geplaatst. In de dakbalken zijn voorts kleine leds geïntegreerd.
Meubilair op maat
De nieuwe ruimte onder het vlinderdak is voorzien van een op maat gemaakt zitmeubel, afgewerkt in eiken. Hiermee heeft Veenhuizen een lichte en comfortabele verblijfsplek gecreëerd, die in combinatie met de nieuwe keuken een ruime woonkeuken vormt.
Ook de nieuwe walnoothouten keuken is op maat gemaakt. Het keukenblad heeft een parelmoer terrazzo-uitstraling. In het midden van de keuken ligt een kookeiland annex eettafel. De tafel is afgewerkt met eiken en vormt het centrum voor het gezinsleven, waar gezamenlijk wordt gekookt, gegeten en ontspannen.
Voor extra bergruimte in de keuken heeft Veenhuizen een kast ontworpen uit een losstaand stalen frame met eiken afwerking. Door dezelfde materialisatie voor de keukenkast, eettafel en het zitmeubel te kiezen, heeft de architect het meubilair en de totale ruimte tot een geheel gesmeed.
Ruimtelijkheid
Het oorspronkelijke scheidingselement tussen keuken en verkeersruimte is vervangen door een veel transparantere scheiding met glas. Dit draagt bij aan de ruimtelijkheid van de nieuwe keuken en de relatie tussen de voor- en achterruimten op de eerste verdieping. Een langwerpig verlichtingsarmatuur boven het kookeiland, in de lengterichting van de woonkeuken, versterkt de ruimtelijkheid, legt de architect uit.
Bij deze particuliere opdracht is de ontwerpfocus niet gelegd op het creëren van louter extra vierkante meters, maar ook, zegt Veenhuizen, “op persoonlijk gebruiksgemak, behaaglijkheid en comfort van de ruimte.”
Trefwoorden
uitbouw
kevin veenhuizen architects
woninguitbreiding
dak
amsterdam
Best gelezen
1
Houthybride woongebouw langs de A8 in Zaandam opgeleverd
dinsdag, 11 november
2
WillemsenU zinkt villa af in landschap
dinsdag, 11 november
3
Woongebouw voor gezinnen biedt ruime corridor en gekoppelde terrassen met glijbaan
woensdag, 12 november
4
MVRDV ontwerpt bolvormig sportcomplex in Albanese hoofdstad Tirana
maandag, 10 november
5
Groningers kiezen nieuwe invulling voor plek gesloopte parkeergarage in stadscentrum
dinsdag, 11 november
Gerelateerde nieuwsberichten
Koekoek brengt sfeer en daglicht in Amsterdamse benedenwoning
10 december 2018
Open Kaart schept woonruimte door samenvoeging appartementen
24 oktober 2019
Metamorfose voor jaren 60-bungalow
26 november 2018
Kantoorinterieur met duurzame materialen en meubels op maat
25 februari 2020
Woninguitbreiding met contrast en harmonie
28 november 2016
Bosvilla met een bijna mathematische opbouw
27 september 2021
Nieuwe woonkeuken verbindt woning met tuin
14 november 2022
Een ongepolijste loft in een oude buurtgarage
15 juni 2023
Een houten villa genesteld in het bos
21 november 2024
Herindeling van een vooroorlogse woning creëert een eigentijdse loft
30 april 2024
Kalme en minimalistische gymzaalwoning voor gezin
25 juni 2019
Architecten herontwerpen hun eigen rijtjeshuis
30 april 2020
Meubelstukken delen de loft in
20 oktober 2020
Strakke schuurwoning in het open landschap
11 februari 2021
Kevin Veenhuizen Architects voorziet woonhuis van zigzaggende uitbreiding
20 januari 2022
Koekoek brengt sfeer en daglicht in Amsterdamse benedenwoning
10 december 2018
Open Kaart schept woonruimte door samenvoeging appartementen
24 oktober 2019
Metamorfose voor jaren 60-bungalow
26 november 2018
Kantoorinterieur met duurzame materialen en meubels op maat
25 februari 2020
Woninguitbreiding met contrast en harmonie
28 november 2016
Bosvilla met een bijna mathematische opbouw
27 september 2021
Nieuwe woonkeuken verbindt woning met tuin
14 november 2022
Een ongepolijste loft in een oude buurtgarage
15 juni 2023
Een houten villa genesteld in het bos
21 november 2024
Herindeling van een vooroorlogse woning creëert een eigentijdse loft
30 april 2024
Kalme en minimalistische gymzaalwoning voor gezin
25 juni 2019
Architecten herontwerpen hun eigen rijtjeshuis
30 april 2020
Meubelstukken delen de loft in
20 oktober 2020
Strakke schuurwoning in het open landschap
11 februari 2021
Kevin Veenhuizen Architects voorziet woonhuis van zigzaggende uitbreiding
20 januari 2022
Toon alles
Andere nieuwsberichten
Nominaties Zuiderkerkprijs en Geurt Brinkgreve Bokaal 2025 bekend
14 november, 12:17
Voor de eerstgenoemde woningbouwprijs van de gemeente Amsterdam zijn tien projecten genomineerd, de bokaal voor het beste initiatief op het gebied van herontwikkeling, transformatie of renovatie leverde zeven nominaties op.
'Architecten kunnen kwaliteit waarborgen bij splitsen en opdelen rijtjeshuizen'
14 november, 11:14
Om het splitsen en opdelen van rijtjeswoningen van de grond te krijgen, dienen het Rijk en gemeenten de regie te nemen. Architecten kunnen hierbij worden ingeschakeld voor de waarborging van de kwaliteit, aldus een vrijdag verschenen rapport.
MVRDV en Buro Happold ontwerpen nieuw theater in Veenendaal
14 november, 10:23
Voor de vernieuwing van Theater De Lampegiet zijn vijf schetsontwerpen gemaakt. Zowel de inwoners van de stad als de jury hebben daarbij voor het ontwerp van MVRDV en Buro Happold gekozen.
Benthem Crouwel Architects plaatst slotstuk in Paleiskwartier van Den Bosch
13 november, 5:00
Benthem Crouwel Architects heeft het stadsblok Palazzo in het Paleiskwartier van Den Bosch opgeleverd
Zuid-Holland verhoogt budget voor restauratie rijksmonumenten
14 november, 2:08
De provincie Zuid-Holland verhoogt het budget voor de restauratie van rijksmonumenten structureel.
Rapport: natuur kan helpen beschermen tegen stijgende zeespiegel
14 november, 9:24
Natuurlijke oplossingen zoals ruim baan geven aan gebieden met eb en vloed kunnen helpen de Nederlandse kustlijn te beschermen tegen de stijgende zeespiegel.
Deltacommissaris: ga nu al in gesprek over toekomst waterbeheer
13 november, 4:03
Nederland moet nu al kijken welke randvoorwaarden nodig zijn om grote waterbeschermingsprogramma's zoals de Deltawerken in de komende jaren uit te voeren.
Gemeentebestuur wil Brabants dorp Moerdijk laten verdwijnen
13 november, 10:23
Het dorp Moerdijk in Noord-Brabant moet verdwijnen om plaats te maken voor uitbreiding van het bestaande haven- en industrieterrein in die plaats.
Iets minder mensen vertrekken uit de Randstad dan in eerdere jaren
12 november, 10:00
Onder andere omdat er in de Randstad meer kinderen worden geboren, groeit de bevolking daar sneller dan in de gebieden eromheen. Netto vertrokken er afgelopen jaar 14.000 mensen.
Woningen en park op plek van rangeerterrein bij Rotterdamse Kuip
12 november, 9:30
Een rangeerterrein voor treinen tegenover stadion De Kuip in Rotterdam verdwijnt. Op de plek worden woningen en een nieuw station gebouwd. Bovendien moet een park naast het spoor worden uitgebreid.
Ga naar het nieuws-archief
Robert Muis
Redacteur
0
0
0
0
Voor een optimale gebruikservaring plaatst Architectenweb functionele cookies. Wat de verschillende cookies precies doen leggen we uit in een
overzicht
. Cookies van social media kun je optioneel
aanzetten
.
Akkoord
Instellingen
Annuleren
OK
Sluiten
Doorgaan
Inloggen
Maak een gratis persoonlijk account aan
Feedback
Feedback
Wij horen graag jouw feedback. Laat je reactie achter en eventueel jouw e-mail adres.
Reactie
Verstuur