Projecten
Producten
Bedrijven
Vacatures
Agenda
Awards
Podcasts
more_horiz
Videos
Magazine
Thema's
Favorieten
Profiel
Uitloggen
Copyright: Kraal Architecten/Lab-S
Copyright: Kraal Architecten/Lab-S
Copyright: Kraal Architecten/Lab-S
Copyright: Kraal Architecten/Lab-S
Copyright: Kraal Architecten/Lab-S
Copyright: Einde van de tuin. Kraal Architecten/Lab-S
Copyright: Oude situatie. Kraal Architecten/Lab-S
Copyright: Concept. Kraal Architecten/Lab-S
Copyright: Kraal Architecten/Lab-S
Copyright: Kraal Architecten/Lab-S
Copyright: Kraal Architecten/Lab-S
Copyright: Kraal Architecten/Lab-S
Copyright: Kraal Architecten/Lab-S
Copyright: Kraal Architecten/Lab-S
Copyright: Kraal Architecten/Lab-S
Copyright: Kraal Architecten/Lab-S
Woninguitbreiding met contrast en harmonie
28 november 2016, 15:01
Een naoorlogse twee-onder-een-kapwoning in Zeist is ingrijpend verbouwd naar ontwerp van
Kraal Architecten
en
Lab-S
. De woning is opnieuw ingedeeld en voorzien van een contrasterende uitbouw die verrassend harmonieert met de omgeving.
De oorspronkelijke naoorlogse woning heeft een gemetselde gevel met een pannenkap. De kwaliteit aan de achterzijde is met name gelegen in de grote tuin, die eindigt in een bosschage met hoge bomen. Aan deze zijde van de woning hebben Kraal Architecten en Lab-S een volume toegevoegd.
De houten gevelafwerking van de uitbouw versterkt de relatie tussen de oorspronkelijke woning en het groen. Tegelijkertijd zorgt de materialisatie voor een helder contrast tussen oud en nieuw.
Extra ruimte
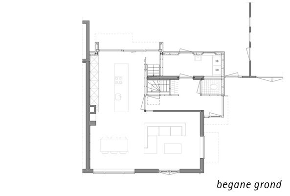
In het programma van eisen formuleerden de opdrachtgevers de wens om op iedere verdieping ruimte toe te voegen. Op de begane grond is een nieuwe hoofdentree gemaakt. Deze opent zich naar de straat met veel glas en een uitnodigende luifel boven de voordeur.
Naast het extra volume van deze entree is op de begane grond ruimte aan de woning toegevoegd in de vorm van een berging. In contrast met de open en uitnodigende voordeur, verraadt alleen de deurklink de aanwezigheid van een toegangsdeur naar de berging achter de houten geveldelen.
Verticale uitbreiding
Aan de achterzijde zijn tevens een keuken, slaapkamer en studeerkamer toegevoegd. Deze drie woonprogramma’s zijn boven elkaar gesitueerd en door een nieuw trappenhuis met elkaar verbonden. De clustering resulteert in één verticale uitbreiding aan de achterzijde.
De beide architectenbureaus hebben op die manier bovendien nog een deel van de oude achtergevel en kap zichtbaar gehouden. Grote ramen bieden vanuit de ruimtes in dit deel van de uitbreiding optimaal zicht op de tuin. Doordat deze vensters niet in één gevelvlak liggen, maar juist ten opzichte van elkaar verspringen, zijn de aparte kamers als zodanig herkenbaar.
Trefwoorden
woningbouw
uitbreiding woonhuis
zeist
verbouwing woning
lab-s
kraal architecten
Best gelezen
1
Duitsland slokt Nederlandse bouwkracht op
maandag, 13 oktober
2
David Chipperfield landt in Antwerps Nieuw Zuid
woensdag, 15 oktober
3
Kantoorgebouw door Arthur Staal aan de Schinkel gerenoveerd en uitgebreid
woensdag, 15 oktober
4
Gezicht van de tijd
woensdag, 15 oktober
5
Nieuw shortstayhotel door Houben / Van Mierlo in stationsgebied Den Bosch
maandag, 13 oktober
Gerelateerde nieuwsberichten
Nieuwe woonkeuken verbindt woning met tuin
14 november 2022
Lab-S verbouwt jaren 30-villa in relatie met natuur
13 januari
Woninguitbreiding onder een vlinderdak
28 oktober 2019
Open Kaart schept woonruimte door samenvoeging appartementen
24 oktober 2019
Ingetogen woning als rustpunt aan de bosrand
29 november 2022
Uitbreiding als verbinding tussen binnen en buiten
11 juli 2017
Een zee van ruimte achter een historische gevel
26 september 2017
Contrastrijke uitbreiding door Kraal Architecten
23 augustus 2017
Ruimtelijke woning voor een smal perceel
1 november 2016
Uitbreiding bungalow uit het zicht
11 augustus 2015
Duurzame opbouw voor vakantiehuis
14 juli 2015
Huis van Rolf is huis vol hergebruik
11 oktober 2016
Loftwoning met verrassende doorzichten
21 maart 2016
Veertien houten woningen in Kerckebosch Zeist vormen 'buurtschap'
23 juni 2021
Nieuwe woonkeuken verbindt woning met tuin
14 november 2022
Lab-S verbouwt jaren 30-villa in relatie met natuur
13 januari
Woninguitbreiding onder een vlinderdak
28 oktober 2019
Open Kaart schept woonruimte door samenvoeging appartementen
24 oktober 2019
Ingetogen woning als rustpunt aan de bosrand
29 november 2022
Uitbreiding als verbinding tussen binnen en buiten
11 juli 2017
Een zee van ruimte achter een historische gevel
26 september 2017
Contrastrijke uitbreiding door Kraal Architecten
23 augustus 2017
Ruimtelijke woning voor een smal perceel
1 november 2016
Uitbreiding bungalow uit het zicht
11 augustus 2015
Duurzame opbouw voor vakantiehuis
14 juli 2015
Huis van Rolf is huis vol hergebruik
11 oktober 2016
Loftwoning met verrassende doorzichten
21 maart 2016
Veertien houten woningen in Kerckebosch Zeist vormen 'buurtschap'
23 juni 2021
Toon alles
Andere nieuwsberichten
CPO meer&deel grote winnaar Dirk Roosenburgprijs 2025
17 oktober, 3:37
Het project naar ontwerp van Tom van Tuijn Stedenbouw, Werkstatt en Volle Grond kreeg zowel de vakjury- als publieksprijs.
Gedetailleerde 3D-geprinte maquette toont ruimtelijke ontwikkeling Amsterdam
17 oktober, 2:56
In het WTC op de Amsterdamse Zuidas is een gedetailleerde maquette van de stad Amsterdam geplaatst. In de 3D-geprinte en interactieve maquette zijn bekende plekken en gebouwen te zien, maar ook gebieden die tussen nu en 2030 worden ontwikkeld.
Woongebouwen door VdpArchitecten vormen nieuwe 'voorkant' Groningse Oosterparkwijk
17 oktober, 1:48
Aan de Oosterhamrikkade in Groningen is dit jaar woongebouw Talent opgeleverd. Het complex, dat net als het naastgelegen gebouw Karaat is ontworpen door VdpArchitecten, bestaat uit 108 middeldure huurwoningen.
Het Cultuurfonds kent subsidie toe aan biobased paviljoen voor Amsterdamse Bos ontworpen door Space Encounters
17 oktober, 11:07
Het Cultuurfonds stelt € 100.000 beschikbaar voor het Amsterdamse Bosnest. Het paviljoen is ontworpen door Space Encounters en wordt volledig gebouwd met biobased materialen uit het Amsterdamse Bos.
Sweco neemt groot Belgisch architectenbureau over
17 oktober, 4:23
Het 150 medewerkers tellende assar architects ontwierp onder meer het nieuwe hoofdkantoor van de NAVO in Brussel.
IMF: geen forse huizenprijsdaling bij einde hypotheekrenteaftrek
17 oktober, 12:14
Een mogelijke afschaffing van de hypotheekrenteaftrek in Nederland heeft waarschijnlijk een prijsremmende werking, stelt de Nederlandse bestuurder van het IMF Marnix van Rij
EIB: 75.000 nieuwe voltijdse arbeidskrachten nodig in de bouw
17 oktober, 10:11
Volgens het instituut wordt het tekort aan vakmensen in de bouw steeds groter, vooral omdat de energietransitie een enorme extra vraag naar arbeid creëert.
Groningen worstelt met afronding dertig kilometer lang fietspad naar Assen
16 oktober, 3:25
Een ruime meerderheid van de Groningse Statenleden wil dat er bij het project meer aandacht komt voor de veiligheid van vrouwen.
PBL: minimaal 150.000 hectare meer natuur nodig in 2050
16 oktober, 11:37
Het planbureau heeft twee mogelijke oplossingsrichtingen doorgerekend om de huidige Europese doelen voor klimaat, natuur en waterkwaliteit te halen.
Afaina de Jong wint Amsterdamprijs voor de Kunst 2025
15 oktober, 3:19
De architect en oprichter van Afarai won de belangrijkste kunstprijs van de hoofdstad in de categorie Bewezen Kwaliteit.
Ga naar het nieuws-archief
0
0
0
0
Voor een optimale gebruikservaring plaatst Architectenweb functionele cookies. Wat de verschillende cookies precies doen leggen we uit in een
overzicht
. Cookies van social media kun je optioneel
aanzetten
.
Akkoord
Instellingen
Annuleren
OK
Sluiten
Doorgaan
Inloggen
Maak een gratis persoonlijk account aan
Feedback
Feedback
Wij horen graag jouw feedback. Laat je reactie achter en eventueel jouw e-mail adres.
Reactie
Verstuur