Projecten
Producten
Bedrijven
Vacatures
Agenda
Awards
Podcasts
more_horiz
Videos
Magazine
Favorieten
Profiel
Uitloggen
Abonneer je nu op onze nieuwsbrieven!
Abonneren
Nee, bedankt
Ja, denk met me mee rond de
materialisering van mijn project
De achtergevel heeft nieuwe terrassen op elke verdieping
Copyright: Maurice Mikkers
De gerenoveerde voorgevel van pand 332-334 met nieuwe zolderramen
Copyright: Maurice Mikkers
De nieuwe begane grond strekt zich uit van voorgevel tot nieuwe binnentuin
Copyright: Maurice Mikkers
Nieuwe binnentuin met trap naar eerste terras
Copyright: Maurice Mikkers
Woonkamer op de eerste verdieping met zicht op de straat
Copyright: Maurice Mikkers
Keuken op de eerste verdieping met zicht naar de woonkamer
Copyright: Maurice Mikkers
Keuken met gesloten schuifwand
Copyright: Maurice Mikkers
Trappenhuis
Copyright: Maurice Mikkers
Slaapkamer op tweede verdieping aan achterzijde
Copyright: Maurice Mikkers
Nieuwe mezzanine op de voormalige zolder
Copyright: Maurice Mikkers
Mezzanine
Copyright: Maurice Mikkers
Badkamer
Copyright: Maurice Mikkers
Achtergevel
Copyright: Maurice Mikkers
Copyright: Bláha Architecture + Design
Straatgevel
Copyright: Bláha Architecture + Design
Achtergevel
Copyright: Bláha Architecture + Design
Langsdoorsnede
Copyright: Bláha Architecture + Design
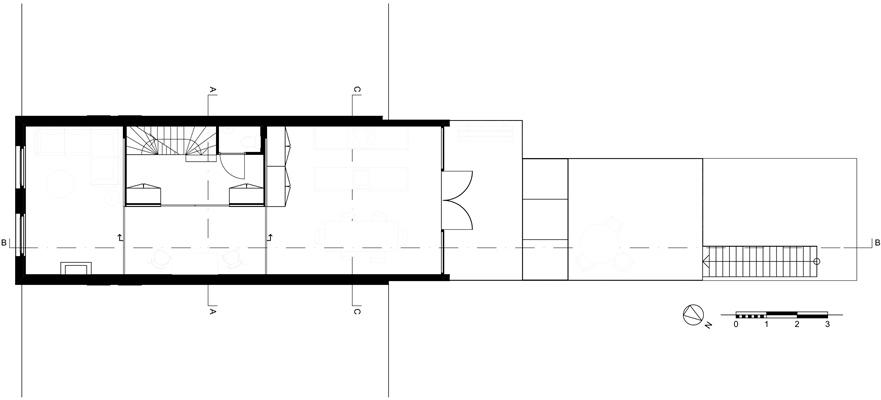
Begane-grond
Copyright: Bláha Architecture + Design
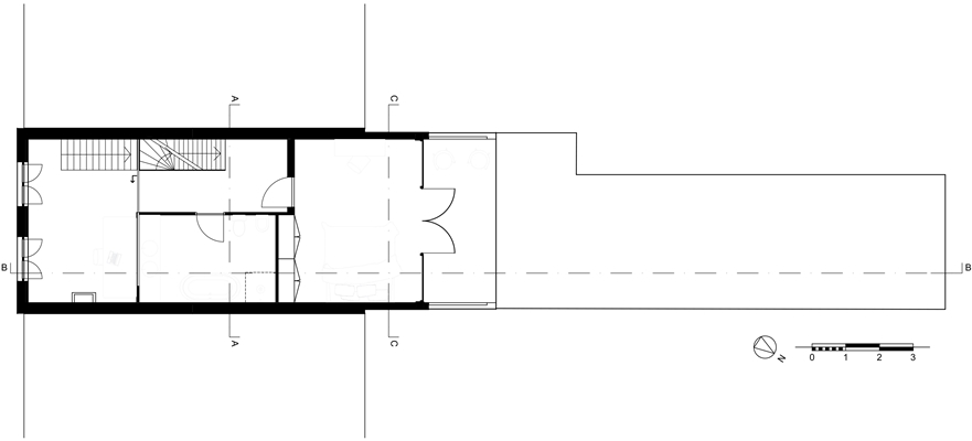
Eerste-verdieping
Copyright: Bláha Architecture + Design
Tweede-verdieping
Copyright: Bláha Architecture + Design
Derde-verdieping
Copyright: Bláha Architecture + Design
Een zee van ruimte achter een historische gevel
26 september 2017, 12:02
De straatgevel van een eind-negentiende-eeuws herenhuis in de Haagse Archipelbuurt is door
Bláha Architecture + Design
zorgvuldig gerenoveerd. Niets aan de gevel doet vermoeden dat het architectenbureau daarachter een heldere, moderne woning heeft gerealiseerd.
Het jonge bureau Bláha Architecture + Design kreeg in 2014 de opdracht om het pand uit 1880 aan te pakken. De private investeerder wilde de woning als geheel kunnen verhuren aan een gezin, of als twee appartementen met elke een eigen opgang aan jonge hoogopgeleide werkenden.
Om een aantrekkelijk en royaal woonoppervlak te creëren heeft Bláha een aantal grote ingrepen doorgevoerd. Zo is de zolderruimte verbouwd tot slaapkamer en is het pand op alle verdiepingen aan de achterzijde met 2,5 meter verlengd. Er is een moderne achtergevel gerealiseerd en een binnentuin toegevoegd.
Contrast
Bij de renovatie van de voorgevel heeft het architectenbureau zoveel mogelijk het oorspronkelijke ontwerp gevolgd, met bijvoorbeeld een voordeur naast de dubbele garagedeur en twee ramen op elke verdieping. De enige aanpassing is de toevoeging van twee dakkapellen bij de voormalige zolderruimte. De gevel suggereert een historisch interieur, inclusief kleine kamers.
Het interieur is echter compleet verbouwd. Slechts een handvol bestaande elementen zijn bewaard gebleven, mede als gevolg van de slechte staat waarin het pand zich bevond. Bláha heeft ervoor gekozen om geen replica’s van verwijderde elementen terug te plaatsen, maar het interieur te moderniseren en een contrast te creëren.
Het interieur biedt uitgestrekte ruimtes die baden in daglicht, leggen de architecten uit. De ruimtes kenmerken zich door heldere lijnen, op verzorgde wijze verwerkte bergruimtes en een rustig palet van wit- en grijstinten en natuurlijke materialen. De gekozen materialen en elementen zijn hoogwaardig en op maat gemaakt.
Trappen
De begane grond is omgetoverd tot een ‘grote loft’ met een oppervlak van 102 m
2
. Aan de achterzijde van de kavel, die voorheen volledig bebouwd was, heeft het architectenbureau een kleine ommuurde binnentuin gecreëerd. Hier voert een stalen trap naar het terras. De glazen pui zorgt voor lichtinval.
De begane grond kan als afzonderlijke woon- en werkstudio worden verhuurd. Ook kan de ruimte als garage of als werkruimte worden gebruikt door bewoners die het hele pand willen huren, aldus Bláha.
Nieuwe kern
Centraal aan de noordelijke woningscheidende muur heeft Bláha een nieuwe kern geplaatst. Een ‘trappenhuis’ verbindt de verdiepingen en biedt op de eerste verdieping ook ruimte aan kasten en toilet. De trapleuningen en balustrades in het interieur zijn overigens wit uitgevoerd, als contrast met de zwarte stalen trap en balustrades buiten.
Op de eerste verdieping geeft de kern toegang tot de woonruimte, met een woonkamer aan de voorzijde en een keuken annex eetkamer aan de achterzijde van het pand. De twee ruimtes kunnen, als er behoefte bestaat aan intiemere ruimtes, worden gescheiden door schuifwanden aan weerszijden van de kern.
De keuken kenmerkt zich door een wandmeubel en een eiland uit Carrara-marmer, een materiaal dat terugkeert bij de haard en in de badkamer en toiletten. De eetkeuken grenst aan het terras, gescheiden door een verdiepingshoge glazen pui.
Trapsgewijze terrassen
De twee bovenste verdiepingen bieden plaats aan de slaapvertrekken, de badkamer en een kamer die bijvoorbeeld als studeerkamer of kleedruimte gebruikt kan worden. Ook deze verdiepingen zijn voorzien van glazen puien en riante terrassen. Daarmee is de achterzijde getransformeerd naar een trapsgewijze en transparante uitbreiding van de woning.
Trefwoorden
woning
bláha architecture + design
renovatie
interieur
den haag
Best gelezen
1
Architect Cees Dam op 93-jarige leeftijd overleden
dinsdag, 14 april
2
Powerhouse Company wint aanbesteding voor verbouwing Vista College Maastricht
dinsdag, 14 april
3
Tien bureaus geselecteerd voor tweede ronde nieuwbouw De Meervaart
woensdag, 15 april
4
Voormalig hoofdkantoor Ferro in M4H verbouwd tot bedrijfsverzamelgebouw
woensdag, 15 april
5
QWA heeft A16 boven Rotterdam eigen identiteit gegeven
maandag, 13 april
Gerelateerde nieuwsberichten
UXUS brengt Italiaanse vleug in 17e-eeuws grachtenpand
12 mei 2022
Strak en modern interieur in historische hofwoning
21 april 2020
FELD voorziet karakteristieke ruimte van functionele cocon
31 mei 2018
Nieuwe Architecten schept leefruimte op het dak
22 februari 2018
Uitbreiding als verbinding tussen binnen en buiten
11 juli 2017
Woning met buitenruimte en privacy op smalle kavel
10 mei 2017
Woninguitbreiding met contrast en harmonie
28 november 2016
Woning met lichtdoorlatende gevel
2 november 2016
Ruimtelijke woning voor een smal perceel
1 november 2016
Uitbreiding bungalow uit het zicht
11 augustus 2015
UXUS brengt Italiaanse vleug in 17e-eeuws grachtenpand
12 mei 2022
Strak en modern interieur in historische hofwoning
21 april 2020
FELD voorziet karakteristieke ruimte van functionele cocon
31 mei 2018
Nieuwe Architecten schept leefruimte op het dak
22 februari 2018
Uitbreiding als verbinding tussen binnen en buiten
11 juli 2017
Woning met buitenruimte en privacy op smalle kavel
10 mei 2017
Woninguitbreiding met contrast en harmonie
28 november 2016
Woning met lichtdoorlatende gevel
2 november 2016
Ruimtelijke woning voor een smal perceel
1 november 2016
Uitbreiding bungalow uit het zicht
11 augustus 2015
Toon alles
Andere nieuwsberichten
OMA gebruikt bestaand gebouw als canvas bij renovatie Edo-Tokyo Museum
Gisteren, 15:55
Na een renovatie van bijna vier jaar is het Edo-Tokyo Museum in de Japanse hoofdstad Tokio heropend. OMA nam het uit 1993 stammende gebouw, dat is ontworpen door de Metabolist Kiyonori Kikutake, onder handen.
Winnaars verkiezing Beste Bossche Gebouw 2020–2025 bekend
Gisteren, 14:16
De vakjury en het publiek wezen elk in drie categorieën een winnaar aan. Daarnaast kende vakjury nog een wildcard toe aan een project.
Appartementengebouwen door MIX architectuur vormen sluitstuk Noorderhaven Zutphen
Gisteren, 12:29
In de nieuwe buurt Noorderhaven in Zutphen zijn drie appartementengebouwen naar ontwerp van MIX architectuur opgeleverd. De gebouwen met in totaal tachtig woningen vormen het sluitstuk van de gebiedsontwikkeling.
EUmies Award naar renovatie congrescentrum in Charleroi en tijdelijke ruimtes Sloveens theater
Gisteren, 10:54
Donderdag zijn de winnaars van de EUmies Award 2026 bekendgemaakt. De renovatie van het congrescentrum Charleroi Palais des Expositions won in de belangrijkste categorie architectuur.
Woningbouwzaken krijgen langer voorrang bij Raad van State
Gisteren, 16:49
Om het huizentekort tegen te gaan, blijft de Raad van State woningbouwzaken met voorrang behandelen.
Inspectie positief over verbetering sociale veiligheid TU Delft
Gisteren, 11:36
De TU Delft heeft aanzienlijke stappen gezet om de sociale veiligheid voor medewerkers te verbeteren.
NVM vreest minder nieuwbouw door veranderende voorrang stroomnet
Gisteren, 09:23
Bouwers kunnen, door onzekerheid over welke projecten straks nog maatschappelijke prioriteit krijgen in een bepaalde regio, besluiten om minder nieuwe huizen te bouwen.
Architecten voor restauratie en herbestemming Rivièrahal gekozen
16 april, 12:00
Voor de grootscheepse restauratie en herbestemming van de Rivièrahal in de Rotterdamse Diergaarde Blijdorp zijn Mecanoo en BiermanHenket geselecteerd.
Bewoners aardbevingsgebied Groningen blijven kritisch op herstel
16 april, 10:34
Door de complexiteit en onzekerheid van het jarenlange proces ervaren mensen stress en frustratie.
ING: optoppen en splitsen van woningen steeds minder haalbaar
15 april, 1:22
Het kabinet-Jetten gaat naar verwachting het doel van 15.000 extra woningen per jaar uit verbouwingen niet halen, stelt ING.
Ga naar het nieuws-archief
Robert Muis
Redacteur
2
0
0
0
Voor een optimale gebruikservaring plaatst Architectenweb functionele cookies. Wat de verschillende cookies precies doen leggen we uit in een
overzicht
. Cookies van social media kun je optioneel
aanzetten
.
Akkoord
Instellingen
Annuleren
OK
Sluiten
Doorgaan
Inloggen
Maak een gratis persoonlijk account aan
Feedback
Feedback
Wij horen graag jouw feedback. Laat je reactie achter en eventueel jouw e-mail adres.
Reactie
Verstuur