Projecten
Producten
Bedrijven
Vacatures
Agenda
Awards
Podcasts
more_horiz
Videos
Magazine
Favorieten
Profiel
Uitloggen
Abonneer je nu op onze nieuwsbrieven!
Abonneren
Nee, bedankt
Ja, denk met me mee rond de
materialisering van mijn project
Copyright: Luuk Kramer
Copyright: Luuk Kramer
Copyright: Luuk Kramer
Copyright: Luuk Kramer
Copyright: Luuk Kramer
Copyright: Luuk Kramer
Copyright: Luuk Kramer
Copyright: Luuk Kramer
Copyright: Luuk Kramer
Copyright: Luuk Kramer
Copyright: Luuk Kramer
Copyright: Luuk Kramer
Copyright: Luuk Kramer
Copyright: Luuk Kramer
Copyright: Luuk Kramer
Copyright: Luuk Kramer
Copyright: Luuk Kramer
Copyright: Luuk Kramer
Copyright: Luuk Kramer
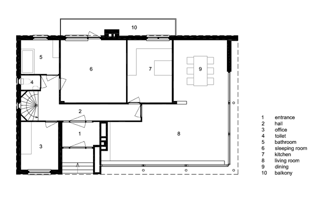
Copyright: Begane grond, nieuwe situatie. ara | antonia reif architectuur
Copyright: Begane grond, oude situatie. ara | antonia reif architectuur
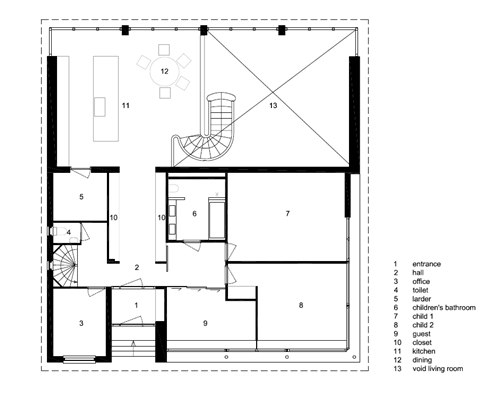
Copyright: Eerste verdieping, nieuwe situatie. ara | antonia reif architectuur
Copyright: Eerste verdieping, oude situatie. ara | antonia reif architectuur
Copyright: Doorsnede oude en nieuwe situatie. ara | antonia reif architectuur
Uitbreiding bungalow uit het zicht
11 augustus 2015, 17:39
Een dijkhuis aan de rand van Rotterdam bood de nieuwe bewoners - een gezin met twee kinderen - te weinig ruimte. Opdracht aan
ara | antonia reif architectuur
was om de kleine bungalow uit de jaren '60 te verbouwen en uit te breiden. Door de ingreep van architect Antonia Reif opent het huis zich nu genereus naar de tuin.
De bungalow was oorspronkelijk georiënteerd op de weg en had een vrijwel gesloten gevel aan de achterzijde. Reif heeft het huis aan de achterzijde uitgebreid, waar nu een twee verdiepingen hoge woonkamer direct aan de tuin ligt.
Relatie binnen en buiten
Aan de achterzijde kan de grote pui met vouwdeuren helemaal worden geopend naar het terras en de tuin. Deze ingreep verschaft de woning ruimtelijkheid en zorgt voor een relatie tussen binnen en buiten.
De nieuwe entree in het bestaande bouwdeel staat via een hal in directe verbinding met de keuken. Ook hierdoor is een ruimtelijkheid ontstaan en worden het oude en nieuwe deel van de woning naadloos met elkaar verbonden. Omgeven door de glazen achterpui trekt de keuken, in de woorden van Reif "de tuin als het ware naar binnen".
Wenteltrap
Naast de keuken en de entreehal biedt het oorspronkelijke huis drie kamers en een badkamer voor de kinderen, als ook een studeerkamer voor de ouders. In het nieuwe deel verbindt een wenteltrap de keuken met de woonkamer.
De ouderlijke slaapkamer bevindt zich achter een multifunctionele meubel, dat bergruimte biedt aan kleding, boeken en speelgoed. Tevens is hierin een kitchenette verwerkt. Als tijdens warme dagen de terrasdeuren openstaan kunnen de bewoners hier hun drankje en hapje halen.
De badkamer van de ouders, voorzien van vrijstaand bad en sauna, ligt in het bestaande huis en is bereikbaar vanuit de slaapkamer via een tweede trap.
Terughoudend
Door de situering van het huis aan de dijk, lijkt de verbouwing vanaf de straatzijde terughoudend. Aan de andere zijde heeft de Rotterdamse studio ara | antonia reif architectuur de smalle en donkere bungalow echter getransformeerd tot een ruime en lichte villa.
Trefwoorden
uitbreiding
interieur
woonhuis
rotterdam
antonia reif architectuur
villa
ara antonia reif architectuur
bungalow
Best gelezen
1
Woontoren Front door Monadnock wint tiende Architectuurprijs Nijmegen
donderdag, 9 april
2
Architect Cees Dam op 93-jarige leeftijd overleden
dinsdag, 14 april
3
SeARCH en Heutink Groep winnen tender voor woongebouw Sluisbuurt
vrijdag, 10 april
4
Powerhouse Company wint aanbesteding voor verbouwing Vista College Maastricht
dinsdag, 14 april
5
Padelhal vormt nieuwe kop van sportcomplex in Bussum
donderdag, 9 april
Gerelateerde nieuwsberichten
Bungalow met ingelijst polderlandschap
14 augustus 2018
Een zee van ruimte achter een historische gevel
26 september 2017
Woninguitbreiding met contrast en harmonie
28 november 2016
Stadsvilla met ‘gechipperde’ gevel
15 maart 2016
Woning gaat op in de bosrand
17 november 2015
Drie nominaties 'jonge' Abe Bonnema Prijs
24 oktober 2014
Hip hostel met lobby voor de buurt
20 oktober 2014
Vlees en rauwheid in nieuwe bar Witte de With
21 maart 2014
Bungalow met ingelijst polderlandschap
14 augustus 2018
Een zee van ruimte achter een historische gevel
26 september 2017
Woninguitbreiding met contrast en harmonie
28 november 2016
Stadsvilla met ‘gechipperde’ gevel
15 maart 2016
Woning gaat op in de bosrand
17 november 2015
Drie nominaties 'jonge' Abe Bonnema Prijs
24 oktober 2014
Hip hostel met lobby voor de buurt
20 oktober 2014
Vlees en rauwheid in nieuwe bar Witte de With
21 maart 2014
Toon alles
Andere nieuwsberichten
Jury maakt shortlist Prix de Rome Architectuur 2026 bekend
1 uur geleden
Dérive (Hedwig van der Linden and Kevin Westerveld), Maarten Plomp en Iris van der Wal, Namelok (Wiegert Ambagts en Kaj van Boheemen) en Slodka x Zatta (Izabela Slodka en Federica Zatta) zijn de kanshebbers voor deze editie van de prijs.
Woontoren Front vervult meerdere rollen in Hart van de Waalsprong
Gisteren, 16:31
Vorige week werd de door Monadnock ontworpen woontoren Front onderscheiden met de Architectuurprijs Nijmegen. Het achthoekige gebouw in Lent markeert het centrum van de stadsuitbreiding Hart van de Waalsprong.
Bijzonder erfgoed Fundatie van Renswoude Utrecht gered
Gisteren, 15:29
Hendrick de Keyser Monumenten heeft de Fundatie van Renswoude in Utrecht, een bijzonder goed bewaard ensemble uit de 18e eeuw, verworven. Hiermee blijven gebouw, historisch interieur en collectie als een geheel behouden.
Studioninedots – Albert Herder vertrekt, Wouter Hermanns en Stijn de Jongh treden toe
Gisteren, 14:51
De medeoprichter en partner van het bureau gaat verder als zelfstandig adviseur en supervisor. Wouter Hermanns en Stijn de Jongh zijn juist tot partner benoemd bij Studioninedots.
ING: optoppen en splitsen van woningen steeds minder haalbaar
Gisteren, 13:22
Het kabinet-Jetten gaat naar verwachting het doel van 15.000 extra woningen per jaar uit verbouwingen niet halen, stelt ING.
Geen rechtszaak over subsidie ministerie aan Van Gogh Museum
Gisteren, 10:02
De zaak draait om geld dat het museum nodig zegt te hebben voor een renovatie.
AFM: funderingsproblemen bij bijna 220.000 woningen
14 april, 1:25
De huizen van bijna een half miljoen woningeigenaren hebben een hoog risico op funderingsproblemen of een mogelijke kwetsbare fundering.
Oprichter omgevallen vastgoedconcern Evergrande bekent schuld
14 april, 9:17
Evergrande was ooit de grootste projectontwikkelaar van China, maar kwam in de problemen toen het zijn schulden niet kon terugbetalen.
Grote en kleine gemeenten balen van bouwregels Zuid-Holland
10 april, 4:31
Grote en kleine gemeenten in Zuid-Holland hebben hun zorgen geuit over nieuwe regels van de provincie, die volgens hen de woningbouw belemmeren.
Twijfels in Zuid-Holland over halen van doelen landelijk gebied
10 april, 12:18
De meeste partijen in de Zuid-Hollandse politiek hebben twijfels over de plannen die in zestien deelgebieden zijn gemaakt voor de aanpak van het landelijk gebied.
Ga naar het nieuws-archief
0
0
0
0
Voor een optimale gebruikservaring plaatst Architectenweb functionele cookies. Wat de verschillende cookies precies doen leggen we uit in een
overzicht
. Cookies van social media kun je optioneel
aanzetten
.
Akkoord
Instellingen
Annuleren
OK
Sluiten
Doorgaan
Inloggen
Maak een gratis persoonlijk account aan
Feedback
Feedback
Wij horen graag jouw feedback. Laat je reactie achter en eventueel jouw e-mail adres.
Reactie
Verstuur