Projecten
Producten
Bedrijven
Vacatures
Agenda
Awards
Podcasts
more_horiz
Videos
Magazine
Favorieten
Profiel
Uitloggen
Abonneer je nu op onze nieuwsbrieven!
Abonneren
Nee, bedankt
Ja, denk met me mee rond de
materialisering van mijn project
Copyright: Tim Versteegh
Copyright: Tim Versteegh
Copyright: Tim Versteegh
Copyright: Tim Versteegh
Copyright: Tim Versteegh
Copyright: Tim Versteegh
Copyright: Tim Versteegh
Copyright: Tim Versteegh
Copyright: Tim Versteegh
Copyright: Tim Versteegh
Copyright: Tim Versteegh
Copyright: Tim Versteegh
Copyright: Tim Versteegh
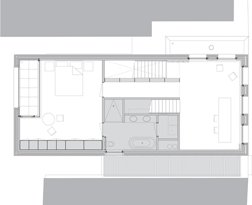
Begane grond. Tekening: Tim Versteegh Architect
Eerste verdieping. Tekening: Tim Versteegh Architect
Zolder. Tekening: Tim Versteegh Architect
Stadsvilla met ‘gechipperde’ gevel
15 maart 2016, 11:04
Aan de stadsgracht in het centrum van Zwolle heeft
Tim Versteegh Architect
opvallende nieuwbouw in een historische context ingepast. Voor een particuliere opdrachtgever ontwierp Versteegh een villa met bijzonder metselwerk.
De villa betreft een herbouwopgave in de wijk aan het Ter Pelkwijkpark. Versteegh heeft bij het ontwerp van de woning gestreefd naar een zorgvuldige inpassing in en toevoeging aan de bestaande context, zo legt de architect uit.
In gebouwvorm, schaal, opbouw en materiaalgebruik sluit de villa aan op de omgeving. Het ritme van ramen in de straatgevel is een voortzetting van de omliggende panden. De staande en liggende elementen maken de gevel zelfs klassiek in opzet.
Abstract met textuur
De toevoeging aan de context wordt gevormd door de eigentijdse detaillering en het abstracte karakter van het ontwerp. “Het geheel is zo zuiver mogelijk uitgevoerd”, legt Versteegh uit. ”Geen dilataties, geen zichtbare hemelwaterafvoeren of zonwering, et cetera.” Een belangrijke bijdrage aan de abstrahering levert de ‘gechipperde’ gevel.
Het begrip ‘chipperen’ is door Daas Baksteen geïntroduceerd, verwijzend naar een techniek die David Chipperfield heeft toegepast bij het Neues Museum en de galerie Am Kupfergraben, beide in Berlijn. Feitelijk is het een oude techniek, waarbij de muur ruw wordt gemetseld en vervolgens met mortel afgewerkt. De metselstructuur – en op veel plaatsen de steen zelf – blijft zichtbaar.
Deze techniek geeft de suggestie dat de woning als het ware uit één stuk is gehouwen. Het licht geeft de woning als gevolg van de textuur en de kleuren van de stenen steeds een andere verschijning. Versteegh heeft de ‘gechipperde’ gevel doorgezet in de gang die vanaf de entree naar de achterzijde van het huis loopt.
Van openbaar naar privé
De woning is een aaneenschakeling van kamers en volgt een route van openbaar naar privé, grotendeels zonder deuren. De route loopt van de straat naar de gracht en weer terug, zo legt de architect uit.
Rechts naast de entree ligt de keuken, als eerste ontmoetingsplek in het huis. Aansluitend ligt de eetkamer-bibliotheek, een intieme kamer zonder uitzicht en gevuld met boeken en kunst. Indirect licht valt binnen via de smalle met glas overkapte entreeruimte.
Vervolgens loopt de route naar de woonkamer, waar de grote pui zicht geeft op het water. Vanuit deze ruimte leidt de trap naar de eerste verdieping, terug naar de straatzijde waar de studeerkamer is gelegen.
De trapsparing is gemaakt over twee verdiepingen en fungeert als 'lichtschacht', midden in de woning. Vanuit de studeerkamer volgen de gang en de trap naar de slaapkamers. Beide leiden langs de lichtschacht en zijn bedoeld als overgang naar de ruimtes die meest privé zijn: de slaapkamers. In de sequentie van leefruimten is de slaapkamer de eerste kamer met een deur.
Uitzicht en daglicht
Voor elke kamer heeft Versteegh de toepassing en verhouding van daglicht, uitzicht en geborgenheid afgewogen in overeenstemming met het gebruik. Het daglicht in het hart van de woning geeft een extra dimensie, aldus de architect.
Om de steeds veranderende lichtinval tot zijn recht te laten komen, is het materiaalgebruik gereduceerd tot stucwerk, bamboe voor de kasten en vloeren en gietvloeren in de badkamers en keuken.
Vanuit de plattegrond gezien, zo legt Versteegh tot slot uit, fungeert de straatgevel met terugliggende ramen als filter. De gevel aan de grachtzijde daarentegen is op zo’n wijze voorzien van openingen dat het uitzicht en de lichtinval optimaal zijn.
Trefwoorden
gevel
woning
stadsvilla
david chipperfield
zwolle
tim versteegh architect
villa
Best gelezen
1
Woontoren Front door Monadnock wint tiende Architectuurprijs Nijmegen
donderdag, 9 april
2
Spoorwegverleden inspireert ontwerp woonblok Wisselspoor 10 in Utrecht
woensdag, 8 april
3
Rotterdam mag woningen gaan bouwen aan de Parkhaven
woensdag, 8 april
4
KOW wint met Marker Woods tender voor nieuwe wijk Eschmarkerveld
woensdag, 8 april
5
RED Company vraagt vergunning aan voor productie- en onderzoeksfaciliteit Lilly
dinsdag, 7 april
Gerelateerde nieuwsberichten
Open en 'warme' villa in duinlandschap
25 september 2017
Ruimtelijke woning voor een smal perceel
1 november 2016
Zwolle krijgt tijdelijke onzichtbare brug
20 juni 2016
Loftwoning met verrassende doorzichten
21 maart 2016
Villa Schoorl is een schakeling van volumes
3 maart 2016
Bewoners betrekken duurzame villa van LIAG
16 november 2015
Oud tolhuis met krachtige uitbreiding
21 oktober 2015
Uitbreiding bungalow uit het zicht
11 augustus 2015
Open en 'warme' villa in duinlandschap
25 september 2017
Ruimtelijke woning voor een smal perceel
1 november 2016
Zwolle krijgt tijdelijke onzichtbare brug
20 juni 2016
Loftwoning met verrassende doorzichten
21 maart 2016
Villa Schoorl is een schakeling van volumes
3 maart 2016
Bewoners betrekken duurzame villa van LIAG
16 november 2015
Oud tolhuis met krachtige uitbreiding
21 oktober 2015
Uitbreiding bungalow uit het zicht
11 augustus 2015
Toon alles
Andere nieuwsberichten
Restauratie Atlasbeeld op dak Koninklijk Paleis Amsterdam afgerond
10 april, 3:38
Het beeld op het fronton van het paleis was in juli van zijn plek gehaald voor een uitgebreide onderhoudsbeurt in Antwerpen.
Nieuw zitgebied Lounge 2 Schiphol geïnspireerd door overgangsfase in oeuvre Mondriaan
10 april, 2:16
Op luchthaven Schiphol is de derde en laatste fase van door Beyond Space ontworpen zitgebieden opgeleverd. Net als de eerste twee fases van het project is dit gedeelte geïnspireerd door het werk van Mondriaan, maar dan uit een eerdere periode.
SeARCH en Heutink Groep winnen tender voor woongebouw Sluisbuurt
10 april, 11:15
Gebouw Radius biedt plek aan zo’n honderd appartementen, een stadskamer, een binnentuin, daktuinen en andere gemeenschappelijke ruimtes. Het gebouw wordt gerealiseerd van natuurlijke materialen als hout, stampleem en leemsteen.
Woontoren Front door Monadnock wint tiende Architectuurprijs Nijmegen
9 april, 10:00
“Front is een optimistisch icoon, gemaakt met lef, dat ambachtelijkheid en vakmanschap uitstraalt”, stelt de jury in zijn rapport.
Grote en kleine gemeenten balen van bouwregels Zuid-Holland
10 april, 4:31
Grote en kleine gemeenten in Zuid-Holland hebben hun zorgen geuit over nieuwe regels van de provincie, die volgens hen de woningbouw belemmeren.
Twijfels in Zuid-Holland over halen van doelen landelijk gebied
10 april, 12:18
De meeste partijen in de Zuid-Hollandse politiek hebben twijfels over de plannen die in zestien deelgebieden zijn gemaakt voor de aanpak van het landelijk gebied.
Huurprijzen stijgen harder dan koopwoningprijzen
10 april, 9:31
Volgens Huurwoningen.nl en Pararius moesten nieuwe huurders in het eerste kwartaal gemiddeld 21,12 euro per vierkante meter per maand neerleggen.
ABN AMRO: investeringen defensie vergroten druk op bouwcapaciteit
9 april, 12:29
Kazernes, opslagplaatsen en oefenterreinen dingen om dezelfde aannemers, ingenieurs en installateurs die ook nodig zijn voor bijvoorbeeld woningbouw.
Europa kent 831 miljoen euro subsidie toe aan Utrechtse projecten
9 april, 9:27
Het gaat onder meer om projecten tegen oververhitting van gebouwen, slimmer gebruik van energie en het hergebruik van materialen en grondstoffen.
Rotterdam mag woningen gaan bouwen aan de Parkhaven
8 april, 3:38
De Raad van State maakte woensdag bekend dat alle bezwaren tegen het bestemmingsplan zijn verworpen.
Ga naar het nieuws-archief
1
0
0
0
Voor een optimale gebruikservaring plaatst Architectenweb functionele cookies. Wat de verschillende cookies precies doen leggen we uit in een
overzicht
. Cookies van social media kun je optioneel
aanzetten
.
Akkoord
Instellingen
Annuleren
OK
Sluiten
Doorgaan
Inloggen
Maak een gratis persoonlijk account aan
Feedback
Feedback
Wij horen graag jouw feedback. Laat je reactie achter en eventueel jouw e-mail adres.
Reactie
Verstuur