Projecten
Producten
Bedrijven
Vacatures
Agenda
Awards
Podcasts
more_horiz
Videos
Magazine
Thema's
Favorieten
Profiel
Uitloggen
Abonneer je nu op onze nieuwsbrieven!
Abonneren
Nee, bedankt
Ja, denk met me mee rond de
materialisering van mijn project
Copyright: Sebastian van Damme
Copyright: Sebastian van Damme
Copyright: Sebastian van Damme
Copyright: Sebastian van Damme
Copyright: Sebastian van Damme
Copyright: Sebastian van Damme
Copyright: Sebastian van Damme
Copyright: Sebastian van Damme
Copyright: Sebastian van Damme
Copyright: Sebastian van Damme
Copyright: Sebastian van Damme
Copyright: Sebastian van Damme
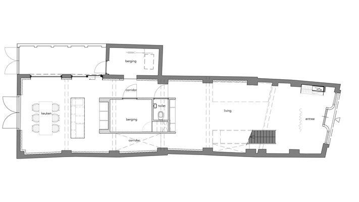
Begane grond. Tekening: EVA architecten
Verdieping. Tekening: EVA architecten
Loftwoning met verrassende doorzichten
21 maart 2016, 15:35
Voor een particuliere opdrachtgever heeft
EVA architecten
een voormalige werkplaats in het centrum van Den Bosch gerenoveerd en verbouwd tot loft. De woning heeft een open plattegrond met een houten kern die de functionele elementen herbergt.
Loft sixty-four, gesitueerd in hartje ’s Hertogenbosch, biedt tweehonderd vierkante meter woonruimte in een pand, dat voorheen dienst deed als kantoor en werkplaats. EVA architecten heeft het geheel gerenoveerde en verbouwde pand, onlangs opgeleverd.
Vides
Doordat het pand twintig meter diep is, had het alleen aan de voor- en achtergevel voldoende lichtinval en werd daglicht een belangrijk thema bij de verbouwing. Verder wenste de opdrachtgever nadrukkelijk de woning als één grote ruimte te kunnen ervaren.
Het architectenbureau heeft verschillende vides aangebracht, zodat daglicht tot diep in de woning kan vallen. Bovendien bieden de vides, aldus EVA architecten, spannende doorkijkjes tussen de verschillende woonfuncties onderling.
Houten volume
De functionele elementen als badkamer, toiletten, berging en keukenapparatuur zijn ondergebracht in een groot houten volume. Deze houten kern ordent de open plattegrond en verbindt begane grond en verdieping met elkaar verbindt. “Vanuit het bad kijk je zo de vide en de buitenlucht in”, aldus de architecten.
De zijwanden heeft het architectenbureau vrij van obstakels gehouden. De woning behoudt daarmee haar diepte en ruimtelijkheid, terwijl ze ook intieme ruimtes kent. Bij de renovatie en verbouwing zijn oude elementen in het nieuwe interieur verwerkt.
Trefwoorden
loft
's hertogensbosch
transformatie
eva architecten
woning
den bosch
interieur
Best gelezen
1
Finalisten presenteren ontwerp voor Shift Landmark in Rotterdam
woensdag, 4 maart
2
Architect Oliver Thill op 55-jarige leeftijd overleden
donderdag, 5 maart
3
Nieuwe Hittekaart Woningmarkt 2026 van BPD toont aanhoudende woningdruk
dinsdag, 3 maart
4
Strijp-S krijgt woonbuurtje met karakteristieken voormalig Philips-terrein
maandag, 2 maart
5
Haagse gemeenteraad stemt in met bouw van 11.400 woningen in nieuw stadscentrum
maandag, 2 maart
Gerelateerde nieuwsberichten
EVA ontwerpt herbestemming Suikerunie-kantoor in dialoog met Quist
28 september 2021
Schoolgebouw met contrasterende kanten
14 augustus 2023
EVA architecten ontwerpt schoolgebouw met contrastrijke kanten
14 april 2022
Ingrijpende renovatie van een school voor speciaal onderwijs door EVA architecten
17 april 2025
Kantoorpand met vloeiende vormen
30 mei 2018
Woninguitbreiding met contrast en harmonie
28 november 2016
Stadsvilla met ‘gechipperde’ gevel
15 maart 2016
Bungalow wordt zelfvoorzienend zomerverblijf
20 oktober 2015
Volledig houten lofts in Buiksloterham opgeleverd
7 maart 2016
Oud tolhuis met krachtige uitbreiding
21 oktober 2015
Woning gaat op in de bosrand
17 november 2015
Een refter in een voormalige drukkerij
31 augustus 2017
Ruimtelijke woning voor een smal perceel
1 november 2016
Transparant kantoor met zachte hoeken
9 augustus 2016
Clubhuis HC IJsseloever als een paviljoen op betonnen basement
19 december 2018
Schoolgebouw voor speciaal onderwijs biedt rust en overzicht
7 februari 2019
Transformatie oud zorggebouw maakt plattegrond weer afleesbaar
11 februari 2020
Energieneutrale basisschool voor speciaal onderwijs
9 juni 2020
Ingetogen MFA de Haar naar ontwerp van EVA architecten
8 februari 2022
Vier geknikte woningen langs het water naar ontwerp EVA architecten
19 april 2022
EVA ontwerpt herbestemming Suikerunie-kantoor in dialoog met Quist
28 september 2021
Schoolgebouw met contrasterende kanten
14 augustus 2023
EVA architecten ontwerpt schoolgebouw met contrastrijke kanten
14 april 2022
Ingrijpende renovatie van een school voor speciaal onderwijs door EVA architecten
17 april 2025
Kantoorpand met vloeiende vormen
30 mei 2018
Woninguitbreiding met contrast en harmonie
28 november 2016
Stadsvilla met ‘gechipperde’ gevel
15 maart 2016
Bungalow wordt zelfvoorzienend zomerverblijf
20 oktober 2015
Volledig houten lofts in Buiksloterham opgeleverd
7 maart 2016
Oud tolhuis met krachtige uitbreiding
21 oktober 2015
Woning gaat op in de bosrand
17 november 2015
Een refter in een voormalige drukkerij
31 augustus 2017
Ruimtelijke woning voor een smal perceel
1 november 2016
Transparant kantoor met zachte hoeken
9 augustus 2016
Clubhuis HC IJsseloever als een paviljoen op betonnen basement
19 december 2018
Schoolgebouw voor speciaal onderwijs biedt rust en overzicht
7 februari 2019
Transformatie oud zorggebouw maakt plattegrond weer afleesbaar
11 februari 2020
Energieneutrale basisschool voor speciaal onderwijs
9 juni 2020
Ingetogen MFA de Haar naar ontwerp van EVA architecten
8 februari 2022
Vier geknikte woningen langs het water naar ontwerp EVA architecten
19 april 2022
Toon alles
Andere nieuwsberichten
André Kempe: ‘Het ging Oliver Thill om het geven van betekenis’
Gisteren, 19:15
Agelopen maandag is architect Oliver Thill overleden. Zijn compagnon André Kempe gedenkt de man met wie hij al meer dan 35 jaar bevriend was en ruim een kwarteeuw geleden Atelier Kempe Thill oprichtte.
TconcepT transformeert voormalig warenhuis in Offenbach tot bibliotheek
Gisteren, 15:54
Het 12.000 vierkante meter omvattende complex gaat in bredere zin fungeren als een cultuur- en educatiecentrum met vele functies. In 2027 moet Station Mitte, zoals het gebouw zijn volgende leven wordt genoemd, klaar zijn.
Werkstatt gaat verder zonder medeoprichter Niels Groeneveld
Gisteren, 14:49
Medeoprichter van Werkstatt Niels Groeneveld stopt als partner bij het bureau, om zich te kunnen richten op zijn gezin en onderwijs. Floor Frings en Raoul Vleugels blijven het Eindhovense bureau leiden.
Binationaal ontwerpteam buigt zich over waterhuishouding Cartagena in Colombia
Gisteren, 13:43
Een Colombiaans-Nederlands ontwerpteam met Felixx Landscape Architects & Planners en Witteveen+Bos moedigt Cartagena aan om haar relatie met water te heroverwegen en na te denken over een veerkrachtige toekomst
Kunstmuseum in Den Haag moet worden verbouwd
Gisteren, 16:32
Daarvoor dient het museum in het Statenkwartier waarschijnlijk een tijd te sluiten.
Coen van Oostrom benoemd tot nieuwe voorzitter VNO-NCW
Gisteren, 12:23
De oprichter van ontwikkelaar Edge volgt in die rol Ingrid Thijssen op, die deze week is begonnen als nieuwe bestuursvoorzitter van de TU Delft.
Rapport: lokaal klimaatbeleid schiet nog tekort
Gisteren, 10:25
De makers van de zogeheten Toekomstmeter hebben het beleid van zeventig gemeenten doorgelicht.
Hardt Hyperloop failliet verklaard door rechtbank
5 maart, 11:37
Het Rotterdamse bedrijf was bezig met de ontwikkeling van technologie om mensen op hoge snelheid via capsules door een vacuümbuis te vervoeren.
Onderzoek: zeespiegel kustgebieden hoger dan in studies aangenomen
5 maart, 9:13
De zeespiegel aan de kust is in grote delen van de wereld waarschijnlijk hoger dan in veel wetenschappelijke studies wordt aangenomen.
Gelderland geeft voorrang aan vergunningen met minder stikstof
4 maart, 12:24
De plannen zijn onderdeel van het pakket maatregelen dat het Gelderse bestuur wil nemen om de vergunningverlening voor zaken als de woningbouw weer op gang te krijgen.
Ga naar het nieuws-archief
1
0
0
0
Voor een optimale gebruikservaring plaatst Architectenweb functionele cookies. Wat de verschillende cookies precies doen leggen we uit in een
overzicht
. Cookies van social media kun je optioneel
aanzetten
.
Akkoord
Instellingen
Annuleren
OK
Sluiten
Doorgaan
Inloggen
Maak een gratis persoonlijk account aan
Feedback
Feedback
Wij horen graag jouw feedback. Laat je reactie achter en eventueel jouw e-mail adres.
Reactie
Verstuur