Projecten
Producten
Bedrijven
Vacatures
Agenda
Awards
Podcasts
more_horiz
Videos
Magazine
Favorieten
Profiel
Uitloggen
Abonneer je nu op onze nieuwsbrieven!
Abonneren
Nee, bedankt
Ja, denk met me mee rond de
materialisering van mijn project
Copyright: Luuk Kramer
Copyright: Luuk Kramer
Copyright: Luuk Kramer
Copyright: Luuk Kramer
Copyright: Luuk Kramer
Copyright: Luuk Kramer
Copyright: Luuk Kramer
Copyright: Luuk Kramer
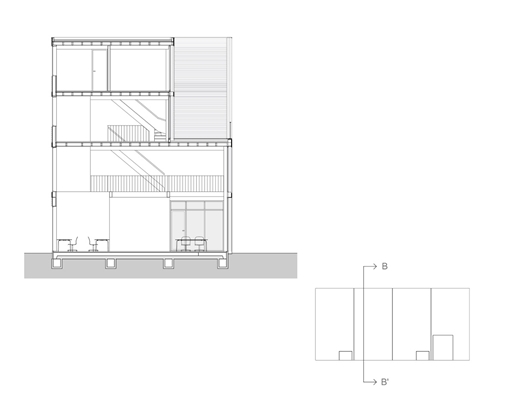
Copyright: Doorsnede A. ANA architects
Copyright: Doorsnede B. ANA architects
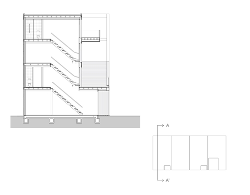
Copyright: Doorsnede C. ANA architects
Copyright: Doorsnede D. ANA architects
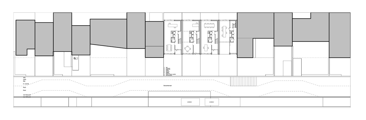
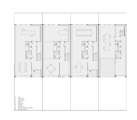
Copyright: Begane grond. ANA architects
Copyright: Eerste verdieping. ANA architects
Copyright: Tweede verdieping. ANA architects
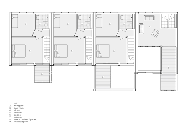
Copyright: Derde verdieping. ANA architects
Copyright: Situatie. ANA architects
Copyright: Schematische weergave. ANA architects
Copyright: Duurzaamheid. ANA architects
Copyright: Luuk Kramer
Copyright: Luuk Kramer
Volledig houten lofts in Buiksloterham opgeleverd
7 maart 2016, 15:34
In Buiksloterham zijn vier woonwerklofts naar ontwerp van
ANA architects
opgeleverd. De zogenoemde Houtlofts zijn bijzonder duurzaam en bieden verschillende woon-werkverhoudingen binnen eenzelfde maatsysteem.
Buiksloterham zal de komende jaren geleidelijk transformeren van industriegebied naar gemengd woonwerkgebied. Omdat de omgeving voorlopig nog blijft veranderen, heeft ANA bij het ontwerp van de Houtlofts hoog ingezet op interne woonkwaliteit, legt het architectenbureau uit. De woningen zijn ontworpen in opdracht van Huiz&.
Ruimtelijk
Een belangrijk uitgangspunt bij het ontwerp was het streven naar ruimtelijkheid. ANA heeft gebruik gemaakt van de ruime bouwenvelop om de woningen te voorzien van grote vides. Die zorgen voor ruimte en licht in het interieur en creëren een loftachtige sfeer, aldus het architectenbureau.
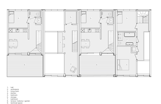
De woningen hebben diepe voortuinen op het zuiden gekregen. In die tuinen, gesitueerd aan de straatzijde, wordt ook geparkeerd. Daarom heeft ANA alle woningen ontworpen met een of meerdere grote terrassen op een van de hoger gelegen verdiepingen,
De terrassen heeft het architectenbureau opgevat als buitenkamers. Vooral bij de zogenoemde Kaswoning, een van de vier gerealiseerd woningtypes, is de buitenruimte een belangrijke uitbreiding van de leefruimte van de woning.
Eenheid en diversiteit
De vier Houtlofts zijn alle anders – overigens net als de overige woningen in de straat. Voor de vier lofts heeft ANA binnen een gelijk maatsysteem vier verschillende woonwerktypes ontworpen. De woningen hebben steeds een andere verhouding tussen wonen en werken en een andere oplossing voor buitenruimte.
Tegelijkertijd is nadrukkelijk ingezet op samenhang in vorm en materiaal, leggen de architecten uit. Hiermee heeft ANA gezorgd voor eenheid bij diversiteit.
Duurzaamheid
Volgens de architecten zijn de Houtlofts “extreem duurzaam”. De woningen zijn volledig in hout gebouwd. De gelamineerde houten balken van de draagconstructie zijn nadrukkelijk in het zicht gelaten.
De woningen zijn niet aangesloten op het stadswarmtenet, omdat eigen energieopwekking op termijn veel duurzamer is. Warmte wordt geleverd door een individuele warmtepomp voor elke woning.
Verder zijn de lofts voorzien van een WTW-systeem voor ventilatie en vloerverwarming, zonwerende luiken en PV-panelen en een zonnecollector op het dak. “Met een EPC van minder dan 0,15 zijn de woningen extreem energiezuinig”, aldus de architecten.
Trefwoorden
duurzaamheid
ana architecten
ana
hout
buiksloterham
houtloft
woningbouw
transformatie gebieden
Locatie
Best gelezen
1
Woontoren Front door Monadnock wint tiende Architectuurprijs Nijmegen
donderdag, 9 april
2
SeARCH en Heutink Groep winnen tender voor woongebouw Sluisbuurt
vrijdag, 10 april
3
Architect Cees Dam op 93-jarige leeftijd overleden
dinsdag, 14 april
4
Powerhouse Company wint aanbesteding voor verbouwing Vista College Maastricht
dinsdag, 14 april
5
Padelhal vormt nieuwe kop van sportcomplex in Bussum
donderdag, 9 april
Gerelateerde nieuwsberichten
Amsterdam ambieert circulaire stad in 2050
14 april 2020
Olaf Gipser Architects presenteert opgeleverd woongebouw Stories
28 oktober 2021
ANA Architecten ontwerpt woongebouw voor gezinnen in Delft
16 februari 2021
Woning met 'aaibare' damwandgevel
5 november 2019
Nieuw multifunctioneel gebouw voor Buiksloterham
1 augustus 2019
Het Schetsblok: flexibel cpo-project met oog op toekomst
14 mei 2019
Huis VT op Zeeburgereiland opgeleverd
28 februari 2019
'Drie-generatiehuis' voor één familie in Buiksloterham
29 januari 2019
Multifunctioneel gebouw erbij voor Buiksloterham
21 december 2018
Bouw demontabel woongebouw Buiksloterham gestart
7 juni 2018
Ruimtelijk wonen rond een vide
21 november 2017
Houten woningbouwproject met stedelijke uitstraling
28 september 2017
Vrachtschip verbouwd tot woonschip
14 september 2017
PUUUR BSH: architect als bouwmeester
20 juli 2017
Yotel bouwt vestiging in Buiksloterham
2 juni 2017
ANA wint CPO-opdracht in Buiksloterham
6 oktober 2016
Zes nieuwe CPO’s in Amsterdam-Noord
1 juni 2016
Studioninedots ontwerpt City Icoon Buiksloterham
18 april 2016
Loftwoning met verrassende doorzichten
21 maart 2016
Twaalf nulenergiewoningen van ANA gerealiseerd
7 oktober 2015
ANA realiseert houtlofts in Buiksloterham
12 januari 2015
ANA trekt door Europa
11 september 2014
Amsterdam ambieert circulaire stad in 2050
14 april 2020
Olaf Gipser Architects presenteert opgeleverd woongebouw Stories
28 oktober 2021
ANA Architecten ontwerpt woongebouw voor gezinnen in Delft
16 februari 2021
Woning met 'aaibare' damwandgevel
5 november 2019
Nieuw multifunctioneel gebouw voor Buiksloterham
1 augustus 2019
Het Schetsblok: flexibel cpo-project met oog op toekomst
14 mei 2019
Huis VT op Zeeburgereiland opgeleverd
28 februari 2019
'Drie-generatiehuis' voor één familie in Buiksloterham
29 januari 2019
Multifunctioneel gebouw erbij voor Buiksloterham
21 december 2018
Bouw demontabel woongebouw Buiksloterham gestart
7 juni 2018
Ruimtelijk wonen rond een vide
21 november 2017
Houten woningbouwproject met stedelijke uitstraling
28 september 2017
Vrachtschip verbouwd tot woonschip
14 september 2017
PUUUR BSH: architect als bouwmeester
20 juli 2017
Yotel bouwt vestiging in Buiksloterham
2 juni 2017
ANA wint CPO-opdracht in Buiksloterham
6 oktober 2016
Zes nieuwe CPO’s in Amsterdam-Noord
1 juni 2016
Studioninedots ontwerpt City Icoon Buiksloterham
18 april 2016
Loftwoning met verrassende doorzichten
21 maart 2016
Twaalf nulenergiewoningen van ANA gerealiseerd
7 oktober 2015
ANA realiseert houtlofts in Buiksloterham
12 januari 2015
ANA trekt door Europa
11 september 2014
Toon alles
Andere nieuwsberichten
Woontoren Front vervult meerdere rollen in Hart van de Waalsprong
Gisteren, 16:31
Vorige week werd de door Mondadnock ontworpen woontoren Front onderscheiden met de Architectuurprijs Nijmegen. Het achthoekige gebouw in Lent markeert het centrum van de stadsuitbreiding Hart van de Waalsprong.
Bijzonder erfgoed Fundatie van Renswoude Utrecht gered
Gisteren, 15:29
Hendrick de Keyser Monumenten heeft de Fundatie van Renswoude in Utrecht, een bijzonder goed bewaard ensemble uit de 18e eeuw, verworven. Hiermee blijven gebouw, historisch interieur en collectie als een geheel behouden.
Studioninedots – Albert Herder vertrekt, Wouter Hermanns en Stijn de Jongh treden toe
Gisteren, 14:51
De medeoprichter en partner van het bureau gaat verder als zelfstandig adviseur en supervisor. Wouter Hermanns en Stijn de Jongh zijn juist tot partner benoemd bij Studioninedots.
BURA, LOLA en Goudappel maken plan voor vernieuwing stationsgebied Haarlem
Gisteren, 12:11
De bureaus mogen onder meer een het busstation en de openbare ruimte herinrichten, de mogelijkheden voor fietsparkeren uitbreiden en een plan maken voor de sloop en nieuwbouw van het Beresteyncomplex tegenover het station.
ING: optoppen en splitsen van woningen steeds minder haalbaar
Gisteren, 13:22
Het kabinet-Jetten gaat naar verwachting het doel van 15.000 extra woningen per jaar uit verbouwingen niet halen, stelt ING.
Geen rechtszaak over subsidie ministerie aan Van Gogh Museum
Gisteren, 10:02
De zaak draait om geld dat het museum nodig zegt te hebben voor een renovatie.
AFM: funderingsproblemen bij bijna 220.000 woningen
14 april, 1:25
De huizen van bijna een half miljoen woningeigenaren hebben een hoog risico op funderingsproblemen of een mogelijke kwetsbare fundering.
Oprichter omgevallen vastgoedconcern Evergrande bekent schuld
14 april, 9:17
Evergrande was ooit de grootste projectontwikkelaar van China, maar kwam in de problemen toen het zijn schulden niet kon terugbetalen.
Grote en kleine gemeenten balen van bouwregels Zuid-Holland
10 april, 4:31
Grote en kleine gemeenten in Zuid-Holland hebben hun zorgen geuit over nieuwe regels van de provincie, die volgens hen de woningbouw belemmeren.
Twijfels in Zuid-Holland over halen van doelen landelijk gebied
10 april, 12:18
De meeste partijen in de Zuid-Hollandse politiek hebben twijfels over de plannen die in zestien deelgebieden zijn gemaakt voor de aanpak van het landelijk gebied.
Ga naar het nieuws-archief
0
0
0
0
Voor een optimale gebruikservaring plaatst Architectenweb functionele cookies. Wat de verschillende cookies precies doen leggen we uit in een
overzicht
. Cookies van social media kun je optioneel
aanzetten
.
Akkoord
Instellingen
Annuleren
OK
Sluiten
Doorgaan
Inloggen
Maak een gratis persoonlijk account aan
Feedback
Feedback
Wij horen graag jouw feedback. Laat je reactie achter en eventueel jouw e-mail adres.
Reactie
Verstuur