Projecten
Producten
Bedrijven
Vacatures
Agenda
Awards
Podcasts
more_horiz
Videos
Magazine
Favorieten
Profiel
Uitloggen
Abonneer je nu op onze nieuwsbrieven!
Abonneren
Nee, bedankt
Ja, denk met me mee rond de
materialisering van mijn project
Copyright: Ossip van Duivenbode
Copyright: Ossip van Duivenbode
Copyright: Ossip van Duivenbode
Copyright: Ossip van Duivenbode
Copyright: Ossip van Duivenbode
Copyright: Ossip van Duivenbode
Copyright: Ossip van Duivenbode
Copyright: Ossip van Duivenbode
Copyright: Ossip van Duivenbode
Copyright: Ossip van Duivenbode
Copyright: Ossip van Duivenbode
Copyright: Ossip van Duivenbode
Copyright: Ossip van Duivenbode
Copyright: Ossip van Duivenbode
Copyright: Ossip van Duivenbode
Copyright: Ossip van Duivenbode
Copyright: BETA
Copyright: BETA
Copyright: BETA
Copyright: BETA
Copyright: BETA
Copyright: BETA
Copyright: BETA
Copyright: BETA
Copyright: BETA
'Drie-generatiehuis' voor één familie in Buiksloterham
29 januari 2019, 12:18
In het Amsterdamse gebied Buiksloterham is een ‘drie-generatiehuis’ naar ontwerp van
BETA
opgeleverd. Het gaat om een mini-appartementengebouw waarin twee huishoudens wonen. Een jong gezin woont op de benedenverdieping met tuin, terwijl de grootouders het bovengelegen appartement met dakterras bewonen.
De familie heeft met het oog op de zorg tussen generaties besloten om samen een huis te laten bouwen. Het gezin woonde al in de stad, de in de provincie woonachtige grootouders waren voor hun oude dag op zoek naar de nabijheid van stedelijke voorzieningen.
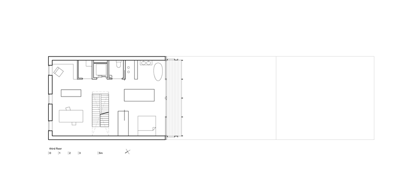
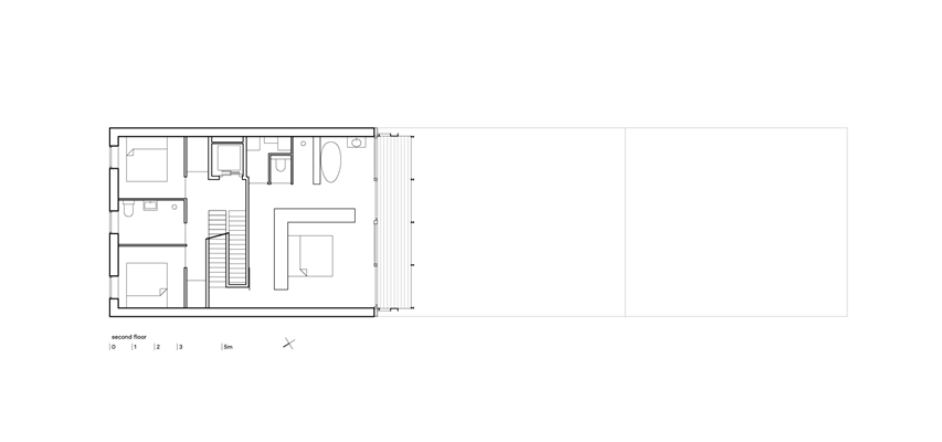
De grootouders wonen in een volledig gelijkvloers appartement met een eigen liftinstallatie en een riant uitzicht over de stad. In plaats van de verticale ontsluiting van de woning te reduceren tot een noodzakelijkheid, neemt deze een centrale en prominente plek in het gebouw in. De ontsluiting transformeert naar boven toe in een serie vides en open trappen.
‘Wisselverdieping’
De benedenwoning bestaat naast gebruikelijke voorzieningen als een keuken en slaapkamers uit een kantoorverdieping. Dankzij de centraal gelegen ontsluiting kon er ook een ‘wisselverdieping’ tussen beide woningen worden gerealiseerd. In eerste instantie wordt deze ingezet als logeerverdieping voor het bovengelegen appartement, maar met enkele kleine technische aanpassingen kan deze verdieping worden betrokken bij de benedenwoning.
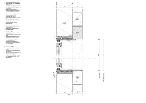
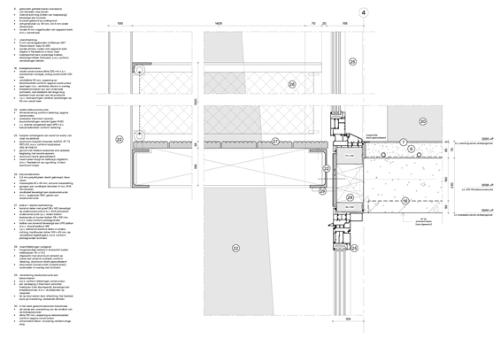
Het gebouw beschikt over twee sterk contrasterende gevels. De noordelijke gevel is grotendeels gesloten om thermisch verlies en geluidshinder te beperken. Naar het zuiden toe opent het gebouw zich volledig om gebruik te maken van passieve zonnewarmte en de verbinding met buiten.
Van de gesloten naar de open gevel ondergaat de plattegrond een bijpassende transformatie. Waar de plattegrond aan de noordkant gecompartimenteerd is, is er aan de zuidelijke zijde sprake van een open plattegrond. Aan de tuinkant wordt de woning beëindigd met een balkonlaag, die de gevel een informeel karakter geeft en voor de woning werkt als een filter.
Doel
Zoals het gebouw zijn samenstelling communiceert, communiceren de materialen hun doel. Zo is de zuidelijke gevel louter met glas bekleed om de relatie met buiten te onderstrepen. De constructieve wanden zijn opgetrokken uit grootformaat betonsteen, bekleed met hoogwaardige isolatie. De acht meter overspannende betonnen vloeren tussen deze wanden vormen een solide vlak waarop zachte elementen de ruimtes definiëren.
Trefwoorden
buiksloterham
drie generatiehuis
meergeneratiewoning
beta
woning
amsterdam
Best gelezen
1
Genomineerden BNA Beste Gebouw van het Jaar 2026 bekend
dinsdag, 28 april
2
Architectenweb symposium: samenwerken op kantoor
dinsdag, 28 april
3
Bouwvergunning voor torens MVRDV op Tour & Taxis-terrein Brussel
donderdag, 30 april
4
MVRDV en Diamond Schmitt ontwerpen tweede gebouw voor universiteit Toronto
dinsdag, 28 april
5
Groosman heeft 'eigen' Coolse Poort in centrum Rotterdam gerenoveerd
woensdag, 29 april
Gerelateerde nieuwsberichten
BETA en AM presenteren boek over meergeneratiewonen
13 juli 2023
Van oud schoolgebouw naar buurtgebouw met breed sociaal programma
11 maart 2025
Amsterdam tendert multifunctioneel project Buiksloterham
6 april 2022
Friese dokterwoning verbouwd tot villa voor ouder echtpaar
4 januari 2022
Bouw blok IVY in Klaprozenbuurt Amsterdam-Noord gaat van start
3 december 2021
Olaf Gipser Architects presenteert opgeleverd woongebouw Stories
28 oktober 2021
Start bouw KAAP Amsterdam aanstaande
5 mei 2021
Nominaties Abe Bonnema Prijs voor Jonge Architecten bekend
14 oktober 2020
Woningen met fiscaal aftrekbare werkruimte in gebouw The Doors
16 juni 2020
Woongebouw met 'buitenkamers' in Amsterdam-Noord
10 juni 2020
Compacte bouw en ruimte voor bewegen in Klaprozenbuurt
24 januari 2020
Amsterdam wil vijfduizend extra woningen in Buiksloterham
17 december 2019
Woning met 'aaibare' damwandgevel
5 november 2019
Mei architects ontwerpt kantoorcomplex Buiksloterham
27 september 2019
Nieuw multifunctioneel gebouw voor Buiksloterham
1 augustus 2019
Superlofts-project in Buiksloterham voltooid
7 maart 2019
Eerste woningen drijvende wijk Schoonschip ingevaren
21 december 2018
Multifunctioneel gebouw erbij voor Buiksloterham
21 december 2018
Loods met kantoor voor jachtbouwer NDSM-werf
14 juni 2018
Bouw demontabel woongebouw Buiksloterham gestart
7 juni 2018
Ruimtelijk wonen rond een vide
21 november 2017
Bouwstart eerste deel superblok Buiksloterham
31 augustus 2017
PUUUR BSH: architect als bouwmeester
20 juli 2017
BlackJack: meer kwaliteit voor dezelfde prijs
22 mei 2017
Tijdelijk gezondheidscentrum is helder baken
15 februari 2017
Oude school omgetoverd tot huiskamer voor wijk
7 oktober 2016
Volledig houten lofts in Buiksloterham opgeleverd
7 maart 2016
Nieuwe wijk wordt 'waterfront' Buiksloterham
3 maart 2015
BETA en AM presenteren boek over meergeneratiewonen
13 juli 2023
Van oud schoolgebouw naar buurtgebouw met breed sociaal programma
11 maart 2025
Amsterdam tendert multifunctioneel project Buiksloterham
6 april 2022
Friese dokterwoning verbouwd tot villa voor ouder echtpaar
4 januari 2022
Bouw blok IVY in Klaprozenbuurt Amsterdam-Noord gaat van start
3 december 2021
Olaf Gipser Architects presenteert opgeleverd woongebouw Stories
28 oktober 2021
Start bouw KAAP Amsterdam aanstaande
5 mei 2021
Nominaties Abe Bonnema Prijs voor Jonge Architecten bekend
14 oktober 2020
Woningen met fiscaal aftrekbare werkruimte in gebouw The Doors
16 juni 2020
Woongebouw met 'buitenkamers' in Amsterdam-Noord
10 juni 2020
Compacte bouw en ruimte voor bewegen in Klaprozenbuurt
24 januari 2020
Amsterdam wil vijfduizend extra woningen in Buiksloterham
17 december 2019
Woning met 'aaibare' damwandgevel
5 november 2019
Mei architects ontwerpt kantoorcomplex Buiksloterham
27 september 2019
Nieuw multifunctioneel gebouw voor Buiksloterham
1 augustus 2019
Superlofts-project in Buiksloterham voltooid
7 maart 2019
Eerste woningen drijvende wijk Schoonschip ingevaren
21 december 2018
Multifunctioneel gebouw erbij voor Buiksloterham
21 december 2018
Loods met kantoor voor jachtbouwer NDSM-werf
14 juni 2018
Bouw demontabel woongebouw Buiksloterham gestart
7 juni 2018
Ruimtelijk wonen rond een vide
21 november 2017
Bouwstart eerste deel superblok Buiksloterham
31 augustus 2017
PUUUR BSH: architect als bouwmeester
20 juli 2017
BlackJack: meer kwaliteit voor dezelfde prijs
22 mei 2017
Tijdelijk gezondheidscentrum is helder baken
15 februari 2017
Oude school omgetoverd tot huiskamer voor wijk
7 oktober 2016
Volledig houten lofts in Buiksloterham opgeleverd
7 maart 2016
Nieuwe wijk wordt 'waterfront' Buiksloterham
3 maart 2015
Toon alles
Andere nieuwsberichten
'Stuttende' en contrasterende installatie voor Besiendershuis Nijmegen
1 mei, 3:52
Bij het Besiendershuis in Nijmegen is afgelopen maand een door Frank Havermans ontworpen kunstinstallatie geopend. Het bouwwerk is gerealiseerd ter viering van het vijfhonderdjarig jubileum van het bijzondere huis in het centrum van de Keizerstad.
Specht architectuur en stedenbouw toont met meergeneratiehofje alledaagse woongemeenschappelijkheid
1 mei, 2:25
Het meergeneratiehofje met sociale huurwoningen in Stedum is een bijdrage aan de zoektocht naar alledaagse gemeenschappelijkheid in het wonen in Nederland.
Mobiliteitshub van gerecycled tropisch hardhout voor Tholen
1 mei, 11:41
In het Zeeuwse Tholen is een mobiliteitshub naar ontwerp van RO&AD Architecten opgeleverd. Het gebouw, dat is geheel is gemaakt van gerecycled tropisch hardhout, fungeert als knooppunt voor bussen en fietsers.
Kleurrijke textielinstallatie van Simone Post voor entreegebied Centraal Museum
1 mei, 9:05
Voor Patchwork Post heeft ontwerper Simone Post objecten en kunstwerken uit de museumcollectie vertaald naar diverse werken in textiel.
Verzet natuurorganisaties tegen stroomkabel via Schiermonnikoog
1 mei, 4:39
Negen natuurorganisaties maken zich grote zorgen over het plan om stroom van een nieuw windpark op de Noordzee via Schiermonnikoog aan land te brengen.
ING: huizenprijzen stijgen dit jaar niet verder door hoger aanbod
1 mei, 1:03
Na jaren van groei is het voor het eerst in lange tijd dat een bank verwacht dat de huizenmarkt niet verder groeit.
TenneT mag datacenteraansluiting uitstellen om vol stroomnet
1 mei, 10:11
Een projectontwikkelaar van een datacenter bij Schiphol klaagde hierover en spande een kort geding aan.
Brabant investeert 1,4 miljoen in waterfilter in Vlaanderen
30 april, 3:51
Het fosfaatfilter moet vervuild grondwater op een natuurlijke manier zuiveren voordat het naar het Nederlandse natuurgebied de Groote Meer bij Ossendrecht stroomt.
Rli: klimaat, vervuiling en groei bedreigen beschikbaarheid drinkwater
30 april, 12:20
De beschikbaarheid van drinkwater staat ernstig onder druk, waarschuwt de Raad voor de leefomgeving en infrastructuur.
ABN AMRO: huurwetaanpassingen stoppen uittocht beleggers niet
30 april, 9:04
Volgens de onderzoekers onderschat woonminister Boekholt de negatieve effecten van het huidige fiscale beleid.
Ga naar het nieuws-archief
Ronnie Weessies
Redacteur
2
0
0
0
Voor een optimale gebruikservaring plaatst Architectenweb functionele cookies. Wat de verschillende cookies precies doen leggen we uit in een
overzicht
. Cookies van social media kun je optioneel
aanzetten
.
Akkoord
Instellingen
Annuleren
OK
Sluiten
Doorgaan
Inloggen
Maak een gratis persoonlijk account aan
Feedback
Feedback
Wij horen graag jouw feedback. Laat je reactie achter en eventueel jouw e-mail adres.
Reactie
Verstuur