Projecten
Producten
Bedrijven
Vacatures
Agenda
Awards
Podcasts
more_horiz
Videos
Magazine
Thema's
Favorieten
Profiel
Uitloggen
Copyright: Studioninedots
Copyright: Studioninedots
Copyright: Studioninedots
Copyright: Studioninedots
Copyright: Studioninedots
Copyright: Studioninedots
Copyright: Studioninedots
Copyright: Studioninedots
Copyright: Studioninedots
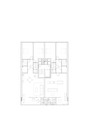
Woongebouw met 'buitenkamers' in Amsterdam-Noord
10 juni 2020, 11:17
Aan het Tolhuiskanaal in Amsterdam-Noord komt een woongebouw met ‘buitenkamers’ te staan. Deze buitenruimten zijn bovendien voorzien van een tuin, die per etage van positie verspringt. Dat meldt
Studioninedots
, de architect van gebouw ROOTS.
Het gebouw met twaalf appartementen maakt deel uit van de wijk
Cityplot Buiksloterham
. Naast de gangbare leefruimten voor een woning beschikken de bewoners over een extra ruimte die volledig kan worden geopend of juist worden afgesloten, zodat het er in alle jaargetijden goed toeven is. De ruimte is bovendien ontworpen op licht, zicht (op het water) en beschutting.
De buitenkamers liggen alle aan een tuin die wordt gedeeld met de buren. De tuinen verspringen per verdieping van positie en zijn voorzien van een laag aarde die in de constructie is opgenomen. In de tuin kunnen verschillende typen planten, struiken, bloemen en groenten groeien. Daarnaast dragen ze bij aan verkoeling, luchtzuivering, vergroting van biodiversiteit en het woongenot.
De verkoop van de woningen start deze maand, meldt Studioninedots. De oplevering van het gebouw staat voor eind volgend jaar gepland.
Trefwoorden
studioninedots
amsterdam-noord
cityplot
woongebouw
buiksloterham
amsterdam
Locatie
Best gelezen
1
Houthybride woongebouw langs de A8 in Zaandam opgeleverd
dinsdag, 11 november
2
WillemsenU zinkt villa af in landschap
dinsdag, 11 november
3
Woongebouw voor gezinnen biedt ruime corridor en gekoppelde terrassen met glijbaan
woensdag, 12 november
4
MVRDV ontwerpt bolvormig sportcomplex in Albanese hoofdstad Tirana
maandag, 10 november
5
Groningers kiezen nieuwe invulling voor plek gesloopte parkeergarage in stadscentrum
dinsdag, 11 november
Gerelateerde nieuwsberichten
Compacte bouw en ruimte voor bewegen in Klaprozenbuurt
24 januari 2020
Amsterdam wil vijfduizend extra woningen in Buiksloterham
17 december 2019
YOTEL Amsterdam naar ontwerp Studioninedots opgeleverd
2 december 2019
Overeenkomst Synchroon en de Alliantie voor ontwikkeling Tolhuiskade Amsterdam
25 november 2019
Woning met 'aaibare' damwandgevel
5 november 2019
Mei architects ontwerpt kantoorcomplex Buiksloterham
27 september 2019
Definitief Ontwerp voor sluitstuk Vrije Kade Amsterdam-Noord
8 augustus 2019
Nieuw multifunctioneel gebouw voor Buiksloterham
1 augustus 2019
Space Encounters initieert pop-up werkplek-horeca-kunstruimte
18 juli 2019
Superlofts-project in Buiksloterham voltooid
7 maart 2019
'Drie-generatiehuis' voor één familie in Buiksloterham
29 januari 2019
Multifunctioneel gebouw erbij voor Buiksloterham
21 december 2018
Woonmeubel ordent een eenpersoonsloft
26 november 2018
Ruimtelijk wonen rond een vide
21 november 2017
Bouw demontabel woongebouw Buiksloterham gestart
7 juni 2018
Bouwstart eerste deel superblok Buiksloterham
31 augustus 2017
PUUUR BSH: architect als bouwmeester
20 juli 2017
BlackJack: meer kwaliteit voor dezelfde prijs
22 mei 2017
Studioninedots ontwerpt City Icoon Buiksloterham
18 april 2016
Nieuwe wijk wordt 'waterfront' Buiksloterham
3 maart 2015
Woningen met fiscaal aftrekbare werkruimte in gebouw The Doors
16 juni 2020
Westbeat in Amsterdam geopend met online dansvoorstelling
10 november 2020
HilberinkBosch voegt prominent woongebouw toe aan Bossche Paleiskwartier
23 november 2020
Villa Fifty-Fifty heeft gelijkwaardige binnen- en buitenruimtes
30 november 2020
Bouw markante woontoren Highnote in Almere dichterbij
30 november 2020
Westbeat als sculpturale verbinder ontworpen door Studioninedots
16 december 2020
BDP ontwerpt nieuw schoolgebouw Amsterdam-Noord
18 januari 2021
Start bouw KAAP Amsterdam aanstaande
5 mei 2021
Campina-terrein Eindhoven wordt stadsbuurt met coöperatieve buitenruimte
20 mei 2021
Bedrijfsgebouw als voorschot op transformatie Haven-Stad
25 juni 2021
Olaf Gipser Architects presenteert opgeleverd woongebouw Stories
28 oktober 2021
Bouw blok IVY in Klaprozenbuurt Amsterdam-Noord gaat van start
3 december 2021
Woongebouw The Grid in wijk Aan het IJ Amsterdam-Noord klaar
7 december 2021
Studioninedots benoemt vier associates
10 december 2021
Twee woonblokken in karakteristieke Gentiaanbuurt Amsterdam ingrijpend gerenoveerd
23 maart 2022
Amsterdam tendert multifunctioneel project Buiksloterham
6 april 2022
Drie panden samengevoegd tot nieuw hoofdkantoor Lieven de Key
27 juni 2022
Bouw Tolhuiskade in transformatie Buiksloterham Amsterdam gestart
26 september 2022
Kantoorpand Van Hallstraat Amsterdam getransformeerd tot woongebouw
25 november 2022
Studioninedots en Up4 presenteren Papaverwerf in Buiksloterham
9 februari 2023
Plan Sample gekozen voor blokken met 357 woningen Buiksloterham
27 maart 2023
Compacte bouw en ruimte voor bewegen in Klaprozenbuurt
24 januari 2020
Amsterdam wil vijfduizend extra woningen in Buiksloterham
17 december 2019
YOTEL Amsterdam naar ontwerp Studioninedots opgeleverd
2 december 2019
Overeenkomst Synchroon en de Alliantie voor ontwikkeling Tolhuiskade Amsterdam
25 november 2019
Woning met 'aaibare' damwandgevel
5 november 2019
Mei architects ontwerpt kantoorcomplex Buiksloterham
27 september 2019
Definitief Ontwerp voor sluitstuk Vrije Kade Amsterdam-Noord
8 augustus 2019
Nieuw multifunctioneel gebouw voor Buiksloterham
1 augustus 2019
Space Encounters initieert pop-up werkplek-horeca-kunstruimte
18 juli 2019
Superlofts-project in Buiksloterham voltooid
7 maart 2019
'Drie-generatiehuis' voor één familie in Buiksloterham
29 januari 2019
Multifunctioneel gebouw erbij voor Buiksloterham
21 december 2018
Woonmeubel ordent een eenpersoonsloft
26 november 2018
Ruimtelijk wonen rond een vide
21 november 2017
Bouw demontabel woongebouw Buiksloterham gestart
7 juni 2018
Bouwstart eerste deel superblok Buiksloterham
31 augustus 2017
PUUUR BSH: architect als bouwmeester
20 juli 2017
BlackJack: meer kwaliteit voor dezelfde prijs
22 mei 2017
Studioninedots ontwerpt City Icoon Buiksloterham
18 april 2016
Nieuwe wijk wordt 'waterfront' Buiksloterham
3 maart 2015
Woningen met fiscaal aftrekbare werkruimte in gebouw The Doors
16 juni 2020
Westbeat in Amsterdam geopend met online dansvoorstelling
10 november 2020
HilberinkBosch voegt prominent woongebouw toe aan Bossche Paleiskwartier
23 november 2020
Villa Fifty-Fifty heeft gelijkwaardige binnen- en buitenruimtes
30 november 2020
Bouw markante woontoren Highnote in Almere dichterbij
30 november 2020
Westbeat als sculpturale verbinder ontworpen door Studioninedots
16 december 2020
BDP ontwerpt nieuw schoolgebouw Amsterdam-Noord
18 januari 2021
Start bouw KAAP Amsterdam aanstaande
5 mei 2021
Campina-terrein Eindhoven wordt stadsbuurt met coöperatieve buitenruimte
20 mei 2021
Bedrijfsgebouw als voorschot op transformatie Haven-Stad
25 juni 2021
Olaf Gipser Architects presenteert opgeleverd woongebouw Stories
28 oktober 2021
Bouw blok IVY in Klaprozenbuurt Amsterdam-Noord gaat van start
3 december 2021
Woongebouw The Grid in wijk Aan het IJ Amsterdam-Noord klaar
7 december 2021
Studioninedots benoemt vier associates
10 december 2021
Twee woonblokken in karakteristieke Gentiaanbuurt Amsterdam ingrijpend gerenoveerd
23 maart 2022
Amsterdam tendert multifunctioneel project Buiksloterham
6 april 2022
Drie panden samengevoegd tot nieuw hoofdkantoor Lieven de Key
27 juni 2022
Bouw Tolhuiskade in transformatie Buiksloterham Amsterdam gestart
26 september 2022
Kantoorpand Van Hallstraat Amsterdam getransformeerd tot woongebouw
25 november 2022
Studioninedots en Up4 presenteren Papaverwerf in Buiksloterham
9 februari 2023
Plan Sample gekozen voor blokken met 357 woningen Buiksloterham
27 maart 2023
Toon alles
Gerelateerde video's
Studioninedots
Nominatie voor de prijs voor Architect van het Jaar 2023
Andere nieuwsberichten
Nominaties Zuiderkerkprijs en Geurt Brinkgreve Bokaal 2025 bekend
14 november, 12:17
Voor de eerstgenoemde woningbouwprijs van de gemeente Amsterdam zijn tien projecten genomineerd, de bokaal voor het beste initiatief op het gebied van herontwikkeling, transformatie of renovatie leverde zeven nominaties op.
'Architecten kunnen kwaliteit waarborgen bij splitsen en opdelen rijtjeshuizen'
14 november, 11:14
Om het splitsen en opdelen van rijtjeswoningen van de grond te krijgen, dienen het Rijk en gemeenten de regie te nemen. Architecten kunnen hierbij worden ingeschakeld voor de waarborging van de kwaliteit, aldus een vrijdag verschenen rapport.
MVRDV en Buro Happold ontwerpen nieuw theater in Veenendaal
14 november, 10:23
Voor de vernieuwing van Theater De Lampegiet zijn vijf schetsontwerpen gemaakt. Zowel de inwoners van de stad als de jury hebben daarbij voor het ontwerp van MVRDV en Buro Happold gekozen.
Benthem Crouwel Architects plaatst slotstuk in Paleiskwartier van Den Bosch
13 november, 5:00
Benthem Crouwel Architects heeft het stadsblok Palazzo in het Paleiskwartier van Den Bosch opgeleverd
Zuid-Holland verhoogt budget voor restauratie rijksmonumenten
14 november, 2:08
De provincie Zuid-Holland verhoogt het budget voor de restauratie van rijksmonumenten structureel.
Rapport: natuur kan helpen beschermen tegen stijgende zeespiegel
14 november, 9:24
Natuurlijke oplossingen zoals ruim baan geven aan gebieden met eb en vloed kunnen helpen de Nederlandse kustlijn te beschermen tegen de stijgende zeespiegel.
Deltacommissaris: ga nu al in gesprek over toekomst waterbeheer
13 november, 4:03
Nederland moet nu al kijken welke randvoorwaarden nodig zijn om grote waterbeschermingsprogramma's zoals de Deltawerken in de komende jaren uit te voeren.
Gemeentebestuur wil Brabants dorp Moerdijk laten verdwijnen
13 november, 10:23
Het dorp Moerdijk in Noord-Brabant moet verdwijnen om plaats te maken voor uitbreiding van het bestaande haven- en industrieterrein in die plaats.
Iets minder mensen vertrekken uit de Randstad dan in eerdere jaren
12 november, 10:00
Onder andere omdat er in de Randstad meer kinderen worden geboren, groeit de bevolking daar sneller dan in de gebieden eromheen. Netto vertrokken er afgelopen jaar 14.000 mensen.
Woningen en park op plek van rangeerterrein bij Rotterdamse Kuip
12 november, 9:30
Een rangeerterrein voor treinen tegenover stadion De Kuip in Rotterdam verdwijnt. Op de plek worden woningen en een nieuw station gebouwd. Bovendien moet een park naast het spoor worden uitgebreid.
Ga naar het nieuws-archief
Ronnie Weessies
Redacteur
1
0
0
0
Voor een optimale gebruikservaring plaatst Architectenweb functionele cookies. Wat de verschillende cookies precies doen leggen we uit in een
overzicht
. Cookies van social media kun je optioneel
aanzetten
.
Akkoord
Instellingen
Annuleren
OK
Sluiten
Doorgaan
Inloggen
Maak een gratis persoonlijk account aan
Feedback
Feedback
Wij horen graag jouw feedback. Laat je reactie achter en eventueel jouw e-mail adres.
Reactie
Verstuur