Projecten
Producten
Bedrijven
Vacatures
Agenda
Awards
Podcasts
more_horiz
Videos
Magazine
Thema's
Favorieten
Profiel
Uitloggen
Copyright: Luuk Kramer
Copyright: Luuk Kramer
Copyright: Luuk Kramer
Copyright: Luuk Kramer
Copyright: Luuk Kramer
Copyright: Luuk Kramer
Copyright: Luuk Kramer
Copyright: Luuk Kramer
Copyright: Luuk Kramer
Copyright: Luuk Kramer
Copyright: Luuk Kramer
Copyright: Luuk Kramer
Copyright: Luuk Kramer
Copyright: ANA Architecten
Copyright: ANA Architecten
Copyright: ANA Architecten
Copyright: ANA Architecten
Copyright: ANA Architecten
Copyright: ANA Architecten
Copyright: ANA Architecten
Copyright: ANA Architecten
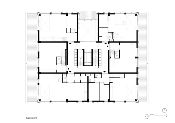
Woningplattegronden
Copyright: ANA Architecten
Copyright: ANA Architecten
Het Schetsblok: flexibel cpo-project met oog op toekomst
14 mei 2019, 14:48
Opgenomen in het
Jaarboek Architectuur in Nederland
en genomineerd voor
BNA Beste Gebouw van het Jaar
, maar toch ook weer niet heel bekend. Het SchetsBlok in Amsterdam is een bijzonder cpo-project, waarbij de individuele keuzes van de bewoners medebepalend waren voor de architectuur. Dankzij een flexibel casco en aanpasbare plattegronden kan het door
ANA Architecten
ontworpen gebouw in de toekomst ook anders worden ingedeeld.
Het Schetsblok, dat samen met twee andere nieuwe woongebouwen een ensemble vormt in de Delftlandpleinbuurt, bestaat uit 25 appartementen. De bewoners konden hun woning in grootte, positie, indeling en afwerking vrij invullen en naast, boven en onder elkaar samenvoegen. Zo zijn op de begane grond appartementen samengevoegd tot maisonnettes en op de zesde (en bovenste) verdieping twee penthouses gerealiseerd.
De woonwensen zijn in individuele ontwerpsessies met de kopers op alle schaalniveaus verwerkt in het ontwerp. Wel golden er regels om de consistentie te verzekeren en geen compromis te hoeven doen aan de esthetische kwaliteiten van het gebouw. De woningen variëren in oppervlakte van 46 tot 150 vierkante meter, laat ANA Architecten weten. Op die manier kunnen alle doelgroepen, van jong tot oud en gezin tot alleenstaand, terecht in het gebouw.
Het Schetsblok dankt zijn flexibiliteit mede aan de scheiding tussen constructie en installaties. Een dragende kern en kolommen in de gevel dragen het gebouw, de niet-dragende woningscheidende wanden kunnen op verschillende posities worden geplaatst.
Het Schetsblok staat samen met het
Pondok
(ontworpen door CRUQ architectuur & stedenbouw) en
WLG Smarlofts
(ontwerp: Space&Matter) op een voormalige schoollocatie aan de Westlandgracht. Rond de gebouwen, alle cpo-projecten, heeft de gemeente Amsterdam samen met de bewoners een park ontworpen. Onder meer via terrassen op de begane grond hebben bewoners van Het SchetsBlok direct toegang tot dit park.
Trefwoorden
cpo
bna beste gebouw van het jaar
ana architecten
amsterdam
cruq architectuur & stedenbouw
space&matter
woningbouw
jaarboek architectuur in nederland
Locatie
Best gelezen
1
Finalisten presenteren ontwerp voor Shift Landmark in Rotterdam
woensdag, 4 maart
2
Nieuwe Hittekaart Woningmarkt 2026 van BPD toont aanhoudende woningdruk
dinsdag, 3 maart
3
Strijp-S krijgt woonbuurtje met karakteristieken voormalig Philips-terrein
maandag, 2 maart
4
Melkmeisje staat model voor woontoren De Catharina in Zaandam
vrijdag, 27 februari
5
Haagse gemeenteraad stemt in met bouw van 11.400 woningen in nieuw stadscentrum
maandag, 2 maart
Gerelateerde nieuwsberichten
Atelier Van Wengerden realiseert woongebouw op Amsterdam Science Park
10 oktober 2019
Nieuwe wijk bij Amersfoort met oog voor ecologie en gemeenschap
3 februari 2021
'Geef ons als Rotterdamse Stadsbouwgroepen toegang tot bouwgrond!'
7 juni 2021
Bouw duurzame wijk Common Woods in Amersfoort gestart
4 juli 2023
Realisatie omvangrijk CPO-project in Zutphen van start
19 januari 2021
CPO met drie verwante rijwoningen door 8A
23 augustus 2021
Lidia Egorova en Bart Nicolaas benoemd tot partner bij Space&Matter
21 januari
Jaarboek Architectuur 2018/2019 officieel gepresenteerd
7 mei 2019
Nominaties BNA Beste Gebouw van het Jaar 2019 bekend
19 maart 2019
Huis VT op Zeeburgereiland opgeleverd
28 februari 2019
Vrachtschip verbouwd tot woonschip
14 september 2017
ANA wint CPO-opdracht in Buiksloterham
6 oktober 2016
Volledig houten lofts in Buiksloterham opgeleverd
7 maart 2016
Twaalf nulenergiewoningen van ANA gerealiseerd
7 oktober 2015
ANA trekt door Europa
11 september 2014
Nulenergiehuizen van ANA op Texel
9 maart 2011
ANA architecten vernieuwt Zeeheldenbuurt
9 september 2010
Noord-Zuidlijn is BNA Beste Gebouw van het Jaar 2019
17 mei 2019
Vier kavels vormen CPO Havenhuis in Deventer
11 februari 2020
Space & Matter ontwerpt groene buurt in Roosendaal
31 maart 2020
De Nijl Architecten realiseert CPO Minidorp aan de rivier
5 augustus 2020
ANA Architecten ontwerpt woongebouw voor gezinnen in Delft
16 februari 2021
Zes lessen rond ‘Gestapeld wonen voor gezinnen’
27 juni 2022
42 levensloopbestendige woningen door ANA architecten in Indische Buurt
25 juli 2022
Bataafse Kamp in Hengelo transformeert van schoolcomplex naar woongebouw
3 november 2022
Atelier Van Wengerden realiseert woongebouw op Amsterdam Science Park
10 oktober 2019
Nieuwe wijk bij Amersfoort met oog voor ecologie en gemeenschap
3 februari 2021
'Geef ons als Rotterdamse Stadsbouwgroepen toegang tot bouwgrond!'
7 juni 2021
Bouw duurzame wijk Common Woods in Amersfoort gestart
4 juli 2023
Realisatie omvangrijk CPO-project in Zutphen van start
19 januari 2021
CPO met drie verwante rijwoningen door 8A
23 augustus 2021
Lidia Egorova en Bart Nicolaas benoemd tot partner bij Space&Matter
21 januari
Jaarboek Architectuur 2018/2019 officieel gepresenteerd
7 mei 2019
Nominaties BNA Beste Gebouw van het Jaar 2019 bekend
19 maart 2019
Huis VT op Zeeburgereiland opgeleverd
28 februari 2019
Vrachtschip verbouwd tot woonschip
14 september 2017
ANA wint CPO-opdracht in Buiksloterham
6 oktober 2016
Volledig houten lofts in Buiksloterham opgeleverd
7 maart 2016
Twaalf nulenergiewoningen van ANA gerealiseerd
7 oktober 2015
ANA trekt door Europa
11 september 2014
Nulenergiehuizen van ANA op Texel
9 maart 2011
ANA architecten vernieuwt Zeeheldenbuurt
9 september 2010
Noord-Zuidlijn is BNA Beste Gebouw van het Jaar 2019
17 mei 2019
Vier kavels vormen CPO Havenhuis in Deventer
11 februari 2020
Space & Matter ontwerpt groene buurt in Roosendaal
31 maart 2020
De Nijl Architecten realiseert CPO Minidorp aan de rivier
5 augustus 2020
ANA Architecten ontwerpt woongebouw voor gezinnen in Delft
16 februari 2021
Zes lessen rond ‘Gestapeld wonen voor gezinnen’
27 juni 2022
42 levensloopbestendige woningen door ANA architecten in Indische Buurt
25 juli 2022
Bataafse Kamp in Hengelo transformeert van schoolcomplex naar woongebouw
3 november 2022
Toon alles
Andere nieuwsberichten
Architect Oliver Thill op 55-jarige leeftijd overleden
Vandaag, 14:27
Afgelopen maandag is op 55-jarige leeftijd architect Oliver Thill overleden. Het door hem en André Kempe opgerichte Atelier Kempe Thill behoort tot de meest gewaardeerde Nederlandse architectenbureaus van de afgelopen 25 jaar.
HvdHA ontwerpt twee woonblokken in Utrecht Terwijde volgens typologie van woonpalazzo
Vandaag, 10:49
In Utrecht Terwijde worden twee woonblokken met 161 sociale huurwoningen naar ontwerp van Hans van der Heijden Architecten gerealiseerd. De gebouwen worden ontworpen volgens de typologie van een ‘woonpalazzo’.
Sweco neemt Belgische activiteiten Conix RDBM Architects over
Gisteren, 16:31
Sweco voegt opnieuw een grote vis toe aan zijn vijver van overgenomen architectenbureaus. Vanaf 30 april zet Conix RDBM Architects zijn Belgische activiteiten voort onder de naam Sweco Architects.
VAi schijnt licht op feministische vrouwenwerkgroep uit de jaren tachtig
Gisteren, 15:47
In de jaren 1980 ging de Vlaamse Werkgroep Vrouwen en Wonen de strijd aan met het heersende patriarchale woon- en maatschappijmodel. Het Vlaams Architectuurinstituut organiseert een tentoonstelling over deze wegbereiders en hun boodschap.
Hardt Hyperloop failliet verklaard door rechtbank
Vandaag, 11:37
Het Rotterdamse bedrijf was bezig met de ontwikkeling van technologie om mensen op hoge snelheid via capsules door een vacuümbuis te vervoeren.
Onderzoek: zeespiegel kustgebieden hoger dan in studies aangenomen
Vandaag, 09:13
De zeespiegel aan de kust is in grote delen van de wereld waarschijnlijk hoger dan in veel wetenschappelijke studies wordt aangenomen.
Gelderland geeft voorrang aan vergunningen met minder stikstof
Gisteren, 12:24
De plannen zijn onderdeel van het pakket maatregelen dat het Gelderse bestuur wil nemen om de vergunningverlening voor zaken als de woningbouw weer op gang te krijgen.
Amsterdam bouwde opnieuw minder woningen dan de bedoeling is
Gisteren, 10:56
Wethouder Steven van Weyenberg spreekt van een ‘sprong in de aantallen’, omdat er in 2025 beduidend meer huizen bijkwamen dan de jaren daarvoor.
Rijksvastgoedbedrijf zet eerste deelgebied nieuwe wijk Valkenhorst in Katwijk te koop
3 maart, 3:26
Op deze locatie mogen de eerste 450 van de in totaal 5.600 woningen worden gebouwd.
Verkoopgolf van woningen door investeerders zet door
2 maart, 2:57
Investeerders hebben in het vierde kwartaal van vorig jaar de meeste woningen verkocht sinds 2021, meldt het Kadaster.
Ga naar het nieuws-archief
Ronnie Weessies
Redacteur
1
0
0
0
Voor een optimale gebruikservaring plaatst Architectenweb functionele cookies. Wat de verschillende cookies precies doen leggen we uit in een
overzicht
. Cookies van social media kun je optioneel
aanzetten
.
Akkoord
Instellingen
Annuleren
OK
Sluiten
Doorgaan
Inloggen
Maak een gratis persoonlijk account aan
Feedback
Feedback
Wij horen graag jouw feedback. Laat je reactie achter en eventueel jouw e-mail adres.
Reactie
Verstuur