Projecten
Producten
Bedrijven
Vacatures
Agenda
Awards
Podcasts
more_horiz
Videos
Magazine
Thema's
Favorieten
Profiel
Uitloggen
Abonneer je nu op onze nieuwsbrieven!
Abonneren
Nee, bedankt
Ja, denk met me mee rond de
materialisering van mijn project
Copyright: Luuk Kramer
Copyright: Luuk Kramer
Copyright: Luuk Kramer
Copyright: Luuk Kramer
Copyright: Luuk Kramer
Copyright: Luuk Kramer
Copyright: Luuk Kramer
Copyright: Luuk Kramer
Copyright: Luuk Kramer
Copyright: Luuk Kramer
Copyright: Luuk Kramer
Copyright: Luuk Kramer
Copyright: Luuk Kramer
Copyright: Luuk Kramer
Copyright: EVA architecten
Copyright: EVA architecten
Copyright: EVA architecten
Copyright: EVA architecten
Kantoorpand met vloeiende vormen
30 mei 2018, 11:31
Transparantie is een van de kernwaarden in de bedrijfsvoering van de organisatie die het kantoorpand gaat gebruiken; transparantie was dan ook een belangrijk uitgangspunt bij het ontwerp, legt
EVA architecten
uit. Het bureau ontwierp kantoorgebouw De Curve in IJsselstein met volledig glazen gevel.
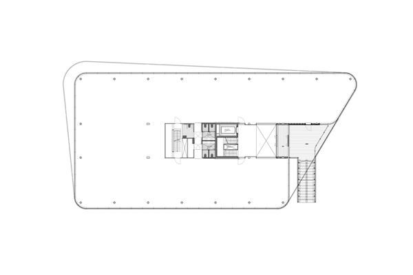
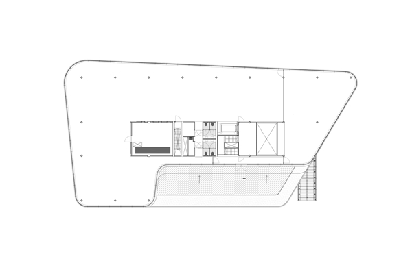
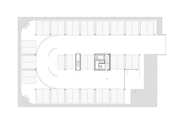
De vorm van het kantoorpand volgt in de basis de bestaande rooilijn van de naastgelegen panden. EVA architecten heeft het volume iets opgetild voor een wat verdiept liggende parkeergarage onder het pand.
De hoeken van het gebouw heeft het bureau afgerond. De gevel springt naar binnen en buiten, waar een verbijzondering gevraagd wordt door programma of functie. De gevel is geheel in glas, zonder stijlen uitgevoerd.
Accent
De gevelband komt op specifieke punten los van de rest van de gevel en zorgt voor overstekken om zoninval te beperken. Ook zijn zonwerend glas en screens aan de binnenzijde toegepast, legt het architectenbureau uit.
Op de hoek met het mooiste uitzicht kraagt de verdieping uit om de hoek te accentueren. Diezelfde verdieping springt terug bij het binnenterrein en creëert zo ruimte voor een daktuin. Ook de entree wordt op deze manier gemarkeerd en verbijzonderd.
Duurzame keuzes
De Curve, met een oppervlakte van 1.600 m
2
, wekt volledig zijn eigen stroom op door zonnepanelen. Het mossedumdak zorgt voor betere infiltratie van het regenwater. CO
2
gestuurde zone-luchtbehandeling en aanwezigheidsdetectors voor de verlichting zorgen ervoor dat er geen energie verspild wordt.
Het gebouw krijgt een energielabel A++++, zo laat EVA architecten weten. Het pand presteert 70% beter op de EPC dan het bouwbesluit vraagt.
Trefwoorden
ijsselstein
eva architecten
kantoor
gevel
Best gelezen
1
Finalisten presenteren ontwerp voor Shift Landmark in Rotterdam
woensdag, 4 maart
2
Architect Oliver Thill op 55-jarige leeftijd overleden
donderdag, 5 maart
3
Nieuwe Hittekaart Woningmarkt 2026 van BPD toont aanhoudende woningdruk
dinsdag, 3 maart
4
Strijp-S krijgt woonbuurtje met karakteristieken voormalig Philips-terrein
maandag, 2 maart
5
Haagse gemeenteraad stemt in met bouw van 11.400 woningen in nieuw stadscentrum
maandag, 2 maart
Gerelateerde nieuwsberichten
EVA architecten ontwerpt schoolgebouw met contrastrijke kanten
14 april 2022
Schoolgebouw met contrasterende kanten
14 augustus 2023
Ingrijpende renovatie van een school voor speciaal onderwijs door EVA architecten
17 april 2025
Een refter in een voormalige drukkerij
31 augustus 2017
Transparant kantoor met zachte hoeken
9 augustus 2016
Loftwoning met verrassende doorzichten
21 maart 2016
Clubhuis HC IJsseloever als een paviljoen op betonnen basement
19 december 2018
Schoolgebouw voor speciaal onderwijs biedt rust en overzicht
7 februari 2019
Transformatie oud zorggebouw maakt plattegrond weer afleesbaar
11 februari 2020
Energieneutrale basisschool voor speciaal onderwijs
9 juni 2020
Ingetogen MFA de Haar naar ontwerp van EVA architecten
8 februari 2022
Vier geknikte woningen langs het water naar ontwerp EVA architecten
19 april 2022
EVA architecten ontwerpt schoolgebouw met contrastrijke kanten
14 april 2022
Schoolgebouw met contrasterende kanten
14 augustus 2023
Ingrijpende renovatie van een school voor speciaal onderwijs door EVA architecten
17 april 2025
Een refter in een voormalige drukkerij
31 augustus 2017
Transparant kantoor met zachte hoeken
9 augustus 2016
Loftwoning met verrassende doorzichten
21 maart 2016
Clubhuis HC IJsseloever als een paviljoen op betonnen basement
19 december 2018
Schoolgebouw voor speciaal onderwijs biedt rust en overzicht
7 februari 2019
Transformatie oud zorggebouw maakt plattegrond weer afleesbaar
11 februari 2020
Energieneutrale basisschool voor speciaal onderwijs
9 juni 2020
Ingetogen MFA de Haar naar ontwerp van EVA architecten
8 februari 2022
Vier geknikte woningen langs het water naar ontwerp EVA architecten
19 april 2022
Toon alles
Andere nieuwsberichten
André Kempe: ‘Het ging Oliver Thill om het geven van betekenis’
Gisteren, 19:15
Agelopen maandag is architect Oliver Thill overleden. Zijn compagnon André Kempe gedenkt de man met wie hij al meer dan 35 jaar bevriend was en ruim een kwarteeuw geleden Atelier Kempe Thill oprichtte.
TconcepT transformeert voormalig warenhuis in Offenbach tot bibliotheek
Gisteren, 15:54
Het 12.000 vierkante meter omvattende complex gaat in bredere zin fungeren als een cultuur- en educatiecentrum met vele functies. In 2027 moet Station Mitte, zoals het gebouw zijn volgende leven wordt genoemd, klaar zijn.
Werkstatt gaat verder zonder medeoprichter Niels Groeneveld
Gisteren, 14:49
Medeoprichter van Werkstatt Niels Groeneveld stopt als partner bij het bureau, om zich te kunnen richten op zijn gezin en onderwijs. Floor Frings en Raoul Vleugels blijven het Eindhovense bureau leiden.
Binationaal ontwerpteam buigt zich over waterhuishouding Cartagena in Colombia
Gisteren, 13:43
Een Colombiaans-Nederlands ontwerpteam met Felixx Landscape Architects & Planners en Witteveen+Bos moedigt Cartagena aan om haar relatie met water te heroverwegen en na te denken over een veerkrachtige toekomst
Kunstmuseum in Den Haag moet worden verbouwd
Gisteren, 16:32
Daarvoor dient het museum in het Statenkwartier waarschijnlijk een tijd te sluiten.
Coen van Oostrom benoemd tot nieuwe voorzitter VNO-NCW
Gisteren, 12:23
De oprichter van ontwikkelaar Edge volgt in die rol Ingrid Thijssen op, die deze week is begonnen als nieuwe bestuursvoorzitter van de TU Delft.
Rapport: lokaal klimaatbeleid schiet nog tekort
Gisteren, 10:25
De makers van de zogeheten Toekomstmeter hebben het beleid van zeventig gemeenten doorgelicht.
Hardt Hyperloop failliet verklaard door rechtbank
5 maart, 11:37
Het Rotterdamse bedrijf was bezig met de ontwikkeling van technologie om mensen op hoge snelheid via capsules door een vacuümbuis te vervoeren.
Onderzoek: zeespiegel kustgebieden hoger dan in studies aangenomen
5 maart, 9:13
De zeespiegel aan de kust is in grote delen van de wereld waarschijnlijk hoger dan in veel wetenschappelijke studies wordt aangenomen.
Gelderland geeft voorrang aan vergunningen met minder stikstof
4 maart, 12:24
De plannen zijn onderdeel van het pakket maatregelen dat het Gelderse bestuur wil nemen om de vergunningverlening voor zaken als de woningbouw weer op gang te krijgen.
Ga naar het nieuws-archief
0
0
0
0
Voor een optimale gebruikservaring plaatst Architectenweb functionele cookies. Wat de verschillende cookies precies doen leggen we uit in een
overzicht
. Cookies van social media kun je optioneel
aanzetten
.
Akkoord
Instellingen
Annuleren
OK
Sluiten
Doorgaan
Inloggen
Maak een gratis persoonlijk account aan
Feedback
Feedback
Wij horen graag jouw feedback. Laat je reactie achter en eventueel jouw e-mail adres.
Reactie
Verstuur