Projecten
Producten
Bedrijven
Vacatures
Agenda
Awards
Podcasts
more_horiz
Videos
Magazine
Thema's
Favorieten
Profiel
Uitloggen
Abonneer je nu op onze nieuwsbrieven!
Abonneren
Nee, bedankt
Ja, denk met me mee rond de
materialisering van mijn project
Copyright: Sebastian van Damme
Copyright: Sebastian van Damme
Copyright: Sebastian van Damme
Copyright: Sebastian van Damme
Copyright: Sebastian van Damme
Copyright: Sebastian van Damme
Copyright: Sebastian van Damme
Copyright: Sebastian van Damme
Copyright: Sebastian van Damme
Copyright: Sebastian van Damme
Copyright: Sebastian van Damme
Copyright: Sebastian van Damme
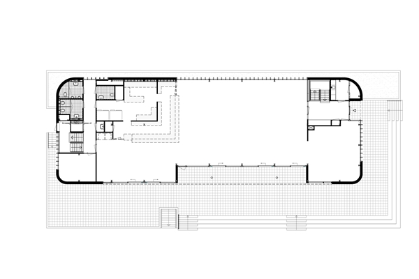
Begane grond
Copyright: EVA
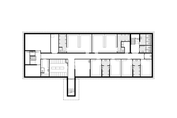
Souterrain
Copyright: EVA
Clubhuis HC IJsseloever als een paviljoen op betonnen basement
19 december 2018, 11:37
Hockeyclub IJsseloever in IJsselstein heeft een nieuw clubhuis. Architectenbureau
EVA
ontwierp een licht en transparant paviljoen op een betonnen souterrain.
Het programma is grofweg te verdelen in de kleedkamers en bijbehorende faciliteiten enerzijds en het feitelijke clubhuis met bar en zithoeken anderzijds. EVA heeft, in samenwerking met
AI'M
, er voor gekozen de kleedruimten en douches deels verdiept te leggen en het clubhuis daar op te plaatsen.
Doordat het clubhuis is opgetild, biedt het mooi zicht over de velden; het verhoogde maaiveld dient als terras en tribune. Het souterrain is vormgegeven in beton. Daarmee contrasterend is het lichte clubhuis voorzien van houten gevelbekleding.
Uitzicht
De veldzijde van het paviljoen hebben de architecten zo transparant mogelijk gehouden met glazen puien, die bij goed weer open kunnen staan. Dat deze zijde gericht is op het uitzicht over de velden, heeft EVA benadrukt door alle overige gevelopeningen te voorzien van lamellen, die het zicht filteren.
De gevel is opgetild naar de zijde van de aankomstroute en ontsluiting van het terrein, om aan te sluiten bij de hoogte van de naastgelegen sporthal. Bovendien geeft de verhoogde gevel de entree en de entreezijde van het gebouw statuur, leggen de architecten uit. De veldzijde is juist laag gehouden om de menselijke maat te behouden. Hier ligt ook het terras.
Het interieur van het clubhuis is opgedeeld in verschillende plekken die kunnen worden geopend of gesloten. Dit maakt de ruimte geschikt voor verschillende manieren van gebruik en verschillende aantallen mensen. Het interieur werd in samenspraak met de leden ontworpen door Karakter Interieurontwerp.
Energieneutraal
EVA heeft, met samenwerkend architect AI'M, in het ontwerp diverse duurzame oplossingen gekozen. Zo is de houten gevelbekleding cradle-to-cradle gecertificeerd en heeft het gebouw waterloze wc’s. Het clubgebouw heeft geen gasaansluiting.
Zonnepanelen op het dak en warmtepompen zorgen ervoor dat het gebouw meer energie opwekt dan het verbruikt, aldus de architecten. Het hoofdveld heeft ledverlichting; binnenkort wordt ook de verlichting van de andere velden vervangen door leds; de verwachting is dat het hele complex dan energieneutraal zal zijn.
Trefwoorden
clubgebouw
sport
clubhuis
eva
ijsselstein
Best gelezen
1
Finalisten presenteren ontwerp voor Shift Landmark in Rotterdam
woensdag, 4 maart
2
Architect Oliver Thill op 55-jarige leeftijd overleden
donderdag, 5 maart
3
Nieuwe Hittekaart Woningmarkt 2026 van BPD toont aanhoudende woningdruk
dinsdag, 3 maart
4
Strijp-S krijgt woonbuurtje met karakteristieken voormalig Philips-terrein
maandag, 2 maart
5
Haagse gemeenteraad stemt in met bouw van 11.400 woningen in nieuw stadscentrum
maandag, 2 maart
Gerelateerde nieuwsberichten
De Curve (EVA) bekroond als Kantoorgebouw van het Jaar 2018
8 november 2018
Winnaars NRP Gulden Feniks 2018 onthuld
28 juni 2018
Kantoorpand met vloeiende vormen
30 mei 2018
Een refter in een voormalige drukkerij
31 augustus 2017
Loftwoning met verrassende doorzichten
21 maart 2016
Schoolgebouw voor speciaal onderwijs biedt rust en overzicht
7 februari 2019
Transformatie oud zorggebouw maakt plattegrond weer afleesbaar
11 februari 2020
De Curve (EVA) bekroond als Kantoorgebouw van het Jaar 2018
8 november 2018
Winnaars NRP Gulden Feniks 2018 onthuld
28 juni 2018
Kantoorpand met vloeiende vormen
30 mei 2018
Een refter in een voormalige drukkerij
31 augustus 2017
Loftwoning met verrassende doorzichten
21 maart 2016
Schoolgebouw voor speciaal onderwijs biedt rust en overzicht
7 februari 2019
Transformatie oud zorggebouw maakt plattegrond weer afleesbaar
11 februari 2020
Toon alles
Andere nieuwsberichten
André Kempe: ‘Het ging Oliver Thill om het geven van betekenis’
Gisteren, 19:15
Agelopen maandag is architect Oliver Thill overleden. Zijn compagnon André Kempe gedenkt de man met wie hij al meer dan 35 jaar bevriend was en ruim een kwarteeuw geleden Atelier Kempe Thill oprichtte.
TconcepT transformeert voormalig warenhuis in Offenbach tot bibliotheek
Gisteren, 15:54
Het 12.000 vierkante meter omvattende complex gaat in bredere zin fungeren als een cultuur- en educatiecentrum met vele functies. In 2027 moet Station Mitte, zoals het gebouw zijn volgende leven wordt genoemd, klaar zijn.
Werkstatt gaat verder zonder medeoprichter Niels Groeneveld
Gisteren, 14:49
Medeoprichter van Werkstatt Niels Groeneveld stopt als partner bij het bureau, om zich te kunnen richten op zijn gezin en onderwijs. Floor Frings en Raoul Vleugels blijven het Eindhovense bureau leiden.
Binationaal ontwerpteam buigt zich over waterhuishouding Cartagena in Colombia
Gisteren, 13:43
Een Colombiaans-Nederlands ontwerpteam met Felixx Landscape Architects & Planners en Witteveen+Bos moedigt Cartagena aan om haar relatie met water te heroverwegen en na te denken over een veerkrachtige toekomst
Kunstmuseum in Den Haag moet worden verbouwd
Gisteren, 16:32
Daarvoor dient het museum in het Statenkwartier waarschijnlijk een tijd te sluiten.
Coen van Oostrom benoemd tot nieuwe voorzitter VNO-NCW
Gisteren, 12:23
De oprichter van ontwikkelaar Edge volgt in die rol Ingrid Thijssen op, die deze week is begonnen als nieuwe bestuursvoorzitter van de TU Delft.
Rapport: lokaal klimaatbeleid schiet nog tekort
Gisteren, 10:25
De makers van de zogeheten Toekomstmeter hebben het beleid van zeventig gemeenten doorgelicht.
Hardt Hyperloop failliet verklaard door rechtbank
5 maart, 11:37
Het Rotterdamse bedrijf was bezig met de ontwikkeling van technologie om mensen op hoge snelheid via capsules door een vacuümbuis te vervoeren.
Onderzoek: zeespiegel kustgebieden hoger dan in studies aangenomen
5 maart, 9:13
De zeespiegel aan de kust is in grote delen van de wereld waarschijnlijk hoger dan in veel wetenschappelijke studies wordt aangenomen.
Gelderland geeft voorrang aan vergunningen met minder stikstof
4 maart, 12:24
De plannen zijn onderdeel van het pakket maatregelen dat het Gelderse bestuur wil nemen om de vergunningverlening voor zaken als de woningbouw weer op gang te krijgen.
Ga naar het nieuws-archief
Robert Muis
Redacteur
0
0
0
0
Voor een optimale gebruikservaring plaatst Architectenweb functionele cookies. Wat de verschillende cookies precies doen leggen we uit in een
overzicht
. Cookies van social media kun je optioneel
aanzetten
.
Akkoord
Instellingen
Annuleren
OK
Sluiten
Doorgaan
Inloggen
Maak een gratis persoonlijk account aan
Feedback
Feedback
Wij horen graag jouw feedback. Laat je reactie achter en eventueel jouw e-mail adres.
Reactie
Verstuur