Projecten
Producten
Bedrijven
Vacatures
Agenda
Awards
Podcasts
more_horiz
Videos
Magazine
Thema's
Favorieten
Profiel
Uitloggen
Copyright: George Terberg
Copyright: George Terberg
Copyright: George Terberg
Copyright: George Terberg
Copyright: George Terberg
Copyright: George Terberg
Copyright: George Terberg
Oorspronkelijke situatie
Copyright: EVA architecten
Het gebouw in 2017
Copyright: EVA architecten
Copyright: EVA architecten
Copyright: EVA architecten
Copyright: EVA architecten
Transformatie oud zorggebouw maakt plattegrond weer afleesbaar
11 februari 2020, 14:05
In IJsselstein is een voormalig zorggebouw uit de jaren zestig getransformeerd tot woongebouw met drie appartementen. Naar ontwerp van
EVA architecten
zijn de oorspronkelijke uitstraling en indeling van het gebouw in ere hersteld. De woonvertrekken liggen in het opnieuw transparant gemaakte centrale deel, slaapkamers en andere secundaire kamers bevinden zich in de meer gesloten zijbeuken.
Het ‘Wit-Gele Kruisgebouw’, zoals het pand aan de Kasteellaan heet, stamt uit 1962 en is een goed voorbeeld van de late wederopbouwarchitectuur. Het gebouw heeft een eenvoudige, heldere vorm en de gevel is opgedeeld in een transparant middendeel en twee zijbeuken van metselwerken. Aan de kopgevels bevinden zich meer ramen en andere gevelopeningen.
Was in de oorspronkelijke situatie de plattegrond afleesbaar aan de gevel, door verbouwingen door de jaren heen verrommelde dit beeld. Functies werden anders gesitueerd en het glazen middendeel werd bijvoorbeeld vervangen door een geslotener indeling met kozijnen. De laatste zorgfunctie voor de sluiting van het gebouw in 2017 was een consultatiebureau.
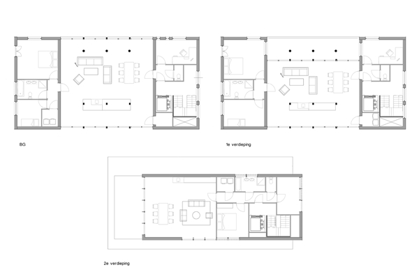
In de nieuwe situatie is van iedere verdieping een appartement gemaakt. De woonvertrekken in het midden hebben aan de kant van het Kasteelpark vrij zicht, terwijl ook de functies in de zijbeuken met nieuw glas ruim zijn voorzien van zicht en daglicht. Verder is op deze manier de plattegrond opnieuw afleesbaar gemaakt aan de gevel. Overal is triple glas toegepast.
Op het gebouw is een nieuw volume met een derde appartement geplaatst. De opbouw is eveneens vormgegeven als een eenvoudig en ingetogen gedetailleerd volume. Dat het een nieuwe toevoeging betreft, is onder meer af te lezen aan zijn afwijkende vorm, verschoven ligging en de gevelbekleding met antraciet hout.
Trefwoorden
transformatie
zorggebouw
woningbouw
eva architecten
ijsselstein
woongebouw
Locatie
Best gelezen
1
Realisatie woongebouw Atlas I naast Essalammoskee in Rotterdam-Zuid gestart
woensdag, 10 december
2
Architecten tonen voorstellen voor woningbouw in tussenruimtes Wallengebied
donderdag, 11 december
3
Kollhoff & Pols realiseert 58 woningen in monumentale panden Den Haag
dinsdag, 9 december
4
Pixelgevel van MVRDV versterkt uitstraling modulaire woontorens in Singapore
maandag, 8 december
5
Gebouwen niet slopen, maar langzaam laten rijpen
donderdag, 11 december
Gerelateerde nieuwsberichten
EVA ontwerpt herbestemming Suikerunie-kantoor in dialoog met Quist
28 september 2021
EVA architecten ontwerpt schoolgebouw met contrastrijke kanten
14 april 2022
EVA architecten ontwerpt demontabel houten kantoorpand
31 mei 2023
Schoolgebouw met contrasterende kanten
14 augustus 2023
Ingrijpende renovatie van een school voor speciaal onderwijs door EVA architecten
17 april
Schoolgebouw voor speciaal onderwijs biedt rust en overzicht
7 februari 2019
Kantoorpand met vloeiende vormen
30 mei 2018
Een refter in een voormalige drukkerij
31 augustus 2017
Transparant kantoor met zachte hoeken
9 augustus 2016
Loftwoning met verrassende doorzichten
21 maart 2016
Winnaars NRP Gulden Feniks 2018 onthuld
28 juni 2018
Clubhuis HC IJsseloever als een paviljoen op betonnen basement
19 december 2018
De Curve (EVA) bekroond als Kantoorgebouw van het Jaar 2018
8 november 2018
Nieuwe jas voor monumentaal verpleeghuis
28 september 2012
Bibliotheek en Rabobank IJsselstein opgeleverd
7 juni 2012
Restauratie monumentaal complex in centrum Haarlem gestart
18 mei 2020
Energieneutrale basisschool voor speciaal onderwijs
9 juni 2020
Ingetogen MFA de Haar naar ontwerp van EVA architecten
8 februari 2022
Vier geknikte woningen langs het water naar ontwerp EVA architecten
19 april 2022
EVA ontwerpt herbestemming Suikerunie-kantoor in dialoog met Quist
28 september 2021
EVA architecten ontwerpt schoolgebouw met contrastrijke kanten
14 april 2022
EVA architecten ontwerpt demontabel houten kantoorpand
31 mei 2023
Schoolgebouw met contrasterende kanten
14 augustus 2023
Ingrijpende renovatie van een school voor speciaal onderwijs door EVA architecten
17 april
Schoolgebouw voor speciaal onderwijs biedt rust en overzicht
7 februari 2019
Kantoorpand met vloeiende vormen
30 mei 2018
Een refter in een voormalige drukkerij
31 augustus 2017
Transparant kantoor met zachte hoeken
9 augustus 2016
Loftwoning met verrassende doorzichten
21 maart 2016
Winnaars NRP Gulden Feniks 2018 onthuld
28 juni 2018
Clubhuis HC IJsseloever als een paviljoen op betonnen basement
19 december 2018
De Curve (EVA) bekroond als Kantoorgebouw van het Jaar 2018
8 november 2018
Nieuwe jas voor monumentaal verpleeghuis
28 september 2012
Bibliotheek en Rabobank IJsselstein opgeleverd
7 juni 2012
Restauratie monumentaal complex in centrum Haarlem gestart
18 mei 2020
Energieneutrale basisschool voor speciaal onderwijs
9 juni 2020
Ingetogen MFA de Haar naar ontwerp van EVA architecten
8 februari 2022
Vier geknikte woningen langs het water naar ontwerp EVA architecten
19 april 2022
Toon alles
Andere nieuwsberichten
Faculteit ITC Universiteit Twente onderscheiden met Abe Bonnema Architectuurprijs 2025
12 december, 5:30
Vrijdag ontving Civic Architects de prijs en het bijbehorend geldbedrag van 50.000 euro uit handen van Ed Nijpels, voorzitter van de ir. Abe Bonnema Stichting.
MVRDV werkt aan renovatie boeddhistisch klooster in Franse Dordogne
12 december, 11:37
Naar ontwerp van MVRDV en het plaatselijke architectenbureau MoonWalkLocal ondergaat het boeddhistische klooster Plum Village in de Franse Dordogne een grote renovatie.
Studio for New Realities ontwerpt twee woongebouwen in District U
12 december, 10:00
De transformatie van het voormalige Unilever-terrein in Vlaardingen gaat een nieuwe fase in nu gestart is met de bouw van de eerste woningbouwprojecten.
Wanden uit leemsteen verbinden woning met Limburgs landschap
12 december, 9:00
In de landelijke omgeving van Weert, in het noorden van Limburg, heeft De Nieuwe Context een woning ontworpen waar wanden uit leemsteenblokken de verbinding tussen binnen en buiten manifest maken.
RIVM: verbeterde luchtkwaliteit leidde tot afname sterfte
12 december, 12:27
Een verbeterde luchtkwaliteit heeft ervoor gezorgd dat er tussen 1995 en 2019 een kwart minder mensen zijn overleden na dagen met verhoogde concentraties van luchtverontreinigende stoffen.
Zuid-Holland: met dubbel agrarisch ruimtegebruik stroom voor 700.000 huizen
12 december, 11:06
De provincie heeft laten uitzoeken waar de combinatie van landbouw en zonnepanelen in theorie mogelijk is.
Miljarden extra nodig voor aanleg landelijk waterstofnetwerk
11 december, 3:13
Volgens de Algemene Rekenkamer zijn de verwachte opstartverliezen meer dan drie keer zo hoog als het beschikbare subsidiebedrag van 750 miljoen euro.
Brussel wil snellere vergunningen voor elektriciteitsprojecten
11 december, 1:39
De Europese Commissie wil dat elektriciteitsnetwerken van lidstaten beter op elkaar aansluiten.
Zeeland stopt samenwerking met aannemers over aanpak Zeelandbrug
10 december, 1:56
Volgens de provincie heeft de aannemerscombinatie een kostenraming gepresenteerd die fors boven het eerder vastgestelde budget van 5,5 miljoen euro ligt.
Verbreding Betuwelijn in Duitsland duurt nog minstens tien jaar
10 december, 12:30
De bedoeling is dat er in Duitsland meer dan zeventig kilometer spoor bijkomt, elf stations worden omgebouwd en 47 viaducten en bruggen worden aangepast.
Ga naar het nieuws-archief
Ronnie Weessies
Redacteur
0
0
0
0
Voor een optimale gebruikservaring plaatst Architectenweb functionele cookies. Wat de verschillende cookies precies doen leggen we uit in een
overzicht
. Cookies van social media kun je optioneel
aanzetten
.
Akkoord
Instellingen
Annuleren
OK
Sluiten
Doorgaan
Inloggen
Maak een gratis persoonlijk account aan
Feedback
Feedback
Wij horen graag jouw feedback. Laat je reactie achter en eventueel jouw e-mail adres.
Reactie
Verstuur