Projecten
Producten
Bedrijven
Vacatures
Agenda
Awards
Podcasts
more_horiz
Videos
Magazine
Thema's
Favorieten
Profiel
Uitloggen
Copyright: PF Visual
Copyright: PF Visual
Copyright: EVA architecten
Copyright: EVA architecten
EVA architecten ontwerpt schoolgebouw met contrastrijke kanten
14 april 2022, 9:00
In opdracht van de Utrechtse scholengroep PCOU Willbrord heeft
EVA architecten
een nieuw gebouw ontworpen voor basisschool De Boemerang in de volksbuurt Ondiep. Aan de straatzijde sluit het gebouw aan bij zijn omgeving; de achterzijde vormt juist een verzachtend contrast.
Ondiep is een buurt ten noorden van het stadscentrum, die is gebouwd tussen 1915 en 1930. De ruimtelijke structuur van de buurt is vooral in de jaren twintig aangelegd op basis van een plan door H.P. Berlage en de Utrechtse ambtenaar L.P. Holsboer. Ondiep kenmerkt zich door een orthogonale verkaveling met een parallel patroon van hoofdstraten, aangeduid als ‘de stemvork’.
Orthogonaal en stenig
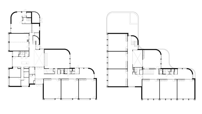
Van oorsprong bestaat de buurt met name uit woningbouw. De locatie van de school is een beëindiging van zo’n woonblok; in zijn voorgevel op de kop laat EVA de school dan ook aansluiten op de orthogonale vormgevingstaal en – met baksteen – de materialen van de wijk.
Aangezien Ondiep grotendeels is versteend en weinig ruimte voor groen biedt, was een deel van de opgave om groen aan de wijk toe te voegen en het plein leefbaarder te maken. Dat doet EVA door het gebouw iets terug van de stoep te leggen en zo ruimte voor een groen voorplein te creëren.
Ook aan de zijkanten springt op strategische punten de gevel terug, zodat er ruimte ontstaat voor groenvoorzieningen. Niet alleen de wijk heeft daar profijt van; vanuit het schoolgebouw is er eveneens zicht is op dat groen, legt het architectenbureau uit.
Verzachting
Aan de achterzijde, weg van de straat, bevindt zich het schoolplein. In contrast met de harde en hoekige voorzijde past EVA hier een zachte vormentaal toe, met vloeiende vormen en een warme gevelbekleding in hout. De meanderende gevel zorgt op een vanzelfsprekende wijze voor beschutte plekken op de pleinen, onderverdeeld voor onder- en bovenbouw.
In het hart van de school bevindt zich het ‘Boemerang-café’. De ruimte is bedoeld door bijeenkomsten van de school – met leerkrachten, leerlingen of ouders – maar ook voor gebruik door de buurt. Vanuit deze centrale ruimte zijn de diverse groepen bereikbaar. Die hebben daarnaast alle een eigen entree aan de verschillende pleinen, legt EVA uit.
De basisschool biedt ruimte aan tien lokalen en een gymzaal en krijgt een totale oppervlakte van 1.400 m
2
. Het landschap en de pleinen is een ontwerp van
Buro Beuk
.
Trefwoorden
onderwijs
gevel
utrecht
buro beuk
schoolgebouw
eva architecten
Locatie
Best gelezen
1
Rotterdam presenteert definitief ontwerp voor verbouwing Boijmans van Beuningen
donderdag, 30 oktober
2
Spectaculaire overkapping voor vernieuwd Arnhems busstation Kronenburg
maandag, 3 november
3
Oude werkplaats Rotterdamse haven getransformeerd tot 'basecamp' logistiek bedrijf
donderdag, 30 oktober
4
Groot Egyptisch Museum naar ontwerp van Heneghan Peng en West 8 officieel geopend
maandag, 3 november
5
Carlijn Kingma biedt voorproef nieuw werk in kunstgalerie Brutus
donderdag, 30 oktober
Gerelateerde nieuwsberichten
Ingetogen MFA de Haar naar ontwerp van EVA architecten
8 februari 2022
EVA ontwerpt herbestemming Suikerunie-kantoor in dialoog met Quist
28 september 2021
Team onder leiding van VORM wint selectie woningbouwplan Roots
22 april 2021
Nominaties 'Schoolgebouw van het Jaar 2020' bekend
16 september 2020
EVA architecten ontwerpt demontabel houten kantoorpand
31 mei 2023
Energieneutrale basisschool voor speciaal onderwijs
9 juni 2020
Transformatie oud zorggebouw maakt plattegrond weer afleesbaar
11 februari 2020
De Curve (EVA) bekroond als Kantoorgebouw van het Jaar 2018
8 november 2018
Winnaars NRP Gulden Feniks 2018 onthuld
28 juni 2018
Kantoorpand met vloeiende vormen
30 mei 2018
Een refter in een voormalige drukkerij
31 augustus 2017
Omega is demontabel en hout-hybride kantoorpand van EVA architecten
9 september 2024
Transparant kantoor met zachte hoeken
9 augustus 2016
Loftwoning met verrassende doorzichten
21 maart 2016
Een hellingbaan door de school voor vertrouwen en kracht
4 juli 2023
Vier geknikte woningen langs het water naar ontwerp EVA architecten
19 april 2022
Passende schooluitbreiding met eigen karakter door studio Nuy van Noort
25 april 2022
Architecten|en|en ontwerpt nieuwbouw voor breed onderwijsaanbod
20 juni 2022
Ingetogen MFA de Haar naar ontwerp van EVA architecten
8 februari 2022
EVA ontwerpt herbestemming Suikerunie-kantoor in dialoog met Quist
28 september 2021
Team onder leiding van VORM wint selectie woningbouwplan Roots
22 april 2021
Nominaties 'Schoolgebouw van het Jaar 2020' bekend
16 september 2020
EVA architecten ontwerpt demontabel houten kantoorpand
31 mei 2023
Energieneutrale basisschool voor speciaal onderwijs
9 juni 2020
Transformatie oud zorggebouw maakt plattegrond weer afleesbaar
11 februari 2020
De Curve (EVA) bekroond als Kantoorgebouw van het Jaar 2018
8 november 2018
Winnaars NRP Gulden Feniks 2018 onthuld
28 juni 2018
Kantoorpand met vloeiende vormen
30 mei 2018
Een refter in een voormalige drukkerij
31 augustus 2017
Omega is demontabel en hout-hybride kantoorpand van EVA architecten
9 september 2024
Transparant kantoor met zachte hoeken
9 augustus 2016
Loftwoning met verrassende doorzichten
21 maart 2016
Een hellingbaan door de school voor vertrouwen en kracht
4 juli 2023
Vier geknikte woningen langs het water naar ontwerp EVA architecten
19 april 2022
Passende schooluitbreiding met eigen karakter door studio Nuy van Noort
25 april 2022
Architecten|en|en ontwerpt nieuwbouw voor breed onderwijsaanbod
20 juni 2022
Toon alles
Andere nieuwsberichten
Vakwerk Architecten uitgeroepen tot Architect van het Jaar 2025
Gisteren, 22:00
Tijdens de uitreiking van de Architectenweb Awards 2025, op woensdagavond 5 november 2025 in het Keilepand in Rotterdam, is Vakwerk Architecten uitgeroepen tot Architect van het Jaar 2024.
Fenix, kunstmuseum over migratie, is Publiek gebouw van het Jaar 2025
Gisteren, 21:55
Fenix, kunstmuseum over migratie, ontworpen door MAD, Bureau Polderman en EGM architecten, is op de prijsuitreiking van de Architectenweb Awards 2025 uiteroepen tot Publiek gebouw van het Jaar 2025.
Dijkmagazijn Scharwoude wint prijs voor Interieur van het Jaar 2025
Gisteren, 21:50
Dijkmagazijn Scharwoude, ontworpen door Common Practice, heeft op de prijsuitreiking van de Architectenweb Awards 2025 de prijs voor Interieur van het Jaar 2025 gewonnen.
Maggie’s Center Groningen onderscheiden als Zorggebouw van het Jaar 2025
Gisteren, 21:45
Maggie's Center Groningen, ontworpen door Marlies Rohmer Architecture & Urbanism, is bij de prijsuitreiking van de Architectenweb Awards 2025 onderscheiden als Zorggebouw van het Jaar 2025.
Arons en Gelauff benoemt drie associates
4 november, 12:05
Eva Heldeweg, Gijs Beckman en Thom Zijlstra zijn benoemd tot associate partner bij Arons en Gelauff architecten.
DigiBouw 2025 – enkele tips
4 november, 11:14
Op 19 en 20 november 2025 vindt in het Beatrixgebouw van de Jaarbeurs in Utrecht de tweede editie van DigiBouw plaats. Enkele tips voor sessies die voor architecten van toegevoegde waarde zijn.
Limburg trekt vijftig miljoen uit voor woningbouw bij intercitystations
3 november, 5:13
De provincie Limburg trekt vijftig miljoen euro uit voor de plannen om tot 2040 ruim 30.000 woningen in de buurt van intercitystations te bouwen.
Corporaties lenen voor het eerst honderd miljard bij Waarborgfonds
3 november, 9:51
Daarmee kunnen woningcorporaties volgens koepel Aedes bouwdoelen voor de komende jaren halen en sociale huurwoningen verduurzamen.
Coalitie Zuid-Holland bezorgd om woningbouw: mag niet vastlopen
31 oktober, 4:46
Binnen de Zuid-Hollandse coalitie heerst onvrede over de koers van de provincie voor woningbouw.
Aanbesteding voor nieuw windmolenpark op zee krijgt nul reacties
31 oktober, 12:10
Volgens demissionair minister Sophie Hermans zijn tenders voor de bouw van windmolenparken zonder subsidie niet meer mogelijk.
Ga naar het nieuws-archief
Robert Muis
Redacteur
1
0
0
0
Voor een optimale gebruikservaring plaatst Architectenweb functionele cookies. Wat de verschillende cookies precies doen leggen we uit in een
overzicht
. Cookies van social media kun je optioneel
aanzetten
.
Akkoord
Instellingen
Annuleren
OK
Sluiten
Doorgaan
Inloggen
Maak een gratis persoonlijk account aan
Feedback
Feedback
Wij horen graag jouw feedback. Laat je reactie achter en eventueel jouw e-mail adres.
Reactie
Verstuur