Projecten
Producten
Bedrijven
Vacatures
Agenda
Awards
Podcasts
more_horiz
Videos
Magazine
Thema's
Favorieten
Profiel
Uitloggen
Nieuw
Populair
Toon alles
Architectenweb magazine #14
Architectenweb magazine #13
Publieke gebouwen
Architectenweb magazine #12
Kantoren
Architectenweb magazine #11
Scholen
Architectenweb magazine #10
Zorg
Architectenweb magazine #14
Architectenweb magazine #10
Zorg
Architectenweb magazine #12
Kantoren
Architectenweb magazine #13
Publieke gebouwen
Architectenweb magazine #6
Transformatie en Renovatie
Om direct naar je favorieten te kunnen gaan is het nodig om eerst in te loggen.
Nieuw
Architectenweb Awards 2025
Architectenweb Awards 2024
Architectenweb Awards 2023
Architectenweb Awards 2022
Architectenweb Awards 2021
Architectenweb Awards 2020
Architectenweb Awards 2019
Architectenweb Awards 2018
Om direct naar je favorieten te kunnen gaan is het nodig om eerst in te loggen.
Nieuw
Populair
Favorieten
Toon alles
Vakwerk Architecten
Nominatie voor de prijs voor Architect van het Jaar 2025
Sanne van Manen
Nominatie voor de prijs voor Architect van het Jaar 2025
KSA
Nominatie voor de prijs voor Architect van het Jaar 2025
KRFT
Nominatie voor de prijs voor Architect van het Jaar 2025
Joost Ector
Nominatie voor de prijs voor Architect van het Jaar 2025
Prijsuitreiking Architectenweb Awards 2024
Impressie van een feestelijke avond
Martens, Willems & Humblé Architecten
Nominatie voor de prijs voor Architect van het Jaar 2024
Uitreiking van Architectenweb Awards 2020
Impressie van de prijsuitreiking via Zoom
De Zwarte Hond
Nominatie voor de prijs voor Architect van het Jaar 2024
Avond met De Zwarte Hond
Symposium
Om direct naar je favorieten te kunnen gaan is het nodig om eerst in te loggen.
Nieuw
Populair
Categorieën
Favorieten
Toon alles
Brandpreventie Academy BV
Cay Circulaire Keukens
Circulaire keukens en pantry's
Studio Kirsten Reith
Interieurontwerp
Studio175
Interieuradvies in regio Utrecht
Orange Automatic Doors
Indoorwrap
De specialist in Keukenwrappen
Cay Circulaire Keukens
Circulaire keukens en pantry's
Studio Kirsten Reith
Interieurontwerp
Studio175
Interieuradvies in regio Utrecht
Interior & Co
Indoorwrap
De specialist in Keukenwrappen
Orange Automatic Doors
Architecten
Architectuur
Mobiliteit en infrastructuur
Stedenbouw en landschapsarchitectuur
Leveranciers
Gevels
Daken
Ramen en deuren
Trappen, liften en balustrades
Binnenwanden
Vloeren
Plafonds
Verlichting
Sanitair
Projectinrichting
Installaties
Constructies
Buitenruimte
Software
Adviseurs
Bestekschrijvers
Bouwmanagement
Installatie adviseurs E
Bouwfysica
Calculators
Installatie adviseurs G/W
Bouwkundig tekenwerk
Constructeurs
Lichtadviseurs
Adviseur beveiliging
Juristen
Intermediairs, Payrolling
Aannemers
Overig
Presentatie
Instellingen / onderwijs
Overig
Om direct naar je favorieten te kunnen gaan is het nodig om eerst in te loggen.
Nieuw
Populair
Favorieten
Toon alles
Gesprek met Stephan Sliepenbeek over hoogbouw in Amstel III
Gesprek met Ellen van Bueren over gebiedsontwikkeling en hoogbouw
Gesprek met Ma Yansong over ontwerpen die emotie oproepen
Gesprek met Paul de Ruiter over innovatieve en duurzame hoogbouw
Gesprek met Pi de Bruijn over zijn ontwerpen voor de Tweede Kamer toen en nu
Gesprek met Ellen van Bueren over gebiedsontwikkeling en hoogbouw
Gesprek met Oresti Sarafopoulos over het ontwerpen van een kantoorgebouw met bijna geen installaties
Gesprek met Stijn Steenbakkers over verdichting en hoogbouw in Eindhoven
Gesprek met Pi de Bruijn over zijn ontwerpen voor de Tweede Kamer toen en nu
Gesprek met Paul de Ruiter over innovatieve en duurzame hoogbouw
Om direct naar je favorieten te kunnen gaan is het nodig om eerst in te loggen.
Nieuw
Populair
Categorieën
Favorieten
Toon alles
De energiemarkt revolutionair vernieuwen
Festivalterrein als inspiratie van dit kantoor
De antieke Agora als inspiratie voor een kantoor
Renovatieproject Ockenburghstraat
Aluminium kozijnen: de isolerende oplossing
Prinsenpark, Rotterdam
ASML Gebouw 3
IVY, Amsterdam
IKC De Brug
Houthavens, Amsterdam
Architectuur
Woningbouw
Zorg
Hotels
Restaurants en café’s
Winkels
Sportgebouwen
Culturele gebouwen
Overheidsgebouwen
Scholen
Kantoren
Bedrijfsgebouwen
Paviljoens en kunst
Overig
Mobiliteit en infrastructuur
Trein- en metrostations
Luchthavens
Busstations
Parkeergarages
Fietsparkeren
Wegen
Bruggen
Water
Energie
Tankstations en laadstations
Waterzuivering en afvalverwerking
Overig
Stedenbouw en landschapsarchitectuur
Regionale visies
Gebiedsvisies
Plannen stedelijk weefsel
Amusementsparken en dierentuinen
Lichtontwerpen
Openbare ruimte
Pleinen
Parken
Tuinen
Speelplaatsen
Uitkijktorens
Overige (bijv. begraafplaatsen)
Om direct naar je favorieten te kunnen gaan is het nodig om eerst in te loggen.
Nieuw
Populair
Categorieën
Favorieten
Toon alles
Control Track Versa
Langdurige flexibiliteit voor kantoren van de toekomst
Toegankelijkheid in de stad: klanktegels als gids
Een nieuwe dimensie in stadsontwerp: integreren van klank voor een inclusieve ervaring.
Dreentegel
Terug van weggeweest
Flux-totaalaanbod vraaggestuurde Renson WTW-ventilatie
Compacte wand- en plafondmontage voor alle debieten
Wie denkt er aan slopen tijdens bouwen?
Kies voor de toekomst, kies voor circulair isoleren!
Digital Prints
Meer mogelijkheden in gekleurd staal
Element+ H-I
Hout - Aluminium Elementgevel
Vierkante vluchtroutearmaturen voor grote ruimtes
Zichtbare veiligheid van alle kanten
GROHE Cubeo: kranen voor elke badkamer
Stijlvol en duurzaam design voor jarenlang plezier
Schüco Zonweringsysteem Integralmaster in FWS
Bescherming tegen zon, verblinding en privacy – verborgen en volledig geïntegreerd
Gevels
Gevelbekleding
Vliesgevels
Zonwering buiten
Isolatie
Gevelconstructies
Signing
Overig
Daken
Dakafwerkingen
Dakisolatie
Dakconstructies
Dakranden, dakgoten en HWA's
Dakramen
Lichtkoepels
Lichtstraten
Schoorstenen
Overig
Dakluiken
Ramen en deuren
Raam- en deursystemen / kozijnen
Vliesgevels
Hang- en sluitwerk
Beveiliging en luiken
Dorpels en vensterbanken
Lateien
Roosters
Glas
Dakramen
Dakkoepels
Lichtstraten
Zonwering buiten
Zonwering binnen
Buitendeuren
Binnendeuren
Postvakken en brievenbussen
Overig
Dakluiken
Trappen, liften en balustrades
Trappen
Roltrappen
Liften
Balustrades en hekwerken
Galerijen
Binnenwanden
Binnenwanden
Wandafwerking
Vloeren
Constructieve vloeren
Verhoogde vloeren
Vloerafwerkingen
Overig
Plafonds
Tegels
Lineair
Grill
Open en roosters
Naadloos
Eilanden en baffles
Plafondafwerkingen
Ophangsystemen
Overig
Klimaatplafonds
Verlichting
Binnenverlichting
Buitenverlichting
Sanitair
Kranen en douchesets
Wastafels
Douchewanden en douchebakken
Baden
Waterclosets
Accessoires
Overig
Projectinrichting
Stoelen
Banken
Tafels
Kasten
Balies
Vrijstaande wanden
Keukens
Accessoires
Overig
Cabines
Interieurbeplanting
Stoffering
Installaties
Verwarming, koeling en ventilatie
Elektrotechnische installaties
Schakelmateriaal
Domotica
Deurcommunicatie
Beveiliging
Liften
Onderhoudsinstallaties
Overig
Brandbeveiliging
Constructies
Draagconstructies
Funderingen en kelders
Overig
Brandbeveiliging
Buitenruimte
Bestratingen en verhardingen
Afwateringen
Terreinafscheidingen en geluidsschermen
Buitenmeubilair
Fietsparkeren
Terrassen
Terrasoverkappingen
Bruggen
Accessoires
Overig
Beplanting
Sport- en speeltoestellen
Software
Tekenen 2D
Modelleren 3D / BIM
Visualisatie / rendering
Parametrisch ontwerpen
Bouwfysica
Draagconstructie
Overig
Virtual Reality
Cloudoplossingen
Om direct naar je favorieten te kunnen gaan is het nodig om eerst in te loggen.
Nieuw
Populair
Favorieten
Toon alles
Zomerwandelingen Nieuwe Stad op Zondag 2025
Amsterdam
Prefab beurs - 7 t/m 9 oktober 2025
Brabanthallen 's-Hertogenbosch
Boekpresentatie en panelgesprek met Floor Milikowsky
Prins Hendrikkade 600, 1011 VX Amsterdam
Architects Table ’25: Lunch & Inspiratie in HAUT Amsterdam
ATAG LIVE – HAUT gebouw, Spaklerweg 10F, 1096 BA Amsterdam (tegenover metrostation Spaklerweg)
Inspiratiedag @ Sempergreen – Gevelgroen
Defensieweg 1, 3984 LR Odijk
Ontdek het seminarieprogramma van Architect@Work Amsterdam
De Kromhouthal, Gedempt Hamerkanaal 231, Amsterdam
Architects Table ’25: Lunch & Inspiratie in HAUT Amsterdam
ATAG LIVE – HAUT gebouw, Spaklerweg 10F, 1096 BA Amsterdam (tegenover metrostation Spaklerweg)
Boekpresentatie en panelgesprek met Floor Milikowsky
Prins Hendrikkade 600, 1011 VX Amsterdam
InterSolution 2026, dé netwerk- en vakbeurs voor zonne-energie
Flanders Expo (Hal 8) Maaltekouter 1 B - 9051 Gent / België
LIAG over duurzaamheid centraal in project
Online
Om direct naar je favorieten te kunnen gaan is het nodig om eerst in te loggen.
Nieuw
Toon alles
Design
Duurzaamheid
Gevel
Infrastructuur
Interieur
Kantoren
Leisure
Openbare ruimte
Publieke gebouwen
Scholen
Transformatie en Renovatie
Woningbouw
Zorg
Om direct naar je favorieten te kunnen gaan is het nodig om eerst in te loggen.
Nieuw
Populair
Toon alles
Junior Architect (NL/EN)
De Academie van Bouwkunst Amsterdam zoekt twee onderzoekers voor lectoraat
Site Practice zoekt medior architect met 3-6 jaar ervaring (Amsterdam)
DAT zoekt een BIM Modelleur (Revit)
stagiair bouwkunde Heerenveen
Meewerkend Voorman
Architect
Junior Architect gezocht!
Junior Ontwerper
Studio Nauta zoekt projectleider
wUrck zoekt junior Architect
Project Architect
Om direct naar je favorieten te kunnen gaan is het nodig om eerst in te loggen.
Voorgevel Nicolaasschool Rotterdam
Copyright: studio Nuy van Noort, VERO digital
Gevel schoolpleinzijde Nicolaasschool Rotterdam
Copyright: studio Nuy van Noort, VERO digital
Centrale ruimte nieuwbouw met tribunetrap
Copyright: studio Nuy van Noort, VERO digital
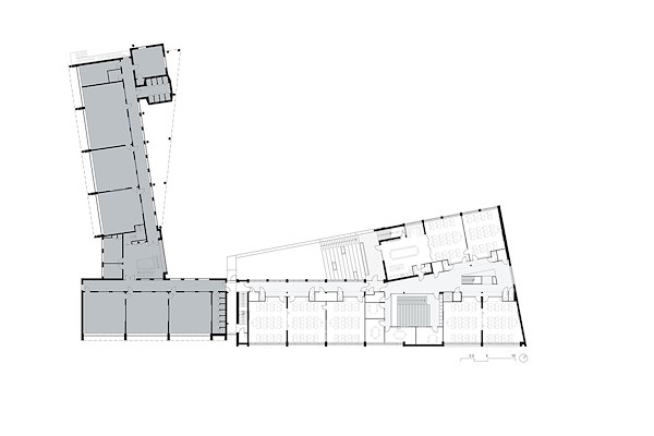
Plankaart
Copyright: studio Nuy van Noort
Begane grond
Copyright: studio Nuy van Noort
Eerste verdieping
Copyright: studio Nuy van Noort
Tweede verdieping
Copyright: studio Nuy van Noort
Passende schooluitbreiding met eigen karakter door studio Nuy van Noort
25 april 2022, 17:21
Voor de bestaande Nicolaasschool in de Rotterdamse wijk Bospolder-Tussendijken bestaat behoefte aan uitbreiding.
Studio Nuy van Noort
heeft compacte nieuwbouw ontworpen, die zowel een eigen uitstraling heeft als een duidelijke familie vormt met het bestaande gebouw.
Zowel haar situering als sociale functie geven de Nicolaasschool een centrale plek in de wijk, vertelt studio Nuy van Noort. Het architectenbureau heeft in opdracht van de Rotterdamse Vereniging voor Katholiek Onderwijs RVKO een uitbreiding van het bestaande gebouw ontworpen.
Trapsgewijs
Het volume steekt uit ten opzichte van de oudbouw en krijgt een sterk accent op de hoek, waarmee studio Nuy van Noort een duidelijke verbinding met het Park 1943 creëert. Daarnaast zorgt het architectenbureau met de nieuwbouw voor een omarming van het schoolplein.
Het nieuwbouwdeel daalt stapsgewijs per verdieping af naar de begane grond en het schoolplein. Een royale tribunetrap doet hierin mee. Het architectenbureau zorgt op deze manier voor een zachte landing en tegelijkertijd een reeks groene terrassen als extra gebruiksruimte, in aanvulling op het schoolplein.
De grote tribunetrap biedt mogelijkheden voor bijeenkomsten in de buitenlucht, voor buitenonderwijs, of als speel- en ontmoetingsplek.
Eigen karakter
De nieuwbouw vormt duidelijk een zelfstandig gebouw, doordat het iets los is gehouden van het bestaande gebouw. Ook in uitstraling heeft de nieuwbouw een eigen karakter, terwijl studio Nuy van Noort er ook heeft gezorgd dat beide gebouwen duidelijk familie zijn en één school vormen.
Met een zorgvuldig en ambachtelijk gebruik van materialen streeft het architectenbureau naar een warme en tactiele uitstraling voor de gevel. Door toepassing van een roodbruine baksteen sluit de nieuwbouw aan op het bestaande gebouw, maar het eigen karakter wordt versterkt door de toevoeging van een iets donkerdere kleur aan het palet.
Schaal van het kind
Het interieur krijgt een heldere structuur en logische routing, aldus studio Nuy van Noort. De uitstraling is hier warm en uitnodigend, en gericht op de schaal van het kind, legt het bureau uit. Een doorlopende gang ligt in het verlengde van de structuur van het bestaande gebouw en verbreedt aan het andere uiteinde tot een leerplein met lokalen aan weerszijden.
Dit centraal gelegen leerplein vormt op de begane grond het nieuwe sociale hart van de school. Hier ontmoeten de leerlingen elkaar, en werken, leren of spelen ze samen. Grote ramen geven van buitenaf zicht op de activiteiten in de school.
Een brede tribunetrap verbindt deze centrale plek op de begane grond met de eerste verdieping. De tribunetrap maakt het mogelijk het ontvangstgebied ook te gebruiken tot een ruimte voor bijeenkomsten, voorstellingen en vieringen, legt studio Nuy van Noort uit.
Trefwoorden
rotterdam
school
studio nuy van noort
schoolgebouw
Locatie
Best gelezen
1
Rapport: rijke Amsterdammers leven steeds vaker apart van rest
dinsdag, 30 september
2
Rijk schrijft aanbesteding uit voor nieuwe marinierskazerne
woensdag, 1 oktober
3
Kabinet wil wijken erbij op 127 plekken in Nederland
maandag, 29 september
4
Architectenweb symposium: klein maar fijn wonen?
donderdag, 2 oktober
5
Leiden wil verhoogd busstation naast treinperrons centraal station
dinsdag, 30 september
Gerelateerde nieuwsberichten
Ruimtelijk en helder IKC door studio Nuy van Noort
4 april 2024
Derksen|windt architecten voorziet school van houten uitbreiding
16 januari 2024
Studio Nuy van Noort presenteert opgeleverde brandweerpost Bennebroek
18 juni 2024
Bestaand betonnen casco vormt basis voor vernieuwd Ichthus College
16 juli 2024
Rotterdam werkt aan toegankelijkheid schoolgebouwen
25 januari 2024
Herkenbare en 'huiselijke' brandweerpost voor Bennebroek
7 december 2021
Studio Nuy van Noort ontwerpt IKC in Eibergen
2 december 2021
Diversiteit aan plekken in een integrale ruimte
2 juli 2020
Studio Nuy van Noort ontwerpt villa als kader in het landschap
31 januari 2020
Winnaars ARC18 Awards bekend gemaakt
26 november 2018
Plan ‘AMC Health Park’ wint prijsvraag entree AMC Amsterdam
13 oktober 2017
RoosRos wint ontwerpopdracht voor Montessoricampus in Almere
19 april 2022
EVA architecten ontwerpt schoolgebouw met contrastrijke kanten
14 april 2022
LIAG wint architectenselectie vernieuwbouw Bonhoeffer College in Enschede
1 april 2022
Best kiest ontwerp van KettingHuls voor transformatie IKC
9 maart 2022
Gymnasium verbouwd door oud-leerlingen Winy Maas en Theobert van Boven
3 februari 2022
Veenhuizer architectuur als referentie voor nieuw kindcentrum
26 januari 2022
BDG Architecten wint selectie nieuwbouw Windesheim Almere
19 januari 2022
Kindcentrum in Hellevoetsluis met open vloeren en veel onderwijsruimte
17 januari 2022
Opwaardering van MFA Voorn in Utrecht met ruime toepassing houtbouw
12 januari 2022
Zeer flexibel gebouw Stedelijk College Eindhoven in gebruik genomen
22 december 2021
Architecten|en|en ontwerpt nieuwbouw voor breed onderwijsaanbod
20 juni 2022
Een kantoorgevel die golft en spiegelt
5 december 2022
Ruimtelijk en helder IKC door studio Nuy van Noort
4 april 2024
Derksen|windt architecten voorziet school van houten uitbreiding
16 januari 2024
Studio Nuy van Noort presenteert opgeleverde brandweerpost Bennebroek
18 juni 2024
Bestaand betonnen casco vormt basis voor vernieuwd Ichthus College
16 juli 2024
Rotterdam werkt aan toegankelijkheid schoolgebouwen
25 januari 2024
Herkenbare en 'huiselijke' brandweerpost voor Bennebroek
7 december 2021
Studio Nuy van Noort ontwerpt IKC in Eibergen
2 december 2021
Diversiteit aan plekken in een integrale ruimte
2 juli 2020
Studio Nuy van Noort ontwerpt villa als kader in het landschap
31 januari 2020
Winnaars ARC18 Awards bekend gemaakt
26 november 2018
Plan ‘AMC Health Park’ wint prijsvraag entree AMC Amsterdam
13 oktober 2017
RoosRos wint ontwerpopdracht voor Montessoricampus in Almere
19 april 2022
EVA architecten ontwerpt schoolgebouw met contrastrijke kanten
14 april 2022
LIAG wint architectenselectie vernieuwbouw Bonhoeffer College in Enschede
1 april 2022
Best kiest ontwerp van KettingHuls voor transformatie IKC
9 maart 2022
Gymnasium verbouwd door oud-leerlingen Winy Maas en Theobert van Boven
3 februari 2022
Veenhuizer architectuur als referentie voor nieuw kindcentrum
26 januari 2022
BDG Architecten wint selectie nieuwbouw Windesheim Almere
19 januari 2022
Kindcentrum in Hellevoetsluis met open vloeren en veel onderwijsruimte
17 januari 2022
Opwaardering van MFA Voorn in Utrecht met ruime toepassing houtbouw
12 januari 2022
Zeer flexibel gebouw Stedelijk College Eindhoven in gebruik genomen
22 december 2021
Architecten|en|en ontwerpt nieuwbouw voor breed onderwijsaanbod
20 juni 2022
Een kantoorgevel die golft en spiegelt
5 december 2022
Toon alles
Andere nieuwsberichten
Plan Spot belooft Lelystad bruisend centrumgebied
3 oktober, 4:30
Heutink Groep, Groosman en LOLA Landscape Architects winnen tender stadshart met nieuw horecaplein.
Hoogste punt van woontoren Blaak 333 bereikt
3 oktober, 3:11
De door Kraaijvanger Architects ontworpen woontoren in het centrum van Rotterdam verrijst op de plek waar voorheen een kantoortoren van de Rabobank stond.
‘NDSM-werf en Buiksloterham zijn júíst inspirerende voorbeelden voor de stad van morgen’
3 oktober, 2:40
Architect Alexander Straub reageert op de column van Alexander Pols, waarin de vraag centraal stond of we bij de bouw van nieuwe wijken als Buiksloterham en de NDSM-werf in Amsterdam kunnen leren van de traditionele Europese stad.
Zes nominaties voor Haagse architectuurprijs Berlagevlag 2025
3 oktober, 1:34
De nominaties voor de Haagse architectuurprijs, de Berlagevlag, zijn bekend. Uit 31 inzendingen koos de vakjury zes projecten.
Kamer wil dat Keijzer afziet van versoepelingen huurwet
3 oktober, 12:11
Sinds de huurwet - tegen de zin van Keijzer - van kracht werd, waarschuwen verhuurders dat daardoor het aanbod aan betaalbare huurwoningen afneemt.
Steden vrezen voor woningbouw door nieuwe regels netcongestie
2 oktober, 4:25
Amsterdam, Den Haag, Rotterdam en Utrecht vrezen dat de bouw van nieuwe woningen stil komt te liggen door netcongestie.
Dienst Toeslagen: plan voor wonen op vakantieparken onuitvoerbaar
2 oktober, 1:06
Het kabinetsplan om permanent wonen in vakantiehuisjes mogelijk te maken, is volgens de Dienst Toeslagen onuitvoerbaar.
Zuid-Holland wil in ‘oogstjaar’ 2026 plannen uitvoeren
1 oktober, 3:16
De provincie investeert onder meer in infrastructuur, woningbouw, natuur en versterking van kleine kernen.
Rijk schrijft aanbesteding uit voor nieuwe marinierskazerne
1 oktober, 2:27
Eind 2031 wil het Korps Mariniers vanuit zijn huidige kazerne in Doorn verhuizen naar een nieuw onderkomen op de bestaande Defensielocatie Kamp Nieuw-Milligen vlakbij Apeldoorn.
Landschapstriënnale 2026 strijkt neer in Arnhem
1 oktober, 11:57
Het thema van de komende editie van de manifestatie is ‘Op Waterbasis’.
Ga naar het nieuws-archief
Robert Muis
Redacteur
0
0
0
0
Voor een optimale gebruikservaring plaatst Architectenweb functionele cookies. Wat de verschillende cookies precies doen leggen we uit in een
overzicht
. Cookies van social media kun je optioneel
aanzetten
.
Akkoord
Instellingen
Annuleren
OK
Sluiten
Doorgaan
Inloggen
Maak een gratis persoonlijk account aan
Feedback
Feedback
Wij horen graag jouw feedback. Laat je reactie achter en eventueel jouw e-mail adres.
Reactie
Verstuur