Projecten
Producten
Bedrijven
Vacatures
Agenda
Awards
Podcasts
more_horiz
Videos
Magazine
Thema's
Favorieten
Profiel
Uitloggen
Copyright: Katja Effting
Copyright: Katja Effting
Copyright: Katja Effting
Copyright: Katja Effting
Copyright: Katja Effting
Copyright: Katja Effting
Copyright: Katja Effting
Copyright: Katja Effting
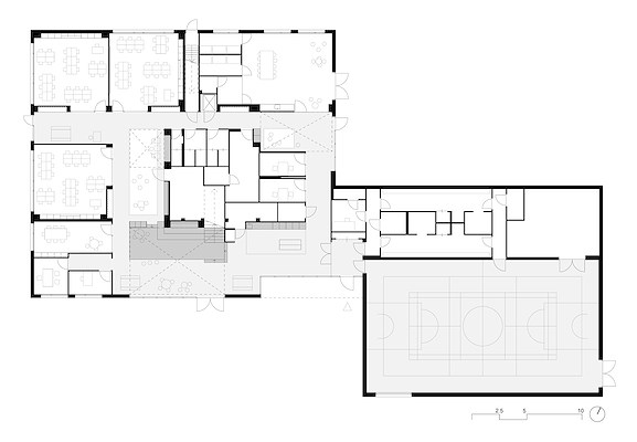
Begane grond
Copyright: studio Nuy van Noort
Eerste verdieping
Copyright: studio Nuy van Noort
Ruimtelijk en helder IKC door studio Nuy van Noort
4 april 2024, 14:57
Voor IKC Het Simmelink in Eibergen heeft
studio Nuy van Noort
een gebouw ontworpen dat ondanks het grote programma bescheiden oogt. Het interieur is licht en fris, met verspreid liggende grote leerpleinen en een meubel dat de ruimte organiseert en activeert.
IKC Het Simmelink in Eibergen is gerealiseerd op een voormalige ‘kamp’, een verhoogde akker in het landschap, omzoomd door een groenwal. De nieuwbouw is door studio Nuy van Noort zorgvuldig in het landschap ingepast, zodat de historische groene structuur weer zichtbaar is.
Opdeling
De architecten ontwierpen het kindcentrum met grote ramen, die het gebouw aan alle zijden openen naar de speelpleinen en verdere omgeving. Dit verleent het gebouw niet alleen een licht en fris interieur, maar ook een open en uitnodigende uitstraling. Doorzichten op de groene omgeving zijn behouden door het gebouw op te delen in twee ten opzichte van elkaar verschoven volumes.
Deze opdeling van het gebouw zorgt er tevens voor dat het IKC bescheiden oogt, ondanks het grote programma en de bruto oppervlakte van 1.700 m
2
. De extra hoogte van de gymzaal en de eerste verdieping van de school liggen als visueel losse hoogteaccenten op de plint. De geleding in het gebouw maakt het mogelijk de verschillende functies binnen het IKC op subtiele wijze te articuleren, leggen de architecten uit. Ook harmonieert het gebouw daarmee beter met de nabijgelegen kleinschalige woningbouw en het landschap.
Verbijzondering en ritmiek
De begane grond bestaat uit een plint van baksteen die het gebouw stevig verankert op de locatie. Het metselwerk toont een verbijzondering bij de overgang naar de eerste verdieping: hier vormt een ander metselpatroon een lint dat zich rond het gebouw strekt en daarbij de terugliggende entree accentueert.
De eerste verdieping van de school en de extra hoogte van de gymzaal vormen als het ware twee doosjes, beide bekleed met leien in een ruitpatroon. De ritmiek van het patroon en de kleurtinten van het materiaal dragen bij aan het gelaagde gevelbeeld.
Ruimtelijk
Studio Nuy van Noort heeft IKC Het Simmelink in samenwerking met de opdrachtgever, Delta Scholengroep, en de gebruikers ontworpen, zegt het architectenbureau. De gehanteerde onderwijsvisie heeft zich vertaald in relatief kleine klaslokalen en grote leerpleinen, die groepsdoorbrekend werken mogelijk maken.
De leerpleinen liggen verspreid door de school, maar steeds direct aansluitend op de klaslokalen. Alle circulatieruimten in het gebouw heeft het architectenbureau ingezet als plekken om elkaar te ontmoeten, te leren en te spelen.
Verder heeft het bureau een ruimtelijk meubel geïntroduceerd voor het activeren van de gemeenschappelijke ruimte. Het scheidt en verbindt de verschillende plekken. Het meubel bevat een trap met brede uitloop voor bijeenkomsten, nissen om geborgen in te zitten, wanden voor het ophangen van kunst- en knutselwerken en planken om boeken te presenteren.
Vides in het gebouw zorgen voor onderling contact tussen de begane grond en de eerste verdieping. “Iedereen in deze school is betrokken op elkaar, een duidelijke wens van de opdrachtgever”, legt studio Nuy van Noort uit.
Integraal ontwerp met maatwerk
Gebouw, interieur en inrichting zijn vanaf het begin integraal ontworpen, zodat de beschikbare ruimte en het beperkte budget maximaal zijn benut. Tegelijkertijd heeft het architectenbureau met maatwerk gestreefd naar een IKC dat voor leerlingen en leerkrachten als een echt eigen gebouw voelt.
Dit heeft zich vertaald in bijvoorbeeld het gevelontwerp, de vaste meubels van de gemeenschappelijke ruimte, de garderobes en vaste kasten in de lokalen, bijzonder kleurgebruik met bijpassende stoffering en verlichting. Daarnaast is IKC Het Simmelink volledig energieneutraal en voldoet het gebouw aan Frisse Scholen klasse A.
Trefwoorden
eibergen
integraal kind centrum
onderwijs
studio nuy van noort
interieur
ikc
Locatie
Best gelezen
1
Rotterdam verleent bouwvergunning voor Schieblokken
vrijdag, 28 november
2
Nieuw voorstel voor renovatie en uitbreiding De Kuip
woensdag, 26 november
3
MORE Architecture en Studio Nauta ontwerpen woontoren midden op Katendrecht
donderdag, 27 november
4
Gemeenteraad stelt gebiedsvisie voor Bussum-Zuid vast
donderdag, 27 november
5
Schiphol investeert tien miljard in nieuwe terminal en andere infrastructuur
woensdag, 26 november
Gerelateerde nieuwsberichten
Herkenbare en 'huiselijke' brandweerpost voor Bennebroek
7 december 2021
Passende schooluitbreiding met eigen karakter door studio Nuy van Noort
25 april 2022
Bestaand betonnen casco vormt basis voor vernieuwd Ichthus College
16 juli 2024
Diversiteit aan plekken in een integrale ruimte
2 juli 2020
Studio Nuy van Noort ontwerpt villa als kader in het landschap
31 januari 2020
Studio Nuy van Noort presenteert opgeleverde brandweerpost Bennebroek
18 juni 2024
Winnaars ARC18 Awards bekend gemaakt
26 november 2018
Fabrieksschoorsteen kunstzinnig hersteld
22 september 2010
IKC Prins Constantijn wint Vredeman de Vriesprijs voor architectuur
30 mei 2023
Zoetmulder maakt winnende visie voor IKC in Woerdense Verlaat
17 mei 2023
Uitbreiding voor een kinderopvang in prefab houten modules
19 november 2024
Aardbevingsbestendig IKC met markant dak van doorlopende kappen
19 juli 2021
IKC Overhoeks in Amsterdam-Noord van Rudy Uytenhaak in gebruik genomen
12 mei 2021
KOW wint architectenselectie IKC Remigius in Duiven
20 april 2021
Babel Architectuurprijs 2020 voor IKC Roggeplein
4 september 2020
IKC Magenta wint Publieksprijs Duurzaam Bouwen Awards 2020
6 februari 2020
Aardbevings- en krimpbestendig IKC voor Wagenborgen
23 juli 2019
Berger Barnett Architecten wint tender IKC Elzenhagen Zuid in Amsterdam
25 maart 2019
School zonder klaslokalen in IKC De Toverberg
5 december 2017
Houten onderkomen voor IKC De Bollenstreek
5 augustus 2016
Schoolgebouw als rood accent in de wijk
31 mei 2016
Nominaties Kantoorgebouw van het Jaar 2024 bekend
11 september 2024
Studio Nuy van Noort ontwerpt IKC in Eibergen
2 december 2021
Herkenbare en 'huiselijke' brandweerpost voor Bennebroek
7 december 2021
Passende schooluitbreiding met eigen karakter door studio Nuy van Noort
25 april 2022
Bestaand betonnen casco vormt basis voor vernieuwd Ichthus College
16 juli 2024
Diversiteit aan plekken in een integrale ruimte
2 juli 2020
Studio Nuy van Noort ontwerpt villa als kader in het landschap
31 januari 2020
Studio Nuy van Noort presenteert opgeleverde brandweerpost Bennebroek
18 juni 2024
Winnaars ARC18 Awards bekend gemaakt
26 november 2018
Fabrieksschoorsteen kunstzinnig hersteld
22 september 2010
IKC Prins Constantijn wint Vredeman de Vriesprijs voor architectuur
30 mei 2023
Zoetmulder maakt winnende visie voor IKC in Woerdense Verlaat
17 mei 2023
Uitbreiding voor een kinderopvang in prefab houten modules
19 november 2024
Aardbevingsbestendig IKC met markant dak van doorlopende kappen
19 juli 2021
IKC Overhoeks in Amsterdam-Noord van Rudy Uytenhaak in gebruik genomen
12 mei 2021
KOW wint architectenselectie IKC Remigius in Duiven
20 april 2021
Babel Architectuurprijs 2020 voor IKC Roggeplein
4 september 2020
IKC Magenta wint Publieksprijs Duurzaam Bouwen Awards 2020
6 februari 2020
Aardbevings- en krimpbestendig IKC voor Wagenborgen
23 juli 2019
Berger Barnett Architecten wint tender IKC Elzenhagen Zuid in Amsterdam
25 maart 2019
School zonder klaslokalen in IKC De Toverberg
5 december 2017
Houten onderkomen voor IKC De Bollenstreek
5 augustus 2016
Schoolgebouw als rood accent in de wijk
31 mei 2016
Nominaties Kantoorgebouw van het Jaar 2024 bekend
11 september 2024
Studio Nuy van Noort ontwerpt IKC in Eibergen
2 december 2021
Toon alles
Andere nieuwsberichten
Nederlands Fotomuseum toont fotografische verbeelding van Rotterdam
Vandaag, 15:16
Op 7 februari opent het Nederlands Fotomuseum zijn deuren in het voormalige pakhuis Santos in Rotterdam. Een van de openingstentoonstellingen is Rotterdam in focus. Fotografie van de stad 1843.
Vocus Architecten verbouwt historische tramremise tot supermarkt
Vandaag, 14:23
In Elburg heeft Vocus Architecten een voormalige tramremise getransformeerd tot supermarkt. De twee historische bouwdelen uit het einde van de achttiende eeuw zijn gerenoveerd en er is een nieuw entreegebouw aan het complex toegevoegd.
Veel Nederlandse winnaars bij de Archello Awards 2025
Vandaag, 12:00
Vooral in de categorieën rond woningbouw, scholenbouw en publieke gebouwen wisten Nederlandse bureaus veel prijzen te winnen.
Ibelings van Tilburg geeft boerderij met monumentale schuur in Zoetermeer woonbestemming
Vandaag, 11:34
Het woonhuis behield zijn functie, in de monumentale Groningse driekapsschuur zijn tien woningen gerealiseerd en op het erf achter de schuur is een houten schuurwoning gebouwd, mede om het plan financieel levensvatbaar te maken.
Gelderland wil duurzame ‘havenhub’ aanleggen bij IJzendoorn
Vandaag, 13:13
Bij een Clean Energy Hub kunnen binnenvaartschepen schonere brandstoffen zoals bio-LNG bunkeren en groene stroom laden.
Schoof ziet actiepunten in klimaatadvies burgerberaad
Vandaag, 10:22
De demissionair premier herkent de wens van het kabinet voor een ‘haalbaar en betaalbaar’ klimaatbeleid in de aanbevelingen van 175 burgers.
Besluit over verdwijnen dorp Moerdijk halfjaar uitgesteld
Gisteren, 15:27
Het Rijk en de provincie Noord-Brabant willen pas in juni een besluit nemen over uitbreiding van het haven- en industriegebied in Moerdijk.
Amsterdam overweegt hogere toeristenbelasting in herbestemming panden te stoppen
Gisteren, 10:30
Het stadsbestuur overweegt de toeristenbelasting te verhogen als de landelijke btw-verhoging niet leidt tot een daling van het aantal toeristenovernachtingen.
Amsterdam zoekt vastgoedpartij die 'werkcorporatie' wil opzetten
28 november, 5:16
De Werkcorporatie Amsterdam moet helpen om kleinschalige en betaalbare bedrijfsruimtes voor bijvoorbeeld meubelmakers en loodgieters in de stad te realiseren.
Woningbezit investeerders neemt verder af in derde kwartaal
28 november, 2:38
De verkoopgolf van huurwoningen door investeerders hield in het derde kwartaal van dit jaar aan.
Ga naar het nieuws-archief
Robert Muis
Redacteur
1
0
0
0
Voor een optimale gebruikservaring plaatst Architectenweb functionele cookies. Wat de verschillende cookies precies doen leggen we uit in een
overzicht
. Cookies van social media kun je optioneel
aanzetten
.
Akkoord
Instellingen
Annuleren
OK
Sluiten
Doorgaan
Inloggen
Maak een gratis persoonlijk account aan
Feedback
Feedback
Wij horen graag jouw feedback. Laat je reactie achter en eventueel jouw e-mail adres.
Reactie
Verstuur