Projecten
Producten
Bedrijven
Vacatures
Agenda
Awards
Podcasts
more_horiz
Videos
Magazine
Thema's
Favorieten
Profiel
Uitloggen
Copyright: Studio Nuy van Noort
Copyright: Studio Nuy van Noort
Copyright: Studio Nuy van Noort
Copyright: Studio Nuy van Noort
Copyright: Studio Nuy van Noort
Copyright: Studio Nuy van Noort
Copyright: Studio Nuy van Noort
Copyright: Studio Nuy van Noort
Copyright: Studio Nuy van Noort
Copyright: Studio Nuy van Noort
De huiskamer vormt een 'huis in een huis' in de brandweerpost
Copyright: Studio Nuy van Noort
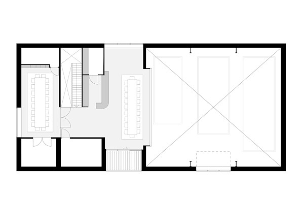
Begane grond met kleedkamers, bevelvoerderskamer en remise
Copyright: Studio Nuy van Noort
Eerste verdieping met onder meer de huiskamer
Copyright: Studio Nuy van Noort
Doorsnede
Copyright: Studio Nuy van Noort
Studio Nuy van Noort presenteert opgeleverde brandweerpost Bennebroek
18 juni 2024, 14:26
In het Noord-Hollandse Bennebroek is dit jaar de nieuwe huisvesting voor de plaatselijke vrijwillige brandweer en de buitendienst van de gemeente Bloemendaal opgeleverd. De door
Studio Nuy van Noort
ontworpen brandweerpost heeft een duidelijk herkenbare uitstaling. Voor de gebruikers is naast de stalling voor voertuigen een ‘huiskamer’ gerealiseerd die fungeert als het sociale hart van het gebouw.
Het nieuwe gebouw, dat het sluitstuk in de verbinding tussen twee omliggende wijken, wordt aan de buitenkant gekenmerkt door zijn abstracte vormt en consequente kleurgebruik. Ook is mede dankzij de belettering op de voorgevel en de grote overheaddeuren met daarachter de brandweerwagens meteen duidelijk wat de functie van het bouwwerk is.
Zachte reliëf
Qua kleur sluit de donkerrode bakstenen gevel eveneens aan op die van de brandweervoertuigen, maar de kleur legt ook een verbinding met het naastgelegen klooster. Door de strakke bakstenen in Braziliaans metselverband te plaatsen, krijgt de gevel een zacht reliëf en het gebouw een gelaagde en tegelijkertijd robuuste uitstraling. Om de eenduidige uitstraling van het gebouw te versterken, is het dak uitgevoerd in een geprofileerde stalen dakplaat met bijpassende kleur.
Aan de binnenzijde staat het materiaalgebruik volledig in dienst van de tweeledige functie die de kazerne heeft; dienstbaar en gastvrij. Het basement van de kazerne met de stalling, kleedkamers, opslag en werkplaats is robuust, stoot- en slijtvast uitgevoerd met bijpassende materialen als beton, steen en metaal.
Huiskamer
De huiskamer, ontworpen als een elegante kapconstructie, is aan de binnenzijde volledig afgewerkt in hout. De huiskamer bevindt zich op de eerste verdieping en biedt zicht op de activiteiten in de stalling van de brandweervoertuigen en op het eigen (oefen)terrein - en vice versa. De ruimte is bedoeld als ontmoetingsplek, waar de vrijwillige brandweerlieden onder meer samen kunnen komen na een uitrukmoment.
“Met de ramen en het dakterras van de huiskamer en instructieruimte geven we een mooi uitzicht op de wijk, de kloostertuin, en op het eigen terrein. Het raam aan de voorzijde heeft als open gebaar naar de woonwijk ook een belangrijke symbolische functie”, meldt Studio Nuy van Noort.
Het gebouw is bijna energieneutraal. Dat is onder meer te danken aan de compacte vorm, een schil met een hoge isolatiewaarde en klimaatzonering die is afgestemd op het type gebruik van de ruimte of functie. Op het schuine, zuidelijk georiënteerde dakvlak kunnen zonnepanelen worden geplaatst.
Trefwoorden
studio nuy van noort
brandweerpost
bennebroek
brandweerkazerne
brandweer
Locatie
Best gelezen
1
David Chipperfield landt in Antwerps Nieuw Zuid
woensdag, 15 oktober
2
Woongebouwen door VdpArchitecten vormen nieuwe 'voorkant' Groningse Oosterparkwijk
vrijdag, 17 oktober
3
Kantoorgebouw door Arthur Staal aan de Schinkel gerenoveerd en uitgebreid
woensdag, 15 oktober
4
Gezicht van de tijd
woensdag, 15 oktober
5
Gedetailleerde 3D-geprinte maquette toont ruimtelijke ontwikkeling Amsterdam
vrijdag, 17 oktober
Gerelateerde nieuwsberichten
Herkenbare en 'huiselijke' brandweerpost voor Bennebroek
7 december 2021
Bestaand betonnen casco vormt basis voor vernieuwd Ichthus College
16 juli 2024
Vijftien woningen losjes geplaatst in parkachtige omgeving
7 februari 2023
Bureau Fraai presenteert herenhuis in oud klooster
24 september 2018
Ruimtelijk en helder IKC door studio Nuy van Noort
4 april 2024
Passende schooluitbreiding met eigen karakter door studio Nuy van Noort
25 april 2022
Woonwerk Architecten ontwerpt transformatie brandweerkazerne naar bibliotheek
5 februari 2024
Ontwerp van 19 het atelier voor brandweerkazerne op Urk goedgekeurd
10 januari 2022
Demontabele kijkdoos voor de Papendrechtse brandweer
23 juni 2021
Bogdan & Van Broeck ontwerpt brandweerkazerne met buurtsporthal in Anderlecht
26 november 2020
Happel Cornelisse Verhoeven toont opgeleverde brandweerkazerne Wilrijk
17 februari 2020
Herkenbare en 'huiselijke' brandweerpost voor Bennebroek
7 december 2021
Bestaand betonnen casco vormt basis voor vernieuwd Ichthus College
16 juli 2024
Vijftien woningen losjes geplaatst in parkachtige omgeving
7 februari 2023
Bureau Fraai presenteert herenhuis in oud klooster
24 september 2018
Ruimtelijk en helder IKC door studio Nuy van Noort
4 april 2024
Passende schooluitbreiding met eigen karakter door studio Nuy van Noort
25 april 2022
Woonwerk Architecten ontwerpt transformatie brandweerkazerne naar bibliotheek
5 februari 2024
Ontwerp van 19 het atelier voor brandweerkazerne op Urk goedgekeurd
10 januari 2022
Demontabele kijkdoos voor de Papendrechtse brandweer
23 juni 2021
Bogdan & Van Broeck ontwerpt brandweerkazerne met buurtsporthal in Anderlecht
26 november 2020
Happel Cornelisse Verhoeven toont opgeleverde brandweerkazerne Wilrijk
17 februari 2020
Toon alles
Andere nieuwsberichten
Enschede als 'vernieuwende stad' centraal tijdens negende Dag van de Stad
Vandaag, 15:47
Op maandag 10 november vindt de negende editie van de Dag van de Stad plaats. Het jaarlijkse stadscongres strijkt dit jaar onder het thema De vernieuwende stad neer in Enschede.
Nieuw woongebouw op plek befaamde elektronicazaak Rotterdam-Noord
Vandaag, 14:35
Op de plek van het voormalige onderkomen van elektronicazaak Radio Correct in Rotterdam-Noord is naar ontwerp van EGM architecten een nieuw woongebouw gerealiseerd.
De Louise van De Zwarte Hond combineert sociale woningbouw met kwaliteit en duurzaamheid
Vandaag, 13:42
Het sociale woningbouwproject De Louise in de wijk Overhoeks in Amsterdam Noord is ontworpen door De Zwarte Hond in opdracht van woningcorporatie Ymere.
Paviljoen met zonne-energieopwekkend textiel op Ketelhuisplein in Eindhoven
Vandaag, 11:02
Op het Ketelplein in Eindhoven is afgelopen zaterdag het Umbra Pavilion geopend. Het paviljoen, dat is ontworpen en ontwikkeld door Studio Pauline van Dongen en Tentech, is voorzien van een zonne-energieopwekkend textiel.
Advocaten waarschuwen voor beperken bezwaar bij bouw
Vandaag, 11:54
Het inperken van de mogelijkheden om in bezwaar te gaan tegen bouwplannen is een risico voor de rechtsstaat, stelt de Nederlandse orde van advocaten.
Controle na asbestsanering schiet in derde van gevallen tekort
Vandaag, 09:31
Daardoor worden gebouwen schoon verklaard terwijl er nog asbestresten aanwezig zijn, waarschuwt de Arbeidsinspectie.
Sweco neemt groot Belgisch architectenbureau over
17 oktober, 4:23
Het 150 medewerkers tellende assar architects ontwierp onder meer het nieuwe hoofdkantoor van de NAVO in Brussel.
IMF: geen forse huizenprijsdaling bij einde hypotheekrenteaftrek
17 oktober, 12:14
Een mogelijke afschaffing van de hypotheekrenteaftrek in Nederland heeft waarschijnlijk een prijsremmende werking, stelt de Nederlandse bestuurder van het IMF Marnix van Rij
EIB: 75.000 nieuwe voltijdse arbeidskrachten nodig in de bouw
17 oktober, 10:11
Volgens het instituut wordt het tekort aan vakmensen in de bouw steeds groter, vooral omdat de energietransitie een enorme extra vraag naar arbeid creëert.
Groningen worstelt met afronding dertig kilometer lang fietspad naar Assen
16 oktober, 3:25
Een ruime meerderheid van de Groningse Statenleden wil dat er bij het project meer aandacht komt voor de veiligheid van vrouwen.
Ga naar het nieuws-archief
Ronnie Weessies
Redacteur
3
0
0
0
Voor een optimale gebruikservaring plaatst Architectenweb functionele cookies. Wat de verschillende cookies precies doen leggen we uit in een
overzicht
. Cookies van social media kun je optioneel
aanzetten
.
Akkoord
Instellingen
Annuleren
OK
Sluiten
Doorgaan
Inloggen
Maak een gratis persoonlijk account aan
Feedback
Feedback
Wij horen graag jouw feedback. Laat je reactie achter en eventueel jouw e-mail adres.
Reactie
Verstuur