Projecten
Producten
Bedrijven
Vacatures
Agenda
Awards
Podcasts
more_horiz
Videos
Magazine
Favorieten
Profiel
Uitloggen
Abonneer je nu op onze nieuwsbrieven!
Abonneren
Nee, bedankt
Ja, denk met me mee rond de
materialisering van mijn project
Copyright: Karin Borghouts
Copyright: Karin Borghouts
Copyright: Karin Borghouts
Copyright: Karin Borghouts
Copyright: Karin Borghouts
Copyright: Karin Borghouts
Copyright: Karin Borghouts
Copyright: Karin Borghouts
Copyright: Karin Borghouts
Copyright: Karin Borghouts
Copyright: Karin Borghouts
Copyright: Karin Borghouts
Copyright: Karin Borghouts
Copyright: Karin Borghouts
Copyright: Karin Borghouts
Copyright: Karin Borghouts
Copyright: Karin Borghouts
Copyright: Karin Borghouts
Copyright: Karin Borghouts
Copyright: Karin Borghouts
Copyright: Karin Borghouts
Copyright: Karin Borghouts
Copyright: Karin Borghouts
Situatie
Copyright: Happel Cornelisse Verhoeven
Gipsmaquette
Copyright: Happel Cornelisse Verhoeven
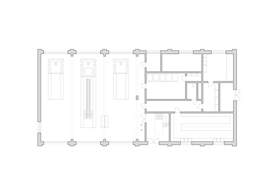
Begane grond
Copyright: Happel Cornelisse Verhoeven
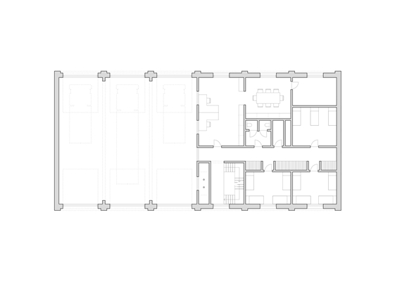
Eerste verdieping
Copyright: Happel Cornelisse Verhoeven
Tweede verdieping
Copyright: Happel Cornelisse Verhoeven
Doorsnede
Copyright: Happel Cornelisse Verhoeven
Doorsnede
Copyright: Happel Cornelisse Verhoeven
Happel Cornelisse Verhoeven toont opgeleverde brandweerkazerne Wilrijk
17 februari 2020, 11:50
In het Antwerpse stadsdeel Wilrijk is een nieuwe brandweerkazerne naar ontwerp van
Happel Cornelisse Verhoeven
opgeleverd. Het gebouw heeft een opvallende rode kleur en een al even in het oog springende gevelopbouw. Aan de gevel is de stapeling van functies afleesbaar.
De continu bemande kazerne bestaat uit een dubbelhoge remise, met daarboven verblijfsruimten en kantoren voor de brandweerlieden. Een hoekaccent met daarop de letters ābrandweerā en waarin de technische ruimtes zijn opgenomen, vormt de bekroning van het gebouw. De gestapelde functionele lagen hebben ieder een eigen geveltype en hoogte. Bovendien liggen de gevels van de hoger gelegen lagen telkens tien centimeter verder terug in het volume.
Het basisvolume is voorzien van pilastergevels, opgetrokken in rood geglazuurde baksteen in groot- en kleinformaat. Het metselwerk wordt ritmisch onderbroken door rood geschilderde cordonbanden en dieppaarse kozijnen. Voor de letters ābrandweerā, die in diepdruk zijn aangebracht op het hoogste volume, maakte grafisch ontwerper Reynoud Homan een bewerking van het letterfont Universe, om het algemene belang van de brandweer te benadrukken.
Het gebouw bestaat uit een hybride draagconstructie van beton en massief hout. De onderste laag met de garage en werkruimtes is omwille van de functionaliteit robuust afgewerkt in beton, terwijl de bovengelegen verdiepingen met kantoren en verblijfsruimtes zijn uitgevoerd in hout, dat moet bijdragen aan een huiselijke sfeer. De verschillende verdiepingen zijn verbonden via een centrale trap, die de brandweerlieden helpt snel uit te rukken bij een alarmoproep.
Het gebouw is duurzaam ontworpen, waarbij gebruik wordt gemaakt van hernieuwbare energie. Er zijn een zonneboiler, warmtepomp en zonnepanelen toegepast en er wordt energie gewonnen uit regen- en bluswater. De kruislaaghoutconstructie heeft vanwege zijn natuurlijke, vochtregulerende werking een positieve invloed op het binnenklimaat en het energiegebruik.
Trefwoorden
happel cornelisse verhoeven
brandweerkazerne
wilrijk
antwerpen
belgië
Locatie
Best gelezen
1
Architect Cees Dam op 93-jarige leeftijd overleden
dinsdag, 14 april
2
Powerhouse Company wint aanbesteding voor verbouwing Vista College Maastricht
dinsdag, 14 april
3
Tien bureaus geselecteerd voor tweede ronde nieuwbouw De Meervaart
woensdag, 15 april
4
Voormalig hoofdkantoor Ferro in M4H verbouwd tot bedrijfsverzamelgebouw
woensdag, 15 april
5
Anterieure overeenkomst voor bouw woontoren The Four in Eindhoven
donderdag, 16 april
Gerelateerde nieuwsberichten
Demontabele kijkdoos voor de Papendrechtse brandweer
23 juni 2021
Bogdan & Van Broeck ontwerpt brandweerkazerne met buurtsporthal in Anderlecht
26 november 2020
Transformatie Antwerpse blikvanger nadert voltooiing
7 september 2020
In stationsgebied Tilburg is bouw gestart van woontoren naar ontwerp van Happel Cornelisse Verhoeven
13 juli 2020
Renovatie en uitbreiding van de Antwerpse Fierensblokken gestart
9 juni 2020
Happel Cornelisse Verhoeven ontwerpt āstijlkamersā voor tijdelijke huisvesting Eerste Kamer
17 maart 2022
Renovatie en vernieuwing Fierenshoven in Antwerpen afgerond
8 februari 2024
Studio Nuy van Noort presenteert opgeleverde brandweerpost Bennebroek
18 juni 2024
Woonwerk Architecten ontwerpt transformatie brandweerkazerne naar bibliotheek
5 februari 2024
Glazen wand verbindt woontorens langs Antwerpse Ring
30 augustus 2022
Team Atelier Kempe Thill mag Droogdokkensite Antwerpen herontwikkelen
25 januari 2022
Ontwerp van 19 het atelier voor brandweerkazerne op Urk goedgekeurd
10 januari 2022
Team GROUP A bekijkt mogelijkheden nooit gebruikte metrostations Antwerpen
25 januari 2021
Ruwbouw-is-afbouw voor opvallend appartementencomplex in Antwerpen
12 november 2020
Christian Rapp nog eens vijf jaar stadsbouwmeester van Antwerpen
29 oktober 2020
Raad komt 'op zolder' in verbouwd stadhuis Groningen
19 februari 2020
Museum De Lakenhal gedocumenteerd in boek
13 december 2019
Abe Bonnema Prijs 2019 voor Museum De Lakenhal
27 november 2019
Terugluisteren: Spraakmakers op Radio 1 met Ninke Happel
1 november 2019
Museum De Lakenhal: Interieur én Publiek Gebouw van het Jaar 2019
31 oktober 2019
Happel Cornelisse Verhoeven verkozen tot Architect van het Jaar 2019
31 oktober 2019
'Covered bridge' over Hoekse lijn bij Maeslantkering
8 oktober 2019
Happel Cornelisse Verhoeven verbindt heden en verleden bij vernieuwing Museum De Lakenhal
18 juni 2019
Ontwerp tijdelijke plenaire zaal Eerste Kamer gepresenteerd
3 januari 2019
Christus Koning Kerk Heerlen wordt regionaal archief
1 maart 2018
Happel Cornelisse Verhoeven wint aanbesteding Populierenhof
20 februari 2017
Nieuw leven voor Antwerps interbellum-complex
27 september 2016
Paardenpension Lentevreugd geopend
3 juni 2015
Noord-Hollands Archief verbouwd en gerestaureerd
22 april 2013
Happel Cornelisse wint open oproep Antwerpen
21 september 2012
Tweede editie TIEN keer TIEN succes
8 juni 2012
Happel Cornelisse wint Reset het Kruithuis
5 juli 2011
Happel Cornelisse wint Vlaamse Oproep
19 juni 2009
Demontabele kijkdoos voor de Papendrechtse brandweer
23 juni 2021
Bogdan & Van Broeck ontwerpt brandweerkazerne met buurtsporthal in Anderlecht
26 november 2020
Transformatie Antwerpse blikvanger nadert voltooiing
7 september 2020
In stationsgebied Tilburg is bouw gestart van woontoren naar ontwerp van Happel Cornelisse Verhoeven
13 juli 2020
Renovatie en uitbreiding van de Antwerpse Fierensblokken gestart
9 juni 2020
Happel Cornelisse Verhoeven ontwerpt āstijlkamersā voor tijdelijke huisvesting Eerste Kamer
17 maart 2022
Renovatie en vernieuwing Fierenshoven in Antwerpen afgerond
8 februari 2024
Studio Nuy van Noort presenteert opgeleverde brandweerpost Bennebroek
18 juni 2024
Woonwerk Architecten ontwerpt transformatie brandweerkazerne naar bibliotheek
5 februari 2024
Glazen wand verbindt woontorens langs Antwerpse Ring
30 augustus 2022
Team Atelier Kempe Thill mag Droogdokkensite Antwerpen herontwikkelen
25 januari 2022
Ontwerp van 19 het atelier voor brandweerkazerne op Urk goedgekeurd
10 januari 2022
Team GROUP A bekijkt mogelijkheden nooit gebruikte metrostations Antwerpen
25 januari 2021
Ruwbouw-is-afbouw voor opvallend appartementencomplex in Antwerpen
12 november 2020
Christian Rapp nog eens vijf jaar stadsbouwmeester van Antwerpen
29 oktober 2020
Raad komt 'op zolder' in verbouwd stadhuis Groningen
19 februari 2020
Museum De Lakenhal gedocumenteerd in boek
13 december 2019
Abe Bonnema Prijs 2019 voor Museum De Lakenhal
27 november 2019
Terugluisteren: Spraakmakers op Radio 1 met Ninke Happel
1 november 2019
Museum De Lakenhal: Interieur én Publiek Gebouw van het Jaar 2019
31 oktober 2019
Happel Cornelisse Verhoeven verkozen tot Architect van het Jaar 2019
31 oktober 2019
'Covered bridge' over Hoekse lijn bij Maeslantkering
8 oktober 2019
Happel Cornelisse Verhoeven verbindt heden en verleden bij vernieuwing Museum De Lakenhal
18 juni 2019
Ontwerp tijdelijke plenaire zaal Eerste Kamer gepresenteerd
3 januari 2019
Christus Koning Kerk Heerlen wordt regionaal archief
1 maart 2018
Happel Cornelisse Verhoeven wint aanbesteding Populierenhof
20 februari 2017
Nieuw leven voor Antwerps interbellum-complex
27 september 2016
Paardenpension Lentevreugd geopend
3 juni 2015
Noord-Hollands Archief verbouwd en gerestaureerd
22 april 2013
Happel Cornelisse wint open oproep Antwerpen
21 september 2012
Tweede editie TIEN keer TIEN succes
8 juni 2012
Happel Cornelisse wint Reset het Kruithuis
5 juli 2011
Happel Cornelisse wint Vlaamse Oproep
19 juni 2009
Toon alles
Gerelateerde podcasts
Gesprek met Floris Cornelisse over hoe tradities en tijdelijkheid samengaan bij ontwerp voor Eerste Kamer
17 maart 2022
Andere nieuwsberichten
Nominaties Rotterdam Architectuurprijs 2026 bekend
2 uur geleden
Zowel de jury als het publiek heeft de keuze uit tien projecten, die zijn geselecteerd uit 36 inzendingen. De winnaars worden op 12 juni bekendgemaakt in het Nhow Hotel in Rotterdam.
Wie verdient dit jaar de prijs voor Architect van het Jaar?
2 uur geleden
Welke architect, of collectief van architecten, heeft dit jaar de grootste bijdrage geleverd aan de ontwikkeling van de architectuur in Nederland? Stuur jouw suggestie, met een beknopte motivatie, uiterlijk 15 mei 2026 op naar Architectenweb.
OMA gebruikt bestaand gebouw als canvas bij renovatie Edo-Tokyo Museum
17 april, 3:55
Na een renovatie van bijna vier jaar is het Edo-Tokyo Museum in de Japanse hoofdstad Tokio heropend. OMA nam het uit 1993 stammende gebouw, dat is ontworpen door de Metabolist Kiyonori Kikutake, onder handen.
Winnaars verkiezing Beste Bossche Gebouw 2020ā2025 bekend
17 april, 2:16
De vakjury en het publiek wezen elk in drie categorieën een winnaar aan. Daarnaast kende vakjury nog een wildcard toe aan een project.
Boekholt wil minder strenge huurwet, hogere huren mogelijk
1 uur geleden
Verhuurders moeten meer kunnen vragen voor dure huurhuizen, nieuwbouw en huizen zonder tuin of balkon.
Woningbouwzaken krijgen langer voorrang bij Raad van State
17 april, 4:49
Om het huizentekort tegen te gaan, blijft de Raad van State woningbouwzaken met voorrang behandelen.
Inspectie positief over verbetering sociale veiligheid TU Delft
17 april, 11:36
De TU Delft heeft aanzienlijke stappen gezet om de sociale veiligheid voor medewerkers te verbeteren.
NVM vreest minder nieuwbouw door veranderende voorrang stroomnet
17 april, 9:23
Bouwers kunnen, door onzekerheid over welke projecten straks nog maatschappelijke prioriteit krijgen in een bepaalde regio, besluiten om minder nieuwe huizen te bouwen.
Architecten voor restauratie en herbestemming Rivièrahal gekozen
16 april, 12:00
Voor de grootscheepse restauratie en herbestemming van de Rivièrahal in de Rotterdamse Diergaarde Blijdorp zijn Mecanoo en BiermanHenket geselecteerd.
Bewoners aardbevingsgebied Groningen blijven kritisch op herstel
16 april, 10:34
Door de complexiteit en onzekerheid van het jarenlange proces ervaren mensen stress en frustratie.
Ga naar het nieuws-archief
Ronnie Weessies
Redacteur
0
0
0
0
Voor een optimale gebruikservaring plaatst Architectenweb functionele cookies. Wat de verschillende cookies precies doen leggen we uit in een
overzicht
. Cookies van social media kun je optioneel
aanzetten
.
Akkoord
Instellingen
Annuleren
OK
Sluiten
Doorgaan
Inloggen
Maak een gratis persoonlijk account aan
Feedback
Feedback
Wij horen graag jouw feedback. Laat je reactie achter en eventueel jouw e-mail adres.
Reactie
Verstuur