Projecten
Producten
Bedrijven
Vacatures
Agenda
Awards
Podcasts
more_horiz
Videos
Magazine
Thema's
Favorieten
Profiel
Uitloggen
Copyright: Ewout Huibers
Copyright: Ewout Huibers
Copyright: Ewout Huibers
Copyright: Ewout Huibers
Copyright: Ewout Huibers
Copyright: Ewout Huibers
Copyright: Ewout Huibers
Copyright: Ewout Huibers
Copyright: Ewout Huibers
Copyright: Studio Nuy Van Noort
Copyright: Studio Nuy Van Noort
Diversiteit aan plekken in een integrale ruimte
2 juli 2020, 16:16
Een bestaand kantoorgebouw in het centrum van Utrecht is opgeleverd voor de nieuwe gebruiker, de Inspectie van het Onderwijs.
Studio Nuy Van Noort
heeft met één heldere ingreep – de introductie van een modulair en multifunctioneel meubel – de nieuwe werkomgeving georganiseerd.
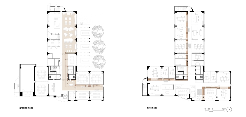
Het Rijkskantoor van de Inspectie van het Onderwijs is sinds kort gevestigd op twee verdiepingen in een bestaand pand aan de Utrechtse St.-Jacobsstraat. Het nieuwe onderkomen moest een ontmoetingsplek zijn: een werkomgeving die de uitwisseling van kennis zou vergroten, de communicatie zou bevorderen en het samenwerken stimuleren.
Integrale ruimte
Het creëren van een nieuwe werkomgeving draait volgens Studio Nuy Van Noort niet om het maken van kantoorruimten – open of gesloten–, maar om het maken van ‘plekken’. De architecten hebben dan ook het gevraagde programma niet over de verdiepingen verdeeld als een verzameling afzonderlijke kamers, maar de verdiepingen benaderd als een integrale ruimte.
Daarbij heeft het architectenbureau de kwaliteiten van het bestaande gebouw kunnen inzetten. De regelmatige bouwstructuur met vrij indeelbare verdiepingsvloeren, en het feit dat de lay-out van de installaties de heldere gebouwstructuur volgt, maakten een logische inpassing met het oog bijvoorbeeld ontsluiting, circulatie en voorzieningen mogelijk. De nieuwe indeling en installaties konden eenvoudig en efficiënt op elkaar worden afgestemd.
Diversiteit
Studio Nuy Van Noort heeft de ruimte georganiseerd door de introductie van een groot meubel, dat zich strekt over de verdiepingen. Door de indeling en de vormgeving biedt het meubel een verzameling van verschillende werk-, overleg- en ontmoetingsplekken. “Die verzameling biedt meer dan het standaard afgesloten kantoor of een open kantoorwerkplek”, leggen de architecten uit.
“Door de indeling van het meubel zijn de kantoorruimten opener of geslotener, afhankelijk van de plek op de verdieping of de wens van de gebruiker”, aldus Studio Nuy Van Noort. Daarnaast zijn in het meubel zelf, op basis van de kaders en normen volgens de FWR (Fysieke Werkomgeving Rijk), aanlandplekken, belruimten, coupézitjes, formele en informele overlegplekken en dergelijke opgenomen. Ook zijn bijvoorbeeld garderobe, kluisjes en pantry's geïntegreerd.
Het meubel is modulair opgebouwd, waardoor de gebruiker de invulling naar wens kan bepalen. Het meubel staat bovendien op zichzelf, legt Studio Nuy Van Noort uit. Daardoor zijn de ingrepen aan het bestaande gebouw beperkt en is desgewenst het meubel makkelijk aan te passen of te verwijderen.
Rust
Bij het ontwerp hebben de architecten gezocht naar een prettige balans tussen rust en dynamiek en tussen werk- en ontmoetingsplekken. Dankzij de toepassing van een palet aan ingetogen kleuren, natuurlijke materialen en een strakke vormgeving met verzorgde detaillering biedt de werkomgeving een basis van rust. De aanwezigheid van planten maakt, aldus Studio Nuy Van Noort, de werknemers productiever en creatiever.
Trefwoorden
studio nuy van noort
utrecht
interieur
inspectie van het onderwijs
rijkskantoor
kantoor
Locatie
Best gelezen
1
Spectaculaire overkapping voor vernieuwd Arnhems busstation Kronenburg
maandag, 3 november
2
Vakwerk Architecten uitgeroepen tot Architect van het Jaar 2025
woensdag, 5 november
3
Groot Egyptisch Museum naar ontwerp van Heneghan Peng en West 8 officieel geopend
maandag, 3 november
4
Fenix, kunstmuseum over migratie, is Publiek gebouw van het Jaar 2025
woensdag, 5 november
5
NOAHH ontwerpt nieuw zwembad in Noordersportpark Haarlem
dinsdag, 4 november
Gerelateerde nieuwsberichten
JDWA realiseert modern kantoor in fabriekscomplex aan de Maas
11 juni 2020
Hollandse Nieuwe ontwerpt kleurrijk interieur voor Aidsfonds
9 juni 2020
Gevarieerd interieur voor advocatenkantoor in Hirschgebouw
14 mei 2020
Ruimtelijk en helder IKC door studio Nuy van Noort
4 april 2024
Nieuwe interieurs stadsdeelkantoor weerspiegelen karakter 'Noord'
30 april 2020
Interieur advocatenkantoor biedt een sequentie van sferen
21 april 2020
Kantoorinterieur met heldere kleuren en klare lijnen
31 maart 2020
Interieur als landschap met diverse bestemmingen
26 maart 2020
Bestaand betonnen casco vormt basis voor vernieuwd Ichthus College
16 juli 2024
Lichte en moderne werkomgeving voor VolkerWessels-kantoor Rijssen
13 maart 2020
Kantoorinterieur met duurzame materialen en meubels op maat
25 februari 2020
Houten meubel schept kantoorruimte in oud fabrieksgebouw
18 februari 2020
Kantoorgebouw Pharos als lichtend baken van duurzaamheid en welzijn
4 februari 2020
Open en tevens geborgen werkomgeving voor Triodos Bank
16 januari 2020
Flexibele werkomgeving voor scale-ups in oude Philips-kantine
22 april 2021
Studio Nuy van Noort ontwerpt villa als kader in het landschap
31 januari 2020
Plan ‘AMC Health Park’ wint prijsvraag entree AMC Amsterdam
13 oktober 2017
Coronacrisis leidt tot verschuiving in kantorenmarkt
4 augustus 2020
Abscis Architecten creëert transparant en warm kantoorinterieur voor bouwonderneming
16 november 2020
Studio Nuy van Noort ontwerpt IKC in Eibergen
2 december 2021
Herkenbare en 'huiselijke' brandweerpost voor Bennebroek
7 december 2021
Passende schooluitbreiding met eigen karakter door studio Nuy van Noort
25 april 2022
Voormalig Rabobankgebouw verbouwd tot rijkskantoor Belastingdienst
12 april 2023
JDWA realiseert modern kantoor in fabriekscomplex aan de Maas
11 juni 2020
Hollandse Nieuwe ontwerpt kleurrijk interieur voor Aidsfonds
9 juni 2020
Gevarieerd interieur voor advocatenkantoor in Hirschgebouw
14 mei 2020
Ruimtelijk en helder IKC door studio Nuy van Noort
4 april 2024
Nieuwe interieurs stadsdeelkantoor weerspiegelen karakter 'Noord'
30 april 2020
Interieur advocatenkantoor biedt een sequentie van sferen
21 april 2020
Kantoorinterieur met heldere kleuren en klare lijnen
31 maart 2020
Interieur als landschap met diverse bestemmingen
26 maart 2020
Bestaand betonnen casco vormt basis voor vernieuwd Ichthus College
16 juli 2024
Lichte en moderne werkomgeving voor VolkerWessels-kantoor Rijssen
13 maart 2020
Kantoorinterieur met duurzame materialen en meubels op maat
25 februari 2020
Houten meubel schept kantoorruimte in oud fabrieksgebouw
18 februari 2020
Kantoorgebouw Pharos als lichtend baken van duurzaamheid en welzijn
4 februari 2020
Open en tevens geborgen werkomgeving voor Triodos Bank
16 januari 2020
Flexibele werkomgeving voor scale-ups in oude Philips-kantine
22 april 2021
Studio Nuy van Noort ontwerpt villa als kader in het landschap
31 januari 2020
Plan ‘AMC Health Park’ wint prijsvraag entree AMC Amsterdam
13 oktober 2017
Coronacrisis leidt tot verschuiving in kantorenmarkt
4 augustus 2020
Abscis Architecten creëert transparant en warm kantoorinterieur voor bouwonderneming
16 november 2020
Studio Nuy van Noort ontwerpt IKC in Eibergen
2 december 2021
Herkenbare en 'huiselijke' brandweerpost voor Bennebroek
7 december 2021
Passende schooluitbreiding met eigen karakter door studio Nuy van Noort
25 april 2022
Voormalig Rabobankgebouw verbouwd tot rijkskantoor Belastingdienst
12 april 2023
Toon alles
Andere nieuwsberichten
Campus met onderwijs en woningen in 's Hertogenbosch officieel geopend
Gisteren, 14:56
Op de laatste twee bouwkavels van het Paleiskwartier aan de Onderwijsboulevard 300 ontwikkelden Avans Hogeschool en BrabantWonen 20.000 vierkante onderwijsgebouw en 124 studentenwoningen op een parkeergarage.
Voorlopig ontwerp renovatie en verduurzaming provinciehuis Utrecht gepresenteerd
Gisteren, 11:44
Behalve dat het energielabel van het dertig jaar oude gebouw fors wordt opgekrikt, krijgen de werkplekken, vergaderruimtes en openbare ruimtes een eigentijdse en volgens de provincie uitnodigende inrichting. INBO is verantwoordelijk voor het ontwerp.
Mix van oude en nieuwe werken plus wereldrecordpoging tijdens GLOW 2025
Gisteren, 09:29
Zaterdag opent de Eindhovense burgemeester Jeroen Dijsselbloem de twintigste editie van GLOW. Tijdens deze jubileumeditie van het lichtkunstfestival zijn nieuwe creaties te zien en worden bekende werken uit het verleden nogmaals getoond.
Foto's uitreiking Architectenweb Awards 2025
6 november, 8:45
Op woensdagavond 5 november 2025 zijn in het Keilepand in Rotterdam de Architectenweb Awards 2025 uitgereikt. Architectuurfotograaf Jan Paul Mioulet / DAPh maakte een beeldverslag van deze feestelijke avond.
Limburgse politiek ondanks zorgen akkoord met energiemaatschappij
Gisteren, 13:39
De provincie Limburg krijgt een eigen energiemaatschappij.
Provincie Zuid-Holland steekt ‘geen cent extra’ in warmtenetwerk
Gisteren, 10:28
Het ministerie vroeg om een extra bijdrage voor een ondergronds leidingnetwerk waarmee tienduizenden woningen worden verwarmd met restwarmte uit de Rotterdamse haven.
Provincies focussen op agrarisch natuurbeheer tegen stikstof
6 november, 3:11
De betrokken partijen hebben daarover afspraken gemaakt, maar benadrukken dat steun van de rijksoverheid nodig blijft.
Corporatiewoning harder geraakt door klimaatverandering
6 november, 10:46
Bewoners van de onderzochte woningen hebben bijvoorbeeld vaker last van hittestress door warme nachten en krijgen vaker te maken met wateroverlast bij hevige buien.
Arons en Gelauff benoemt drie associates
4 november, 12:05
Eva Heldeweg, Gijs Beckman en Thom Zijlstra zijn benoemd tot associate partner bij Arons en Gelauff architecten.
DigiBouw 2025 – enkele tips
4 november, 11:14
Op 19 en 20 november 2025 vindt in het Beatrixgebouw van de Jaarbeurs in Utrecht de tweede editie van DigiBouw plaats. Enkele tips voor sessies die voor architecten van toegevoegde waarde zijn.
Ga naar het nieuws-archief
Robert Muis
Redacteur
0
0
0
0
Voor een optimale gebruikservaring plaatst Architectenweb functionele cookies. Wat de verschillende cookies precies doen leggen we uit in een
overzicht
. Cookies van social media kun je optioneel
aanzetten
.
Akkoord
Instellingen
Annuleren
OK
Sluiten
Doorgaan
Inloggen
Maak een gratis persoonlijk account aan
Feedback
Feedback
Wij horen graag jouw feedback. Laat je reactie achter en eventueel jouw e-mail adres.
Reactie
Verstuur