Projecten
Producten
Bedrijven
Vacatures
Agenda
Awards
Podcasts
more_horiz
Videos
Magazine
Thema's
Favorieten
Profiel
Uitloggen
Abonneer je nu op onze nieuwsbrieven!
Abonneren
Nee, bedankt
Ja, denk met me mee rond de
materialisering van mijn project
Copyright: René de Wit
Copyright: René de Wit
Copyright: René de Wit
Copyright: René de Wit
Copyright: René de Wit
Copyright: René de Wit
Copyright: René de Wit
Copyright: René de Wit
Copyright: René de Wit
Copyright: René de Wit
Houten uitbreiding
Copyright: derksen|windt architecten
Stappen in de verbouwing
Copyright: derksen|windt architecten
Oude situatie
Copyright: René de Wit
Tijdens de bouw
Copyright: René de Wit
Tijdens de bouw
Copyright: René de Wit
Tijdens de bouw
Copyright: René de Wit
Tijdens de bouw
Copyright: René de Wit
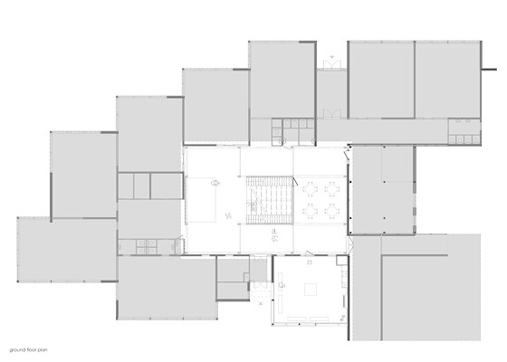
Begane grond
Copyright: derksen|windt architecten
Eerste verdieping
Copyright: derksen|windt architecten
Doorsnede
Copyright: derksen|windt architecten
Gevels
Copyright: derksen|windt architecten
Detail sheddak
Copyright: derksen|windt architecten
Houten constructie
Copyright: derksen|windt architecten
Derksen|windt architecten voorziet school van houten uitbreiding
16 januari 2024, 14:43
Een karakteristieke hallenschool in Heemstede kwam volgens een huisvestingsplan van de gemeente in aanmerking voor sloop en nieuwbouw. De schooldirectie en
derksen|windt architecten
maakten echter een plan voor renovatie, dat de onderwijskundige visie ondersteunde, de kracht van het gebouw behield en ruimtelijke kwaliteit toegevoegde.
De Evenaar, een hallenschool in Heemstede, liep tegen het probleem aan dat veel oudere schoolgebouwen in Nederland kennen: het gebouw voldeed niet meer aan de huidige standaarden en de basisschool kampte met ruimtegebrek. In haar Integraal Huisvestings Plan ging de gemeente uit van sloop en nieuwbouw.
Authenticiteit en mogelijkheden
Schoolgebouwen als deze worden vaak vervangen, omdat verbouwen wordt gezien als ingewikkelder en onzekerder. Het toekomstige beeld is moeilijker te ‘verkopen’, binnen gemeenten en besturen, verklaart derksen|windt architecten. Naar mening van het architectenbureau is dat enorm zonde; duurzaamheid begint met hergebruik van wat goed is.
Daarbij is volgens derksen|windt architecten een hallenschool een type dat zowel veel authenticiteit als mogelijkheden biedt. Het bureau maakte een ontwerp voor een potentieel circulaire, houten uitbreiding. Bij de verbouwing zijn voorzieningen voor frisse lucht en veiligheid en is duurzame verlichting in het gebouw ingepast.
Licht en ruimte
Nadat het dak van de overdekte binnenplaats is gesloopt, is hier een tweelaags houten volume geplaatst als een nieuwe kern van het gebouw. Door een sheddak toe te passen en maar een halve verdieping in te vullen is er binnen licht en ruimte in overvloed, vertellen de architecten.
Op de verdieping zijn de lerarenkamer, directiekamer en verschillende kleinere onderwijsruimten gesitueerd. Beneden is er ruimte voor een extra lokaal en flexibele lesplekken, maar vooral wordt de plek bepaald door een podium en een ruime centrale trap. Hiermee is een aantrekkelijke hal als hart van de school gecreëerd.
Hout
De uitbreiding bestaat uit een gelamineerd houten constructie die van binnen in het zicht is gelaten. De wandopvullingen in houtskeletbouw, afgewerkt in licht vuren, vormen een contrast met de warmere tint van de kolommen en liggers. Door de daklichten valt diffuus licht wat de ruimte een aangename en rustige sfeer verleent.
Aan de buitenzijde gaat het dak van de uitbreiding een relatie aan met de shed-vormen in het originele dak op de lokalen. Met de verticale, houten gevelbekleding is de uitbreiding tegelijkertijd ingetogen en opvallend.
Voorwerk
De school kon niet sluiten of uitwijken gedurende het schooljaar. De renovatie is daarom binnen een zomervakantie uitgevoerd, vertelt derksen|windt architecten. Dit lukte, ondanks het slechte weer, doordat de bouw vooraf volledig was uitgedacht en zoveel mogelijk is gewerkt met geprefabriceerde onderdelen. De vernieuwing is bovendien gerealiseerd voor een klein deel van de kosten van nieuwbouw, aldus de architecten.
Trefwoorden
school
schoolgebouw
hallenschool
houtbouw
basisschool
uitbreiding basisschool
heemstede
derksen|windt architecten
Locatie
Best gelezen
1
Architect Oliver Thill op 55-jarige leeftijd overleden
donderdag, 5 maart
2
André Kempe: ‘Het ging Oliver Thill om het geven van betekenis’
vrijdag, 6 maart
3
Werkstatt gaat verder zonder medeoprichter Niels Groeneveld
vrijdag, 6 maart
4
HvdHA ontwerpt twee woonblokken in Utrecht Terwijde volgens typologie van woonpalazzo
donderdag, 5 maart
5
Woongebouw door van Bergen Kolpa vormt nieuwe markering langs bocht Rotte
dinsdag, 10 maart
Gerelateerde nieuwsberichten
Schoolgebouw met contrasterende kanten
14 augustus 2023
Multifunctionele Accommodatie met ruimte voor buitenonderwijs
31 januari 2024
Hotel in monumentaal Amsterdams pand geheel vernieuwd en uitgebreid
27 juni 2024
Een hellingbaan door de school voor vertrouwen en kracht
4 juli 2023
Villa in bos draait om beleving van de omgeving
30 september 2024
Nieuwbouw voor basisschool op bestaand fundament
21 november 2022
Atelier PRO ontwierp gezamenlijk gebouw voor twee scholen op bijzondere plek
23 augustus 2022
Passende schooluitbreiding met eigen karakter door studio Nuy van Noort
25 april 2022
Klassiek schoolgebouw gerenoveerd naar ontwerp van 9graden architectuur
29 november 2021
Basisschool in Gilze heeft zones met verschillende dynamiek
13 oktober 2021
Architecten|en|en realiseert schoolgebouw als driedelig maatpak
16 december 2020
Nieuwe Architecten ‘verdubbelt’ bestaande school op beperkte locatie
29 augustus 2024
Basisschool na twintig jaar in een volwaardig schoolgebouw
24 september 2024
Compacte uitbreiding scholencomplex met ruimte voor groen
23 november 2020
Een houten huis met ritme en rust door derksen|windt architecten
7 december 2021
Geen doorsnee rijtjeshuis van derksen|windt architecten
16 november 2020
Bedrijfspand met symbolische 'sheddaken'
29 augustus 2019
Kinderopvang Mowgli in Vught is als een reeks avontuurlijke boomhutten
4 juni 2025
Uitbreiding als verbinding tussen binnen en buiten
11 juli 2017
Bestaand betonnen casco vormt basis voor vernieuwd Ichthus College
16 juli 2024
Ontwerp van Theo Kupers Architecten verankert schoolgebouw in de wijk
30 september 2024
Duurzame en flexibele nieuwbouw voor Dalton-school in Amsterdam-Noord
19 juni 2024
Bouw van houten woongebouw de Koffiefabriek in Amsterdam gestart
11 december 2024
Schoolgebouw met contrasterende kanten
14 augustus 2023
Multifunctionele Accommodatie met ruimte voor buitenonderwijs
31 januari 2024
Hotel in monumentaal Amsterdams pand geheel vernieuwd en uitgebreid
27 juni 2024
Een hellingbaan door de school voor vertrouwen en kracht
4 juli 2023
Villa in bos draait om beleving van de omgeving
30 september 2024
Nieuwbouw voor basisschool op bestaand fundament
21 november 2022
Atelier PRO ontwierp gezamenlijk gebouw voor twee scholen op bijzondere plek
23 augustus 2022
Passende schooluitbreiding met eigen karakter door studio Nuy van Noort
25 april 2022
Klassiek schoolgebouw gerenoveerd naar ontwerp van 9graden architectuur
29 november 2021
Basisschool in Gilze heeft zones met verschillende dynamiek
13 oktober 2021
Architecten|en|en realiseert schoolgebouw als driedelig maatpak
16 december 2020
Nieuwe Architecten ‘verdubbelt’ bestaande school op beperkte locatie
29 augustus 2024
Basisschool na twintig jaar in een volwaardig schoolgebouw
24 september 2024
Compacte uitbreiding scholencomplex met ruimte voor groen
23 november 2020
Een houten huis met ritme en rust door derksen|windt architecten
7 december 2021
Geen doorsnee rijtjeshuis van derksen|windt architecten
16 november 2020
Bedrijfspand met symbolische 'sheddaken'
29 augustus 2019
Kinderopvang Mowgli in Vught is als een reeks avontuurlijke boomhutten
4 juni 2025
Uitbreiding als verbinding tussen binnen en buiten
11 juli 2017
Bestaand betonnen casco vormt basis voor vernieuwd Ichthus College
16 juli 2024
Ontwerp van Theo Kupers Architecten verankert schoolgebouw in de wijk
30 september 2024
Duurzame en flexibele nieuwbouw voor Dalton-school in Amsterdam-Noord
19 juni 2024
Bouw van houten woongebouw de Koffiefabriek in Amsterdam gestart
11 december 2024
Toon alles
Andere nieuwsberichten
Groningen stelt gebiedsvisie voor wijk De Nieuwe Held vast
3 uur geleden
In vijftien jaar tijd wil de gemeente 1.850 woningen bouwen in de nieuwe wijk aan de westkant van de stad. De verwachting is dat de bouw eind 2027, begin 2028 kan starten.
Bouw paviljoen van Atelier PUUUR met buurtfunctie en voorzieningen gestart
Vandaag, 14:06
In Amsterdam Noord is de bouw gestart van een paviljoen naar ontwerp van Atelier PUUUR met daarin een Ouder- en Kindteamlocatie en een buurtkamer. Het tweelaagse gebouw markeert tevens de entree van een naastgelegen groengebied.
Zeven ontwerpteams aan de slag met herontwikkeling Bernhardkazerne Amersfoort
Vandaag, 11:44
Het opleidings- en trainingscentrum van de Koninklijke Landmacht, dat uit meerdere gebouwen bestaat, is dringend toe aan modernisering. De zeven bureaus werken alle aan een deelopdracht binnen het masterplan voor de kazerne.
Kantoorcomplex door Goof Spruit bij station Utrecht krijgt tweede leven als De Nieuwe Tuin
Vandaag, 10:26
In het ontwerp van BiermanHenket behoudt het complex zijn kenmerkende honingraatstructuur, maar krijgt het een opener karakter. Ook wordt het gebouw zowel binnen als buiten vergroend.
Raad van State blokkeert plan voor verbouwing ring Utrecht
2 uur geleden
Vorig jaar kreeg het kabinet de opdracht om de stikstofuitstoot van het project beter uit te leggen, maar dat is niet gelukt.
Provincie akkoord met natuurherstel voor nieuwe ASML-campus
Vandaag, 12:30
De provincie Noord-Brabant stemt in met het plan waarmee chipmachinefabrikant ASML natuur wil compenseren bij de realisatie van de nieuwe campus.
CBS: uitstoot gestegen in 2025, klimaatdoelen verder uit zicht
Vandaag, 09:20
Vorig jaar werd er 0,8 procent meer broeikasgassen uitgestoten dan in 2024.
Renovatie Belgisch Justitiepaleis loopt op tot zeshonderd miljoen euro
Gisteren, 14:33
Het Justitiepaleis in Brussel is ruim 140 jaar oud en staat al meer dan veertig jaar in de steigers.
Zuid-Holland stemt in met bouwplannen 285.000 huizen tot 2036
Gisteren, 12:12
Het college van Gedeputeerde Staten stemde in met 2333 ingediende plannen, omdat ze voldoen aan de provinciale regels in het omgevingsbeleid.
Fors meer omzet bouwbedrijf Dura Vermeer door grote vraag
Gisteren, 09:48
Volgens het familiebedrijf uit Rotterdam steeg de jaaromzet met 24 procent tot 2,6 miljard euro.
Ga naar het nieuws-archief
Robert Muis
Redacteur
0
0
0
0
Voor een optimale gebruikservaring plaatst Architectenweb functionele cookies. Wat de verschillende cookies precies doen leggen we uit in een
overzicht
. Cookies van social media kun je optioneel
aanzetten
.
Akkoord
Instellingen
Annuleren
OK
Sluiten
Doorgaan
Inloggen
Maak een gratis persoonlijk account aan
Feedback
Feedback
Wij horen graag jouw feedback. Laat je reactie achter en eventueel jouw e-mail adres.
Reactie
Verstuur