Projecten
Producten
Bedrijven
Vacatures
Agenda
Awards
Podcasts
more_horiz
Videos
Magazine
Thema's
Favorieten
Profiel
Uitloggen
Abonneer je nu op onze nieuwsbrieven!
Abonneren
Nee, bedankt
Ja, denk met me mee rond de
materialisering van mijn project
Copyright: Stijn Poelstra
Copyright: Stijn Poelstra
Copyright: Stijn Poelstra
Copyright: Stijn Poelstra
Copyright: Stijn Poelstra
Copyright: Stijn Poelstra
Copyright: Stijn Poelstra
Copyright: Stijn Poelstra
Copyright: Stijn Poelstra
Copyright: Stijn Poelstra
Copyright: Stijn Poelstra
Copyright: Stijn Poelstra
Copyright: Stijn Poelstra
Copyright: Stijn Poelstra
Copyright: Stijn Poelstra
Copyright: Stijn Poelstra
Copyright: Stijn Poelstra
Copyright: Stijn Poelstra
Copyright: Stijn Poelstra
Copyright: Stijn Poelstra
Copyright: Stijn Poelstra
Copyright: Stijn Poelstra
Copyright: Stijn Poelstra
Begane grond Snelliusstraat
Copyright: Nieuwe Architecten
Begane grond Galvanistraat
Copyright: Nieuwe Architecten
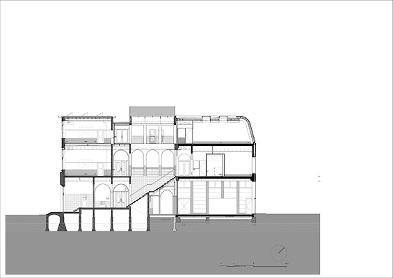
Eerste verdieping
Copyright: Nieuwe Architecten
Tweede verdieping
Copyright: Nieuwe Architecten
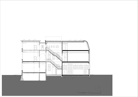
Doorsnede fietsenstalling en speeldek
Copyright: Nieuwe Architecten
Doorsnede centraal trappenhuis
Copyright: Nieuwe Architecten
Doorsnede vluchttrappenhuis
Copyright: Nieuwe Architecten
Gevel Galvanistraat
Copyright: Nieuwe Architecten
Gevel Snelliusstraat
Copyright: Nieuwe Architecten
Copyright: Stijn Poelstra
Nieuwe Architecten ‘verdubbelt’ bestaande school op beperkte locatie
29 augustus 2024, 14:34
Het ruim honderd jaar oude gebouw van basisschool Galvani in Den Haag is geliefd bij de gebruikers, maar voldeed niet meer.
Nieuwe Architecten
ontwierp een vernieuwing en uitbreiding van het schoolgebouw met behoud van karakter voor het bestaande gebouw en een eigentijdse vertaling ervan voor het nieuwe volume.
De openbare basisschool Galvani is al meer dan honderd jaar gevestigd op dezelfde locatie in de Haagse wijk Duinoord. De groeiende school paste niet meer in het bestaande gebouw en had behoefte aan meer ruimte en faciliteiten. Daarnaast voldeed het gebouw niet meer aan de nu geldende eisen.
In opdracht van organisatie De Haagse Scholen maakte Nieuwe Architecten het ontwerp voor de renovatie en de uitbreiding naar een ‘dubbele’ school met zeventien lokalen. Vanaf de eerste schets was het uitgangspunt voor het architectenbureau om de kwaliteit en sfeer in het bestaande gebouw te behouden.
“De hoge plafonds, de karakteristieke togen en het centrale trappenhuis staan in het geheugen gegrift van iedereen die hier de afgelopen 110 jaar onderwijs heeft genoten en gegeven”, zegt Nieuwe Architecten.
Dubbel ruimtegebruik
De beschikbare ruimte was beperkt: de locatie ligt ingeklemd tussen twee smalle woonstraten. Nieuwe Architecten heeft een oplossing gevonden in dubbel grondgebruik. De bestaande gymzaal, die naar de huidige maatstaven te klein was, is gesloopt om plaats te maken voor nieuwbouw.
Deze uitbreiding aan de achterzijde van het schoolgebouw bevat op de begane grond de nieuwe gymzaal. Daarboven bevinden zich twee lagen met lokalen en onderwijsfuncties, die samen met twee nieuwe lokalen op het bestaande volume invulling geven aan het totale gevraagde programma.
De achterpleinen zijn opgetild. De kleedkamers van de gymzaal bevinden zich onder het ‘sportdek’. Een nieuwe fietsenstalling heeft een plek gekregen onder het speeldek voor de jongste schoolgaanden.
De gymzaal is verbonden met het hart van de school in de oudbouw en kan hierdoor ook worden ingezet voor grote bijeenkomsten, zoals voorstellingen en eindmusicals. In het hart van de school, met het monumentale trappenhuis, liggen ook leerpleinen voor informeel werken.
Historie vertaald naar nu
Het nieuwe volume is opgebouwd met een constructie van prefab betonnen toogelementen. Daarmee hebben de architecten een karakteristiek element uit van de vormentaal in de oudbouw doorgetrokken naar de nieuwbouw. Aan de straatzijde heeft de uitbreiding een gemetselde gevel gekregen, als een moderne vertaling van de oorspronkelijke gevel. Het metselwerk sluit bovendien aan bij de buurt, die als rijksbeschermd stadsgezicht is aangemerkt.
De zijgevels van het nieuwe volume zijn volledig in glas uitgevoerd, waardoor de activiteiten in de school van buitenaf zichtbaar zijn. Ook zijn daardoor vanaf de straat de toogconstructies zichtbaar. Verder zijn tegen de buitengevel van de oudbouw interne trappen toegevoegd, die zorgen voor een vluchtroute voor de uitbreiding en tegelijkertijd nodig zijn voor de dagelijkse circulatie.
Het volledige gebouw is (na)geïsoleerd en voorzien van buitenzonwering. De akoestiek is verbeterd en de school maakt gebruik van eigen zonnepanelen en een luchtbehandelingsinstallatie. Het geheel gebouw – zowel het bestaande deel als de nieuwbouw – voldoet op alle punten aan Frisse scholen klasse B, “met enkele uitschieters naar A”, aldus Nieuwe Architecten.
Trefwoorden
schoolgebouw
dubbel grondgebruik
renovatie
den haag
onderwijsgebouw
basisschool
uitbreiding basisschool
nieuwe architecten
Locatie
Best gelezen
1
Architect Oliver Thill op 55-jarige leeftijd overleden
donderdag, 5 maart
2
André Kempe: ‘Het ging Oliver Thill om het geven van betekenis’
vrijdag, 6 maart
3
Werkstatt gaat verder zonder medeoprichter Niels Groeneveld
vrijdag, 6 maart
4
HvdHA ontwerpt twee woonblokken in Utrecht Terwijde volgens typologie van woonpalazzo
donderdag, 5 maart
5
Woongebouw door van Bergen Kolpa vormt nieuwe markering langs bocht Rotte
dinsdag, 10 maart
Gerelateerde nieuwsberichten
Expressieve villa aan het water van Nieuwe Architecten
9 januari 2024
Nominaties Schoolgebouw van het Jaar 2021 bekend
20 september 2021
Eigenzinnige zelfbouwwoning in Delftse Coendersbuurt
11 oktober 2019
Uitbreiding geeft Koning Willem I College krachtiger uitstraling
13 april 2018
Basisschool na twintig jaar in een volwaardig schoolgebouw
24 september 2024
Benthem Crouwel Architects en Nieuwe Architecten maken masterplan voor gebouwensemble op Zernike Campus
23 september 2025
Nieuwe Architecten schept leefruimte op het dak
22 februari 2018
Renovatie en uitbreiding voor eerste Buitenschool
4 november 2015
Basisschool in Groningse Engelbert ontworpen als 'dorp voor kinderen'
17 april 2024
Ontwerp van Theo Kupers Architecten verankert schoolgebouw in de wijk
30 september 2024
Derksen|windt architecten voorziet school van houten uitbreiding
16 januari 2024
Arons en Gelauff ontwerpt circulaire en cirkelvormige school in Muiderberg
17 november 2023
Het Hogeland College in Uithuizen opent vernieuwd schoolgebouw
31 oktober 2024
Schoolgebouw met contrasterende kanten
14 augustus 2023
Zoetmulder en Jeanne Dekkers Architectuur ontwerpen biobased kindcentrum
9 februari 2023
Nieuwbouw voor basisschool op bestaand fundament
21 november 2022
Winnend ontwerp van NEXT en Christensen & Co voor natuurinclusief Kindcentrum Cartesius
10 november 2022
Atelier PRO ontwierp gezamenlijk gebouw voor twee scholen op bijzondere plek
23 augustus 2022
Zorgvuldige renovatie en uitbreiding voor Pniëlschool in Rotterdam Zuid naar ontwerp van EGM Architecten
1 juli 2022
Best kiest ontwerp van KettingHuls voor transformatie IKC
9 maart 2022
Basisschool in Gilze heeft zones met verschillende dynamiek
13 oktober 2021
Biofilisch ingestoken schoolontwerp wint Gouden Kikker
15 juli 2021
Expressieve villa aan het water van Nieuwe Architecten
9 januari 2024
Nominaties Schoolgebouw van het Jaar 2021 bekend
20 september 2021
Eigenzinnige zelfbouwwoning in Delftse Coendersbuurt
11 oktober 2019
Uitbreiding geeft Koning Willem I College krachtiger uitstraling
13 april 2018
Basisschool na twintig jaar in een volwaardig schoolgebouw
24 september 2024
Benthem Crouwel Architects en Nieuwe Architecten maken masterplan voor gebouwensemble op Zernike Campus
23 september 2025
Nieuwe Architecten schept leefruimte op het dak
22 februari 2018
Renovatie en uitbreiding voor eerste Buitenschool
4 november 2015
Basisschool in Groningse Engelbert ontworpen als 'dorp voor kinderen'
17 april 2024
Ontwerp van Theo Kupers Architecten verankert schoolgebouw in de wijk
30 september 2024
Derksen|windt architecten voorziet school van houten uitbreiding
16 januari 2024
Arons en Gelauff ontwerpt circulaire en cirkelvormige school in Muiderberg
17 november 2023
Het Hogeland College in Uithuizen opent vernieuwd schoolgebouw
31 oktober 2024
Schoolgebouw met contrasterende kanten
14 augustus 2023
Zoetmulder en Jeanne Dekkers Architectuur ontwerpen biobased kindcentrum
9 februari 2023
Nieuwbouw voor basisschool op bestaand fundament
21 november 2022
Winnend ontwerp van NEXT en Christensen & Co voor natuurinclusief Kindcentrum Cartesius
10 november 2022
Atelier PRO ontwierp gezamenlijk gebouw voor twee scholen op bijzondere plek
23 augustus 2022
Zorgvuldige renovatie en uitbreiding voor Pniëlschool in Rotterdam Zuid naar ontwerp van EGM Architecten
1 juli 2022
Best kiest ontwerp van KettingHuls voor transformatie IKC
9 maart 2022
Basisschool in Gilze heeft zones met verschillende dynamiek
13 oktober 2021
Biofilisch ingestoken schoolontwerp wint Gouden Kikker
15 juli 2021
Toon alles
Andere nieuwsberichten
Groningen stelt gebiedsvisie voor wijk De Nieuwe Held vast
Gisteren, 15:45
In vijftien jaar tijd wil de gemeente 1.850 woningen bouwen in de nieuwe wijk aan de westkant van de stad. De verwachting is dat de bouw eind 2027, begin 2028 kan starten.
Bouw paviljoen van Atelier PUUUR met buurtfunctie en voorzieningen gestart
Gisteren, 14:06
In Amsterdam Noord is de bouw gestart van een paviljoen naar ontwerp van Atelier PUUUR met daarin een Ouder- en Kindteamlocatie en een buurtkamer. Het tweelaagse gebouw markeert tevens de entree van een naastgelegen groengebied.
Zeven ontwerpteams aan de slag met herontwikkeling Bernhardkazerne Amersfoort
Gisteren, 11:44
Het opleidings- en trainingscentrum van de Koninklijke Landmacht, dat uit meerdere gebouwen bestaat, is dringend toe aan modernisering. De zeven bureaus werken alle aan een deelopdracht binnen het masterplan voor de kazerne.
Kantoorcomplex door Goof Spruit bij station Utrecht krijgt tweede leven als De Nieuwe Tuin
Gisteren, 10:26
In het ontwerp van BiermanHenket behoudt het complex zijn kenmerkende honingraatstructuur, maar krijgt het een opener karakter. Ook wordt het gebouw zowel binnen als buiten vergroend.
Raad van State blokkeert plan voor verbouwing ring Utrecht
Gisteren, 16:31
Vorig jaar kreeg het kabinet de opdracht om de stikstofuitstoot van het project beter uit te leggen, maar dat is niet gelukt.
Provincie akkoord met natuurherstel voor nieuwe ASML-campus
Gisteren, 12:30
De provincie Noord-Brabant stemt in met het plan waarmee chipmachinefabrikant ASML natuur wil compenseren bij de realisatie van de nieuwe campus.
CBS: uitstoot gestegen in 2025, klimaatdoelen verder uit zicht
Gisteren, 09:20
Vorig jaar werd er 0,8 procent meer broeikasgassen uitgestoten dan in 2024.
Renovatie Belgisch Justitiepaleis loopt op tot zeshonderd miljoen euro
10 maart, 2:33
Het Justitiepaleis in Brussel is ruim 140 jaar oud en staat al meer dan veertig jaar in de steigers.
Zuid-Holland stemt in met bouwplannen 285.000 huizen tot 2036
10 maart, 12:12
Het college van Gedeputeerde Staten stemde in met 2333 ingediende plannen, omdat ze voldoen aan de provinciale regels in het omgevingsbeleid.
Fors meer omzet bouwbedrijf Dura Vermeer door grote vraag
10 maart, 9:48
Volgens het familiebedrijf uit Rotterdam steeg de jaaromzet met 24 procent tot 2,6 miljard euro.
Ga naar het nieuws-archief
Robert Muis
Redacteur
4
0
0
0
Voor een optimale gebruikservaring plaatst Architectenweb functionele cookies. Wat de verschillende cookies precies doen leggen we uit in een
overzicht
. Cookies van social media kun je optioneel
aanzetten
.
Akkoord
Instellingen
Annuleren
OK
Sluiten
Doorgaan
Inloggen
Maak een gratis persoonlijk account aan
Feedback
Feedback
Wij horen graag jouw feedback. Laat je reactie achter en eventueel jouw e-mail adres.
Reactie
Verstuur