Projecten
Producten
Bedrijven
Vacatures
Agenda
Awards
Podcasts
more_horiz
Videos
Magazine
Thema's
Favorieten
Profiel
Uitloggen
Nieuw
Populair
Toon alles
Architectenweb magazine #14
Architectenweb magazine #13
Publieke gebouwen
Architectenweb magazine #12
Kantoren
Architectenweb magazine #11
Scholen
Architectenweb magazine #10
Zorg
Architectenweb magazine #14
Architectenweb magazine #10
Zorg
Architectenweb magazine #12
Kantoren
Architectenweb magazine #13
Publieke gebouwen
Architectenweb magazine #6
Transformatie en Renovatie
Om direct naar je favorieten te kunnen gaan is het nodig om eerst in te loggen.
Nieuw
Architectenweb Awards 2025
Architectenweb Awards 2024
Architectenweb Awards 2023
Architectenweb Awards 2022
Architectenweb Awards 2021
Architectenweb Awards 2020
Architectenweb Awards 2019
Architectenweb Awards 2018
Om direct naar je favorieten te kunnen gaan is het nodig om eerst in te loggen.
Nieuw
Populair
Favorieten
Toon alles
Vakwerk Architecten
Nominatie voor de prijs voor Architect van het Jaar 2025
Sanne van Manen
Nominatie voor de prijs voor Architect van het Jaar 2025
KSA
Nominatie voor de prijs voor Architect van het Jaar 2025
KRFT
Nominatie voor de prijs voor Architect van het Jaar 2025
Joost Ector
Nominatie voor de prijs voor Architect van het Jaar 2025
Prijsuitreiking Architectenweb Awards 2024
Impressie van een feestelijke avond
Martens, Willems & Humblé Architecten
Nominatie voor de prijs voor Architect van het Jaar 2024
Uitreiking van Architectenweb Awards 2020
Impressie van de prijsuitreiking via Zoom
De Zwarte Hond
Nominatie voor de prijs voor Architect van het Jaar 2024
Avond met De Zwarte Hond
Symposium
Om direct naar je favorieten te kunnen gaan is het nodig om eerst in te loggen.
Nieuw
Populair
Categorieën
Favorieten
Toon alles
Brandpreventie Academy BV
Cay Circulaire Keukens
Circulaire keukens en pantry's
Studio Kirsten Reith
Interieurontwerp
Studio175
Interieuradvies in regio Utrecht
Orange Automatic Doors
Indoorwrap
De specialist in Keukenwrappen
Cay Circulaire Keukens
Circulaire keukens en pantry's
Studio Kirsten Reith
Interieurontwerp
Studio175
Interieuradvies in regio Utrecht
Interior & Co
Indoorwrap
De specialist in Keukenwrappen
Orange Automatic Doors
Architecten
Architectuur
Mobiliteit en infrastructuur
Stedenbouw en landschapsarchitectuur
Leveranciers
Gevels
Daken
Ramen en deuren
Trappen, liften en balustrades
Binnenwanden
Vloeren
Plafonds
Verlichting
Sanitair
Projectinrichting
Installaties
Constructies
Buitenruimte
Software
Adviseurs
Bestekschrijvers
Bouwmanagement
Installatie adviseurs E
Bouwfysica
Calculators
Installatie adviseurs G/W
Bouwkundig tekenwerk
Constructeurs
Lichtadviseurs
Adviseur beveiliging
Juristen
Intermediairs, Payrolling
Aannemers
Overig
Presentatie
Instellingen / onderwijs
Overig
Om direct naar je favorieten te kunnen gaan is het nodig om eerst in te loggen.
Nieuw
Populair
Favorieten
Toon alles
Gesprek met Stephan Sliepenbeek over hoogbouw in Amstel III
Gesprek met Ellen van Bueren over gebiedsontwikkeling en hoogbouw
Gesprek met Ma Yansong over ontwerpen die emotie oproepen
Gesprek met Paul de Ruiter over innovatieve en duurzame hoogbouw
Gesprek met Pi de Bruijn over zijn ontwerpen voor de Tweede Kamer toen en nu
Gesprek met Ellen van Bueren over gebiedsontwikkeling en hoogbouw
Gesprek met Oresti Sarafopoulos over het ontwerpen van een kantoorgebouw met bijna geen installaties
Gesprek met Stijn Steenbakkers over verdichting en hoogbouw in Eindhoven
Gesprek met Pi de Bruijn over zijn ontwerpen voor de Tweede Kamer toen en nu
Gesprek met Paul de Ruiter over innovatieve en duurzame hoogbouw
Om direct naar je favorieten te kunnen gaan is het nodig om eerst in te loggen.
Nieuw
Populair
Categorieën
Favorieten
Toon alles
De energiemarkt revolutionair vernieuwen
Festivalterrein als inspiratie van dit kantoor
De antieke Agora als inspiratie voor een kantoor
Renovatieproject Ockenburghstraat
Aluminium kozijnen: de isolerende oplossing
Prinsenpark, Rotterdam
ASML Gebouw 3
IVY, Amsterdam
IKC De Brug
Houthavens, Amsterdam
Architectuur
Woningbouw
Zorg
Hotels
Restaurants en café’s
Winkels
Sportgebouwen
Culturele gebouwen
Overheidsgebouwen
Scholen
Kantoren
Bedrijfsgebouwen
Paviljoens en kunst
Overig
Mobiliteit en infrastructuur
Trein- en metrostations
Luchthavens
Busstations
Parkeergarages
Fietsparkeren
Wegen
Bruggen
Water
Energie
Tankstations en laadstations
Waterzuivering en afvalverwerking
Overig
Stedenbouw en landschapsarchitectuur
Regionale visies
Gebiedsvisies
Plannen stedelijk weefsel
Amusementsparken en dierentuinen
Lichtontwerpen
Openbare ruimte
Pleinen
Parken
Tuinen
Speelplaatsen
Uitkijktorens
Overige (bijv. begraafplaatsen)
Om direct naar je favorieten te kunnen gaan is het nodig om eerst in te loggen.
Nieuw
Populair
Categorieën
Favorieten
Toon alles
Control Track Versa
Langdurige flexibiliteit voor kantoren van de toekomst
Toegankelijkheid in de stad: klanktegels als gids
Een nieuwe dimensie in stadsontwerp: integreren van klank voor een inclusieve ervaring.
Dreentegel
Terug van weggeweest
Flux-totaalaanbod vraaggestuurde Renson WTW-ventilatie
Compacte wand- en plafondmontage voor alle debieten
Wie denkt er aan slopen tijdens bouwen?
Kies voor de toekomst, kies voor circulair isoleren!
Digital Prints
Meer mogelijkheden in gekleurd staal
Element+ H-I
Hout - Aluminium Elementgevel
Vierkante vluchtroutearmaturen voor grote ruimtes
Zichtbare veiligheid van alle kanten
GROHE Cubeo: kranen voor elke badkamer
Stijlvol en duurzaam design voor jarenlang plezier
Schüco Zonweringsysteem Integralmaster in FWS
Bescherming tegen zon, verblinding en privacy – verborgen en volledig geïntegreerd
Gevels
Gevelbekleding
Vliesgevels
Zonwering buiten
Isolatie
Gevelconstructies
Signing
Overig
Daken
Dakafwerkingen
Dakisolatie
Dakconstructies
Dakranden, dakgoten en HWA's
Dakramen
Lichtkoepels
Lichtstraten
Schoorstenen
Overig
Dakluiken
Ramen en deuren
Raam- en deursystemen / kozijnen
Vliesgevels
Hang- en sluitwerk
Beveiliging en luiken
Dorpels en vensterbanken
Lateien
Roosters
Glas
Dakramen
Dakkoepels
Lichtstraten
Zonwering buiten
Zonwering binnen
Buitendeuren
Binnendeuren
Postvakken en brievenbussen
Overig
Dakluiken
Trappen, liften en balustrades
Trappen
Roltrappen
Liften
Balustrades en hekwerken
Galerijen
Binnenwanden
Binnenwanden
Wandafwerking
Vloeren
Constructieve vloeren
Verhoogde vloeren
Vloerafwerkingen
Overig
Plafonds
Tegels
Lineair
Grill
Open en roosters
Naadloos
Eilanden en baffles
Plafondafwerkingen
Ophangsystemen
Overig
Klimaatplafonds
Verlichting
Binnenverlichting
Buitenverlichting
Sanitair
Kranen en douchesets
Wastafels
Douchewanden en douchebakken
Baden
Waterclosets
Accessoires
Overig
Projectinrichting
Stoelen
Banken
Tafels
Kasten
Balies
Vrijstaande wanden
Keukens
Accessoires
Overig
Cabines
Interieurbeplanting
Stoffering
Installaties
Verwarming, koeling en ventilatie
Elektrotechnische installaties
Schakelmateriaal
Domotica
Deurcommunicatie
Beveiliging
Liften
Onderhoudsinstallaties
Overig
Brandbeveiliging
Constructies
Draagconstructies
Funderingen en kelders
Overig
Brandbeveiliging
Buitenruimte
Bestratingen en verhardingen
Afwateringen
Terreinafscheidingen en geluidsschermen
Buitenmeubilair
Fietsparkeren
Terrassen
Terrasoverkappingen
Bruggen
Accessoires
Overig
Beplanting
Sport- en speeltoestellen
Software
Tekenen 2D
Modelleren 3D / BIM
Visualisatie / rendering
Parametrisch ontwerpen
Bouwfysica
Draagconstructie
Overig
Virtual Reality
Cloudoplossingen
Om direct naar je favorieten te kunnen gaan is het nodig om eerst in te loggen.
Nieuw
Populair
Favorieten
Toon alles
Zomerwandelingen Nieuwe Stad op Zondag 2025
Amsterdam
Prefab beurs - 7 t/m 9 oktober 2025
Brabanthallen 's-Hertogenbosch
Boekpresentatie en panelgesprek met Floor Milikows
Prins Hendrikkade 600, 1011 VX Amsterdam
Architects Table ’25: Lunch & Inspiratie in HAUT Amsterdam
ATAG LIVE – HAUT gebouw, Spaklerweg 10F, 1096 BA Amsterdam (tegenover metrostation Spaklerweg)
Inspiratiedag @ Sempergreen – Gevelgroen
Defensieweg 1, 3984 LR Odijk
Architects Table ’25: Lunch & Inspiratie in HAUT Amsterdam
ATAG LIVE – HAUT gebouw, Spaklerweg 10F, 1096 BA Amsterdam (tegenover metrostation Spaklerweg)
Ontdek het seminarieprogramma van Architect@Work Amsterdam
De Kromhouthal, Gedempt Hamerkanaal 231, Amsterdam
LIAG over duurzaamheid centraal in project
Online
1.Lectures HouseEurope! Renovate, don’t speculate
Pakhuis de Zwijger
Zomerwandelingen Nieuwe Stad op Zondag 2025
Amsterdam
Om direct naar je favorieten te kunnen gaan is het nodig om eerst in te loggen.
Nieuw
Toon alles
Design
Duurzaamheid
Gevel
Infrastructuur
Interieur
Kantoren
Leisure
Openbare ruimte
Publieke gebouwen
Scholen
Transformatie en Renovatie
Woningbouw
Zorg
Om direct naar je favorieten te kunnen gaan is het nodig om eerst in te loggen.
Nieuw
Populair
Toon alles
Junior Architect (NL/EN)
De Academie van Bouwkunst Amsterdam zoekt twee onderzoekers voor lectoraat
Site Practice zoekt medior architect met 3-6 jaar ervaring (Amsterdam)
DAT zoekt een BIM Modelleur (Revit)
stagiair bouwkunde Heerenveen
Meewerkend Voorman
Architect
Junior Architect gezocht!
Junior Ontwerper
Studio Nauta zoekt projectleider
wUrck zoekt junior Architect
Project Architect
Om direct naar je favorieten te kunnen gaan is het nodig om eerst in te loggen.
Zicht vanaf het Speelheidepark
Copyright: KettingHuls
Maquettebeeld oud- en nieuwbouw
Copyright: KettingHuls
Zicht vanaf het balkon
Copyright: KettingHuls
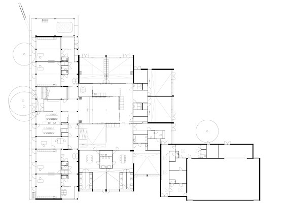
Begane grond
Copyright: KettingHuls
Eerste verdieping
Copyright: KettingHuls
Maquettebeeld nieuwbouw
Copyright: KettingHuls
Langsdoorsnede
Copyright: KettingHuls
Bibliotheek en ontmoetingsruimte
Copyright: KettingHuls
Lichtstraat tussen oud- en nieuwbouw
Copyright: KettingHuls
Het hart van het gebouw
Copyright: KettingHuls
Zicht vanuit klaslokaal op de verdieping
Copyright: KettingHuls
Gevel met balkons
Copyright: KettingHuls
Zicht op de hoofdentree
Copyright: KettingHuls
Situatietekening
Copyright: KettingHuls
Best kiest ontwerp van KettingHuls voor transformatie IKC
9 maart 2022, 16:47
Voor de transformatie van basisschool De Zevensprong in Best naar een Integraal Kind Centrum is het ontwerp van architectenbureau
KettingHuls
gekozen. Het bureau stelt voor een compact houten gebouw te plaatsen tegen de bestaande bouw, waarvan zoveel mogelijk behouden blijft; “nieuwe klaslokalen kunnen niet tippen aan de bestaande”.
De Zevensprong huist in een gebouw dat in de jaren 70 van de vorige eeuw werd gerealiseerd in het Speelheidepark in de nieuwbouwwijk Speelheide. De lokalen met een gemiddelde vrije hoogte van 3,5 meter, een sheddak en daglicht van twee zijden vormen in belangrijke mate de kwaliteit van het gebouw.
Inmiddels verkeert het pand echter in slechte energetische staat en is er veel achterstallig onderhoud. Door diverse aanpassingen is de potentie van de klaslokalen nog maar moeilijk te zien en bij de installatie van een nieuw ventilatiesysteem zijn de sheddaken en daklichten niet gerespecteerd, vertelt KettingHuls.
Behoud van kwaliteit
Voor een verbouwing organiseerde Mevrouw Meijer in opdracht van de gemeente Best het ontwerpend onderzoek ‘Nieuw leven voor De Zevensprong’. Op basis daarvan werd het scenario van KettingHuls gekozen voor realisatie.
Het architectenbureau neemt als uitgangspunt voor de transformatie om zoveel mogelijk van de bestaande klaslokalen te behouden. “Nieuwe klaslokalen zullen met de huidige bouwbudgetten nooit kunnen tippen aan de bestaande”, legt KettingHuls uit. “Bovendien staan het bestaande gebouw en de volgroeide bomen rondom de school voor herinnering, verhalen en een geschiedenis die horen bij de identiteit van de wijk.”
Houten constructie
Enkel twee later aangebouwde klaslokalen zonder sheddak en de speelzaal worden gesloopt. In de plaats daarvan komt tegen het bestaande gebouw een tweelaags bouwvolume net een constructie van prefab houten spanten.
De prefab houten balk- en kolomstructuur is in relatief korte bouwtijd te realiseren en maakt flexibel gebruik van het bouwvolume in de toekomst mogelijk, legt het architectenbureau uit. Deze nieuwbouw, parallel aan het voetbalveld gesitueerd, vormt de nieuwe voorzijde van het IKC.
Beweging en buitenonderwijs
Het gebouw krijgt hier een duidelijk herkenbare tweede entree, bedoeld voor de midden- en bovenbouw, gemarkeerd door twee bestaande grote bomen. De nieuwbouw gaat hier een relatie aan met het sportveld en staat zo in het teken van ‘sport en beweging’, legt KettingHuls uit. Balkons, trappen, een tribune en een glijbaan bepalen het beeld.
Het balkon van het nieuwe bouwdeel fungeert voor de bovenbouw als tribune met zich op het sportveld; bovenal is het balkon echter moestuin en een plek voor buitenonderwijs. Tegelijkertijd werkt het balkon als zonwering.
De middenbouw, entree en keuken hebben onder het balkon een overdekte buitenruimte; deze ligt iets hoger dan het sportveld, zodat een stoepje ontstaat. De potten en bakken van de moestuin en de klimplanten langs de spandraden aan de gevel geven de school een groene uitstraling en zorgen voor koeling en biodiversiteit.
Hart voor bestaande gebouw
Bij de hoofdentree in het bestaande gebouw staat het Kindcentrum in het teken van ‘gezond eten’. Aan deze zijde bepalen een bestaande boom, de moestuin en kippen de sfeer.
De utilitaire voorzieningen in het bestaande gebouw verplaatst het architectenbureau van het midden naar de rand, zodat in het midden plaats ontstaat om daadwekelijk een hart te creëren met een gedeelde ruimte en speelleerpleinen. Hier moet ontmoeting tussen de verschillende leeftijdsgroepen plaatsvinden.
Schuurachtig buitenlokaal
Op de kop van de nieuwbouw komt een ‘schuur’ met een overdekte zandbak en op de verdieping een buitenlokaal, dat direct aan het handvaardigheidslokaal grenst. “Alle hekwerken rondom het speelveld zijn weg”, vertelt KettingHuls, “zodat de schuur fungeert als een poort en een uitkijktoren: de schakel tussen school, Speelheide en het centrum.”
Na de transformatie biedt IKC De Zevensprong ruimte aan 325 kinderen: twee groepen dagopvang en één groep peuterspeelzaal, vier groepen onderbouw, vier groepen middenbouw, vijf groepen bovenbouw en buitenschoolse opvang. Het project betreft 2.135 m
2
bvo totaal, waarvan 320 m
2
sloop, 980 m
2
renovatie en 1.155 m
2
nieuwbouw.
Trefwoorden
ikc de zevensprong
best
basisschool
integraal kindcentrum
scholenbouw
transformatie
mevrouw meijer
ontwerpend onderzoek
Locatie
Best gelezen
1
Rapport: rijke Amsterdammers leven steeds vaker apart van rest
dinsdag, 30 september
2
Rijk schrijft aanbesteding uit voor nieuwe marinierskazerne
woensdag, 1 oktober
3
Kabinet wil wijken erbij op 127 plekken in Nederland
maandag, 29 september
4
Architectenweb symposium: klein maar fijn wonen?
donderdag, 2 oktober
5
Leiden wil verhoogd busstation naast treinperrons centraal station
dinsdag, 30 september
Gerelateerde nieuwsberichten
Bouw van energieneutrale buurt De Werf in Almere gestart
9 oktober 2024
BDP ontwerpt kindcentrum voor Houtwijk in Den Haag
7 juni 2022
Luïsa Jacobse benoemd tot partner bij buro Kettinghuls
20 februari
Transformatie van een basisschool naar duurzaam IKC door buro Kettinghuls
22 april
Zoetmulder maakt winnende visie voor IKC in Woerdense Verlaat
17 mei 2023
Nieuwe Architecten ‘verdubbelt’ bestaande school op beperkte locatie
29 augustus 2024
Basisschool na twintig jaar in een volwaardig schoolgebouw
24 september 2024
Monica Ketting neemt afscheid van KettingHuls
6 januari 2022
KettingHuls pleit voor inclusieve benadering van fietsparkeren in hoogstedelijke bouwblokken
31 augustus 2021
KettingHuls realiseert woongebouw op boerenerf in Oosterwold
1 maart 2021
KettingHuls plaatst woongebouw tussen IJ en sporen
6 februari 2020
Collectiviteit basis voor circulariteit in Ruimtelijk Raamwerk M4H
4 juli 2019
Gebouw voor creatieven biedt ruimte, inspiratie en rust
6 juni 2019
Winnende visie van KettingHuls en Bureau B+B voor Broek van Cranendonck
29 januari 2019
KettingHuls en Bureau B+B winnen prijsvraag Sports & Talent Park Sittard
17 januari 2019
Sportgebouw met begaanbare daken voor Centre Court Kerkrade
6 februari 2018
Plan KettingHuls voor Atriumterrein Kerkrade goedgekeurd
28 juni 2017
Woonblok met landelijke binnentuin van KettingHuls
9 november 2016
KettingHuls wint prijsvraag Atriumterrein Kerkrade
5 juli 2016
Passende schooluitbreiding met eigen karakter door studio Nuy van Noort
25 april 2022
Kindcentrum vormt vriendelijke plek in rauw IJsselmonde
29 juli 2022
LIAG en RUM ontwerpen Integraal Kind en Ouderen Centrum Noord-Scharwoude
2 november 2022
Bouw van energieneutrale buurt De Werf in Almere gestart
9 oktober 2024
BDP ontwerpt kindcentrum voor Houtwijk in Den Haag
7 juni 2022
Luïsa Jacobse benoemd tot partner bij buro Kettinghuls
20 februari
Transformatie van een basisschool naar duurzaam IKC door buro Kettinghuls
22 april
Zoetmulder maakt winnende visie voor IKC in Woerdense Verlaat
17 mei 2023
Nieuwe Architecten ‘verdubbelt’ bestaande school op beperkte locatie
29 augustus 2024
Basisschool na twintig jaar in een volwaardig schoolgebouw
24 september 2024
Monica Ketting neemt afscheid van KettingHuls
6 januari 2022
KettingHuls pleit voor inclusieve benadering van fietsparkeren in hoogstedelijke bouwblokken
31 augustus 2021
KettingHuls realiseert woongebouw op boerenerf in Oosterwold
1 maart 2021
KettingHuls plaatst woongebouw tussen IJ en sporen
6 februari 2020
Collectiviteit basis voor circulariteit in Ruimtelijk Raamwerk M4H
4 juli 2019
Gebouw voor creatieven biedt ruimte, inspiratie en rust
6 juni 2019
Winnende visie van KettingHuls en Bureau B+B voor Broek van Cranendonck
29 januari 2019
KettingHuls en Bureau B+B winnen prijsvraag Sports & Talent Park Sittard
17 januari 2019
Sportgebouw met begaanbare daken voor Centre Court Kerkrade
6 februari 2018
Plan KettingHuls voor Atriumterrein Kerkrade goedgekeurd
28 juni 2017
Woonblok met landelijke binnentuin van KettingHuls
9 november 2016
KettingHuls wint prijsvraag Atriumterrein Kerkrade
5 juli 2016
Passende schooluitbreiding met eigen karakter door studio Nuy van Noort
25 april 2022
Kindcentrum vormt vriendelijke plek in rauw IJsselmonde
29 juli 2022
LIAG en RUM ontwerpen Integraal Kind en Ouderen Centrum Noord-Scharwoude
2 november 2022
Toon alles
Gerelateerde podcasts
Gesprek met Monica Ketting en Daniëlle Huls over hun zoektocht naar ruimtelijke kwaliteit
22 april 2021
Andere nieuwsberichten
Plan Spot belooft Lelystad bruisend centrumgebied
3 oktober, 4:30
Heutink Groep, Groosman en LOLA Landscape Architects winnen tender stadshart met nieuw horecaplein.
Hoogste punt van woontoren Blaak 333 bereikt
3 oktober, 3:11
De door Kraaijvanger Architects ontworpen woontoren in het centrum van Rotterdam verrijst op de plek waar voorheen een kantoortoren van de Rabobank stond.
‘NDSM-werf en Buiksloterham zijn júíst inspirerende voorbeelden voor de stad van morgen’
3 oktober, 2:40
Architect Alexander Straub reageert op de column van Alexander Pols, waarin de vraag centraal stond of we bij de bouw van nieuwe wijken als Buiksloterham en de NDSM-werf in Amsterdam kunnen leren van de traditionele Europese stad.
Zes nominaties voor Haagse architectuurprijs Berlagevlag 2025
3 oktober, 1:34
De nominaties voor de Haagse architectuurprijs, de Berlagevlag, zijn bekend. Uit 31 inzendingen koos de vakjury zes projecten.
Kamer wil dat Keijzer afziet van versoepelingen huurwet
3 oktober, 12:11
Sinds de huurwet - tegen de zin van Keijzer - van kracht werd, waarschuwen verhuurders dat daardoor het aanbod aan betaalbare huurwoningen afneemt.
Steden vrezen voor woningbouw door nieuwe regels netcongestie
2 oktober, 4:25
Amsterdam, Den Haag, Rotterdam en Utrecht vrezen dat de bouw van nieuwe woningen stil komt te liggen door netcongestie.
Dienst Toeslagen: plan voor wonen op vakantieparken onuitvoerbaar
2 oktober, 1:06
Het kabinetsplan om permanent wonen in vakantiehuisjes mogelijk te maken, is volgens de Dienst Toeslagen onuitvoerbaar.
Zuid-Holland wil in ‘oogstjaar’ 2026 plannen uitvoeren
1 oktober, 3:16
De provincie investeert onder meer in infrastructuur, woningbouw, natuur en versterking van kleine kernen.
Rijk schrijft aanbesteding uit voor nieuwe marinierskazerne
1 oktober, 2:27
Eind 2031 wil het Korps Mariniers vanuit zijn huidige kazerne in Doorn verhuizen naar een nieuw onderkomen op de bestaande Defensielocatie Kamp Nieuw-Milligen vlakbij Apeldoorn.
Landschapstriënnale 2026 strijkt neer in Arnhem
1 oktober, 11:57
Het thema van de komende editie van de manifestatie is ‘Op Waterbasis’.
Ga naar het nieuws-archief
Robert Muis
Redacteur
1
0
0
0
Voor een optimale gebruikservaring plaatst Architectenweb functionele cookies. Wat de verschillende cookies precies doen leggen we uit in een
overzicht
. Cookies van social media kun je optioneel
aanzetten
.
Akkoord
Instellingen
Annuleren
OK
Sluiten
Doorgaan
Inloggen
Maak een gratis persoonlijk account aan
Feedback
Feedback
Wij horen graag jouw feedback. Laat je reactie achter en eventueel jouw e-mail adres.
Reactie
Verstuur