Projecten
Producten
Bedrijven
Vacatures
Agenda
Awards
Podcasts
more_horiz
Videos
Magazine
Thema's
Favorieten
Profiel
Uitloggen
Abonneer je nu op onze nieuwsbrieven!
Abonneren
Nee, bedankt
Ja, denk met me mee rond de
materialisering van mijn project
Copyright: Sebastian van Damme
Copyright: Sebastian van Damme
Copyright: Sebastian van Damme
Copyright: Sebastian van Damme
Copyright: Sebastian van Damme
Copyright: Sebastian van Damme
Copyright: Sebastian van Damme
Copyright: Sebastian van Damme
Copyright: Sebastian van Damme
Copyright: Sebastian van Damme
Het boerenerf
Copyright: KettingHuls
De landbouwkavel
Copyright: KettingHuls
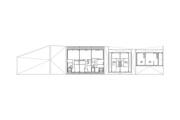
Plattegrond, begane grond
Copyright: KettingHuls
De hoogste appartementen onder het dak
Copyright: KettingHuls
KettingHuls realiseert woongebouw op boerenerf in Oosterwold
1 maart 2021, 12:23
Op het nieuwe erf van de stadsboeren van Almere, Tineke van den Berg en Tom Saat, is een poortgebouw met onder andere 21 appartementen opgeleverd. Het ‘wonen op het erf van de boer’ moet bijdragen aan herstel van de relatie tussen stad en land en tussen mens en voedsel, legt architectenbureau
KettingHuls
uit.
KettingHuls heeft het gebouw, Vliervelden genoemd, ontworpen in opdracht van Vink Bouw en de stadsboeren Van den Berg en Saat. De stadsboeren hebben in Oosterwold een kavel verworven dat onderdeel wordt van hun
Stadsboerderij
: een biodynamisch bedrijf met veeteelt, akkerbouw en groenteteelt op in en rond Almere gelegen kavels.
Stad en landbouw
Oosterwold is een omvangrijk uitbreidingsgebied tussen Almere en Zeewolde. Hier kunnen plannen worden ontwikkeld binnen een set van spelregels, zonder dat er een ruimtelijk raamwerk voor het gebied is. Oosterwold ontwikkelt zich organisch door een veelheid aan initiatieven die maximale vrijheid krijgen.
Stadslandbouw moet de groene drager van Oosterwold zijn, in zowel ruimtelijke als economische zin. Van het grondgebruik blijft 50% bestaan uit landbouw. Daarbij wordt ingespeeld op de (mondiale) tendens naar lokaal, verantwoord en duurzaam geproduceerd voedsel, legt KettingHuls uit. Het streven is om ongeveer 10% van de regionale voedselbehoefte in Oosterwold te produceren.
De stadslandbouw moet hier bijdragen aan het herstellen van de relatie tussen stad en land en tussen mens en voedsel, vertelt het architectenbureau. Daarom konden Van den Berg en Saat op hun landbouwkavel naast een aantal agrarische gebouwen ook een woonprogramma te realiseren.
Wonen bij de boer
Met betrekking tot de hindercirkels van de agrarische bedrijvigheid in relatie tot het wonen is vrijstelling gegeven. Dit heeft geresulteerd in Vliervelden, “wonen op het erf van de boer, in een poortgebouw, naast de koeienstal en de hooischuur”, aldus KettingHuls.
Het poortgebouw bestaat uit een woonblok met 21 appartementen, een entreepoort, het woonhuis van de boer en een boerderijwinkel. Het woonhuis van de boer en de winkel zijn binnen de bouwenvelop, die door KettingHuls is bepaald, verder uitgewerkt door Aannemersbedrijf J. v.d. Heijkant.
KettingHuls heeft het woongebouw en de entreepoort ontworpen. De 21 appartementen variëren van 55 m
2
tot 142 m
2
gebruiksoppervlakte. Drie van de woningen zijn als maisonnette ontworpen. De grote poort vormt de schakel tussen het appartementengebouw en de woning van de boer.
Pioniers
Het silhouet van het poortgebouw refereert aan de pioniersschuren in de Verenigde Staten, vertellen de architecten. Het woongebouw heeft een houten gevel. Een constructie van massieve azobéhouten balken en liggers ondersteunt de balkons aan de zuidzijde en de galerijen aan de straatzijde.
Het gebouw is 30 cm vanaf het maaiveld opgetild. De onderste balkons en galerij zijn eveneens in hout uitgevoerd. De gevel is bekleed met planken van ayoushout en voorzien van houten kozijnen.
Voor een uitgesproken beeld zorgt het dak van rode golfplaten, dat de architecten als het hele ware over het hele gebouw hebben gevouwen. Het maakt de verschillende onderdelen tot een geheel. In uitstraling sluit het bovendien aan op de naastgelegen hooischuur en koeienstal, die eveneens met rode golfplaten zijn bedekt.
Water en energie
“Vliervelden draagt wat de energie en waterhuishouding betreft vergaand bij aan een beter milieu”, zeggen de architecten. De gebouwen zijn aangesloten op het centrale water- en elektranet, maar niet op het riool en gas.
Het hemelwater wordt direct geloosd op de sloot die rond het terrein loopt. Al het andere afvalwater (afwas, douche, toiletten) wordt eerst naar een helofytensysteem. De helofyten zuiveren het water, waarna het wordt geloosd op de sloot.
Extra energie komt van de zon via zonnepanelen, uit de warmte van de omgevingslucht door middel van een warmtepomp en via een warmtewisselaar die aan het ventilatiesysteem van de woningen is gekoppeld. Doordat de woningen hoogwaardig zijn geïsoleerd, kan de energie die op eigen terrein wordt opgewekt in een groot deel van de benodigde energie voorzien.
Trefwoorden
woningbouw
appartementengebouw
vliervelden
vink bouw
almere
kettinghuls
stadsboerderij
oosterwold
zelfvoorzienend
Locatie
Best gelezen
1
Finalisten presenteren ontwerp voor Shift Landmark in Rotterdam
woensdag, 4 maart
2
Architect Oliver Thill op 55-jarige leeftijd overleden
donderdag, 5 maart
3
Nieuwe Hittekaart Woningmarkt 2026 van BPD toont aanhoudende woningdruk
dinsdag, 3 maart
4
Strijp-S krijgt woonbuurtje met karakteristieken voormalig Philips-terrein
maandag, 2 maart
5
Haagse gemeenteraad stemt in met bouw van 11.400 woningen in nieuw stadscentrum
maandag, 2 maart
Gerelateerde nieuwsberichten
KettingHuls pleit voor inclusieve benadering van fietsparkeren in hoogstedelijke bouwblokken
31 augustus 2021
Vakjury kiest Vliervelden van KettingHuls als winnaar Architectuurprijs Almere
21 juni 2022
Almere gaat actiever sturen bij woningbouwopgave
31 maart 2021
OD205 ontwikkelt toekomstperspectief voor agrarisch productielandschap
13 juni 2023
Bouw van energieneutrale buurt De Werf in Almere gestart
9 oktober 2024
Transformatie van een basisschool naar duurzaam IKC door buro Kettinghuls
22 april 2025
Keuterij getransformeerd tot eigentijds woonhuis
24 november 2023
VPRO-serie volgt mensen die hun ideale dorp willen bouwen in Almere Oosterwold
16 juli 2024
NOAHH presenteert opgeleverde Villa Vaartjes in Almere Oosterwold
23 april 2024
Geheel ‘off-grid’ erf voor drie generaties door Studiospacious
23 mei 2024
Wonen bij de boer in Oosterwold
12 maart 2018
KettingHuls plaatst woongebouw tussen IJ en sporen
6 februari 2020
Collectiviteit basis voor circulariteit in Ruimtelijk Raamwerk M4H
4 juli 2019
Gebouw voor creatieven biedt ruimte, inspiratie en rust
6 juni 2019
Winnende visie van KettingHuls en Bureau B+B voor Broek van Cranendonck
29 januari 2019
Sportgebouw met begaanbare daken voor Centre Court Kerkrade
6 februari 2018
Plan KettingHuls voor Atriumterrein Kerkrade goedgekeurd
28 juni 2017
Woonblok met landelijke binnentuin van KettingHuls
9 november 2016
Zelfvoorzienend 'zorglandgoed' voor Almere Oosterwold
15 maart 2021
Almeerderhout moet uitgroeien tot eigentijds stadsbos
6 mei 2021
Almere start proef met bouwen door buurtbewoners
1 juni 2021
Expressieve draagconstructie maakt huis ook écht van hout
19 november 2021
Monica Ketting neemt afscheid van KettingHuls
6 januari 2022
Bureau SLA realiseert woning met 'binnenhuis' en kas in Almere Oosterwold
4 februari 2022
Inschrijving Architectuurprijs Almere 2022 van start
24 februari 2022
Best kiest ontwerp van KettingHuls voor transformatie IKC
9 maart 2022
Cirkelbrug Almere beleeft officiële opening
7 oktober 2022
Kennisatelier over woningbouw op erf van actieve boerderij
20 april 2023
KettingHuls pleit voor inclusieve benadering van fietsparkeren in hoogstedelijke bouwblokken
31 augustus 2021
Vakjury kiest Vliervelden van KettingHuls als winnaar Architectuurprijs Almere
21 juni 2022
Almere gaat actiever sturen bij woningbouwopgave
31 maart 2021
OD205 ontwikkelt toekomstperspectief voor agrarisch productielandschap
13 juni 2023
Bouw van energieneutrale buurt De Werf in Almere gestart
9 oktober 2024
Transformatie van een basisschool naar duurzaam IKC door buro Kettinghuls
22 april 2025
Keuterij getransformeerd tot eigentijds woonhuis
24 november 2023
VPRO-serie volgt mensen die hun ideale dorp willen bouwen in Almere Oosterwold
16 juli 2024
NOAHH presenteert opgeleverde Villa Vaartjes in Almere Oosterwold
23 april 2024
Geheel ‘off-grid’ erf voor drie generaties door Studiospacious
23 mei 2024
Wonen bij de boer in Oosterwold
12 maart 2018
KettingHuls plaatst woongebouw tussen IJ en sporen
6 februari 2020
Collectiviteit basis voor circulariteit in Ruimtelijk Raamwerk M4H
4 juli 2019
Gebouw voor creatieven biedt ruimte, inspiratie en rust
6 juni 2019
Winnende visie van KettingHuls en Bureau B+B voor Broek van Cranendonck
29 januari 2019
Sportgebouw met begaanbare daken voor Centre Court Kerkrade
6 februari 2018
Plan KettingHuls voor Atriumterrein Kerkrade goedgekeurd
28 juni 2017
Woonblok met landelijke binnentuin van KettingHuls
9 november 2016
Zelfvoorzienend 'zorglandgoed' voor Almere Oosterwold
15 maart 2021
Almeerderhout moet uitgroeien tot eigentijds stadsbos
6 mei 2021
Almere start proef met bouwen door buurtbewoners
1 juni 2021
Expressieve draagconstructie maakt huis ook écht van hout
19 november 2021
Monica Ketting neemt afscheid van KettingHuls
6 januari 2022
Bureau SLA realiseert woning met 'binnenhuis' en kas in Almere Oosterwold
4 februari 2022
Inschrijving Architectuurprijs Almere 2022 van start
24 februari 2022
Best kiest ontwerp van KettingHuls voor transformatie IKC
9 maart 2022
Cirkelbrug Almere beleeft officiële opening
7 oktober 2022
Kennisatelier over woningbouw op erf van actieve boerderij
20 april 2023
Toon alles
Gerelateerde podcasts
Gesprek met Monica Ketting en Daniëlle Huls over hun zoektocht naar ruimtelijke kwaliteit
22 april 2021
Andere nieuwsberichten
André Kempe: ‘Het ging Oliver Thill om het geven van betekenis’
Gisteren, 19:15
Agelopen maandag is architect Oliver Thill overleden. Zijn compagnon André Kempe gedenkt de man met wie hij al meer dan 35 jaar bevriend was en ruim een kwarteeuw geleden Atelier Kempe Thill oprichtte.
TconcepT transformeert voormalig warenhuis in Offenbach tot bibliotheek
Gisteren, 15:54
Het 12.000 vierkante meter omvattende complex gaat in bredere zin fungeren als een cultuur- en educatiecentrum met vele functies. In 2027 moet Station Mitte, zoals het gebouw zijn volgende leven wordt genoemd, klaar zijn.
Werkstatt gaat verder zonder medeoprichter Niels Groeneveld
Gisteren, 14:49
Medeoprichter van Werkstatt Niels Groeneveld stopt als partner bij het bureau, om zich te kunnen richten op zijn gezin en onderwijs. Floor Frings en Raoul Vleugels blijven het Eindhovense bureau leiden.
Binationaal ontwerpteam buigt zich over waterhuishouding Cartagena in Colombia
Gisteren, 13:43
Een Colombiaans-Nederlands ontwerpteam met Felixx Landscape Architects & Planners en Witteveen+Bos moedigt Cartagena aan om haar relatie met water te heroverwegen en na te denken over een veerkrachtige toekomst
Kunstmuseum in Den Haag moet worden verbouwd
Gisteren, 16:32
Daarvoor dient het museum in het Statenkwartier waarschijnlijk een tijd te sluiten.
Coen van Oostrom benoemd tot nieuwe voorzitter VNO-NCW
Gisteren, 12:23
De oprichter van ontwikkelaar Edge volgt in die rol Ingrid Thijssen op, die deze week is begonnen als nieuwe bestuursvoorzitter van de TU Delft.
Rapport: lokaal klimaatbeleid schiet nog tekort
Gisteren, 10:25
De makers van de zogeheten Toekomstmeter hebben het beleid van zeventig gemeenten doorgelicht.
Hardt Hyperloop failliet verklaard door rechtbank
5 maart, 11:37
Het Rotterdamse bedrijf was bezig met de ontwikkeling van technologie om mensen op hoge snelheid via capsules door een vacuümbuis te vervoeren.
Onderzoek: zeespiegel kustgebieden hoger dan in studies aangenomen
5 maart, 9:13
De zeespiegel aan de kust is in grote delen van de wereld waarschijnlijk hoger dan in veel wetenschappelijke studies wordt aangenomen.
Gelderland geeft voorrang aan vergunningen met minder stikstof
4 maart, 12:24
De plannen zijn onderdeel van het pakket maatregelen dat het Gelderse bestuur wil nemen om de vergunningverlening voor zaken als de woningbouw weer op gang te krijgen.
Ga naar het nieuws-archief
Robert Muis
Redacteur
1
0
0
0
Voor een optimale gebruikservaring plaatst Architectenweb functionele cookies. Wat de verschillende cookies precies doen leggen we uit in een
overzicht
. Cookies van social media kun je optioneel
aanzetten
.
Akkoord
Instellingen
Annuleren
OK
Sluiten
Doorgaan
Inloggen
Maak een gratis persoonlijk account aan
Feedback
Feedback
Wij horen graag jouw feedback. Laat je reactie achter en eventueel jouw e-mail adres.
Reactie
Verstuur