Projecten
Producten
Bedrijven
Vacatures
Agenda
Awards
Podcasts
more_horiz
Videos
Magazine
Favorieten
Profiel
Uitloggen
Abonneer je nu op onze nieuwsbrieven!
Abonneren
Nee, bedankt
Ja, denk met me mee rond de
materialisering van mijn project
De groepsruimte na renovatie
Copyright: MWA Hart Nibbrig
De nieuwe houten hoofddraagstructuur geven het hart daglicht en extra hoogte
Copyright: MWA Hart Nibbrig
De speelleerpleinen liggen tussen de groepsruimtes en het hart in
Copyright: MWA Hart Nibbrig
Zicht vanuit de groepsruimte naar het hart van de school
Copyright: MWA Hart Nibbrig
De houten hoofddraagstructuur van houten kolommen en balken en een CLT vloer is in de groepsruimtes van de nieuwbouw zichtbaar
Copyright: MWA Hart Nibbrig
De groepsruimtes van de school en de dagopvang liggen samen rondom het hart
Copyright: MWA Hart Nibbrig
De schuur, geheel links, fungeert als een uitkijktoren; de schuur en balkons zijn verbonden met het schoolplein door een trap en een glijbaan
Copyright: MWA Hart Nibbrig
Het balkon op de verdieping en het stoepje op de begane grond fungeren als overdekte buitenruimte
Copyright: MWA Hart Nibbrig
De oudbouw en de nieuwbouw met op de kop, geheel rechts, de schuur
Copyright: MWA Hart Nibbrig
De nieuwbouw gaat een relatie aan met het sportveld en staat zo in het teken van ‘sport en beweging’
Copyright: MWA Hart Nibbrig
De nieuwbouw gaat een relatie aan met het sportveld en staat zo in het teken van ‘sport en beweging’
Copyright: MWA Hart Nibbrig
Balkon langs de nieuwbouw
Copyright: MWA Hart Nibbrig
Een groepsruimte in de oude situatie: de ramen in het sheddak zijn dichtgemaakt in de loop der tijd
Copyright: MWA Hart Nibbrig
Het hart van de school in de oude situatie
Copyright: MWA Hart Nibbrig
Uitgangspunt voor de (ver)-nieuwbouw is om zoveel mogelijk van de bestaande klaslokalen met sheddak te behouden
Copyright: buro Kettinghuls
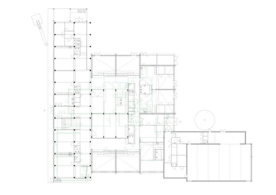
Begane grond
Copyright: buro Kettinghuls
Eerste verdieping
Copyright: buro Kettinghuls
Doorsnede
Copyright: buro Kettinghuls
Doorsnede
Copyright: buro Kettinghuls
Situatie
Copyright: buro Kettinghuls
Transformatie van een basisschool naar duurzaam IKC door buro Kettinghuls
22 april 2025, 13:55
Een schoolgebouw in Best is naar ontwerp van
buro Kettinghuls
getransformeerd naar een integraal kindcentrum. Daarbij is van de bestaande klaslokalen met sheddak zoveel mogelijk behouden en een nieuw tweelaags bouwdeel met houten hoofddraagstructuur toegevoegd. Gebouw en buitenruimte ondersteunen de duurzaamheidsambitie en onderwijsvisie van IKC De Zevensprong.
De Zevensprong is in de jaren 1970 gebouwd in het Speelheidepark in de nieuwbouwwijk Speelheide. De lokalen met sheddaken en daglicht van twee zijden vormden de kwaliteit van het schoolgebouw. In opdracht van de gemeente Best, Best Onderwijs, Korein Kinderopvang en Stichting Mevrouw Meijer is de basisschool getransformeerd naar een integraal kindcentrum voor 325 leerlingen.
In het nieuwe onderkomen heeft Korein twee groepsruimten voor dagopvang en een peuterspeelzaal; De Zevensprong heeft ruimte voor vier groepen in de onderbouw, vijf groepen in de bovenbouw en buitenschoolse opvang. Verder biedt het nieuwe IKC ruimte aan een gymzaal en kleedkamers. IKC De Zevensprong beslaat 2.700 m
2
BVO.
Houten hoofddraagstructuur
Uitgangspunt bij de transformatie was om zoveel mogelijk van de bestaande klaslokalen met sheddak te behouden. Ruim 1.500 m
2
van de school is gerenoveerd. Daarnaast heeft buro Kettinghuls zoveel mogelijk elementen willen hergebruiken en overige elementen uit de sloop – een klein deel van het project – laten oogsten. Een nieuw tweelaags bouwvolume met tien groepsruimten is toegevoegd.
Het nieuwe volume heeft een houten hoofddraagstructuur van prefab kolommen, balken en CLT-vloeren. Deze keuze zorgde voor een relatief korte bouwtijd; daarnaast is de constructie losmaakbaar en maakt ze flexibel gebruik van het gebouw in de toekomst mogelijk. Verder heeft de toepassing van voornamelijk hout en andere biobased materialen de uitstoot van CO
2
gereduceerd, meldt Kettinghuls.
Gezond eten en sporten
Aan de zijde bij de hoofdentree in het bestaande gebouw staat het kindcentrum in het teken van ‘gezond eten’. De bestaande boom, de moestuin en kippen bepalen de sfeer aan deze zijde. De utilitaire voorzieningen in het bestaande gebouw zijn verplaatst naar de rand, waarmee de architecten centraal een open ontmoetingsruimte annex bibliotheek en speelleerpleinen hebben kunnen realiseren. Dankzij een nieuwe houten constructie kenmerken extra hoogte en daglicht deze centrale ruimte.
Aan de zijde van het sportveld is een nieuwe voorzijde gerealiseerd, met een duidelijke tweede entree voor de midden- en bovenbouw. De nieuwbouw gaat hier een relatie aan met het sportveld en staat zo in het teken van ‘sport en beweging’, vertellen de architecten. Balkons, trappen, een tribune en een glijbaan bepalen het beeld.
Overdekte buitenruimte en balkon
De nieuwe groepsruimten hebben een balkon op de eerste verdieping en een overdekte buitenruimte op de begane grond. Het balkon met luifel voor de bovenbouw fungeert als tribune voor het sportveld en plek voor buitenonderwijs, en is voorzien van een balkontuin. De zonwering vormt een beeldbepalend element van de gevel.
Op de kop van de nieuwbouw ligt ‘de schuur’, met een overdekte buitenruimte en op de verdieping een buitenlokaal dat direct grenst aan het handvaardigheidslokaal. De schuur fungeert als een poort, een kraaiennest en een uitkijktoren, vertellen de architecten. De verdieping, dicht bij de boomkruinen, is een fantastische en spannende plek voor de leerlingen.
In de gymzaal zijn de ramen weer open gemaakt, zodat de ruimte daglicht ontvangt en er uitzicht is. Het plafond uit houten latten is teruggebracht, aangevuld met restpartijen elders uit de school. De gymzaal, ingericht door Janssen Fritsen en Athletic Skill Model, is multifuctioneel inzetbaar voor de school en de buurt.
Natuurlijk terrein
De buitenruimte van de school is ontworpen door
BOOM landscape
. Met een hoekige vormentaal vouwt de ruimte zich om het gebouw heen. Aan de route rondom de school liggen speelzones met natuurlijke speel- en klimobjecten en beplantingsvakken uit gestapelde, deels hergebruikte stenen. Het terrein kent zo min mogelijk verharding.
Bij de schuur komen de hemelwaterafvoeren bij elkaar en monden uit in een grote houten regenton. Dit maakt de weg van het water op speelse wijze inzichtelijk en het verzamelde water is te gebruiken voor plantenbakken en moestuin. Tegelijkertijd draagt deze toepassing bij aan de bewustwording van de leerlingen, passend bij de groene ambitie en de onderwijsvisie van IKC De Zevensprong.
De terreininrichting, de moestuin en de klimplanten geven de school een groene uitstraling, zorgen voor koeling en dragen bij aan klimaatadaptatie en biodiversiteit. Een houten hekwerk vormt een zachte barrière tussen de openbare ruimte en de buitenruimte van het integraal kindcentrum, aldus buro Kettinghuls.
Trefwoorden
basisschool
kinderopvang
buro kettinghuls
transformatie
best
stichting mevrouw meijer
integraal kindcentrum
renovatie
kettinghuls
boom landscape
houtbouw
Locatie
Best gelezen
1
Parkeerplein naast Tilburgse schouwburg maakt plaats voor multifunctionele gebouwen
woensdag, 13 mei
2
44 woningen op bosrijke locatie in Driebergen
vrijdag, 15 mei
3
Neprom-prijs 2026 toegekend aan De Groene Loper Maastricht
maandag, 11 mei
4
Woningbouwproject Switi trekt 'verloren strook' alsnog bij de omgeving
maandag, 11 mei
5
Vandersalm Architecten herinterpreteert historisch erf bij Zwolse stadsboerderij
maandag, 11 mei
Gerelateerde nieuwsberichten
Luïsa Jacobse benoemd tot partner bij buro Kettinghuls
20 februari 2025
Symposium rond het ontwerp van scholen – standaardisatie versus maatwerk
6 mei
Bouw van energieneutrale buurt De Werf in Almere gestart
9 oktober 2024
Mecanoo en KettingHuls presenteren ontwerp Amstel Design District
19 april 2023
Onderzoek naar scholenbouw in gemeente Groningen resulteert in 35 aanbevelingen
30 juni 2025
Vakjury kiest Vliervelden van KettingHuls als winnaar Architectuurprijs Almere
21 juni 2022
Best kiest ontwerp van KettingHuls voor transformatie IKC
9 maart 2022
Monica Ketting neemt afscheid van KettingHuls
6 januari 2022
KettingHuls pleit voor inclusieve benadering van fietsparkeren in hoogstedelijke bouwblokken
31 augustus 2021
Kinderopvang Mowgli in Vught is als een reeks avontuurlijke boomhutten
4 juni 2025
KettingHuls realiseert woongebouw op boerenerf in Oosterwold
1 maart 2021
KettingHuls plaatst woongebouw tussen IJ en sporen
6 februari 2020
Collectiviteit basis voor circulariteit in Ruimtelijk Raamwerk M4H
4 juli 2019
Gebouw voor creatieven biedt ruimte, inspiratie en rust
6 juni 2019
KettingHuls en Bureau B+B winnen prijsvraag Sports & Talent Park Sittard
17 januari 2019
Wonen bij de boer in Oosterwold
12 maart 2018
Sportgebouw met begaanbare daken voor Centre Court Kerkrade
6 februari 2018
Plan KettingHuls voor Atriumterrein Kerkrade goedgekeurd
28 juni 2017
Woonblok met landelijke binnentuin van KettingHuls
9 november 2016
KettingHuls wint prijsvraag Atriumterrein Kerkrade
5 juli 2016
Drie winnaars prijsvraag Ambyerveld Maastricht
20 maart 2015
Bestaande sloot wordt binnentuin woonblok
10 februari 2015
Luïsa Jacobse benoemd tot partner bij buro Kettinghuls
20 februari 2025
Symposium rond het ontwerp van scholen – standaardisatie versus maatwerk
6 mei
Bouw van energieneutrale buurt De Werf in Almere gestart
9 oktober 2024
Mecanoo en KettingHuls presenteren ontwerp Amstel Design District
19 april 2023
Onderzoek naar scholenbouw in gemeente Groningen resulteert in 35 aanbevelingen
30 juni 2025
Vakjury kiest Vliervelden van KettingHuls als winnaar Architectuurprijs Almere
21 juni 2022
Best kiest ontwerp van KettingHuls voor transformatie IKC
9 maart 2022
Monica Ketting neemt afscheid van KettingHuls
6 januari 2022
KettingHuls pleit voor inclusieve benadering van fietsparkeren in hoogstedelijke bouwblokken
31 augustus 2021
Kinderopvang Mowgli in Vught is als een reeks avontuurlijke boomhutten
4 juni 2025
KettingHuls realiseert woongebouw op boerenerf in Oosterwold
1 maart 2021
KettingHuls plaatst woongebouw tussen IJ en sporen
6 februari 2020
Collectiviteit basis voor circulariteit in Ruimtelijk Raamwerk M4H
4 juli 2019
Gebouw voor creatieven biedt ruimte, inspiratie en rust
6 juni 2019
KettingHuls en Bureau B+B winnen prijsvraag Sports & Talent Park Sittard
17 januari 2019
Wonen bij de boer in Oosterwold
12 maart 2018
Sportgebouw met begaanbare daken voor Centre Court Kerkrade
6 februari 2018
Plan KettingHuls voor Atriumterrein Kerkrade goedgekeurd
28 juni 2017
Woonblok met landelijke binnentuin van KettingHuls
9 november 2016
KettingHuls wint prijsvraag Atriumterrein Kerkrade
5 juli 2016
Drie winnaars prijsvraag Ambyerveld Maastricht
20 maart 2015
Bestaande sloot wordt binnentuin woonblok
10 februari 2015
Toon alles
Gerelateerde evenementen
3 juni 2026
Scholenbouw – standaardisatie versus maatwerk
Xplore Agora
Architectenweb
Gerelateerde podcasts
Gesprek met Monica Ketting en Daniëlle Huls over hun zoektocht naar ruimtelijke kwaliteit
22 april 2021
Andere nieuwsberichten
Tien nominaties voor NRP Gulden Feniks 2026
4 uur geleden
In november wijst de jury een aantal winnaars aan uit deze selectie voor de nationale prijs voor renovatie en transformatie van de gebouwde omgeving.
Nieuwe Instituut brengt rijkscollectie architectuur en stedenbouw tot leven in Collection Gallery
Vandaag, 13:17
Op donderdag 18 juni opent het Nieuwe Instituut de zogeheten Collection Gallery. In deze nieuwe interactieve ruimte wil de instelling in Rotterdam de Rijkscollectie voor Nederlandse Architectuur en Stedenbouw tot leven brengen.
44 woningen op bosrijke locatie in Driebergen
Vandaag, 09:26
De gemeente Utrechtse Heuvelrug selecteerde het plan Bosrand Heidestein. Het team dat het ontwerp en de realisatie verzorgt, bestaat uit KRKTR Projectontwikkeling, Reuvers Ontwik-keling en Bouw, MIX architectuur, MAAK space, Merosch en Kwirkey.
Vijf finalisten voor Heuvelinkprijs 2026
13 mei, 3:06
De finalisten voor de Heuvelinkprijs 2026 zijn bekend. Vijf projecten komen in aanmerking voor deze editie van de tweejaarlijkse Arnhemse nieuwbouwprijs.
ITA Ensemble speelt 'De Architect' van sterregisseur Rebecca Frecknall
3 uur geleden
De voorstelling is een hedendaagse bewerking van Henirik Ibsens 'Bouwmeester Solness'.
Commissie: milieustudie Schiphol schiet tekort voor omwonenden
Vandaag, 12:08
De Commissie voor de milieueffectrapportage stelt zelfs dat het rapport herzien zou moeten worden.
Koen Pörtzgen benoemd tot partner bij Zecc Architecten
Vandaag, 10:15
Samen met Marnix van der Meer (54) en Bart Kellerhuis (47) vormt de 39-jarige Pörtzgen vanaf dit jaar de directie van het Utrechtse bureau.
Consortium met RxDomi en TU/e ontwikkelt netbewuste woning
13 mei, 2:56
In het project CoLiBRIE ontwikkelt een consortium, met onder meer RxDomi en TU/e, een nieuw type woning die comfortabel, duurzaam en betaalbaar is, zonder het energienet extra te belasten.
Minimaal half miljard extra nodig voor verbreding A27
13 mei, 1:38
Op het traject van 47 kilometer moeten extra rijbanen komen om de dagelijkse files te verlichten. Ook worden bruggen vervangen.
RVO constateert laagste groei windenergie op land in jaren
13 mei, 10:02
De uitbreiding van windenergie op land in Nederland is op een historisch laag niveau.
Ga naar het nieuws-archief
Robert Muis
Redacteur
0
0
0
0
Voor een optimale gebruikservaring plaatst Architectenweb functionele cookies. Wat de verschillende cookies precies doen leggen we uit in een
overzicht
. Cookies van social media kun je optioneel
aanzetten
.
Akkoord
Instellingen
Annuleren
OK
Sluiten
Doorgaan
Inloggen
Maak een gratis persoonlijk account aan
Feedback
Feedback
Wij horen graag jouw feedback. Laat je reactie achter en eventueel jouw e-mail adres.
Reactie
Verstuur