Projecten
Producten
Bedrijven
Vacatures
Agenda
Awards
Podcasts
more_horiz
Videos
Magazine
Thema's
Favorieten
Profiel
Uitloggen
Visualisatie: A2STUDIO
Visualisatie: A2STUDIO
Visualisatie: A2STUDIO
Visualisatie: A2STUDIO
Visualisatie: A2STUDIO
Copyright: KettingHuls / Edwin Oostmeijer Projectontwikkeling / Era Contour
Visualisatie: A2STUDIO
Copyright: KettingHuls / Edwin Oostmeijer Projectontwikkeling / Era Contour
Copyright: KettingHuls / Edwin Oostmeijer Projectontwikkeling / Era Contour
Copyright: KettingHuls / Edwin Oostmeijer Projectontwikkeling / Era Contour
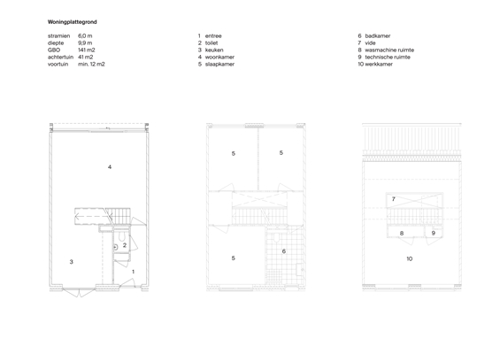
Bestaande sloot wordt binnentuin woonblok
10 februari 2015, 14:38
In de Utrechtse Vinex-wijk Leidsche Rijn wordt dit jaar gestart met de bouw van woonblok Bolderburen. Een bestaande sloot omringd door bomen gaat deel uitmaken van het gesloten blok met 38 woningen. Eigenlijk was het de bedoeling dat dit onderdeel van het landschap onder een laag zand zou verdwijnen.
Op die manier zou net als bij veel andere woonblokken in Leidsche Rijn een opgespoten ‘tableau rasa’ met een verhard binnengebied in Vinex-stijl ontstaan. Toen de architecten van
KettingHuls
samen met de ontwikkelaars
Edwin Oostmeijer
en
Era Contour
de locatie gingen bekijken, leek het hen beter de sloot en bomen te behouden en de grond alleen te verhogen waar de woningen komen.
Het grootste deel van het binnengebied behoudt het huidige peil en wordt een gemeenschappelijke tuin, waaraan de privétuinen van de woningen grenzen. Een muur met plantenbakken en trappen naar de hoger gelegen tuinen van de woningen en de parkeerplaats omsluit de ‘sloottuin’.
De buitengevel van het blok is van baksteen en krijgt een stedelijk karakter. De gezichtsbepalende gevel langs de Kees van Dongensingel heeft een horizontale zaagtandbelijning en volgt op die wijze de ronding van de weg. De woningen krijgen een houten achtergevel met een lessenaardak, dat op eenvoudige wijze regenwater opvangt en afvoert naar de sloot.
Centraal in elke woning komt een dwarstrap met vide en daklicht erboven. Samen met de beukmaat van zes meter zorgt dit ervoor dat de woningen licht en ruimtelijk zullen zijn. De oplevering van Bolderburen staat gepland voor najaar 2016.
Trefwoorden
leidsche rijn
utrecht
edwin oostmeijer
kettinghuls
woningbouw
era contour
Locatie
Best gelezen
1
Duitsland slokt Nederlandse bouwkracht op
maandag, 13 oktober
2
David Chipperfield landt in Antwerps Nieuw Zuid
woensdag, 15 oktober
3
Nieuw shortstayhotel door Houben / Van Mierlo in stationsgebied Den Bosch
maandag, 13 oktober
4
Kantoorgebouw door Arthur Staal aan de Schinkel gerenoveerd en uitgebreid
woensdag, 15 oktober
5
Gezicht van de tijd
woensdag, 15 oktober
Gerelateerde nieuwsberichten
KettingHuls pleit voor inclusieve benadering van fietsparkeren in hoogstedelijke bouwblokken
31 augustus 2021
Transformatie van een basisschool naar duurzaam IKC door buro Kettinghuls
22 april
Het Nieuwe Instituut krijgt tijdelijke tuin
21 april 2015
Grote steden groeien dankzij Vinex-wijken
14 juni 2013
Bouw Leidsche Rijn Centrum gaat van start
6 mei 2014
Perronkappen station Utrecht op de snelweg
11 december 2014
Woonblok met landelijke binnentuin van KettingHuls
9 november 2016
Gemeenschappelijke binnentuin als kern van nieuw woonblok
10 september 2020
KettingHuls pleit voor inclusieve benadering van fietsparkeren in hoogstedelijke bouwblokken
31 augustus 2021
Transformatie van een basisschool naar duurzaam IKC door buro Kettinghuls
22 april
Het Nieuwe Instituut krijgt tijdelijke tuin
21 april 2015
Grote steden groeien dankzij Vinex-wijken
14 juni 2013
Bouw Leidsche Rijn Centrum gaat van start
6 mei 2014
Perronkappen station Utrecht op de snelweg
11 december 2014
Woonblok met landelijke binnentuin van KettingHuls
9 november 2016
Gemeenschappelijke binnentuin als kern van nieuw woonblok
10 september 2020
Toon alles
Gerelateerde podcasts
Gesprek met Monica Ketting en Daniëlle Huls over hun zoektocht naar ruimtelijke kwaliteit
22 april 2021
Andere nieuwsberichten
CPO meer&deel grote winnaar Dirk Roosenburgprijs 2025
Vandaag, 15:37
Het project naar ontwerp van Tom van Tuijn Stedenbouw, Werkstatt en Volle Grond kreeg zowel de vakjury- als publieksprijs.
Gedetailleerde 3D-geprinte maquette toont ruimtelijke ontwikkeling Amsterdam
Vandaag, 14:56
In het WTC op de Amsterdamse Zuidas is een gedetailleerde maquette van de stad Amsterdam geplaatst. In de 3D-geprinte en interactieve maquette zijn bekende plekken en gebouwen te zien, maar ook gebieden die tussen nu en 2030 worden ontwikkeld.
Woongebouwen door VdpArchitecten vormen nieuwe 'voorkant' Groningse Oosterparkwijk
Vandaag, 13:48
Aan de Oosterhamrikkade in Groningen is dit jaar woongebouw Talent opgeleverd. Het complex, dat net als het naastgelegen gebouw Karaat is ontworpen door VdpArchitecten, bestaat uit 108 middeldure huurwoningen.
Het Cultuurfonds kent subsidie toe aan biobased paviljoen voor Amsterdamse Bos ontworpen door Space Encounters
Vandaag, 11:07
Het Cultuurfonds stelt € 100.000 beschikbaar voor het Amsterdamse Bosnest. Het paviljoen is ontworpen door Space Encounters en wordt volledig gebouwd met biobased materialen uit het Amsterdamse Bos.
Sweco neemt groot Belgisch architectenbureau over
Vandaag, 16:23
Het 150 medewerkers tellende assar architects ontwierp onder meer het nieuwe hoofdkantoor van de NAVO in Brussel.
IMF: geen forse huizenprijsdaling bij einde hypotheekrenteaftrek
Vandaag, 12:14
Een mogelijke afschaffing van de hypotheekrenteaftrek in Nederland heeft waarschijnlijk een prijsremmende werking, stelt de Nederlandse bestuurder van het IMF Marnix van Rij
EIB: 75.000 nieuwe voltijdse arbeidskrachten nodig in de bouw
Vandaag, 10:11
Volgens het instituut wordt het tekort aan vakmensen in de bouw steeds groter, vooral omdat de energietransitie een enorme extra vraag naar arbeid creëert.
Groningen worstelt met afronding dertig kilometer lang fietspad naar Assen
Gisteren, 15:25
Een ruime meerderheid van de Groningse Statenleden wil dat er bij het project meer aandacht komt voor de veiligheid van vrouwen.
PBL: minimaal 150.000 hectare meer natuur nodig in 2050
Gisteren, 11:37
Het planbureau heeft twee mogelijke oplossingsrichtingen doorgerekend om de huidige Europese doelen voor klimaat, natuur en waterkwaliteit te halen.
Afaina de Jong wint Amsterdamprijs voor de Kunst 2025
15 oktober, 3:19
De architect en oprichter van Afarai won de belangrijkste kunstprijs van de hoofdstad in de categorie Bewezen Kwaliteit.
Ga naar het nieuws-archief
0
0
0
0
Voor een optimale gebruikservaring plaatst Architectenweb functionele cookies. Wat de verschillende cookies precies doen leggen we uit in een
overzicht
. Cookies van social media kun je optioneel
aanzetten
.
Akkoord
Instellingen
Annuleren
OK
Sluiten
Doorgaan
Inloggen
Maak een gratis persoonlijk account aan
Feedback
Feedback
Wij horen graag jouw feedback. Laat je reactie achter en eventueel jouw e-mail adres.
Reactie
Verstuur