Projecten
Producten
Bedrijven
Vacatures
Agenda
Awards
Podcasts
more_horiz
Videos
Magazine
Thema's
Favorieten
Profiel
Uitloggen
Nieuw
Populair
Toon alles
Architectenweb magazine #14
Architectenweb magazine #13
Publieke gebouwen
Architectenweb magazine #12
Kantoren
Architectenweb magazine #11
Scholen
Architectenweb magazine #10
Zorg
Architectenweb magazine #14
Architectenweb magazine #10
Zorg
Architectenweb magazine #12
Kantoren
Architectenweb magazine #13
Publieke gebouwen
Architectenweb magazine #6
Transformatie en Renovatie
Om direct naar je favorieten te kunnen gaan is het nodig om eerst in te loggen.
Nieuw
Architectenweb Awards 2025
Architectenweb Awards 2024
Architectenweb Awards 2023
Architectenweb Awards 2022
Architectenweb Awards 2021
Architectenweb Awards 2020
Architectenweb Awards 2019
Architectenweb Awards 2018
Om direct naar je favorieten te kunnen gaan is het nodig om eerst in te loggen.
Nieuw
Populair
Favorieten
Toon alles
Vakwerk Architecten
Nominatie voor de prijs voor Architect van het Jaar 2025
Sanne van Manen
Nominatie voor de prijs voor Architect van het Jaar 2025
KSA
Nominatie voor de prijs voor Architect van het Jaar 2025
KRFT
Nominatie voor de prijs voor Architect van het Jaar 2025
Joost Ector
Nominatie voor de prijs voor Architect van het Jaar 2025
Prijsuitreiking Architectenweb Awards 2024
Impressie van een feestelijke avond
Martens, Willems & Humblé Architecten
Nominatie voor de prijs voor Architect van het Jaar 2024
Uitreiking van Architectenweb Awards 2020
Impressie van de prijsuitreiking via Zoom
De Zwarte Hond
Nominatie voor de prijs voor Architect van het Jaar 2024
Avond met De Zwarte Hond
Symposium
Om direct naar je favorieten te kunnen gaan is het nodig om eerst in te loggen.
Nieuw
Populair
Categorieën
Favorieten
Toon alles
Brandpreventie Academy BV
Cay Circulaire Keukens
Circulaire keukens en pantry's
Studio Kirsten Reith
Interieurontwerp
Studio175
Interieuradvies in regio Utrecht
Orange Automatic Doors
Indoorwrap
De specialist in Keukenwrappen
Cay Circulaire Keukens
Circulaire keukens en pantry's
Studio Kirsten Reith
Interieurontwerp
Studio175
Interieuradvies in regio Utrecht
Interior & Co
Indoorwrap
De specialist in Keukenwrappen
Orange Automatic Doors
Architecten
Architectuur
Mobiliteit en infrastructuur
Stedenbouw en landschapsarchitectuur
Leveranciers
Gevels
Daken
Ramen en deuren
Trappen, liften en balustrades
Binnenwanden
Vloeren
Plafonds
Verlichting
Sanitair
Projectinrichting
Installaties
Constructies
Buitenruimte
Software
Adviseurs
Bestekschrijvers
Bouwmanagement
Installatie adviseurs E
Bouwfysica
Calculators
Installatie adviseurs G/W
Bouwkundig tekenwerk
Constructeurs
Lichtadviseurs
Adviseur beveiliging
Juristen
Intermediairs, Payrolling
Aannemers
Overig
Presentatie
Instellingen / onderwijs
Overig
Om direct naar je favorieten te kunnen gaan is het nodig om eerst in te loggen.
Nieuw
Populair
Favorieten
Toon alles
Gesprek met Stephan Sliepenbeek over hoogbouw in Amstel III
Gesprek met Ellen van Bueren over gebiedsontwikkeling en hoogbouw
Gesprek met Ma Yansong over ontwerpen die emotie oproepen
Gesprek met Paul de Ruiter over innovatieve en duurzame hoogbouw
Gesprek met Pi de Bruijn over zijn ontwerpen voor de Tweede Kamer toen en nu
Gesprek met Ellen van Bueren over gebiedsontwikkeling en hoogbouw
Gesprek met Oresti Sarafopoulos over het ontwerpen van een kantoorgebouw met bijna geen installaties
Gesprek met Stijn Steenbakkers over verdichting en hoogbouw in Eindhoven
Gesprek met Pi de Bruijn over zijn ontwerpen voor de Tweede Kamer toen en nu
Gesprek met Paul de Ruiter over innovatieve en duurzame hoogbouw
Om direct naar je favorieten te kunnen gaan is het nodig om eerst in te loggen.
Nieuw
Populair
Categorieën
Favorieten
Toon alles
De energiemarkt revolutionair vernieuwen
Festivalterrein als inspiratie van dit kantoor
De antieke Agora als inspiratie voor een kantoor
Renovatieproject Ockenburghstraat
Aluminium kozijnen: de isolerende oplossing
Prinsenpark, Rotterdam
ASML Gebouw 3
IVY, Amsterdam
IKC De Brug
Houthavens, Amsterdam
Architectuur
Woningbouw
Zorg
Hotels
Restaurants en café’s
Winkels
Sportgebouwen
Culturele gebouwen
Overheidsgebouwen
Scholen
Kantoren
Bedrijfsgebouwen
Paviljoens en kunst
Overig
Mobiliteit en infrastructuur
Trein- en metrostations
Luchthavens
Busstations
Parkeergarages
Fietsparkeren
Wegen
Bruggen
Water
Energie
Tankstations en laadstations
Waterzuivering en afvalverwerking
Overig
Stedenbouw en landschapsarchitectuur
Regionale visies
Gebiedsvisies
Plannen stedelijk weefsel
Amusementsparken en dierentuinen
Lichtontwerpen
Openbare ruimte
Pleinen
Parken
Tuinen
Speelplaatsen
Uitkijktorens
Overige (bijv. begraafplaatsen)
Om direct naar je favorieten te kunnen gaan is het nodig om eerst in te loggen.
Nieuw
Populair
Categorieën
Favorieten
Toon alles
Control Track Versa
Langdurige flexibiliteit voor kantoren van de toekomst
Toegankelijkheid in de stad: klanktegels als gids
Een nieuwe dimensie in stadsontwerp: integreren van klank voor een inclusieve ervaring.
Dreentegel
Terug van weggeweest
Flux-totaalaanbod vraaggestuurde Renson WTW-ventilatie
Compacte wand- en plafondmontage voor alle debieten
Wie denkt er aan slopen tijdens bouwen?
Kies voor de toekomst, kies voor circulair isoleren!
Digital Prints
Meer mogelijkheden in gekleurd staal
Element+ H-I
Hout - Aluminium Elementgevel
Vierkante vluchtroutearmaturen voor grote ruimtes
Zichtbare veiligheid van alle kanten
GROHE Cubeo: kranen voor elke badkamer
Stijlvol en duurzaam design voor jarenlang plezier
Schüco Zonweringsysteem Integralmaster in FWS
Bescherming tegen zon, verblinding en privacy – verborgen en volledig geïntegreerd
Gevels
Gevelbekleding
Vliesgevels
Zonwering buiten
Isolatie
Gevelconstructies
Signing
Overig
Daken
Dakafwerkingen
Dakisolatie
Dakconstructies
Dakranden, dakgoten en HWA's
Dakramen
Lichtkoepels
Lichtstraten
Schoorstenen
Overig
Dakluiken
Ramen en deuren
Raam- en deursystemen / kozijnen
Vliesgevels
Hang- en sluitwerk
Beveiliging en luiken
Dorpels en vensterbanken
Lateien
Roosters
Glas
Dakramen
Dakkoepels
Lichtstraten
Zonwering buiten
Zonwering binnen
Buitendeuren
Binnendeuren
Postvakken en brievenbussen
Overig
Dakluiken
Trappen, liften en balustrades
Trappen
Roltrappen
Liften
Balustrades en hekwerken
Galerijen
Binnenwanden
Binnenwanden
Wandafwerking
Vloeren
Constructieve vloeren
Verhoogde vloeren
Vloerafwerkingen
Overig
Plafonds
Tegels
Lineair
Grill
Open en roosters
Naadloos
Eilanden en baffles
Plafondafwerkingen
Ophangsystemen
Overig
Klimaatplafonds
Verlichting
Binnenverlichting
Buitenverlichting
Sanitair
Kranen en douchesets
Wastafels
Douchewanden en douchebakken
Baden
Waterclosets
Accessoires
Overig
Projectinrichting
Stoelen
Banken
Tafels
Kasten
Balies
Vrijstaande wanden
Keukens
Accessoires
Overig
Cabines
Interieurbeplanting
Stoffering
Installaties
Verwarming, koeling en ventilatie
Elektrotechnische installaties
Schakelmateriaal
Domotica
Deurcommunicatie
Beveiliging
Liften
Onderhoudsinstallaties
Overig
Brandbeveiliging
Constructies
Draagconstructies
Funderingen en kelders
Overig
Brandbeveiliging
Buitenruimte
Bestratingen en verhardingen
Afwateringen
Terreinafscheidingen en geluidsschermen
Buitenmeubilair
Fietsparkeren
Terrassen
Terrasoverkappingen
Bruggen
Accessoires
Overig
Beplanting
Sport- en speeltoestellen
Software
Tekenen 2D
Modelleren 3D / BIM
Visualisatie / rendering
Parametrisch ontwerpen
Bouwfysica
Draagconstructie
Overig
Virtual Reality
Cloudoplossingen
Om direct naar je favorieten te kunnen gaan is het nodig om eerst in te loggen.
Nieuw
Populair
Favorieten
Toon alles
Zomerwandelingen Nieuwe Stad op Zondag 2025
Amsterdam
Prefab beurs - 7 t/m 9 oktober 2025
Brabanthallen 's-Hertogenbosch
Boekpresentatie en panelgesprek met Floor Milikows
Prins Hendrikkade 600, 1011 VX Amsterdam
Architects Table ’25: Lunch & Inspiratie in HAUT Amsterdam
ATAG LIVE – HAUT gebouw, Spaklerweg 10F, 1096 BA Amsterdam (tegenover metrostation Spaklerweg)
Inspiratiedag @ Sempergreen – Gevelgroen
Defensieweg 1, 3984 LR Odijk
Architects Table ’25: Lunch & Inspiratie in HAUT Amsterdam
ATAG LIVE – HAUT gebouw, Spaklerweg 10F, 1096 BA Amsterdam (tegenover metrostation Spaklerweg)
Ontdek het seminarieprogramma van Architect@Work Amsterdam
De Kromhouthal, Gedempt Hamerkanaal 231, Amsterdam
LIAG over duurzaamheid centraal in project
Online
1.Lectures HouseEurope! Renovate, don’t speculate
Pakhuis de Zwijger
Zomerwandelingen Nieuwe Stad op Zondag 2025
Amsterdam
Om direct naar je favorieten te kunnen gaan is het nodig om eerst in te loggen.
Nieuw
Toon alles
Design
Duurzaamheid
Gevel
Infrastructuur
Interieur
Kantoren
Leisure
Openbare ruimte
Publieke gebouwen
Scholen
Transformatie en Renovatie
Woningbouw
Zorg
Om direct naar je favorieten te kunnen gaan is het nodig om eerst in te loggen.
Nieuw
Populair
Toon alles
Junior Architect (NL/EN)
De Academie van Bouwkunst Amsterdam zoekt twee onderzoekers voor lectoraat
Site Practice zoekt medior architect met 3-6 jaar ervaring (Amsterdam)
DAT zoekt een BIM Modelleur (Revit)
stagiair bouwkunde Heerenveen
Meewerkend Voorman
Architect
Junior Architect gezocht!
Junior Ontwerper
Studio Nauta zoekt projectleider
wUrck zoekt junior Architect
Project Architect
Om direct naar je favorieten te kunnen gaan is het nodig om eerst in te loggen.
Copyright: Stijn Poelstra
Copyright: Stijn Poelstra
Copyright: Stijn Poelstra
Copyright: Stijn Poelstra
Copyright: Stijn Poelstra
Copyright: Stijn Poelstra
Copyright: Stijn Poelstra
Copyright: Stijn Poelstra
Copyright: Stijn Poelstra
Copyright: Stijn Poelstra
Copyright: Stijn Poelstra
Copyright: Stijn Poelstra
Copyright: Stijn Poelstra
Copyright: Stijn Poelstra
Copyright: Stijn Poelstra
Gevel noord-oost
Copyright: Nieuwe Architecten
Gevel noord-west
Copyright: Nieuwe Architecten
Gevel zuid-oost
Copyright: Nieuwe Architecten
Gevel zuid-west
Copyright: Nieuwe Architecten
Doorsnede AA
Copyright: Nieuwe Architecten
Doorsnede BB
Copyright: Nieuwe Architecten
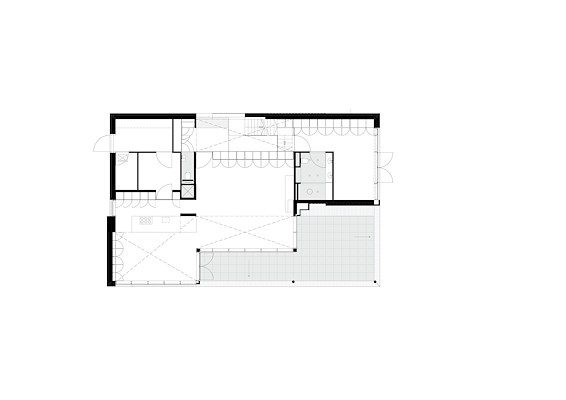
Begane grond
Copyright: Nieuwe Architecten
Eerste verdieping
Copyright: Nieuwe Architecten
Dak
Copyright: Nieuwe Architecten
Concept
Copyright: Nieuwe Architecten
Expressieve villa aan het water van Nieuwe Architecten
9 januari 2024, 14:29
Vlakbij het Hollands Diep, op een oorspronkelijk strategische locatie met een historisch fort in de nabijheid, ligt een opvallende villa.
Nieuwe Architecten
ontwierp het woonhuis vanuit het concept aarde, wind en water, de elementen die deze plek sterk bepalen.
De villa is recent gerealiseerd op een hoeklocatie aan het water, die onderdeel is van een uitbreiding van het nabijgelegen Numansdorp. Binnen het verder orthogonale stedenbouwkundige plan heeft Nieuwe Architecten het bouwvlak 45 graden gedraaid, waarmee het bureau de hoekkavel ten volle wist te benutten.
Door deze ingreep zijn de voor- en de achtertuin meer met elkaar verbonden en is er vrij uitzicht naar het water van alle leefruimten gecreëerd. Tegelijkertijd is er meer ruimte en privacy ontstaan ten opzichte van de buren. De verdraaiing resulteert verder, in combinatie met slimme passieve ontwerpmaatregelen, in een optimaal gebruik van de zonnewarmte in de winter.
Aarde, water en wind
Met dank aan de vooruitstrevendheid van de opdrachtgevers heeft het architectenbureau een markante woning kunnen ontwerpen, met de elementen aarde, wind en water als conceptueel uitgangspunt, zo vertelt Nieuwe Architecten. Aarde heeft zich vertaald in een stevig basement met gebakken klinkers. De klei voor de stenen komt uit de omgeving
Dit basement, een verwijzing naar het nabijgelegen fort, biedt beschutting en privacy ten opzichte van het openbare terrein en de openheid van de tuin. Een transparante tussenlaag van glazen gevels geeft de bewoners royale vergezichten over het water. Het metselwerk zet zich voort in de twee schoorstenen, die boven het grijsglanzende dak verrijzen.
Gevouwen dakvlak
Het vrij gevormde dak is gerealiseerd in aluminium composiet. De overstekken, hellende daken en in- en oplopende dakranden bieden bescherming tegen de warmte en instraling van de hoog staande zomerzon, maar laten het licht van de lagere winterzon diep in de woning doordingen. De verlopende dakranden versterken de expressiviteit van het dakvlak. Waar nodig herbergen ze de zonwering.
Onder het overstek ligt beschut een royaal terras met buitenhaard, direct grenzend aan de open, dubbelhoge leefruimte met woonkamer en keuken. Aan de ander zijde liggen op de begane grond de slaapkamer en badkamer, met eigen zicht door de tuin richting het water. Op de verdieping geeft een open entresol sfeer en extra ruimte aan de woning. Aangrenzend bevinden zich twee slaapkamers met badkamer en opslagruimte.
“In nauwe afstemming met de aannemer hebben we de detailengineering gedaan”, vertelt Nieuwe Architecten. “Zo konden we het houten dakpakket met aluminium dakafwerking, stalen hoofdconstructie en alle installatie-elementen onderbrengen in één doorgaande vorm, met een detailloze afwerking in strakke lijnen die de geometrie van het dak ondersteund.”
Nieuwe Architecten - Villa FA on Vimeo
Trefwoorden
woning
nieuwe architecten
numansdorp
villa
woningbouw
dak
Best gelezen
1
Rijk schrijft aanbesteding uit voor nieuwe marinierskazerne
woensdag, 1 oktober
2
Rapport: rijke Amsterdammers leven steeds vaker apart van rest
dinsdag, 30 september
3
Kabinet wil wijken erbij op 127 plekken in Nederland
maandag, 29 september
4
Architectenweb symposium: klein maar fijn wonen?
donderdag, 2 oktober
5
Leiden wil verhoogd busstation naast treinperrons centraal station
dinsdag, 30 september
Gerelateerde nieuwsberichten
Een efficiënte en modulaire woonmachine in de duinen
2 januari 2024
Nieuwe Architecten ‘verdubbelt’ bestaande school op beperkte locatie
29 augustus 2024
Een open parkvilla met een veelheid aan belevingen
19 december 2023
Assimilerende harmonie bij villa van HilberinkBosch
17 november 2023
François Verhoeven Architecten levert sculpturale villa op in Haagse wijk Vroondaal
14 september 2023
Bewoners houten villa kunnen ook concerten organiseren in huis
19 juli 2023
Benthem Crouwel Architects en Nieuwe Architecten maken masterplan voor gebouwensemble op Zernike Campus
23 september
Urban Symbiose presenteert Amsterdamse villa met veel groen en uitzicht
30 maart 2023
Uitbreiding van een woning voor uitbreiding familiaal samenleven
26 februari 2024
Villa door Paul de Ruiter Architects voegt zich in groen duinlandschap
24 maart 2023
Een bescheiden maar uitgesproken villa van studio Prototype
28 februari 2023
Geborgen wonen achter een filtermuur
26 juni 2024
Villa in Schoorl door Mecanoo markeert overgang tussen landschappen
12 januari 2023
Duurzame metamorfose voor jaren 70-villa
10 januari 2024
Gerenoveerde bungalow onder een alomvattend dak
15 januari 2024
Facetrijke woning in het Hilversumse groen
7 februari 2024
Ingetogen woning als rustpunt aan de bosrand
29 november 2022
Huis met twee huisjes
10 september 2024
Karakteristieke villa gerenoveerd en uitgebreid met passend contrast
10 november 2022
Villa met historisch voorkomen in hergebruikt hout
8 november 2022
Glazen binnentuin zorgt voor licht en lucht in villa door 123DV
30 mei 2022
Een sereen samenspel van villa’s in een groen landschap
17 april 2024
Een villa als een compositie van volumes en openingen
16 mei 2022
Joris Verhoeven presenteert ‘zijdezachte zwarte villa' Berkel-Enschot
2 mei 2022
Een landhuis op de donk
23 januari
Dreessen Willemse presenteert opgeleverde Villa SGB in Heerlen
30 maart 2022
Lab-S verbouwt jaren 30-villa in relatie met natuur
13 januari
Maarten van Kesteren architecten transformeert een jaren 60-villa tot passiefwoning
12 februari
Een houten villa genesteld in het bos
21 november 2024
Natrufied Architecture realiseert opvallende biobased woning met lokaal hout
12 juni
Beschut wonen in een coulissenlandschap
28 maart
Uitbreiding geeft Koning Willem I College krachtiger uitstraling
13 april 2018
Nieuwe Architecten schept leefruimte op het dak
22 februari 2018
Renovatie en uitbreiding voor eerste Buitenschool
4 november 2015
Een efficiënte en modulaire woonmachine in de duinen
2 januari 2024
Nieuwe Architecten ‘verdubbelt’ bestaande school op beperkte locatie
29 augustus 2024
Een open parkvilla met een veelheid aan belevingen
19 december 2023
Assimilerende harmonie bij villa van HilberinkBosch
17 november 2023
François Verhoeven Architecten levert sculpturale villa op in Haagse wijk Vroondaal
14 september 2023
Bewoners houten villa kunnen ook concerten organiseren in huis
19 juli 2023
Benthem Crouwel Architects en Nieuwe Architecten maken masterplan voor gebouwensemble op Zernike Campus
23 september
Urban Symbiose presenteert Amsterdamse villa met veel groen en uitzicht
30 maart 2023
Uitbreiding van een woning voor uitbreiding familiaal samenleven
26 februari 2024
Villa door Paul de Ruiter Architects voegt zich in groen duinlandschap
24 maart 2023
Een bescheiden maar uitgesproken villa van studio Prototype
28 februari 2023
Geborgen wonen achter een filtermuur
26 juni 2024
Villa in Schoorl door Mecanoo markeert overgang tussen landschappen
12 januari 2023
Duurzame metamorfose voor jaren 70-villa
10 januari 2024
Gerenoveerde bungalow onder een alomvattend dak
15 januari 2024
Facetrijke woning in het Hilversumse groen
7 februari 2024
Ingetogen woning als rustpunt aan de bosrand
29 november 2022
Huis met twee huisjes
10 september 2024
Karakteristieke villa gerenoveerd en uitgebreid met passend contrast
10 november 2022
Villa met historisch voorkomen in hergebruikt hout
8 november 2022
Glazen binnentuin zorgt voor licht en lucht in villa door 123DV
30 mei 2022
Een sereen samenspel van villa’s in een groen landschap
17 april 2024
Een villa als een compositie van volumes en openingen
16 mei 2022
Joris Verhoeven presenteert ‘zijdezachte zwarte villa' Berkel-Enschot
2 mei 2022
Een landhuis op de donk
23 januari
Dreessen Willemse presenteert opgeleverde Villa SGB in Heerlen
30 maart 2022
Lab-S verbouwt jaren 30-villa in relatie met natuur
13 januari
Maarten van Kesteren architecten transformeert een jaren 60-villa tot passiefwoning
12 februari
Een houten villa genesteld in het bos
21 november 2024
Natrufied Architecture realiseert opvallende biobased woning met lokaal hout
12 juni
Beschut wonen in een coulissenlandschap
28 maart
Uitbreiding geeft Koning Willem I College krachtiger uitstraling
13 april 2018
Nieuwe Architecten schept leefruimte op het dak
22 februari 2018
Renovatie en uitbreiding voor eerste Buitenschool
4 november 2015
Toon alles
Andere nieuwsberichten
Plan Spot belooft Lelystad bruisend centrumgebied
3 oktober, 4:30
Heutink Groep, Groosman en LOLA Landscape Architects winnen tender stadshart met nieuw horecaplein.
Hoogste punt van woontoren Blaak 333 bereikt
3 oktober, 3:11
De door Kraaijvanger Architects ontworpen woontoren in het centrum van Rotterdam verrijst op de plek waar voorheen een kantoortoren van de Rabobank stond.
‘NDSM-werf en Buiksloterham zijn júíst inspirerende voorbeelden voor de stad van morgen’
3 oktober, 2:40
Architect Alexander Straub reageert op de column van Alexander Pols, waarin de vraag centraal stond of we bij de bouw van nieuwe wijken als Buiksloterham en de NDSM-werf in Amsterdam kunnen leren van de traditionele Europese stad.
Zes nominaties voor Haagse architectuurprijs Berlagevlag 2025
3 oktober, 1:34
De nominaties voor de Haagse architectuurprijs, de Berlagevlag, zijn bekend. Uit 31 inzendingen koos de vakjury zes projecten.
Kamer wil dat Keijzer afziet van versoepelingen huurwet
3 oktober, 12:11
Sinds de huurwet - tegen de zin van Keijzer - van kracht werd, waarschuwen verhuurders dat daardoor het aanbod aan betaalbare huurwoningen afneemt.
Steden vrezen voor woningbouw door nieuwe regels netcongestie
2 oktober, 4:25
Amsterdam, Den Haag, Rotterdam en Utrecht vrezen dat de bouw van nieuwe woningen stil komt te liggen door netcongestie.
Dienst Toeslagen: plan voor wonen op vakantieparken onuitvoerbaar
2 oktober, 1:06
Het kabinetsplan om permanent wonen in vakantiehuisjes mogelijk te maken, is volgens de Dienst Toeslagen onuitvoerbaar.
Zuid-Holland wil in ‘oogstjaar’ 2026 plannen uitvoeren
1 oktober, 3:16
De provincie investeert onder meer in infrastructuur, woningbouw, natuur en versterking van kleine kernen.
Rijk schrijft aanbesteding uit voor nieuwe marinierskazerne
1 oktober, 2:27
Eind 2031 wil het Korps Mariniers vanuit zijn huidige kazerne in Doorn verhuizen naar een nieuw onderkomen op de bestaande Defensielocatie Kamp Nieuw-Milligen vlakbij Apeldoorn.
Landschapstriënnale 2026 strijkt neer in Arnhem
1 oktober, 11:57
Het thema van de komende editie van de manifestatie is ‘Op Waterbasis’.
Ga naar het nieuws-archief
Robert Muis
Redacteur
2
0
0
0
Voor een optimale gebruikservaring plaatst Architectenweb functionele cookies. Wat de verschillende cookies precies doen leggen we uit in een
overzicht
. Cookies van social media kun je optioneel
aanzetten
.
Akkoord
Instellingen
Annuleren
OK
Sluiten
Doorgaan
Inloggen
Maak een gratis persoonlijk account aan
Feedback
Feedback
Wij horen graag jouw feedback. Laat je reactie achter en eventueel jouw e-mail adres.
Reactie
Verstuur