Projecten
Producten
Bedrijven
Vacatures
Agenda
Awards
Podcasts
more_horiz
Videos
Magazine
Thema's
Favorieten
Profiel
Uitloggen
Villa Oss, voorgevel
Copyright: Merle van de Veerdonk
Villa Oss, voorgevel
Copyright: Merle van de Veerdonk
Villa Oss, voorgevel
Copyright: Merle van de Veerdonk
Villa Oss, voorgevel
Copyright: Merle van de Veerdonk
Villa Oss, voorgevel, detail
Copyright: Merle van de Veerdonk
Villa Oss, voorgevel, detail
Copyright: Merle van de Veerdonk
Villa Oss, voorgevel
Copyright: Merle van de Veerdonk
Villa Oss, leefkeuken
Copyright: Merle van de Veerdonk
Villa Oss, leefkeuken
Copyright: Merle van de Veerdonk
Villa Oss, leefkeuken
Copyright: Merle van de Veerdonk
Villa Oss, gang
Copyright: Merle van de Veerdonk
Villa Oss, veranda aan achtergevel
Copyright: Merle van de Veerdonk
Villa Oss, achtergevel
Copyright: Merle van de Veerdonk
Villa Oss, achtergevel
Copyright: Merle van de Veerdonk
Villa Oss, achtergevel, detail
Copyright: Merle van de Veerdonk
Villa Oss, achtergevel, detail
Copyright: Merle van de Veerdonk
Villa Oss, oude situatie voorgevel
Copyright: Merle van de Veerdonk
Villa Oss, oude situatie achtergevel
Copyright: Merle van de Veerdonk
Conceptschema's
Copyright: Bas Termeer Architect
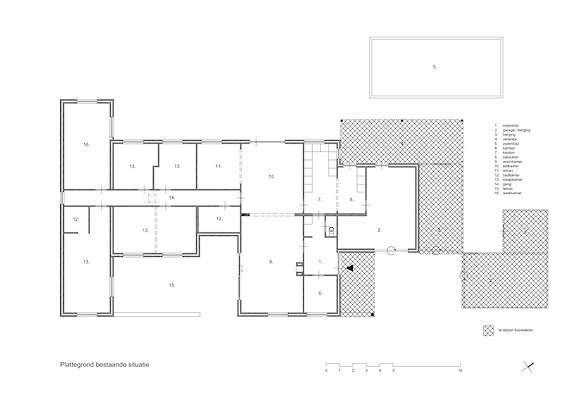
Plattegrond bestaand
Copyright: Bas Termeer Architect
Plattegrond nieuw
Copyright: Bas Termeer Architect
Gerenoveerde bungalow onder een alomvattend dak
15 januari 2024, 10:37
Van een bungalow uit 1971 op een boomrijke kavel in Oss waren in de loop der tijd de originele kwaliteiten verloren gegaan, terwijl ook de energetische toestand van de woning voor verbetering vatbaar was.
Bas Termeer Architect
kreeg de opdracht voor een rigoureuze renovatie, waarbij opdrachtgever bovendien een volledige esthetische metamorfose wenste.
Toen de opdrachtgever de bungalow verwierf, waren de oorspronkelijke kwaliteiten volledig verdwenen; ze waren verloren gegaan doordat de uit betonsteen opgetrokken woning door de jaren heen meermaals was verbouwd. Ook bezat de woning een weinig bijzondere relatie tot de tuin. Tot de opgave behoorde dan ook een betere relatie van het leefruimten met de tuin en het bestaande zwembad.
Samengebracht
De bungalow kenmerkte zich door een sterk verspringende en onsamenhangende volumeopbouw. Bas Termeer Architect heeft allereerst de vele niet-originele aanbouwsels verwijderd. Na deze opschoning heeft Termeer de grilligheid van het basisvolume wat verder aangezet, door de gewenste woninguitbreiding in eenzelfde grillige contour vorm te geven.
De buitenruimten die het volume hierdoor omhult worden samengebracht door de toevoeging van een groot dak, dat zich uitstrekt tot de contouren van de plattegrond. Op een aantal plekken is het dak voorzien van grote openingen ten behoeve van daglichttoetreding. Het dak neemt verschillende vormen aan, van carport tot entreeluifel, van veranda tot pergola.
Binnen en buiten
In het hart van de woning accentueert een verhoogd deel in het dak de leefkeuken. De verhoging zorgt voor daglicht tot diep in de woning en geeft vanuit het interieur zicht op de hoge bomen rondom de kavel, legt de architect uit.
De centrale leefkeuken snijdt als ruimte dwars door de woning en verbindt de voor- en achtertuin, waar de bewoners op verschillende momenten van de dag verblijven. De veranda’s aan zowel de voor- als achterzijde van de woning bieden verschillende mogelijkheden om binnen- en buitenleven te combineren.
Hout en natuursteen
De gevels zijn bekleed met verticale delen in voorvergrijsd fraké om een mooie inpassing in de groene omgeving te krijgen, vertelt Termeer. De kolommen die het nieuwe dak dragen zijn uitgevoerd in naturel eiken en zijn juist behandeld tegen vergrijzen. Dit geeft een blijvend subtiel contrast met de grijze achtergrond. Het andere verticale element, de buitenhaard, is bekleed in bruin natuursteen, dat in kleurnuance aansluit bij de kolommen.
Bij de renovatie is de bungalow tevens geheel verduurzaamd naar nieuwbouwniveau; de woning is nu gasloos en energieneutraal.
Trefwoorden
bas termeer
woning
dak
renovatie
tuin
interieur
bas termeer architect
bungalow
woonhuis
oss
Best gelezen
1
Den Bosch 'pauzeert' aanbesteding voor ontwerp gebiedsontwikkeling Citadelpoort
maandag, 17 november
2
Expositie in Kunsthal belicht eerdere toeristische periode Rotterdam
dinsdag, 18 november
3
Nominaties Zuiderkerkprijs en Geurt Brinkgreve Bokaal 2025 bekend
vrijdag, 14 november
4
Zelfsluitende Vlotterkering in Steyl vormt tevens 'balkon aan de Maas'
dinsdag, 18 november
5
Kleurrijk atrium vormt hart van nieuw internationaal hoofdkantoor NXP
maandag, 17 november
Gerelateerde nieuwsberichten
Plan Celsius in wijkververnieuwing Woensel-West afgerond
20 september 2023
Duurzame metamorfose voor jaren 70-villa
10 januari 2024
Een terughoudende opbouw voor een jaren 60-bungalow
18 september 2023
Open Kaart maakt van compacte bungalow ruimtelijke gezinswoning
25 oktober 2022
Metamorfose voor jaren 60-bungalow
26 november 2018
Facetrijke woning in het Hilversumse groen
7 februari 2024
Karakteristieke villa gerenoveerd en uitgebreid met passend contrast
10 november 2022
Woonhuis G meandert over de kavel
17 februari 2021
Uitbreiding voor monumentale bungalow door ONSIA
1 november 2018
Expressieve villa aan het water van Nieuwe Architecten
9 januari 2024
Een efficiënte en modulaire woonmachine in de duinen
2 januari 2024
Een open parkvilla met een veelheid aan belevingen
19 december 2023
Assimilerende harmonie bij villa van HilberinkBosch
17 november 2023
François Verhoeven Architecten levert sculpturale villa op in Haagse wijk Vroondaal
14 september 2023
Geborgen wonen achter een filtermuur
26 juni 2024
Studio Rianknop geeft woning volledig nieuw, speels en kleurig interieur
5 september 2024
Bewoners houten villa kunnen ook concerten organiseren in huis
19 juli 2023
Ibelings van Tilburg maakt opvallende villa energieneutraal
1 maart 2024
RoosRos ontwerpt een XXL-uitvoering van jaren-zeventig-villa
13 april 2023
Een bescheiden maar uitgesproken villa van studio Prototype
28 februari 2023
Warme en rustige sfeer in historisch grachtenpand
26 augustus 2024
Een eigentijdse tuinderswoning in overwegend biobased materialen
22 februari 2023
Twee winnaars Woensel West Wedstrijd
20 april 2012
Minimalistische details voor een gerenoveerde en uitgebreide woning
11 november 2024
Plan Celsius in wijkververnieuwing Woensel-West afgerond
20 september 2023
Duurzame metamorfose voor jaren 70-villa
10 januari 2024
Een terughoudende opbouw voor een jaren 60-bungalow
18 september 2023
Open Kaart maakt van compacte bungalow ruimtelijke gezinswoning
25 oktober 2022
Metamorfose voor jaren 60-bungalow
26 november 2018
Facetrijke woning in het Hilversumse groen
7 februari 2024
Karakteristieke villa gerenoveerd en uitgebreid met passend contrast
10 november 2022
Woonhuis G meandert over de kavel
17 februari 2021
Uitbreiding voor monumentale bungalow door ONSIA
1 november 2018
Expressieve villa aan het water van Nieuwe Architecten
9 januari 2024
Een efficiënte en modulaire woonmachine in de duinen
2 januari 2024
Een open parkvilla met een veelheid aan belevingen
19 december 2023
Assimilerende harmonie bij villa van HilberinkBosch
17 november 2023
François Verhoeven Architecten levert sculpturale villa op in Haagse wijk Vroondaal
14 september 2023
Geborgen wonen achter een filtermuur
26 juni 2024
Studio Rianknop geeft woning volledig nieuw, speels en kleurig interieur
5 september 2024
Bewoners houten villa kunnen ook concerten organiseren in huis
19 juli 2023
Ibelings van Tilburg maakt opvallende villa energieneutraal
1 maart 2024
RoosRos ontwerpt een XXL-uitvoering van jaren-zeventig-villa
13 april 2023
Een bescheiden maar uitgesproken villa van studio Prototype
28 februari 2023
Warme en rustige sfeer in historisch grachtenpand
26 augustus 2024
Een eigentijdse tuinderswoning in overwegend biobased materialen
22 februari 2023
Twee winnaars Woensel West Wedstrijd
20 april 2012
Minimalistische details voor een gerenoveerde en uitgebreide woning
11 november 2024
Toon alles
Andere nieuwsberichten
Space&Matter ontwerpt ingetogen houten paviljoen voor BSO in Zeist
3 uur geleden
Aan de rand van het dorpscentrum van Zeist, in een door woningen omzoomd binnengebied, ontwerpt Space&Matter een nieuwe buitenschoolse opvang (BSO) en gymzaal.
MoederscheimMoonen Architects benoemt vijf associates
3 uur geleden
Om de basis van het groeiende bureau richting de toekomst te versterken heeft het nu vijf associates benoemd: Aldo Trim, Boy Hoffs, Maarten de Roij, Mike Pennings en Romano van den Dool.
ECHO Urban Design en RoosRos Architecten winnen tender Machinewerf Vlissingen
Gisteren, 16:30
ECHO Urban Design en RoosRos Architecten zijn samen met partners Leyten, Fullhouse, depart en Steenvlinder door de gemeente Vlissingen geselecteerd als winnende partner voor de ontwikkeling van locatie de Machinewerf in het Scheldekwartier.
The Rock Weespertrekvaart door Atelier PUUUR in gebruik genomen
Gisteren, 14:00
Nieuw huurcomplex van Atelier PUUUR in Amsterdam omvat appartementen, jongerenwoningen en ruimte voor jeugdhulp en jeugdgezondheidszorg.
Vervoersregio's Rotterdam, Den Haag en Amsterdam willen miljard extra voor OV
1 uur geleden
Volgens burgemeester Jan van Zanen van Den Haag is 500 miljoen euro extra nodig "om niet achteruit te gaan door indexering en bezuinigingen". En nog eens 500 miljoen euro is nodig "om het OV mee te laten groeien met het aantal inwoners.
Mogelijke proef zelfrijdende pendelbussen tussen station Hoofddorp en Schiphol Trade Park
Gisteren, 14:15
De provincie Noord-Holland onderzoekt of het zelfrijdende pendelbussen zonder chauffeur kan laten rijden in de buurt van Schiphol. Als dit qua veiligheid en techniek haalbaar is, wil de provincie in 2027 een proef starten.
Fietsflat bij Amsterdam Centraal wordt na 25 jaar gesloopt
Gisteren, 13:45
Voor de door VMX Architects ontworpen fietsenstalling is geen nieuwe plek gevonden. Daarom wordt de 'fietsflat' nu gesloopt.
Maastricht grootste stijger op lijst van beste steden om te wonen
Gisteren, 13:15
Op de ranglijst van de Atlas voor Gemeenten steeg Maastricht de afgelopen tien jaar van de 40e naar de 34e plek. Amsterdam staat stevig op de 1e plek van de lijst.
Minder infraprojecten gaan door na bezuinigingen Prinsjesdag
Gisteren, 10:40
Minder infrastructuurprojecten kunnen doorgaan door bezuinigingen die met Prinsjesdag zijn doorgevoerd. Dat staat in antwoorden op Kamervragen over de begroting van het Mobiliteitsfonds.
Om malafide grondspeculatie tegen te gaan, overweegt het kabinet een bedenktijd voor kopers van grond
Gisteren, 09:00
Grondhandelaren splitsen landbouwgrond vaker op in kleine stukjes en verkopen die dan door aan particulieren. De kopers kunnen dan ten onrechte denken dat de gemeente op de grond wil bouwen, terwijl dat niet zo is.
Ga naar het nieuws-archief
Robert Muis
Redacteur
4
0
0
0
Voor een optimale gebruikservaring plaatst Architectenweb functionele cookies. Wat de verschillende cookies precies doen leggen we uit in een
overzicht
. Cookies van social media kun je optioneel
aanzetten
.
Akkoord
Instellingen
Annuleren
OK
Sluiten
Doorgaan
Inloggen
Maak een gratis persoonlijk account aan
Feedback
Feedback
Wij horen graag jouw feedback. Laat je reactie achter en eventueel jouw e-mail adres.
Reactie
Verstuur