Projecten
Producten
Bedrijven
Vacatures
Agenda
Awards
Podcasts
more_horiz
Videos
Magazine
Thema's
Favorieten
Profiel
Uitloggen
Abonneer je nu op onze nieuwsbrieven!
Abonneren
Nee, bedankt
Ja, denk met me mee rond de
materialisering van mijn project
Copyright: François Verhoeven
Copyright: François Verhoeven
Copyright: François Verhoeven
Copyright: François Verhoeven
Copyright: François Verhoeven
Copyright: François Verhoeven
Copyright: François Verhoeven
Copyright: François Verhoeven
Copyright: François Verhoeven
Copyright: François Verhoeven
Copyright: François Verhoeven
Copyright: François Verhoeven
Copyright: François Verhoeven
Copyright: François Verhoeven
Copyright: François Verhoeven
Copyright: François Verhoeven
Copyright: François Verhoeven
Copyright: François Verhoeven
Copyright: François Verhoeven
Copyright: François Verhoeven
Copyright: François Verhoeven Architecten
Copyright: François Verhoeven Architecten
Copyright: François Verhoeven Architecten
Copyright: François Verhoeven Architecten
François Verhoeven Architecten levert sculpturale villa op in Haagse wijk Vroondaal
14 september 2023, 15:04
In de nieuwbouwwijk Vroondaal bij Den Haag is een door
François Verhoeven Architecten
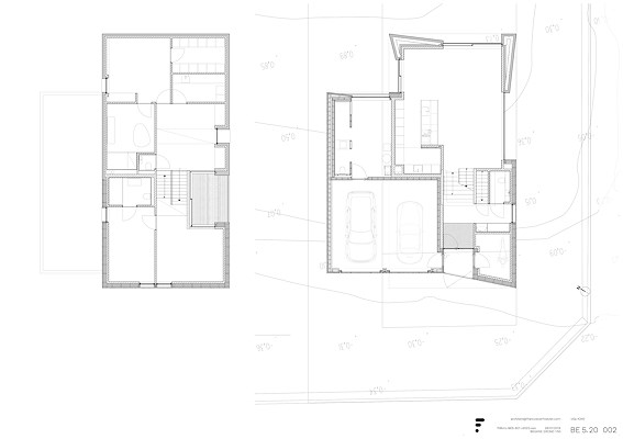
(FVA) ontworpen villa opgeleverd. Villa K340, vernoemd naar het kavelnummer van de woning, bestaat uit twee in elkaar grijpende hoofdvolumes met een gevel van hout en pleisterwerk. Ondanks de contrasterende gevelmaterialen gaan beide volumes ogenschijnlijk naadloos in elkaar over.
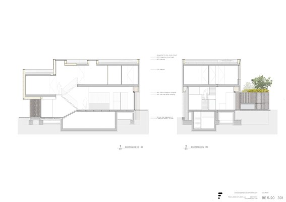
Villa K340 is gebouwd in deelgebied De Hoogte, waar villa’s worden gerealiseerd in een kunstmatige heuvelachtige setting. Door zijn splitlevel-opzet ‘beweegt’ de door FVA ontworpen villa mee met de in hoogte oplopende kavel waar het op staat. De entree bevindt zich in het lager gelegen, met hout beklede deel van de woning, de woonkamer ligt aan de hogere kant.
De zorgvuldig gedetailleerde villa is gematerialiseerd in ruwe, maar tegelijkertijd elegant ogende gevelmaterialen. De voorzijde bestaat uit houtelementen die iets uit elkaar zijn geplaatst, het licht in de woning ’s avonds via de achtergelegen ramen doorschijnt. De achterkant is gestukt in kalkpleister met een rauwe textuur die van afstand evenwel steeds ‘gladder’ oogt.
Om het sculpturale karakter van de villa te benadrukken, zijn de ramen diep in het volume geplaatst. De entree kan dankzij een extra houten deur helemaal worden afgesloten, waardoor een volledig gesloten gevel van hout ontstaat. De naastgelegen garagedeuren zijn eveneens van hout, zodat zij compleet opgaan in het gevelbeeld.
Centrale trap
Het interieur is georganiseerd rond een centrale trap en naastgelegen kleine buitenruimte, die beide zicht bieden op alle ruimtes in de woning. Voor de raampartijen en puien zijn alleen de noodzakelijke stijlen en kozijnen gebruikt, drempels ontbreken. De balustrades van de trappen zijn helemaal van glas, zodat zij het doorzicht niet verstoren.
Dankzij zonnepanelen, driedubbelglas, een geometrische warmtepomp, CO2-gestuurde ventilatie en de zonwerende delen in het volume zelf is de villa bijna energieneutraal. De zonnepanelen liggen op het dak, maar dankzij de opgetilde dakrand zijn deze niet zichtbaar. Het dak en de tuin zijn in nauwe afstemming met het karakter van de woning ontworpen door
Biotooptuinen
.
Trefwoorden
françois verhoeven architecten
vroondaal
villa
woonhuis
Locatie
Best gelezen
1
De Urbanisten schetst perspectief voor vitale en aantrekkelijke Rotterdamse binnenstad
vrijdag, 13 maart
2
Luxe appartementengebouw naast klooster Etten-Leur door Studio AAAN klaar
donderdag, 19 maart
3
BureauVanEig verbetert uitstraling Haagse rijtjeswoningen bij verduurzaming
dinsdag, 17 maart
4
Studio Vinke en Loos van Vliet ontwerpen blok met woningen in haven Lelystad
vrijdag, 13 maart
5
Houten Stelthuis van Woonpioniers is aardbevings- en klimaatbestendig
woensdag, 18 maart
Gerelateerde nieuwsberichten
François Verhoeven Architecten presenteert opgeleverde Villa K2
8 juni 2022
Expressieve villa aan het water van Nieuwe Architecten
9 januari 2024
Facetrijke woning in het Hilversumse groen
7 februari 2024
Uitbreiding van een woning voor uitbreiding familiaal samenleven
26 februari 2024
Gerenoveerde bungalow onder een alomvattend dak
15 januari 2024
Duurzame metamorfose voor jaren 70-villa
10 januari 2024
Huis met twee huisjes
10 september 2024
Een open parkvilla met een veelheid aan belevingen
19 december 2023
Geborgen wonen achter een filtermuur
26 juni 2024
Een sereen samenspel van villa’s in een groen landschap
17 april 2024
Een landhuis op de donk
23 januari 2025
François Verhoeven Architecten presenteert opgeleverde Villa K2
8 juni 2022
Expressieve villa aan het water van Nieuwe Architecten
9 januari 2024
Facetrijke woning in het Hilversumse groen
7 februari 2024
Uitbreiding van een woning voor uitbreiding familiaal samenleven
26 februari 2024
Gerenoveerde bungalow onder een alomvattend dak
15 januari 2024
Duurzame metamorfose voor jaren 70-villa
10 januari 2024
Huis met twee huisjes
10 september 2024
Een open parkvilla met een veelheid aan belevingen
19 december 2023
Geborgen wonen achter een filtermuur
26 juni 2024
Een sereen samenspel van villa’s in een groen landschap
17 april 2024
Een landhuis op de donk
23 januari 2025
Toon alles
Andere nieuwsberichten
Projecten gezocht voor vijfde Adriaan Dessingprijs
Gisteren, 14:42
De tweejaarlijkse architectuurprijs vestigt de aandacht op bijzondere, gerealiseerde plannen in de Zuid-Hollandse gemeenten Westland en Midden-Delfland. Het kan gaan om nieuwbouw, restauratie of landschappelijke projecten.
Nora Prins en Floor Marree versterken directie ECHO
Gisteren, 12:24
Met de uitbreiding verstevigt ECHO naar eigen zeggen de aansturing van zowel het ontwerpbureau als de adviespraktijk voor gebiedsontwikkeling.
Luxe appartementengebouw naast klooster Etten-Leur door Studio AAAN klaar
Gisteren, 10:50
Bij klooster ’t Withof in Etten-Leur is afgelopen jaar woongebouw De Hoogschout opgeleverd. Het door Studio AAAN ontworpen complex bestaat uit veertig ruime appartementen.
Hogeschool InHolland realiseert nieuw hoofdgebouw op campus Alkmaar
18 maart, 3:38
Het gebouw, dat is ontworpen door BRTArchitecten, moet een plek worden waar studenten, docenten en andere betrokkenen samenkomen om te leren, onderzoeken en samenwerken. Spil in het ontwerp vormt een doorlopende verbindende ruimte.
Provincie schrapt beoogde locaties windturbines in Groene Hart
Gisteren, 13:35
De provincie had twaalf plekken op het oog, maar dat leidde tot maatschappelijk en politiek verzet.
Staten Utrecht willen netcongestie versneld aanpakken
Gisteren, 09:44
De fracties wezen op de noodzaak van het zo snel mogelijk realiseren van een hoogspanningsstation dat essentieel is voor het opsplitsen van het elektriciteitsnetwerk tussen de Flevopolder, Gelderland en Utrecht.
Rotterdam wil woningbouw versnellen met pilot ‘Ontwikkelaar aan Zet’
18 maart, 4:33
De gemeente Rotterdam start een pilot waarbij projectontwikkelaars een grotere rol krijgen bij de voorbereiding van woningbouwprojecten.
Veel meer financieringsaanvragen Warmtefonds om hogere gasprijzen
18 maart, 2:31
De gestegen gasprijzen zorgen ervoor dat veel meer huiseigenaren financiering aanvragen voor het energiezuiniger maken van hun woning.
Grondprijs voor landbouwgrond loopt op tot bijna een ton
18 maart, 9:36
Ook overheden en andere partijen zoeken naar grond voor onder meer woningbouw, natuur en infrastructuur.
ANWB: betrek bewoners beter bij parkeerplannen in de wijk
17 maart, 2:00
Bewoners vinden naast parkeerruimte groen en leefbaarheid in hun wijk ook belangrijk, stelt de organisatie.
Ga naar het nieuws-archief
Ronnie Weessies
Redacteur
1
0
0
0
Voor een optimale gebruikservaring plaatst Architectenweb functionele cookies. Wat de verschillende cookies precies doen leggen we uit in een
overzicht
. Cookies van social media kun je optioneel
aanzetten
.
Akkoord
Instellingen
Annuleren
OK
Sluiten
Doorgaan
Inloggen
Maak een gratis persoonlijk account aan
Feedback
Feedback
Wij horen graag jouw feedback. Laat je reactie achter en eventueel jouw e-mail adres.
Reactie
Verstuur