Projecten
Producten
Bedrijven
Vacatures
Agenda
Awards
Podcasts
more_horiz
Videos
Magazine
Favorieten
Profiel
Uitloggen
Abonneer je nu op onze nieuwsbrieven!
Abonneren
Nee, bedankt
Ja, denk met me mee rond de
materialisering van mijn project
Copyright: Max Hart Nibbrig
Copyright: Max Hart Nibbrig
Copyright: Max Hart Nibbrig
Copyright: Max Hart Nibbrig
Copyright: Max Hart Nibbrig
Copyright: Max Hart Nibbrig
Copyright: Max Hart Nibbrig
Copyright: Max Hart Nibbrig
Copyright: Max Hart Nibbrig
Copyright: Pieter Bedaux
Copyright: Pieter Bedaux
Copyright: Pieter Bedaux
Copyright: Pieter Bedaux
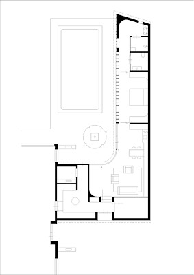
Uitbreiding van een woning voor uitbreiding familiaal samenleven
26 februari 2024, 10:42
Aan een jaren 70-woning in Aerdenhout, die enkele jaren geleden al is verbouwd en verduurzaamd door
Pieter Bedaux
, heeft de architect recent een vleugel toegevoegd. De uitbreiding maakt het huis geschikt om door drie generaties te worden bewoond: een gezin met kinderen in de oorspronkelijke woning en de grootouders in de paviljoenachtige vleugel.
Dankzij de nieuwe vleugel biedt het uitgebreide huis niet alleen een comfortabel onderkomen voor drie generaties, maar laat het zich ook op een andere wijze bewonen: deels samen, deels apart. Het ontwerp was een zoektocht naar een balans tussen deze gemeenschappelijkheid en privacy, legt Bedaux uit.
Woning en uitbreiding delen het terras, dat voert naar de nieuwe ingang aan de achterzijde. Lamellen in de gevel van de vleugel richten het uitzicht en beperken de inkijk, en verzekeren op deze manier een zekere beschutting.
Architectuurtaal
De uitbreiding is verwezenlijkt in houtskeletbouw, net als de woning, die oorspronkelijk is ontworpen door Arne Sikkel. Met een oppervlakte van 120 m
2
en een hoogte van drie meter heeft de vleugel de maximale omvang die vergunningsvrij kon worden gebouwd.
De vorm van de vleugel is ingegeven door het gebruik van de tuin en het zwembad dat er al was. De terugwijkende gevellijn is bepaald door het gewenste uitzicht op volwassen bomen. Voor schaduw op het terras en als markering van de entree is een Japanse esdoorn toegevoegd.
Het paviljoen is niet alleen de contravorm van de buitenruimte, maar tevens een complement van het huis doordat het dezelfde architectuurtaal spreekt, zij het in iets verfijndere bewoordingen. Net als het huis heeft de vleugel gevels van Western red cedar, glas in donkere kozijnen en een geprononceerde daklijst. De samenhang tussen tuin en uitbreiding heeft Bedaux versterkt door de muschelkalkvloer van de woonvleugel door te zetten in het terras.
Warm en rustig interieur
Het interieur van de vleugel is een vloeiende aaneenschakeling van vertrekken. De architect geeft er zijn hedendaagse interpretatie van de ‘jaren zeventig-gezelligheid’ van het huis mee. De warme en donkere kleuren van de eikenhouten wanden en het hardhouten lattenplafond geven eenheid en geborgenheid aan de uitbreiding.
Voor de vleugel ontwierp Bedaux ook het bed, de tafel, alle kasten en de keuken, evenals de handgrepen op de schuifdeuren. Deze schuifdeuren waarborgen de toegankelijkheid, mocht de mobiliteit van de bewoners in de toekomst beperkter worden.
Het houten lattenplafond is een kleine hommage van de architect aan het werk van zijn opa Jos. Bedaux. In dit lattenplafond is vrijwel onzichtbaar ledverlichting opgenomen. Over de volle lengte van de vleugel is een daklicht gemaakt. Door hieronder om en om een lat weg te laten uit het plafond, strijkt het licht gefilterd langs de achterwand. Het zorgvuldig afgestemde licht draagt bij aan de rustige en intieme sfeer van de woonvleugel.
Trefwoorden
aerdenhout
pieter bedaux
woonhuis
houtskeletbouw
arne sikkel
woning
meergeneratiewoning
interieur
Best gelezen
1
Woontoren Front door Monadnock wint tiende Architectuurprijs Nijmegen
donderdag, 9 april
2
Spoorwegverleden inspireert ontwerp woonblok Wisselspoor 10 in Utrecht
woensdag, 8 april
3
Rotterdam mag woningen gaan bouwen aan de Parkhaven
woensdag, 8 april
4
KOW wint met Marker Woods tender voor nieuwe wijk Eschmarkerveld
woensdag, 8 april
5
RED Company vraagt vergunning aan voor productie- en onderzoeksfaciliteit Lilly
dinsdag, 7 april
Gerelateerde nieuwsberichten
Een sereen samenspel van villa’s in een groen landschap
17 april 2024
Samenwerkingsverband VORM wint selectie 132 woningen in Park16Hoven
12 september 2023
Studio Nauta en Pieter Bedaux ontwerpen Antwerpse bibliotheek met kinderdagverblijf
23 mei 2023
Uitbreiding geeft rijtjeswoning ruimte en kleur
15 oktober 2024
Villa door Paul de Ruiter Architects voegt zich in groen duinlandschap
24 maart 2023
Duurzame metamorfose voor jaren 70-villa
10 januari 2024
Woonhuis Bedaux de Brouwer geïnspireerd op hooischuren en langgevelboerderijen Blaricum
21 oktober 2024
Subtiele uitbouw versterkt relatie villa met de tuin
31 januari 2024
Expressieve villa aan het water van Nieuwe Architecten
9 januari 2024
Nauta Bedaux ontwerpt kind- en buurtcentrum in Antwerpse Seefhoek
16 maart
Team met Studio Nauta en Pieter Bedaux presenteert hun inzending voor M HKA
31 maart 2025
Een efficiënte en modulaire woonmachine in de duinen
2 januari 2024
Een open parkvilla met een veelheid aan belevingen
19 december 2023
Geborgen wonen achter een filtermuur
26 juni 2024
Keuterij getransformeerd tot eigentijds woonhuis
24 november 2023
Studio Rianknop geeft woning volledig nieuw, speels en kleurig interieur
5 september 2024
Assimilerende harmonie bij villa van HilberinkBosch
17 november 2023
Ibelings van Tilburg maakt opvallende villa energieneutraal
1 maart 2024
François Verhoeven Architecten levert sculpturale villa op in Haagse wijk Vroondaal
14 september 2023
Bewoners houten villa kunnen ook concerten organiseren in huis
19 juli 2023
RoosRos ontwerpt een XXL-uitvoering van jaren-zeventig-villa
13 april 2023
Warme en rustige sfeer in historisch grachtenpand
26 augustus 2024
Een bescheiden maar uitgesproken villa van studio Prototype
28 februari 2023
Pieter Bedaux gaat verder als zelfstandig architect
5 april 2022
Minimalistische details voor een gerenoveerde en uitgebreide woning
11 november 2024
Een sereen samenspel van villa’s in een groen landschap
17 april 2024
Samenwerkingsverband VORM wint selectie 132 woningen in Park16Hoven
12 september 2023
Studio Nauta en Pieter Bedaux ontwerpen Antwerpse bibliotheek met kinderdagverblijf
23 mei 2023
Uitbreiding geeft rijtjeswoning ruimte en kleur
15 oktober 2024
Villa door Paul de Ruiter Architects voegt zich in groen duinlandschap
24 maart 2023
Duurzame metamorfose voor jaren 70-villa
10 januari 2024
Woonhuis Bedaux de Brouwer geïnspireerd op hooischuren en langgevelboerderijen Blaricum
21 oktober 2024
Subtiele uitbouw versterkt relatie villa met de tuin
31 januari 2024
Expressieve villa aan het water van Nieuwe Architecten
9 januari 2024
Nauta Bedaux ontwerpt kind- en buurtcentrum in Antwerpse Seefhoek
16 maart
Team met Studio Nauta en Pieter Bedaux presenteert hun inzending voor M HKA
31 maart 2025
Een efficiënte en modulaire woonmachine in de duinen
2 januari 2024
Een open parkvilla met een veelheid aan belevingen
19 december 2023
Geborgen wonen achter een filtermuur
26 juni 2024
Keuterij getransformeerd tot eigentijds woonhuis
24 november 2023
Studio Rianknop geeft woning volledig nieuw, speels en kleurig interieur
5 september 2024
Assimilerende harmonie bij villa van HilberinkBosch
17 november 2023
Ibelings van Tilburg maakt opvallende villa energieneutraal
1 maart 2024
François Verhoeven Architecten levert sculpturale villa op in Haagse wijk Vroondaal
14 september 2023
Bewoners houten villa kunnen ook concerten organiseren in huis
19 juli 2023
RoosRos ontwerpt een XXL-uitvoering van jaren-zeventig-villa
13 april 2023
Warme en rustige sfeer in historisch grachtenpand
26 augustus 2024
Een bescheiden maar uitgesproken villa van studio Prototype
28 februari 2023
Pieter Bedaux gaat verder als zelfstandig architect
5 april 2022
Minimalistische details voor een gerenoveerde en uitgebreide woning
11 november 2024
Toon alles
Gerelateerde bedrijven
Pieter Bedaux
Andere nieuwsberichten
Restauratie Atlasbeeld op dak Koninklijk Paleis Amsterdam afgerond
10 april, 3:38
Het beeld op het fronton van het paleis was in juli van zijn plek gehaald voor een uitgebreide onderhoudsbeurt in Antwerpen.
Nieuw zitgebied Lounge 2 Schiphol geïnspireerd door overgangsfase in oeuvre Mondriaan
10 april, 2:16
Op luchthaven Schiphol is de derde en laatste fase van door Beyond Space ontworpen zitgebieden opgeleverd. Net als de eerste twee fases van het project is dit gedeelte geïnspireerd door het werk van Mondriaan, maar dan uit een eerdere periode.
SeARCH en Heutink Groep winnen tender voor woongebouw Sluisbuurt
10 april, 11:15
Gebouw Radius biedt plek aan zo’n honderd appartementen, een stadskamer, een binnentuin, daktuinen en andere gemeenschappelijke ruimtes. Het gebouw wordt gerealiseerd van natuurlijke materialen als hout, stampleem en leemsteen.
Woontoren Front door Monadnock wint tiende Architectuurprijs Nijmegen
9 april, 10:00
“Front is een optimistisch icoon, gemaakt met lef, dat ambachtelijkheid en vakmanschap uitstraalt”, stelt de jury in zijn rapport.
Grote en kleine gemeenten balen van bouwregels Zuid-Holland
10 april, 4:31
Grote en kleine gemeenten in Zuid-Holland hebben hun zorgen geuit over nieuwe regels van de provincie, die volgens hen de woningbouw belemmeren.
Twijfels in Zuid-Holland over halen van doelen landelijk gebied
10 april, 12:18
De meeste partijen in de Zuid-Hollandse politiek hebben twijfels over de plannen die in zestien deelgebieden zijn gemaakt voor de aanpak van het landelijk gebied.
Huurprijzen stijgen harder dan koopwoningprijzen
10 april, 9:31
Volgens Huurwoningen.nl en Pararius moesten nieuwe huurders in het eerste kwartaal gemiddeld 21,12 euro per vierkante meter per maand neerleggen.
ABN AMRO: investeringen defensie vergroten druk op bouwcapaciteit
9 april, 12:29
Kazernes, opslagplaatsen en oefenterreinen dingen om dezelfde aannemers, ingenieurs en installateurs die ook nodig zijn voor bijvoorbeeld woningbouw.
Europa kent 831 miljoen euro subsidie toe aan Utrechtse projecten
9 april, 9:27
Het gaat onder meer om projecten tegen oververhitting van gebouwen, slimmer gebruik van energie en het hergebruik van materialen en grondstoffen.
Rotterdam mag woningen gaan bouwen aan de Parkhaven
8 april, 3:38
De Raad van State maakte woensdag bekend dat alle bezwaren tegen het bestemmingsplan zijn verworpen.
Ga naar het nieuws-archief
3
0
0
0
Voor een optimale gebruikservaring plaatst Architectenweb functionele cookies. Wat de verschillende cookies precies doen leggen we uit in een
overzicht
. Cookies van social media kun je optioneel
aanzetten
.
Akkoord
Instellingen
Annuleren
OK
Sluiten
Doorgaan
Inloggen
Maak een gratis persoonlijk account aan
Feedback
Feedback
Wij horen graag jouw feedback. Laat je reactie achter en eventueel jouw e-mail adres.
Reactie
Verstuur