Projecten
Producten
Bedrijven
Vacatures
Agenda
Awards
Podcasts
more_horiz
Videos
Magazine
Thema's
Favorieten
Profiel
Uitloggen
Abonneer je nu op onze nieuwsbrieven!
Abonneren
Nee, bedankt
Ja, denk met me mee rond de
materialisering van mijn project
Copyright: Ossip van Duivenbode
Copyright: Ossip van Duivenbode
Copyright: Ossip van Duivenbode
Copyright: Ossip van Duivenbode
Copyright: Ossip van Duivenbode
Copyright: Ossip van Duivenbode
Copyright: Ossip van Duivenbode
Copyright: Ossip van Duivenbode
Copyright: Ossip van Duivenbode
Copyright: Ossip van Duivenbode
Copyright: Ossip van Duivenbode
Copyright: ONSIA architectuur
oorspronkelijke situatie
Copyright: ONSIA architectuur
Nieuwe situatie
Copyright: ONSIA architectuur
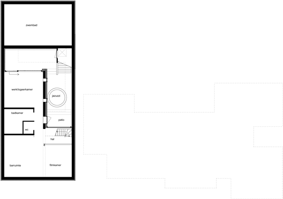
Kelder
Copyright: ONSIA architectuur
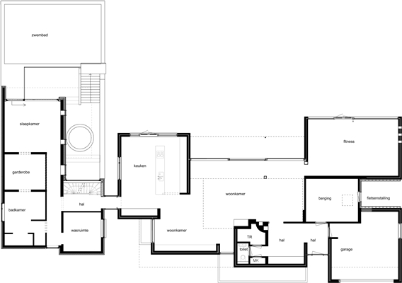
Begane grond
Copyright: ONSIA architectuur
Verdieping
Copyright: ONSIA architectuur
Uitbreiding voor monumentale bungalow door ONSIA
1 november 2018, 12:16
Voor een particuliere opdrachtgever heeft
ONSIA architectuur
een bungalow uit de jaren ‘60 in Amsterdam verbouwd en voorzien van een forse uitbreiding. De uitbreiding, als nieuw volume naast de oorspronkelijke woning, vormt zowel een contrast als een logische voortzetting.
De oorspronkelijke bungalow, gerealiseerd in de jaren zestig van de vorige eeuw, is een gemeentelijk monument. Echter, dat had de gemeente nog niet bekend gemaakt, toen ze de aanvraag voor de verbouwing van de bungalow ontving.
De uitbreiding die de bewoners wensten, kon door de kersverse monumentenstatus niet met een extra bouwlaag worden bereikt. In overleg met de gemeente is ervoor gekozen om de uitbreiding als een nieuw volume naast de bestaande bungalow te realiseren.
De nieuwbouw bestaat uit drie bouwlagen, waarvan er een ondergronds ligt. Daardoor heeft ONSIA architectuur de hoogte afgestemd op de bebouwing in de omgeving.
Gesloten versus open
“Deze bungalow maakt deel uit van een oorspronkelijk rijtje bungalows”, vertelt Rene Onsia. “Daarvan zijn er al meerdere verdwenen. Deze is bovendien een van de grootste en nog redelijk in originele staat.”
De ruimtelijke structuur van de oorspronkelijke woning is opvallend. De plattegrond is U-vormig, met slaapkamers in de vleugels aan weerszijde van de woonkamer. Aan de straatkant is de gevel overwegend gesloten; de tuinzijde is volledig transparant.
Contrast en samenhang
Met de uitbreiding heeft ONSIA architectuur in beeld een contrast gecreëerd. In ruimtelijke opbouw is juist een samenhang gezocht. Ook hier is de straatzijde zeer gesloten en opent het volume zich aan de andere zijde volledig naar de tuin.
De omsloten buitenruimte heeft het architectenbureau ontworpen als een verlengstuk van het interieur. Hout als bekleding versterkt dit idee. De patio bevat een jacuzzi, loopt trapsgewijs op en is een verbinding naar het zwembad in de tuin.
Indeling
In de bestaande bungalow bevinden zich de woonkamer, keuken, garage en fitness-ruimte. Een later toegevoegde bijkeuken is door ONSIA architectuur weer verwijderd.
Een voormalige slaapkamer en badkamer heeft het bureau samengevoegd tot woonkeuken. Van hieruit loopt, in een as van het gebouw, een glazen gang naar de nieuwbouw.
In de uitbreiding zijn op kelderniveau een logeer-werkkamer en een bioscoop ondergebracht. Op de begane grond ligt de master bedroom met garderobe en badkamer. Op de verdieping zijn de kinderkamers met badkamer gesitueerd.
Trefwoorden
bungalow
onsia architectuur
woning
amsterdam
gemeentelijk monument
Best gelezen
1
PSV presenteert plannen voor uitbreiding Philips Stadion
vrijdag, 20 maart
2
Luxe appartementengebouw naast klooster Etten-Leur door Studio AAAN klaar
donderdag, 19 maart
3
Houten Stelthuis van Woonpioniers is aardbevings- en klimaatbestendig
woensdag, 18 maart
4
BureauVanEig verbetert uitstraling Haagse rijtjeswoningen bij verduurzaming
dinsdag, 17 maart
5
KAAN Architecten en De Zwarte Hond winnen tender voor Area 19 TU Eindhoven
vrijdag, 20 maart
Gerelateerde nieuwsberichten
Woning met lichtdoorlatende gevel
2 november 2016
Van klaslokalen met lichtlijnen naar woonruimte met zichtlijnen
24 oktober 2018
Bungalow met ingelijst polderlandschap
14 augustus 2018
Recreatievilla in harmonie met duinomgeving
11 juli 2018
Jong architectenbureau geeft bungalow transparantie
22 februari 2017
Gerenoveerde bungalow onder een alomvattend dak
15 januari 2024
Koekoek brengt sfeer en daglicht in Amsterdamse benedenwoning
10 december 2018
10 villa’s met een gepleisterde gevel
2 november 2022
Woning met lichtdoorlatende gevel
2 november 2016
Van klaslokalen met lichtlijnen naar woonruimte met zichtlijnen
24 oktober 2018
Bungalow met ingelijst polderlandschap
14 augustus 2018
Recreatievilla in harmonie met duinomgeving
11 juli 2018
Jong architectenbureau geeft bungalow transparantie
22 februari 2017
Gerenoveerde bungalow onder een alomvattend dak
15 januari 2024
Koekoek brengt sfeer en daglicht in Amsterdamse benedenwoning
10 december 2018
10 villa’s met een gepleisterde gevel
2 november 2022
Toon alles
Andere nieuwsberichten
Uitbreiding van New Museum door OMA officieel geopend
50 minuten geleden
Het nieuwe volume, dat tegen het door SANAA ontworpen museumgebouw uit 2002 is geplaats, biedt onder meer ruimte aan nieuwe expositiezalen, educatiefaciliteiten en een eigen onderkomen voor de culturele ‘incubator’ van het museum NEW INC.
Vernieuwde Welstandsnota Rotterdam staat in teken van Omgevingswet, duurzaamheid en gebruiksgemak
3 uur geleden
De Rotterdamse Welstandsnota uit 2012 is geactualiseerd. Daarbij waren nieuwe inzichten en regelgeving, alsmede het gebruiksgemak voor gemeente en aanvragers bepalend.
PSV presenteert plannen voor uitbreiding Philips Stadion
20 maart, 3:37
De Eindhovense club wil de capaciteit van zijn onderkomen opschroeven met maximaal 25.000 bezoekers. Om dit te bewerkstelligen, komt er een nieuwe schil rond het stadion waarin een derde ring is opgenomen.
Rijkswaterstaat staakt renovatie markante houten Krùsrak-brug in Sneek
20 maart, 11:32
Tijdens de renovatie werd duidelijk dat de constructieve veiligheid van de brug niet langer kan worden verzekerd, laat RWS weten. De uit 2008 stammende Krúsrak-brug over de rijksweg 7 is ontworpen door Onix en Archterbosch Architecten.
Boekholt schrapt wet die voorrang statushouders stopt
2 uur geleden
De minister werkt aan een alternatieve wet, die pas in werking treedt als er genoeg mogelijkheden zijn om statushouders aan een huis te helpen.
Friesland brengt duizenden karakteristieke boerderijen in kaart
20 maart, 2:16
Door alle informatie over de voor het landschap kenmerkende gebouwen op één plek te brengen, moet het makkelijker worden om ze te behouden.
ING: bijna de helft van de huiseigenaren stelt verduurzaming uit
20 maart, 12:18
De meeste mensen vinden dat de overheid te weinig doet om dit te stimuleren.
Rekenkamer kraakt resultaten EU-innovatiefonds voor verduurzaming
20 maart, 9:25
Het Innovatiefonds van de Europese Unie levert veel minder resultaat op dan verwacht op het gebied van verduurzaming en innovatie.
Provincie schrapt beoogde locaties windturbines in Groene Hart
19 maart, 1:35
De provincie had twaalf plekken op het oog, maar dat leidde tot maatschappelijk en politiek verzet.
Staten Utrecht willen netcongestie versneld aanpakken
19 maart, 9:44
De fracties wezen op de noodzaak van het zo snel mogelijk realiseren van een hoogspanningsstation dat essentieel is voor het opsplitsen van het elektriciteitsnetwerk tussen de Flevopolder, Gelderland en Utrecht.
Ga naar het nieuws-archief
Robert Muis
Redacteur
0
0
0
0
Voor een optimale gebruikservaring plaatst Architectenweb functionele cookies. Wat de verschillende cookies precies doen leggen we uit in een
overzicht
. Cookies van social media kun je optioneel
aanzetten
.
Akkoord
Instellingen
Annuleren
OK
Sluiten
Doorgaan
Inloggen
Maak een gratis persoonlijk account aan
Feedback
Feedback
Wij horen graag jouw feedback. Laat je reactie achter en eventueel jouw e-mail adres.
Reactie
Verstuur