Projecten
Producten
Bedrijven
Vacatures
Agenda
Awards
Podcasts
more_horiz
Videos
Magazine
Thema's
Favorieten
Profiel
Uitloggen
Copyright: Studio de Nooyer
Copyright: Studio de Nooyer
Copyright: Studio de Nooyer
Copyright: Studio de Nooyer
Copyright: Studio de Nooyer
Copyright: Studio de Nooyer
Copyright: Studio de Nooyer
Copyright: Studio de Nooyer
Copyright: Studio de Nooyer
Copyright: Studio de Nooyer
Copyright: Studio de Nooyer
Copyright: derksen|windt architecten
Copyright: derksen|windt architecten
Copyright: derksen|windt architecten
Copyright: derksen|windt architecten
Copyright: derksen|windt architecten
Hotel in monumentaal Amsterdams pand geheel vernieuwd en uitgebreid
27 juni 2024, 11:55
Hotel Nicolaas Witsen in het centrum van Amsterdam is al zo’n veertig jaar gevestigd in drie mooie aaneengesloten panden uit 1890. Het was tijd voor aanpassingen en volledige renovatie;
derksen|windt architecten
heeft het ontwerp gemaakt, uitgewerkt en tot de oplevering begeleid.
Alles is aangepakt en aangepast in het monumentale onderkomen van het hotel, vertelt derksen|windt architecten. Het project begon met het onderzoeken van de mogelijkheden voor de ongebruikte kelder, de wat krappe entree en de verouderde keuken en ontbijtruimte op de begane grond. Dit, in combinatie met de niet-duurzame installaties, gaf aanleiding voor een omvattend nieuw ontwerp; het architectenbureau heeft het pand tot in de basis aangepakt.
De gevels zijn gerenoveerd, waarbij bijvoorbeeld het metselwerk en de spekbanden zijn hersteld. Tevens zijn de gevels, het dak en de ramen geïsoleerd. De kunststof kozijnen zijn vervangen door houten exemplaren, waarbij de detaillering van de oude schuiframen is teruggebracht. De entree is gerestaureerd en deels teruggebracht in oude stijl.
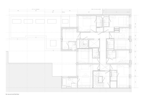
Nieuwe indeling
De indeling van het hotel, zoals derksen|windt architecten haar aantrof, was ontstaan door vele kleine aanpassingen in de loop der tijd. De ontsluiting van de kamers verliep via tal van kleine gangen en trappenhuizen. Alle verdiepingen zijn volledig opnieuw ingedeeld. Er is een nieuw trappenhuis en op elke verdieping één centrale gang langs de kamers gerealiseerd.
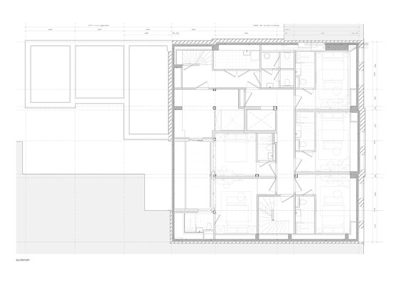
De nieuwe kamers zijn bescheiden wat betreft oppervlakte, maar doen heel ruimtelijk aan door de indeling en de hoge plafonds met bijpassende raampartijen die het pand bezit. Vijf extra kamers zijn gerealiseerd in het nieuwe souterrain.
Verdiepen en uitbreiden
Het souterrain is gerealiseerd door het uitdiepen van de kleine kelder en kruipruimte tot een ruimte met volledige verdiepingshoogte. Daarbij is meteen de oude fundering van de panden hersteld. SAan de voorzijde bevinden zich drie kamers, waarvan de ramen in de originele natuurstenen plint zijn geplaatst. Aan de achterzijde bieden de verdiepingshoge ramen zicht op een nieuw gerealiseerde patio.
Aan de achterzijde van het hotel bevindt zich ook de nieuwe ontbijtzaal, in het verlengde van de entree en de bar. De bar en de ontbijtruimte worden gescheiden door twee treden. Hier is ook de trap naar het souterrain gesitueerd. De grote dakramen versterken de zichtlijn tussen entree en ontbijtruimte, en bieden tijdens het ontbijt zicht op de oude achtergevel van het hotel. De nieuwe aanbouw is gerealiseerd in hout.
Samen met de opdrachtgevers heeft derksen|windt architecten de indeling van de kamers, de entree en de eetzaal met de keuken tot in de details uitgedacht. Voor de bar en balie, de aankleding en de meubels is Studio Hank bij het project betrokken.
Trefwoorden
hotel
amsterdam
uitbreiding
interieur
derksen|windt architecten
renovatie
Locatie
Best gelezen
1
Houthybride woongebouw langs de A8 in Zaandam opgeleverd
dinsdag, 11 november
2
WillemsenU zinkt villa af in landschap
dinsdag, 11 november
3
Woongebouw voor gezinnen biedt ruime corridor en gekoppelde terrassen met glijbaan
woensdag, 12 november
4
Benthem Crouwel Architects plaatst slotstuk in Paleiskwartier van Den Bosch
donderdag, 13 november
5
Groningers kiezen nieuwe invulling voor plek gesloopte parkeergarage in stadscentrum
dinsdag, 11 november
Gerelateerde nieuwsberichten
Derksen|windt architecten voorziet school van houten uitbreiding
16 januari 2024
Villa in bos draait om beleving van de omgeving
30 september 2024
Een houten huis met ritme en rust door derksen|windt architecten
7 december 2021
Geen doorsnee rijtjeshuis van derksen|windt architecten
16 november 2020
Bedrijfspand met symbolische 'sheddaken'
29 augustus 2019
Uitbreiding als verbinding tussen binnen en buiten
11 juli 2017
Flexibel en kleurrijk interieurontwerp voor hotelkamers Casa
1 juni 2022
Negentiende-eeuwse gevangenis in Alkmaar herbestemd tot hotel
10 januari 2022
TenBrasWestinga neemt culturele gelijkenissen als leidraad voor interieurontwerp
21 juni 2021
De Egelantier in Haarlem wordt boetiekhotel met culturele functies
10 juni 2021
Historische grachtenpanden in Leiden herbestemd tot luxueus hotel
11 januari 2021
Hotelinterieur met vakmanschap als thema
28 mei 2020
Warme en rustige sfeer in historisch grachtenpand
26 augustus 2024
Derksen|windt architecten voorziet school van houten uitbreiding
16 januari 2024
Villa in bos draait om beleving van de omgeving
30 september 2024
Een houten huis met ritme en rust door derksen|windt architecten
7 december 2021
Geen doorsnee rijtjeshuis van derksen|windt architecten
16 november 2020
Bedrijfspand met symbolische 'sheddaken'
29 augustus 2019
Uitbreiding als verbinding tussen binnen en buiten
11 juli 2017
Flexibel en kleurrijk interieurontwerp voor hotelkamers Casa
1 juni 2022
Negentiende-eeuwse gevangenis in Alkmaar herbestemd tot hotel
10 januari 2022
TenBrasWestinga neemt culturele gelijkenissen als leidraad voor interieurontwerp
21 juni 2021
De Egelantier in Haarlem wordt boetiekhotel met culturele functies
10 juni 2021
Historische grachtenpanden in Leiden herbestemd tot luxueus hotel
11 januari 2021
Hotelinterieur met vakmanschap als thema
28 mei 2020
Warme en rustige sfeer in historisch grachtenpand
26 augustus 2024
Toon alles
Andere nieuwsberichten
Den Bosch 'pauzeert' aanbesteding voor ontwerp gebiedsontwikkeling Citadelpoort
23 minuten geleden
Het Bossche stadsbestuur wil afzien van de vestiging van het Design Museum in het gebied, onder meer vanwege te hoog opgelopen kosten.
Kleurrijk atrium vormt hart van nieuw internationaal hoofdkantoor NXP
1 uur geleden
NXP Semiconductors, een belangrijke speler in de halfgeleiderindustrie, heeft zijn intrek genomen in een nieuwhoofdkantoor op de High Tech Campus in Eindhoven. Hollandse Nieuwe ontwierp in samenwerking met Veldhoen + Company het interieur.
Beeldbepalende toren van oud laboratorium geïntegreerd in gebouw International School Delft
Vandaag, 11:33
Op de plek waar vroeger het Kramers Laboratorium stond is naar ontwerp van atelier PRO een gebouw voor de International School Delft gerealiseerd.
Nominaties Zuiderkerkprijs en Geurt Brinkgreve Bokaal 2025 bekend
14 november, 12:17
Voor de eerstgenoemde woningbouwprijs van de gemeente Amsterdam zijn tien projecten genomineerd, de bokaal voor het beste initiatief op het gebied van herontwikkeling, transformatie of renovatie leverde zeven nominaties op.
Verbouwing Binnenhof kost 2,7 miljard euro, zomer 2031 klaar
3 uur geleden
De laatste officiële inschatting van een einddatum was ‘op zijn vroegst eind 2028’, maar het jaartal 2030 stond ook al in documenten.
Vlaanderen aansprakelijk voor Limburgse schade in tramdebacle
Vandaag, 09:36
De Vlaamse regering is aansprakelijk voor de miljoenen euro's aan kosten die zijn gemaakt rond de afgeblazen tramlijn tussen Maastricht en het Belgische Hasselt.
Zuid-Holland verhoogt budget voor restauratie rijksmonumenten
14 november, 2:08
De provincie Zuid-Holland verhoogt het budget voor de restauratie van rijksmonumenten structureel.
Rapport: natuur kan helpen beschermen tegen stijgende zeespiegel
14 november, 9:24
Natuurlijke oplossingen zoals ruim baan geven aan gebieden met eb en vloed kunnen helpen de Nederlandse kustlijn te beschermen tegen de stijgende zeespiegel.
Deltacommissaris: ga nu al in gesprek over toekomst waterbeheer
13 november, 4:03
Nederland moet nu al kijken welke randvoorwaarden nodig zijn om grote waterbeschermingsprogramma's zoals de Deltawerken in de komende jaren uit te voeren.
Gemeentebestuur wil Brabants dorp Moerdijk laten verdwijnen
13 november, 10:23
Het dorp Moerdijk in Noord-Brabant moet verdwijnen om plaats te maken voor uitbreiding van het bestaande haven- en industrieterrein in die plaats.
Ga naar het nieuws-archief
Robert Muis
Redacteur
0
0
0
0
Voor een optimale gebruikservaring plaatst Architectenweb functionele cookies. Wat de verschillende cookies precies doen leggen we uit in een
overzicht
. Cookies van social media kun je optioneel
aanzetten
.
Akkoord
Instellingen
Annuleren
OK
Sluiten
Doorgaan
Inloggen
Maak een gratis persoonlijk account aan
Feedback
Feedback
Wij horen graag jouw feedback. Laat je reactie achter en eventueel jouw e-mail adres.
Reactie
Verstuur