Projecten
Producten
Bedrijven
Vacatures
Agenda
Awards
Podcasts
more_horiz
Videos
Magazine
Thema's
Favorieten
Profiel
Uitloggen
Abonneer je nu op onze nieuwsbrieven!
Abonneren
Nee, bedankt
Ja, denk met me mee rond de
materialisering van mijn project
Copyright: Boutiquehotel Steenhof Suites
Copyright: Ilja Huner
Copyright: Ilja Huner
Copyright: Ilja Huner
Copyright: Ilja Huner
Copyright: Ilja Huner
Copyright: Ilja Huner
Copyright: Simon George Architecture
Copyright: Boutiquehotel Steenhof Suites
Copyright: Boutiquehotel Steenhof Suites
Copyright: Boutiquehotel Steenhof Suites
Copyright: Boutiquehotel Steenhof Suites
Copyright: Boutiquehotel Steenhof Suites
Copyright: Boutiquehotel Steenhof Suites
Copyright: Boutiquehotel Steenhof Suites
Copyright: Boutiquehotel Steenhof Suites
Copyright: Boutiquehotel Steenhof Suites
Copyright: Simon George Architecture
Copyright: Simon George Architecture
Copyright: Simon George Architecture
Copyright: Simon George Architecture
Copyright: Simon George Architecture
Historische grachtenpanden in Leiden herbestemd tot luxueus hotel
11 januari 2021, 11:15
Achter de gevels van twee grachtenpanden in het historische centrum van Leiden is een luxueus hotel gerealiseerd. Naar ontwerp van
Simon George Architecture
zijn toevoegingen reversibel uitgevoerd en is de originele houten kapconstructie weer zichtbaar gemaakt. Het historische karakter en een moderne uitstraling komen samen in Charly’s Loungebar, hart van het hotel.
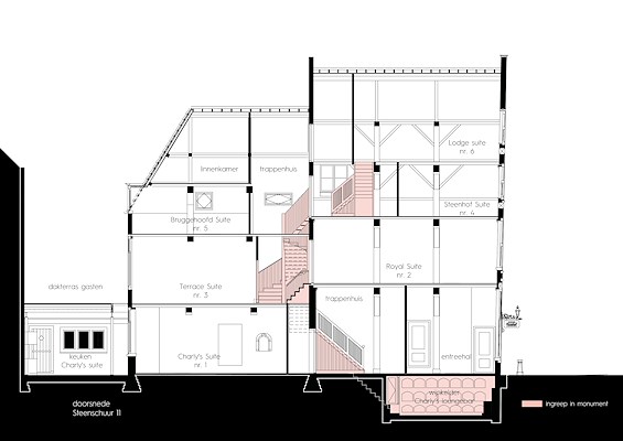
Architect Simon George startte in 2015 met het ontwerp voor de herbestemming van Steenschuur 11 tot Boutiquehotel Steenhof Suites. In 2018 is ook Steenschuur 13 betrokken in de planvorming. Het project is in drie fasen uitgevoerd; in 2020 is de laatste fase opgeleverd.
Reversibel
Beide panden stammen uit de late Middeleeuwen. Bij het realiseren van veertien luxueuze hotelsuites was het voor George de uitdaging om ze in de bestaande historische structuur in te passen, zonder schade aan het monument toe te brengen. Alle kamers hebben een eigen sfeer gekregen, vertelt George.
Vanwege de rijksmonumentale status van de panden zijn de nieuwe elementen reversibel uitgevoerd. De moderne trap van de eerste naar de tweede verdieping heeft George vervangen door een eikenhouten bloktrap, zoals die vroeger in dit soort panden aanwezig was. De houten kapconstructie is weer zichtbaar gemaakt.
Het oorspronkelijke houtskelet is overal zichtbaar, evenals de oude eikenhouten vloeren en plafonds, vertelt George. Daardoor bezit het hotel een warme, intieme sfeer, waarbij de geschiedenis van de panden tot haar recht komt.
Sfeer
Hart van het boetiekhotel is Charly’s Loungebar. De eigenares van het hotel wilde hier een sfeervolle ruimte, waar de gasten kunnen ontbijten; tegelijkertijd moest de ruimte ’s avonds de uitstraling hebben van een even chique als intieme loungebar.
Het lichtontwerp van Paul Cremers (Fosfor Design) speelt hierin een belangrijke rol. Dankzij een state-of-the-art lichtbesturingssysteem met ledverlichting kan de eigenares verschillende scènes kiezen, om de sfeer op het moment van de dag af te stemmen.
Nieuw en oud
Een blikvanger in de lounge is een uitstalkast voor kunstobjecten. Het meubel is uitgevoerd in afwisselend blank en donker gerookt eiken en uitspringende kubussen met een gespoten messing laag. Hiermee heeft George een chique uitstraling willen realiseren, ook de lederen bekleding van de banken draagt hier aan bij.
Charly’s Loungebar kent zichtbare verbindingen tussen nieuw en oud. De middeleeuwse kelder is hersteld om er een wijnkelder met proeverij in onder te brengen. Een doorbraak in de vloer met een nieuwe stalen trap geeft vanuit de loungebar een blik op middeleeuwse ondergrondse metselwerk.
Trefwoorden
interieur
boetiekhotel
leiden
leisure
herbestemming
hotel
transformatie
grachtenpand
simon george
Locatie
Best gelezen
1
PSV presenteert plannen voor uitbreiding Philips Stadion
vrijdag, 20 maart
2
Luxe appartementengebouw naast klooster Etten-Leur door Studio AAAN klaar
donderdag, 19 maart
3
KAAN Architecten en De Zwarte Hond winnen tender voor Area 19 TU Eindhoven
vrijdag, 20 maart
4
Houten Stelthuis van Woonpioniers is aardbevings- en klimaatbestendig
woensdag, 18 maart
5
BureauVanEig verbetert uitstraling Haagse rijtjeswoningen bij verduurzaming
dinsdag, 17 maart
Gerelateerde nieuwsberichten
Leids Maçonniek Centrum opent verbouwde zaal voor publiek
13 september 2019
Prikkelende plannen met Tiny Houses
15 september 2016
Klimwanden in een oude bedrijfshal
9 maart 2016
Komst Museumhotel en uitbreiding nijntje museum stap dichterbij
9 december 2020
RoosRos zoekt met Duinhotel Breezand de sfeer van de locatie
22 oktober 2020
UXUS brengt Italiaanse vleug in 17e-eeuws grachtenpand
12 mei 2022
Hard Rock Hotel Amsterdam opent officieel zijn deuren
12 juni 2020
Hotelinterieur met vakmanschap als thema
28 mei 2020
BUNK Hotel in Amsterdamse kerk opent deuren
28 februari 2020
Mecanoo zoekt voor hotelinterieur inspiratie in lokale identiteit
19 augustus 2019
citizenM-hotel in oud bankgebouw Amsterdam geopend
31 juli 2019
Hotel in monumentaal Amsterdams pand geheel vernieuwd en uitgebreid
27 juni 2024
Warme en rustige sfeer in historisch grachtenpand
26 augustus 2024
Cavern Vastgoed heeft plan voor hotel in Delfshaven Rotterdam
10 maart 2021
Nieuwe kas biedt onderdak aan educatief plattelandscentrum
1 april 2021
Nominatieronde Rijnlandse Architectuurprijs 2021 geopend
17 mei 2021
Plan met 550 woningen en veel groene ruimte tegenover Naturalis
28 juni 2021
The Unbound is een hotel als een buitenplaats
11 augustus 2021
Hotelzwembad verbindt lobby met Caribische Zee
20 september 2021
Studentencampus (Y)ours Leiden volledig opgeleverd
8 augustus 2022
'Lifestyle-hotel' The Den in Den Bosch met bar-restaurant op hoogte
9 augustus 2022
Grachtenpand verbouwd met Japans minimalisme als inspiratie
4 april 2023
Leids Maçonniek Centrum opent verbouwde zaal voor publiek
13 september 2019
Prikkelende plannen met Tiny Houses
15 september 2016
Klimwanden in een oude bedrijfshal
9 maart 2016
Komst Museumhotel en uitbreiding nijntje museum stap dichterbij
9 december 2020
RoosRos zoekt met Duinhotel Breezand de sfeer van de locatie
22 oktober 2020
UXUS brengt Italiaanse vleug in 17e-eeuws grachtenpand
12 mei 2022
Hard Rock Hotel Amsterdam opent officieel zijn deuren
12 juni 2020
Hotelinterieur met vakmanschap als thema
28 mei 2020
BUNK Hotel in Amsterdamse kerk opent deuren
28 februari 2020
Mecanoo zoekt voor hotelinterieur inspiratie in lokale identiteit
19 augustus 2019
citizenM-hotel in oud bankgebouw Amsterdam geopend
31 juli 2019
Hotel in monumentaal Amsterdams pand geheel vernieuwd en uitgebreid
27 juni 2024
Warme en rustige sfeer in historisch grachtenpand
26 augustus 2024
Cavern Vastgoed heeft plan voor hotel in Delfshaven Rotterdam
10 maart 2021
Nieuwe kas biedt onderdak aan educatief plattelandscentrum
1 april 2021
Nominatieronde Rijnlandse Architectuurprijs 2021 geopend
17 mei 2021
Plan met 550 woningen en veel groene ruimte tegenover Naturalis
28 juni 2021
The Unbound is een hotel als een buitenplaats
11 augustus 2021
Hotelzwembad verbindt lobby met Caribische Zee
20 september 2021
Studentencampus (Y)ours Leiden volledig opgeleverd
8 augustus 2022
'Lifestyle-hotel' The Den in Den Bosch met bar-restaurant op hoogte
9 augustus 2022
Grachtenpand verbouwd met Japans minimalisme als inspiratie
4 april 2023
Toon alles
Andere nieuwsberichten
Ontwerpteam gekozen voor vernieuwing wijk in Vlaamse Lint
Gisteren, 15:41
Een ontwerpteam met Woonwerk Architecten, DENC-STUDIO en aAD landschapsarchitecten is geselecteerd voor het ontwerp voor de herontwikkeling van de omgeving van Kasteelplein in het Vlaamse Lint.
Raumkultur en IkLandschap lanceren manifest over woonvormen voor ouderen
Gisteren, 14:36
Een nieuw manifest biedt ontwerpprincipes, voorbeelden en scenario’s van woonvormen voor ouderen waar ontmoeting en samenredzaamheid centraal staan.
Uitbreiding van New Museum door OMA officieel geopend
Gisteren, 11:38
Het nieuwe volume, dat tegen het door SANAA ontworpen museumgebouw uit 2002 is geplaats, biedt onder meer ruimte aan nieuwe expositiezalen, educatiefaciliteiten en een eigen onderkomen voor de culturele ‘incubator’ van het museum NEW INC.
Vernieuwde Welstandsnota Rotterdam staat in teken van Omgevingswet, duurzaamheid en gebruiksgemak
Gisteren, 09:15
De Rotterdamse Welstandsnota uit 2012 is geactualiseerd. Daarbij waren nieuwe inzichten en regelgeving, alsmede het gebruiksgemak voor gemeente en aanvragers bepalend.
ACM: meer onderzoek nodig naar overname bouwer VolkerWessels
Gisteren, 13:25
Volgens de toezichthouder zijn er risico's rond de concurrentie door de overname in de grond-, weg- en waterbouw.
Boekholt schrapt wet die voorrang statushouders stopt
Gisteren, 10:19
De minister werkt aan een alternatieve wet, die pas in werking treedt als er genoeg mogelijkheden zijn om statushouders aan een huis te helpen.
Friesland brengt duizenden karakteristieke boerderijen in kaart
20 maart, 2:16
Door alle informatie over de voor het landschap kenmerkende gebouwen op één plek te brengen, moet het makkelijker worden om ze te behouden.
ING: bijna de helft van de huiseigenaren stelt verduurzaming uit
20 maart, 12:18
De meeste mensen vinden dat de overheid te weinig doet om dit te stimuleren.
Rekenkamer kraakt resultaten EU-innovatiefonds voor verduurzaming
20 maart, 9:25
Het Innovatiefonds van de Europese Unie levert veel minder resultaat op dan verwacht op het gebied van verduurzaming en innovatie.
Provincie schrapt beoogde locaties windturbines in Groene Hart
19 maart, 1:35
De provincie had twaalf plekken op het oog, maar dat leidde tot maatschappelijk en politiek verzet.
Ga naar het nieuws-archief
Robert Muis
Redacteur
0
0
0
0
Voor een optimale gebruikservaring plaatst Architectenweb functionele cookies. Wat de verschillende cookies precies doen leggen we uit in een
overzicht
. Cookies van social media kun je optioneel
aanzetten
.
Akkoord
Instellingen
Annuleren
OK
Sluiten
Doorgaan
Inloggen
Maak een gratis persoonlijk account aan
Feedback
Feedback
Wij horen graag jouw feedback. Laat je reactie achter en eventueel jouw e-mail adres.
Reactie
Verstuur