Projecten
Producten
Bedrijven
Vacatures
Agenda
Awards
Podcasts
more_horiz
Videos
Magazine
Thema's
Favorieten
Profiel
Uitloggen
Abonneer je nu op onze nieuwsbrieven!
Abonneren
Nee, bedankt
Ja, denk met me mee rond de
materialisering van mijn project
Copyright: Luuk Kramer
Copyright: Luuk Kramer
Copyright: Luuk Kramer
Copyright: Luuk Kramer
Copyright: Luuk Kramer
Copyright: Luuk Kramer
Copyright: Luuk Kramer
Copyright: Luuk Kramer
Copyright: Luuk Kramer
Copyright: Luuk Kramer
Copyright: Luuk Kramer
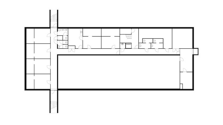
Begane grond
Copyright: EVA architecten
Souterrain
Copyright: EVA architecten
Ingetogen MFA de Haar naar ontwerp van EVA architecten
8 februari 2022, 17:35
Zowel de schietvereniging, de voetbalvereniging als het dorpshuis van Randwijk
hadden behoefte aan een nieuw onderkomen.
EVA architecten
ontwierp een ingetogen multifunctionele accommodatie, die in vorm en materiaalgebruik refereert aan schuren en de ‘Molukse barakken’ in de omgeving.
Rond 2015 startten de eerste gesprekken over een mogelijk gemeenschappelijk gebouw voor verschillende activiteiten in Randwijk. Zowel het clubgebouw van voetbalvereniging EMM als het dorpshuis, waarin schietvereniging De Treffers bovendien haar schietbanen heeft, verkeren in slechte staat.
Uiteindelijk besluiten de partijen, met financiële hulp van gemeente Overbetuwe, tot daadwerkelijke realisatie van een multifunctionele accommodatie. In opdracht van Stichting de Haar maakte EVA architecten een ontwerp; de bouw van MFA de Haar is gestart in 2019, in najaar 2021 vond de officiële opening plaats.
Schuren en barakken
Het ontwerp van EVA refereert in zowel vorm als materiaalgebruik aan gebouwen uit de omgeving, legt het architectenbureau uit. Dat zijn ten eerste de schuren, waarin de steenfabrieken in de omgeving van Randwijk de bakstenen laten drogen. Deze schuren zijn langwerpig en hebben een zadeldak met flauwe helling.
Ten tweede staan in de nabije omgeving barakken, waarin vanaf midden jaren vijftig Molukse gezinnen werden gehuisvest. Deze gebouwen hebben dezelfde archetypische vorm, vertelt EVA.
Houten opbouw
Verwijzend naar deze gebouwen is de opbouw van MFA de Haar volledig in hout gerealiseerd, als een paviljoen op een sokkel, aldus het architectenbureau. Om dit budgettair te kunnen doen, zijn de schietbaan en de kleedkamers in het betonnen souterrain eenvoudig en doelmatig gehouden.
Op de begane grond zijn drie multifunctionele ruimten van verschillende grootte gesitueerd. Ze kunnen afzonderlijk of gezamenlijk worden gebruikt, naar gelang de vraag en de al dan niet gelijktijdige aanwezigheid van de gebruikers, legt EVA uit.
De oostzijde van het gebouw is open en transparant en geeft zicht op het hoofdveld van de voetbalvereniging. De westzijde is geslotener en ingetogener gehouden. Het gebouw, met een totale oppervlakte van 1.200 m
2
, is vrijwel energieneutraal.
Het interieurontwerp is gemaakt door Karakter; voor het landschapsontwerp was Buro Beuk verantwoordelijk.
Trefwoorden
barak
clubgebouw
mfa de haar
multifunctionele accommodatie
randwijk
eva architecten
schuur
overbetuwe
sportclub
Best gelezen
1
Luxe appartementengebouw naast klooster Etten-Leur door Studio AAAN klaar
donderdag, 19 maart
2
PSV presenteert plannen voor uitbreiding Philips Stadion
vrijdag, 20 maart
3
Houten Stelthuis van Woonpioniers is aardbevings- en klimaatbestendig
woensdag, 18 maart
4
BureauVanEig verbetert uitstraling Haagse rijtjeswoningen bij verduurzaming
dinsdag, 17 maart
5
De nieuwe kleren van de keizer
dinsdag, 17 maart
Gerelateerde nieuwsberichten
EVA architecten ontwerpt schoolgebouw met contrastrijke kanten
14 april 2022
Ingrijpende renovatie van een school voor speciaal onderwijs door EVA architecten
17 april 2025
EVA architecten ontwerpt demontabel houten kantoorpand
31 mei 2023
Multifunctionele Accommodatie met ruimte voor buitenonderwijs
31 januari 2024
Omega is demontabel en hout-hybride kantoorpand van EVA architecten
9 september 2024
EVA ontwerpt herbestemming Suikerunie-kantoor in dialoog met Quist
28 september 2021
Energieneutrale basisschool voor speciaal onderwijs
9 juni 2020
Transformatie oud zorggebouw maakt plattegrond weer afleesbaar
11 februari 2020
Kantoorpand met vloeiende vormen
30 mei 2018
Een refter in een voormalige drukkerij
31 augustus 2017
Loftwoning met verrassende doorzichten
21 maart 2016
Opwaardering van MFA Voorn in Utrecht met ruime toepassing houtbouw
12 januari 2022
Huis van Eemnes verwelkomt zijn bezoekers
2 oktober 2020
School annex dorpshuis ontworpen op de krimp
22 mei 2019
Een zorg-, sport- en schoolgebouw voor de lange termijn
10 oktober 2017
Energieleverende MFA ’t Saamdeel geopend
29 september 2016
Veel dubbel ruimtegebruik bij MFA Heerde
22 juli 2016
Vier geknikte woningen langs het water naar ontwerp EVA architecten
19 april 2022
EVA architecten ontwerpt schoolgebouw met contrastrijke kanten
14 april 2022
Ingrijpende renovatie van een school voor speciaal onderwijs door EVA architecten
17 april 2025
EVA architecten ontwerpt demontabel houten kantoorpand
31 mei 2023
Multifunctionele Accommodatie met ruimte voor buitenonderwijs
31 januari 2024
Omega is demontabel en hout-hybride kantoorpand van EVA architecten
9 september 2024
EVA ontwerpt herbestemming Suikerunie-kantoor in dialoog met Quist
28 september 2021
Energieneutrale basisschool voor speciaal onderwijs
9 juni 2020
Transformatie oud zorggebouw maakt plattegrond weer afleesbaar
11 februari 2020
Kantoorpand met vloeiende vormen
30 mei 2018
Een refter in een voormalige drukkerij
31 augustus 2017
Loftwoning met verrassende doorzichten
21 maart 2016
Opwaardering van MFA Voorn in Utrecht met ruime toepassing houtbouw
12 januari 2022
Huis van Eemnes verwelkomt zijn bezoekers
2 oktober 2020
School annex dorpshuis ontworpen op de krimp
22 mei 2019
Een zorg-, sport- en schoolgebouw voor de lange termijn
10 oktober 2017
Energieleverende MFA ’t Saamdeel geopend
29 september 2016
Veel dubbel ruimtegebruik bij MFA Heerde
22 juli 2016
Vier geknikte woningen langs het water naar ontwerp EVA architecten
19 april 2022
Toon alles
Andere nieuwsberichten
PSV presenteert plannen voor uitbreiding Philips Stadion
20 maart, 3:37
De Eindhovense club wil de capaciteit van zijn onderkomen opschroeven met maximaal 25.000 bezoekers. Om dit te bewerkstelligen, komt er een nieuwe schil rond het stadion waarin een derde ring is opgenomen.
Rijkswaterstaat staakt renovatie markante houten Krùsrak-brug in Sneek
20 maart, 11:32
Tijdens de renovatie werd duidelijk dat de constructieve veiligheid van de brug niet langer kan worden verzekerd, laat RWS weten. De uit 2008 stammende Krúsrak-brug over de rijksweg 7 is ontworpen door Onix en Archterbosch Architecten.
KAAN Architecten en De Zwarte Hond winnen tender voor Area 19 TU Eindhoven
20 maart, 10:35
De opdracht omvat het ontwerp van een nieuw onderzoeks- en onderwijsgebouw en de stedenbouwkundige ontwikkeling van een nieuw campusgebied.
Projecten gezocht voor vijfde Adriaan Dessingprijs
19 maart, 2:42
De tweejaarlijkse architectuurprijs vestigt de aandacht op bijzondere, gerealiseerde plannen in de Zuid-Hollandse gemeenten Westland en Midden-Delfland. Het kan gaan om nieuwbouw, restauratie of landschappelijke projecten.
Friesland brengt duizenden karakteristieke boerderijen in kaart
20 maart, 2:16
Door alle informatie over de voor het landschap kenmerkende gebouwen op één plek te brengen, moet het makkelijker worden om ze te behouden.
ING: bijna de helft van de huiseigenaren stelt verduurzaming uit
20 maart, 12:18
De meeste mensen vinden dat de overheid te weinig doet om dit te stimuleren.
Rekenkamer kraakt resultaten EU-innovatiefonds voor verduurzaming
20 maart, 9:25
Het Innovatiefonds van de Europese Unie levert veel minder resultaat op dan verwacht op het gebied van verduurzaming en innovatie.
Provincie schrapt beoogde locaties windturbines in Groene Hart
19 maart, 1:35
De provincie had twaalf plekken op het oog, maar dat leidde tot maatschappelijk en politiek verzet.
Staten Utrecht willen netcongestie versneld aanpakken
19 maart, 9:44
De fracties wezen op de noodzaak van het zo snel mogelijk realiseren van een hoogspanningsstation dat essentieel is voor het opsplitsen van het elektriciteitsnetwerk tussen de Flevopolder, Gelderland en Utrecht.
Rotterdam wil woningbouw versnellen met pilot ‘Ontwikkelaar aan Zet’
18 maart, 4:33
De gemeente Rotterdam start een pilot waarbij projectontwikkelaars een grotere rol krijgen bij de voorbereiding van woningbouwprojecten.
Ga naar het nieuws-archief
Robert Muis
Redacteur
0
0
0
0
Voor een optimale gebruikservaring plaatst Architectenweb functionele cookies. Wat de verschillende cookies precies doen leggen we uit in een
overzicht
. Cookies van social media kun je optioneel
aanzetten
.
Akkoord
Instellingen
Annuleren
OK
Sluiten
Doorgaan
Inloggen
Maak een gratis persoonlijk account aan
Feedback
Feedback
Wij horen graag jouw feedback. Laat je reactie achter en eventueel jouw e-mail adres.
Reactie
Verstuur