Projecten
Producten
Bedrijven
Vacatures
Agenda
Awards
Podcasts
more_horiz
Videos
Magazine
Thema's
Favorieten
Profiel
Uitloggen
Nieuw
Populair
Toon alles
Architectenweb magazine #14
Architectenweb magazine #13
Publieke gebouwen
Architectenweb magazine #12
Kantoren
Architectenweb magazine #11
Scholen
Architectenweb magazine #10
Zorg
Architectenweb magazine #14
Architectenweb magazine #10
Zorg
Architectenweb magazine #12
Kantoren
Architectenweb magazine #13
Publieke gebouwen
Architectenweb magazine #6
Transformatie en Renovatie
Om direct naar je favorieten te kunnen gaan is het nodig om eerst in te loggen.
Nieuw
Architectenweb Awards 2025
Architectenweb Awards 2024
Architectenweb Awards 2023
Architectenweb Awards 2022
Architectenweb Awards 2021
Architectenweb Awards 2020
Architectenweb Awards 2019
Architectenweb Awards 2018
Om direct naar je favorieten te kunnen gaan is het nodig om eerst in te loggen.
Nieuw
Populair
Favorieten
Toon alles
Vakwerk Architecten
Nominatie voor de prijs voor Architect van het Jaar 2025
Sanne van Manen
Nominatie voor de prijs voor Architect van het Jaar 2025
KSA
Nominatie voor de prijs voor Architect van het Jaar 2025
KRFT
Nominatie voor de prijs voor Architect van het Jaar 2025
Joost Ector
Nominatie voor de prijs voor Architect van het Jaar 2025
Prijsuitreiking Architectenweb Awards 2024
Impressie van een feestelijke avond
Martens, Willems & Humblé Architecten
Nominatie voor de prijs voor Architect van het Jaar 2024
Uitreiking van Architectenweb Awards 2020
Impressie van de prijsuitreiking via Zoom
De Zwarte Hond
Nominatie voor de prijs voor Architect van het Jaar 2024
Avond met De Zwarte Hond
Symposium
Om direct naar je favorieten te kunnen gaan is het nodig om eerst in te loggen.
Nieuw
Populair
Categorieën
Favorieten
Toon alles
Brandpreventie Academy BV
Cay Circulaire Keukens
Circulaire keukens en pantry's
Studio Kirsten Reith
Interieurontwerp
Studio175
Interieuradvies in regio Utrecht
Orange Automatic Doors
Indoorwrap
De specialist in Keukenwrappen
Cay Circulaire Keukens
Circulaire keukens en pantry's
Studio Kirsten Reith
Interieurontwerp
Studio175
Interieuradvies in regio Utrecht
Interior & Co
Indoorwrap
De specialist in Keukenwrappen
Orange Automatic Doors
Architecten
Architectuur
Mobiliteit en infrastructuur
Stedenbouw en landschapsarchitectuur
Leveranciers
Gevels
Daken
Ramen en deuren
Trappen, liften en balustrades
Binnenwanden
Vloeren
Plafonds
Verlichting
Sanitair
Projectinrichting
Installaties
Constructies
Buitenruimte
Software
Adviseurs
Bestekschrijvers
Bouwmanagement
Installatie adviseurs E
Bouwfysica
Calculators
Installatie adviseurs G/W
Bouwkundig tekenwerk
Constructeurs
Lichtadviseurs
Adviseur beveiliging
Juristen
Intermediairs, Payrolling
Aannemers
Overig
Presentatie
Instellingen / onderwijs
Overig
Om direct naar je favorieten te kunnen gaan is het nodig om eerst in te loggen.
Nieuw
Populair
Favorieten
Toon alles
Gesprek met Stephan Sliepenbeek over hoogbouw in Amstel III
Gesprek met Ellen van Bueren over gebiedsontwikkeling en hoogbouw
Gesprek met Ma Yansong over ontwerpen die emotie oproepen
Gesprek met Paul de Ruiter over innovatieve en duurzame hoogbouw
Gesprek met Pi de Bruijn over zijn ontwerpen voor de Tweede Kamer toen en nu
Gesprek met Ellen van Bueren over gebiedsontwikkeling en hoogbouw
Gesprek met Oresti Sarafopoulos over het ontwerpen van een kantoorgebouw met bijna geen installaties
Gesprek met Stijn Steenbakkers over verdichting en hoogbouw in Eindhoven
Gesprek met Pi de Bruijn over zijn ontwerpen voor de Tweede Kamer toen en nu
Gesprek met Paul de Ruiter over innovatieve en duurzame hoogbouw
Om direct naar je favorieten te kunnen gaan is het nodig om eerst in te loggen.
Nieuw
Populair
Categorieën
Favorieten
Toon alles
De energiemarkt revolutionair vernieuwen
Festivalterrein als inspiratie van dit kantoor
De antieke Agora als inspiratie voor een kantoor
Renovatieproject Ockenburghstraat
Aluminium kozijnen: de isolerende oplossing
Prinsenpark, Rotterdam
ASML Gebouw 3
IVY, Amsterdam
IKC De Brug
Houthavens, Amsterdam
Architectuur
Woningbouw
Zorg
Hotels
Restaurants en café’s
Winkels
Sportgebouwen
Culturele gebouwen
Overheidsgebouwen
Scholen
Kantoren
Bedrijfsgebouwen
Paviljoens en kunst
Overig
Mobiliteit en infrastructuur
Trein- en metrostations
Luchthavens
Busstations
Parkeergarages
Fietsparkeren
Wegen
Bruggen
Water
Energie
Tankstations en laadstations
Waterzuivering en afvalverwerking
Overig
Stedenbouw en landschapsarchitectuur
Regionale visies
Gebiedsvisies
Plannen stedelijk weefsel
Amusementsparken en dierentuinen
Lichtontwerpen
Openbare ruimte
Pleinen
Parken
Tuinen
Speelplaatsen
Uitkijktorens
Overige (bijv. begraafplaatsen)
Om direct naar je favorieten te kunnen gaan is het nodig om eerst in te loggen.
Nieuw
Populair
Categorieën
Favorieten
Toon alles
Control Track Versa
Langdurige flexibiliteit voor kantoren van de toekomst
Toegankelijkheid in de stad: klanktegels als gids
Een nieuwe dimensie in stadsontwerp: integreren van klank voor een inclusieve ervaring.
Dreentegel
Terug van weggeweest
Flux-totaalaanbod vraaggestuurde Renson WTW-ventilatie
Compacte wand- en plafondmontage voor alle debieten
Wie denkt er aan slopen tijdens bouwen?
Kies voor de toekomst, kies voor circulair isoleren!
Digital Prints
Meer mogelijkheden in gekleurd staal
Element+ H-I
Hout - Aluminium Elementgevel
Vierkante vluchtroutearmaturen voor grote ruimtes
Zichtbare veiligheid van alle kanten
GROHE Cubeo: kranen voor elke badkamer
Stijlvol en duurzaam design voor jarenlang plezier
Schüco Zonweringsysteem Integralmaster in FWS
Bescherming tegen zon, verblinding en privacy – verborgen en volledig geïntegreerd
Gevels
Gevelbekleding
Vliesgevels
Zonwering buiten
Isolatie
Gevelconstructies
Signing
Overig
Daken
Dakafwerkingen
Dakisolatie
Dakconstructies
Dakranden, dakgoten en HWA's
Dakramen
Lichtkoepels
Lichtstraten
Schoorstenen
Overig
Dakluiken
Ramen en deuren
Raam- en deursystemen / kozijnen
Vliesgevels
Hang- en sluitwerk
Beveiliging en luiken
Dorpels en vensterbanken
Lateien
Roosters
Glas
Dakramen
Dakkoepels
Lichtstraten
Zonwering buiten
Zonwering binnen
Buitendeuren
Binnendeuren
Postvakken en brievenbussen
Overig
Dakluiken
Trappen, liften en balustrades
Trappen
Roltrappen
Liften
Balustrades en hekwerken
Galerijen
Binnenwanden
Binnenwanden
Wandafwerking
Vloeren
Constructieve vloeren
Verhoogde vloeren
Vloerafwerkingen
Overig
Plafonds
Tegels
Lineair
Grill
Open en roosters
Naadloos
Eilanden en baffles
Plafondafwerkingen
Ophangsystemen
Overig
Klimaatplafonds
Verlichting
Binnenverlichting
Buitenverlichting
Sanitair
Kranen en douchesets
Wastafels
Douchewanden en douchebakken
Baden
Waterclosets
Accessoires
Overig
Projectinrichting
Stoelen
Banken
Tafels
Kasten
Balies
Vrijstaande wanden
Keukens
Accessoires
Overig
Cabines
Interieurbeplanting
Stoffering
Installaties
Verwarming, koeling en ventilatie
Elektrotechnische installaties
Schakelmateriaal
Domotica
Deurcommunicatie
Beveiliging
Liften
Onderhoudsinstallaties
Overig
Brandbeveiliging
Constructies
Draagconstructies
Funderingen en kelders
Overig
Brandbeveiliging
Buitenruimte
Bestratingen en verhardingen
Afwateringen
Terreinafscheidingen en geluidsschermen
Buitenmeubilair
Fietsparkeren
Terrassen
Terrasoverkappingen
Bruggen
Accessoires
Overig
Beplanting
Sport- en speeltoestellen
Software
Tekenen 2D
Modelleren 3D / BIM
Visualisatie / rendering
Parametrisch ontwerpen
Bouwfysica
Draagconstructie
Overig
Virtual Reality
Cloudoplossingen
Om direct naar je favorieten te kunnen gaan is het nodig om eerst in te loggen.
Nieuw
Populair
Favorieten
Toon alles
Zomerwandelingen Nieuwe Stad op Zondag 2025
Amsterdam
Prefab beurs - 7 t/m 9 oktober 2025
Brabanthallen 's-Hertogenbosch
Boekpresentatie en panelgesprek met Floor Milikows
Prins Hendrikkade 600, 1011 VX Amsterdam
Architects Table ’25: Lunch & Inspiratie in HAUT Amsterdam
ATAG LIVE – HAUT gebouw, Spaklerweg 10F, 1096 BA Amsterdam (tegenover metrostation Spaklerweg)
Inspiratiedag @ Sempergreen – Gevelgroen
Defensieweg 1, 3984 LR Odijk
Architects Table ’25: Lunch & Inspiratie in HAUT Amsterdam
ATAG LIVE – HAUT gebouw, Spaklerweg 10F, 1096 BA Amsterdam (tegenover metrostation Spaklerweg)
Ontdek het seminarieprogramma van Architect@Work Amsterdam
De Kromhouthal, Gedempt Hamerkanaal 231, Amsterdam
LIAG over duurzaamheid centraal in project
Online
1.Lectures HouseEurope! Renovate, don’t speculate
Pakhuis de Zwijger
Zomerwandelingen Nieuwe Stad op Zondag 2025
Amsterdam
Om direct naar je favorieten te kunnen gaan is het nodig om eerst in te loggen.
Nieuw
Toon alles
Design
Duurzaamheid
Gevel
Infrastructuur
Interieur
Kantoren
Leisure
Openbare ruimte
Publieke gebouwen
Scholen
Transformatie en Renovatie
Woningbouw
Zorg
Om direct naar je favorieten te kunnen gaan is het nodig om eerst in te loggen.
Nieuw
Populair
Toon alles
Junior Architect (NL/EN)
De Academie van Bouwkunst Amsterdam zoekt twee onderzoekers voor lectoraat
Site Practice zoekt medior architect met 3-6 jaar ervaring (Amsterdam)
DAT zoekt een BIM Modelleur (Revit)
stagiair bouwkunde Heerenveen
Meewerkend Voorman
Architect
Junior Architect gezocht!
Junior Ontwerper
Studio Nauta zoekt projectleider
wUrck zoekt junior Architect
Project Architect
Om direct naar je favorieten te kunnen gaan is het nodig om eerst in te loggen.
Kantoorgebouw Omega, Hendrik Ido Ambacht, door EVA architecten
Copyright: Sebastian van Damme
Kantoorgebouw Omega, Hendrik Ido Ambacht, door EVA architecten
Copyright: Sebastian van Damme
Kantoorgebouw Omega, Hendrik Ido Ambacht, door EVA architecten
Copyright: Sebastian van Damme
Kantoorgebouw Omega, Hendrik Ido Ambacht, door EVA architecten
Copyright: Sebastian van Damme
Kantoorgebouw Omega, Hendrik Ido Ambacht, door EVA architecten
Copyright: Sebastian van Damme
Kantoorgebouw Omega, Hendrik Ido Ambacht, door EVA architecten
Copyright: Sebastian van Damme
Kantoorgebouw Omega, Hendrik Ido Ambacht, door EVA architecten
Copyright: Sebastian van Damme
Kantoorgebouw Omega, Hendrik Ido Ambacht, door EVA architecten
Copyright: Sebastian van Damme
Kantoorgebouw Omega, Hendrik Ido Ambacht, door EVA architecten
Copyright: Sebastian van Damme
Kantoorgebouw Omega, Hendrik Ido Ambacht, door EVA architecten
Copyright: Sebastian van Damme
Kantoorgebouw Omega, Hendrik Ido Ambacht, door EVA architecten
Copyright: Sebastian van Damme
Kantoorgebouw Omega, Hendrik Ido Ambacht, door EVA architecten
Copyright: Sebastian van Damme
Kantoorgebouw Omega, Hendrik Ido Ambacht, door EVA architecten
Copyright: Sebastian van Damme
Kantoorgebouw Omega, Hendrik Ido Ambacht, door EVA architecten
Copyright: Sebastian van Damme
Kantoorgebouw Omega, Hendrik Ido Ambacht, door EVA architecten
Copyright: Sebastian van Damme
Kantoorgebouw Omega, Hendrik Ido Ambacht, door EVA architecten
Copyright: Sebastian van Damme
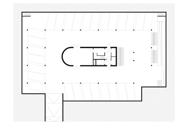
Laag -1
Copyright: EVA architecten
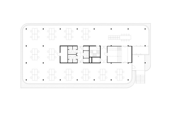
Laag 0
Copyright: EVA architecten
Laag +1
Copyright: EVA architecten
Copyright: EVA architecten
Copyright: EVA architecten
Omega is demontabel en hout-hybride kantoorpand van EVA architecten
9 september 2024, 10:49
PCS, een bedrijf in gebouwautomatisering, heeft in Hendrik Ido Ambacht haar intrek genomen in een nieuw, duurzaam kantoorpand naar ontwerp van
EVA architecten
. Kantoorgebouw Omega heeft een hout-hybride constructie, is grotendeels demontabel, is energiepositief en is in zijn materiaalgebonden CO
2
-uitstoot Paris Proof.
De hoofdconstructie van het gebouw bestaat uit houten kolommen, liggers en CLT-vloeren. De parkeerkelder en stabiliteitskern zijn uitgevoerd in beton. Rondom deze kern heeft het kantoor een vrij indeelbare plattegrond. Centraal ligt een afsluitbaar podium met tribunetrap, geschikt voor bijvoorbeeld presentaties en bijeenkomsten.
Demontabel en positief
In het ontwerp is gestreefd naar een demontabel en potentieel circulair gebouw. De hoofddraagconstructie, waterdichte schil, bouwkundige inrichting, installaties en alle verdere toegepaste materialen kunnen van elkaar worden gescheiden, waardoor ze gemakkelijk zijn te vervangen of hergebruiken, aldus EVA architecten.
Om hergebruik in de toekomst goed mogelijk te maken zijn alle materialen opgenomen in een materiaalpaspoort, vertelt het bureau. Materialen zoals PVC, lijm, kit en pur zijn vermeden en er zijn geen samengestelde producten toegepast. Alleen de betonnen onderdelen zijn niet demontabel.
EVA architecten heeft de materiaalgebonden CO
2
-uitstoot van Omega berekend, waarbij de parkeerkelder en gebouwkern zijn meegenomen. Met een materiaalgebonden CO2-uitstoot van 48 kg CO
2
-eq / m
2
BVO is het kantoorpand Paris Proof. Verder is Het gebouw energiepositief: het wekt de volledige eigen energiebehoefte (inclusief het gebruikersdeel) op en zelfs een beetje meer, aldus de architecten.
Asymmetrisch en opgetild
Omega is ontworpen als een tweelaags, asymmetrisch volume, dat is opgetild van het maaiveld om parkeren onder het gebouw en uit het zicht mogelijk te maken. Een rondom transparante gevel met ronde hoeken geven het pand een alzijdige uitstraling. Op de kop is een herkenbare en overdekte entree uit het volume gespaard.
Overkragende gevelbanden variëren, afhankelijk van de oriëntatie, in diepte. Hiermee werken ze zonwerend en beperken de energievraag in de zomer. Deze gevelbanden zijn aan de bovenzijde voorzien van vegetatie: een speciaal samengestelde kruidenmix moet hier bijen, vlinders en andere insecten aantrekken.
Trefwoorden
kantoorgebouw
materiaalgebonden co2-uitstoot
houtbouw
eva architecten
materiaalpaspoort
hendrik ido ambacht
demontabel
hout-hybride-constructie
energiepositief
Locatie
Best gelezen
1
Rijk schrijft aanbesteding uit voor nieuwe marinierskazerne
woensdag, 1 oktober
2
Rapport: rijke Amsterdammers leven steeds vaker apart van rest
dinsdag, 30 september
3
Kabinet wil wijken erbij op 127 plekken in Nederland
maandag, 29 september
4
Architectenweb symposium: klein maar fijn wonen?
donderdag, 2 oktober
5
Leiden wil verhoogd busstation naast treinperrons centraal station
dinsdag, 30 september
Gerelateerde nieuwsberichten
Negen utiliteitsbouwprojecten en hun materiaalgebonden CO2-uitstoot
11 maart 2024
Tien woningbouwprojecten en hun materiaalgebonden CO2-uitstoot
11 maart 2024
Paris Proof zónder biogene opslag? Dat vraagt om radicale keuzes, constateert NEXT architects in onderzoek
5 juli 2024
Transformatie hoofdkantoor Suiker Unie tot woongebouw afgerond
3 januari 2024
Schoolgebouw met contrasterende kanten
14 augustus 2023
Ingrijpende renovatie van een school voor speciaal onderwijs door EVA architecten
17 april
EVA architecten ontwerpt demontabel houten kantoorpand
31 mei 2023
Voormalige telefooncentrale in centrum Den Bosch getransformeerd door Voss Architecture
21 oktober 2024
MIX, EVA en LAP ontwerpen woonblok in buurt Snellerpoort Woerden
14 april 2023
Brandwerendste lijm bij CLT is minst gezond
2 december 2024
Bouw 115 energieneutrale woningen in Leidsche Rijn Centrum gestart
5 april 2023
EVA architecten transformeert Girokantoor Leeuwarden tot woongebouw
10 januari
Vier geknikte woningen langs het water naar ontwerp EVA architecten
19 april 2022
Nieuwe proeftuin op campus TU Delft gericht op verduurzaming kantoorgebouwen
12 februari
EVA architecten ontwerpt schoolgebouw met contrastrijke kanten
14 april 2022
Ingetogen MFA de Haar naar ontwerp van EVA architecten
8 februari 2022
EVA ontwerpt herbestemming Suikerunie-kantoor in dialoog met Quist
28 september 2021
Savills: ‘Herstel vastgoedmarkt ingezet, kantoren opvallende aanjager’
19 februari
Team onder leiding van VORM wint selectie woningbouwplan Roots
22 april 2021
Nominaties 'Schoolgebouw van het Jaar 2020' bekend
16 september 2020
Energieneutrale basisschool voor speciaal onderwijs
9 juni 2020
Tentoonstellingreeks en kennisprogramma start met thema beton
10 maart
Bouw van houten woongebouw de Koffiefabriek in Amsterdam gestart
11 december 2024
Negen utiliteitsbouwprojecten en hun materiaalgebonden CO2-uitstoot
11 maart 2024
Tien woningbouwprojecten en hun materiaalgebonden CO2-uitstoot
11 maart 2024
Paris Proof zónder biogene opslag? Dat vraagt om radicale keuzes, constateert NEXT architects in onderzoek
5 juli 2024
Transformatie hoofdkantoor Suiker Unie tot woongebouw afgerond
3 januari 2024
Schoolgebouw met contrasterende kanten
14 augustus 2023
Ingrijpende renovatie van een school voor speciaal onderwijs door EVA architecten
17 april
EVA architecten ontwerpt demontabel houten kantoorpand
31 mei 2023
Voormalige telefooncentrale in centrum Den Bosch getransformeerd door Voss Architecture
21 oktober 2024
MIX, EVA en LAP ontwerpen woonblok in buurt Snellerpoort Woerden
14 april 2023
Brandwerendste lijm bij CLT is minst gezond
2 december 2024
Bouw 115 energieneutrale woningen in Leidsche Rijn Centrum gestart
5 april 2023
EVA architecten transformeert Girokantoor Leeuwarden tot woongebouw
10 januari
Vier geknikte woningen langs het water naar ontwerp EVA architecten
19 april 2022
Nieuwe proeftuin op campus TU Delft gericht op verduurzaming kantoorgebouwen
12 februari
EVA architecten ontwerpt schoolgebouw met contrastrijke kanten
14 april 2022
Ingetogen MFA de Haar naar ontwerp van EVA architecten
8 februari 2022
EVA ontwerpt herbestemming Suikerunie-kantoor in dialoog met Quist
28 september 2021
Savills: ‘Herstel vastgoedmarkt ingezet, kantoren opvallende aanjager’
19 februari
Team onder leiding van VORM wint selectie woningbouwplan Roots
22 april 2021
Nominaties 'Schoolgebouw van het Jaar 2020' bekend
16 september 2020
Energieneutrale basisschool voor speciaal onderwijs
9 juni 2020
Tentoonstellingreeks en kennisprogramma start met thema beton
10 maart
Bouw van houten woongebouw de Koffiefabriek in Amsterdam gestart
11 december 2024
Toon alles
Andere nieuwsberichten
Plan Spot belooft Lelystad bruisend centrumgebied
Gisteren, 16:30
Heutink Groep, Groosman en LOLA Landscape Architects winnen tender stadshart met nieuw horecaplein.
Hoogste punt van woontoren Blaak 333 bereikt
Gisteren, 15:11
De door Kraaijvanger Architects ontworpen woontoren in het centrum van Rotterdam verrijst op de plek waar voorheen een kantoortoren van de Rabobank stond.
‘NDSM-werf en Buiksloterham zijn júíst inspirerende voorbeelden voor de stad van morgen’
Gisteren, 14:40
Architect Alexander Straub reageert op de column van Alexander Pols, waarin de vraag centraal stond of we bij de bouw van nieuwe wijken als Buiksloterham en de NDSM-werf in Amsterdam kunnen leren van de traditionele Europese stad.
Zes nominaties voor Haagse architectuurprijs Berlagevlag 2025
Gisteren, 13:34
De nominaties voor de Haagse architectuurprijs, de Berlagevlag, zijn bekend. Uit 31 inzendingen koos de vakjury zes projecten.
Kamer wil dat Keijzer afziet van versoepelingen huurwet
Gisteren, 12:11
Sinds de huurwet - tegen de zin van Keijzer - van kracht werd, waarschuwen verhuurders dat daardoor het aanbod aan betaalbare huurwoningen afneemt.
Steden vrezen voor woningbouw door nieuwe regels netcongestie
2 oktober, 4:25
Amsterdam, Den Haag, Rotterdam en Utrecht vrezen dat de bouw van nieuwe woningen stil komt te liggen door netcongestie.
Dienst Toeslagen: plan voor wonen op vakantieparken onuitvoerbaar
2 oktober, 1:06
Het kabinetsplan om permanent wonen in vakantiehuisjes mogelijk te maken, is volgens de Dienst Toeslagen onuitvoerbaar.
Zuid-Holland wil in ‘oogstjaar’ 2026 plannen uitvoeren
1 oktober, 3:16
De provincie investeert onder meer in infrastructuur, woningbouw, natuur en versterking van kleine kernen.
Rijk schrijft aanbesteding uit voor nieuwe marinierskazerne
1 oktober, 2:27
Eind 2031 wil het Korps Mariniers vanuit zijn huidige kazerne in Doorn verhuizen naar een nieuw onderkomen op de bestaande Defensielocatie Kamp Nieuw-Milligen vlakbij Apeldoorn.
Landschapstriënnale 2026 strijkt neer in Arnhem
1 oktober, 11:57
Het thema van de komende editie van de manifestatie is ‘Op Waterbasis’.
Ga naar het nieuws-archief
Robert Muis
Redacteur
0
0
0
0
Voor een optimale gebruikservaring plaatst Architectenweb functionele cookies. Wat de verschillende cookies precies doen leggen we uit in een
overzicht
. Cookies van social media kun je optioneel
aanzetten
.
Akkoord
Instellingen
Annuleren
OK
Sluiten
Doorgaan
Inloggen
Maak een gratis persoonlijk account aan
Feedback
Feedback
Wij horen graag jouw feedback. Laat je reactie achter en eventueel jouw e-mail adres.
Reactie
Verstuur