Projecten
Producten
Bedrijven
Vacatures
Agenda
Awards
Podcasts
more_horiz
Videos
Magazine
Thema's
Favorieten
Profiel
Uitloggen
Abonneer je nu op onze nieuwsbrieven!
Abonneren
Nee, bedankt
Ja, denk met me mee rond de
materialisering van mijn project
Copyright: vivid-vision
Copyright: vivid-vision
Copyright: vivid-vision
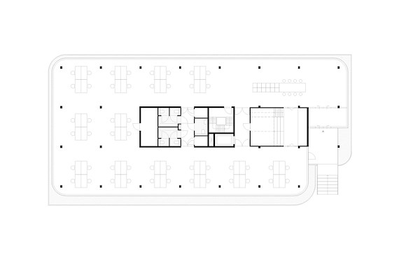
Begane grond
Copyright: EVA architecten
Verdieping
Copyright: EVA architecten
Kelder
Copyright: EVA architecten
EVA architecten ontwerpt demontabel houten kantoorpand
31 mei 2023, 15:44
Voor opdrachtgever PCS heeft
EVA architecten
een kantoorpand met een vrijwel geheel houten casco ontworpen, dat zal worden gerealiseerd op het nieuwe bedrijvenpark Ambachtsezoom in Hendrik-Ido-Ambacht. Het ontwerp zet bovendien in op circulariteit en losmaakbaarheid.
De nieuwbouw voor PCS, een dienstverlener op het gebied van gebouwautomatusering, wordt omringd door een groene rand van volwassen bomen. EVA architecten ontwierp een tweelaags volume, dat enigszins is opgetild van het maaiveld. Dit maakt parkeren uit het zicht, in een half verdiept gelegen garage onder het gebouw mogelijk.
Inspringingen en overkragingen
De tweede laag ligt aan de voorzijde van het gebouw deels terug, waardoor hier ruimte voor een royale, beschutte daktuin ontstaat. Op de kop van het volume is een entree uitgespaard. De transparante gevel met afgeronde hoeken geeft het gebouw een alzijdig karakter.
De overkragende gevelbanden variëren in diepte. De diepte is afgestemd op de oriëntatie om de overkragingen ook te laten fungeren als zonwering. De bovenzijde van deze banden is voorzien van een speciaal samengestelde kruidenmix die bijen, vlinders en andere insecten aantrekt, vertelt EVA architecten.
Demontabele houtbouw
De bovenbouw is opgebouwd uit houten kolommen, liggers en CLT-vloeren. Twee betonnen kernen dragen bij aan de stabiliteit. Rond deze kernen ligt een vrij indeelbare plattegrond, met in het hart een afsluitbaar podium met tribunetrap voor overleg en presentaties.
Het gebouw is meer dan energieneutraal, meldt het architectenbureau. Naast de gebouwgebonden energiebehoefte wekt het pand ook voldoende energie op ten behoeve van de gebruikers. EVA architecten heeft het gebouw ontworpen als circulair en demontabel. Het gebruik van materialen zoals lijm, kit en pur wordt vermeden en er worden geen samengestelde producten toegepast.
“De hoofddraagconstructie, waterdichte schil, bouwkundige inrichting, installaties en alle toegepaste materialen kunnen van elkaar worden gescheiden, waardoor ze gemakkelijk zijn te vervangen of hergebruiken”, laat het architectenbureau weten. Daartoe zijn alle materialen ook opgenomen in een materialenpaspoort.
Trefwoorden
houtbouw
circulair
hout
hendrik-ido-ambacht
kantoorgebouw
eva architecten
demontabel
Locatie
Best gelezen
1
Finalisten presenteren ontwerp voor Shift Landmark in Rotterdam
woensdag, 4 maart
2
Architect Oliver Thill op 55-jarige leeftijd overleden
donderdag, 5 maart
3
Nieuwe Hittekaart Woningmarkt 2026 van BPD toont aanhoudende woningdruk
dinsdag, 3 maart
4
Strijp-S krijgt woonbuurtje met karakteristieken voormalig Philips-terrein
maandag, 2 maart
5
Haagse gemeenteraad stemt in met bouw van 11.400 woningen in nieuw stadscentrum
maandag, 2 maart
Gerelateerde nieuwsberichten
MIX, EVA en LAP ontwerpen woonblok in buurt Snellerpoort Woerden
14 april 2023
Schoolgebouw met contrasterende kanten
14 augustus 2023
Bouw 115 energieneutrale woningen in Leidsche Rijn Centrum gestart
5 april 2023
Ruimtelijk en licht studiogebouw uit CLT
13 juni 2023
Vier geknikte woningen langs het water naar ontwerp EVA architecten
19 april 2022
EVA architecten ontwerpt schoolgebouw met contrastrijke kanten
14 april 2022
Avond over 'Nieuwe vormentaal in houtarchitectuur’ in Pakhuis De Zwijger
1 juni 2023
Ingetogen MFA de Haar naar ontwerp van EVA architecten
8 februari 2022
Team onder leiding van VORM wint selectie woningbouwplan Roots
22 april 2021
Omega is demontabel en hout-hybride kantoorpand van EVA architecten
9 september 2024
Energieneutrale basisschool voor speciaal onderwijs
9 juni 2020
Transformatie oud zorggebouw maakt plattegrond weer afleesbaar
11 februari 2020
De Curve (EVA) bekroond als Kantoorgebouw van het Jaar 2018
8 november 2018
Programma Pakhuis de Zwijger: De Houten Eeuw
22 augustus 2023
Mulder Zonderland wint Zwitserse competitie met flexibel en duurzaam kantoorgebouw
3 oktober 2024
Winnaars NRP Gulden Feniks 2018 onthuld
28 juni 2018
Een refter in een voormalige drukkerij
31 augustus 2017
Europees Centrum voor Circulaire Bouw en Transformatie officieel van start
11 maart 2024
Alex de Rijke benoemd tot hoogleraar houtbouw aan TU Delft
3 november 2023
MIX, EVA en LAP ontwerpen woonblok in buurt Snellerpoort Woerden
14 april 2023
Schoolgebouw met contrasterende kanten
14 augustus 2023
Bouw 115 energieneutrale woningen in Leidsche Rijn Centrum gestart
5 april 2023
Ruimtelijk en licht studiogebouw uit CLT
13 juni 2023
Vier geknikte woningen langs het water naar ontwerp EVA architecten
19 april 2022
EVA architecten ontwerpt schoolgebouw met contrastrijke kanten
14 april 2022
Avond over 'Nieuwe vormentaal in houtarchitectuur’ in Pakhuis De Zwijger
1 juni 2023
Ingetogen MFA de Haar naar ontwerp van EVA architecten
8 februari 2022
Team onder leiding van VORM wint selectie woningbouwplan Roots
22 april 2021
Omega is demontabel en hout-hybride kantoorpand van EVA architecten
9 september 2024
Energieneutrale basisschool voor speciaal onderwijs
9 juni 2020
Transformatie oud zorggebouw maakt plattegrond weer afleesbaar
11 februari 2020
De Curve (EVA) bekroond als Kantoorgebouw van het Jaar 2018
8 november 2018
Programma Pakhuis de Zwijger: De Houten Eeuw
22 augustus 2023
Mulder Zonderland wint Zwitserse competitie met flexibel en duurzaam kantoorgebouw
3 oktober 2024
Winnaars NRP Gulden Feniks 2018 onthuld
28 juni 2018
Een refter in een voormalige drukkerij
31 augustus 2017
Europees Centrum voor Circulaire Bouw en Transformatie officieel van start
11 maart 2024
Alex de Rijke benoemd tot hoogleraar houtbouw aan TU Delft
3 november 2023
Toon alles
Andere nieuwsberichten
André Kempe: ‘Het ging Oliver Thill om het geven van betekenis’
Gisteren, 19:15
Agelopen maandag is architect Oliver Thill overleden. Zijn compagnon André Kempe gedenkt de man met wie hij al meer dan 35 jaar bevriend was en ruim een kwarteeuw geleden Atelier Kempe Thill oprichtte.
TconcepT transformeert voormalig warenhuis in Offenbach tot bibliotheek
Gisteren, 15:54
Het 12.000 vierkante meter omvattende complex gaat in bredere zin fungeren als een cultuur- en educatiecentrum met vele functies. In 2027 moet Station Mitte, zoals het gebouw zijn volgende leven wordt genoemd, klaar zijn.
Werkstatt gaat verder zonder medeoprichter Niels Groeneveld
Gisteren, 14:49
Medeoprichter van Werkstatt Niels Groeneveld stopt als partner bij het bureau, om zich te kunnen richten op zijn gezin en onderwijs. Floor Frings en Raoul Vleugels blijven het Eindhovense bureau leiden.
Binationaal ontwerpteam buigt zich over waterhuishouding Cartagena in Colombia
Gisteren, 13:43
Een Colombiaans-Nederlands ontwerpteam met Felixx Landscape Architects & Planners en Witteveen+Bos moedigt Cartagena aan om haar relatie met water te heroverwegen en na te denken over een veerkrachtige toekomst
Kunstmuseum in Den Haag moet worden verbouwd
Gisteren, 16:32
Daarvoor dient het museum in het Statenkwartier waarschijnlijk een tijd te sluiten.
Coen van Oostrom benoemd tot nieuwe voorzitter VNO-NCW
Gisteren, 12:23
De oprichter van ontwikkelaar Edge volgt in die rol Ingrid Thijssen op, die deze week is begonnen als nieuwe bestuursvoorzitter van de TU Delft.
Rapport: lokaal klimaatbeleid schiet nog tekort
Gisteren, 10:25
De makers van de zogeheten Toekomstmeter hebben het beleid van zeventig gemeenten doorgelicht.
Hardt Hyperloop failliet verklaard door rechtbank
5 maart, 11:37
Het Rotterdamse bedrijf was bezig met de ontwikkeling van technologie om mensen op hoge snelheid via capsules door een vacuümbuis te vervoeren.
Onderzoek: zeespiegel kustgebieden hoger dan in studies aangenomen
5 maart, 9:13
De zeespiegel aan de kust is in grote delen van de wereld waarschijnlijk hoger dan in veel wetenschappelijke studies wordt aangenomen.
Gelderland geeft voorrang aan vergunningen met minder stikstof
4 maart, 12:24
De plannen zijn onderdeel van het pakket maatregelen dat het Gelderse bestuur wil nemen om de vergunningverlening voor zaken als de woningbouw weer op gang te krijgen.
Ga naar het nieuws-archief
Robert Muis
Redacteur
1
0
0
0
Voor een optimale gebruikservaring plaatst Architectenweb functionele cookies. Wat de verschillende cookies precies doen leggen we uit in een
overzicht
. Cookies van social media kun je optioneel
aanzetten
.
Akkoord
Instellingen
Annuleren
OK
Sluiten
Doorgaan
Inloggen
Maak een gratis persoonlijk account aan
Feedback
Feedback
Wij horen graag jouw feedback. Laat je reactie achter en eventueel jouw e-mail adres.
Reactie
Verstuur