Projecten
Producten
Bedrijven
Vacatures
Agenda
Awards
Podcasts
more_horiz
Videos
Magazine
Thema's
Favorieten
Profiel
Uitloggen
Copyright: MWA Hart Nibbrig
Copyright: MWA Hart Nibbrig
Copyright: MWA Hart Nibbrig
Copyright: MWA Hart Nibbrig
Copyright: MWA Hart Nibbrig
Copyright: MWA Hart Nibbrig
Copyright: MWA Hart Nibbrig
Copyright: MWA Hart Nibbrig
Copyright: MWA Hart Nibbrig
Copyright: MWA Hart Nibbrig
Copyright: MWA Hart Nibbrig
Copyright: MWA Hart Nibbrig
Copyright: MWA Hart Nibbrig
Copyright: MWA Hart Nibbrig
Copyright: MWA Hart Nibbrig
Copyright: MWA Hart Nibbrig
Copyright: MWA Hart Nibbrig
Copyright: MWA Hart Nibbrig
Copyright: MWA Hart Nibbrig
Copyright: MWA Hart Nibbrig
Studiogebouw A tijdens de bouw
Copyright: Heko Spanten Ede
Studiogebouw A tijdens de bouw
Copyright: Jesse Zweers
Studiogebouw A tijdens de bouw
Copyright: Jesse Zweers
Studiogebouw A tijdens de bouw
Copyright: Jesse Zweers
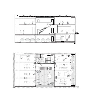
Begane grond en langsdoorsende
Copyright: Atelier Zweers
Eerste verdieping en langsdoorsnede
Copyright: Atelier Zweers
Tweede verdieping en langsdoorsnede
Copyright: Atelier Zweers
Detaillering
Copyright: Atelier Zweers
Situatie
Copyright: Atelier Zweers
Diagram isometrie
Copyright: Atelier Zweers
Diagram houtbouw
Copyright: Atelier Zweers
Diagram circulatie
Copyright: Atelier Zweers
Diagram installaties
Copyright: Atelier Zweers
Maquette
Copyright: Atelier Zweers
Maquette
Copyright: Atelier Zweers
Ruimtelijk en licht studiogebouw uit CLT
13 juni 2023, 11:42
Voor opdrachtgever Twentyten Photography & Film heeft architectenbureau
Atelier Zweers
een studiogebouw aan de Pieter Braaijweg in Amsterdam ontworpen. Binnen het gevarieerde blok aan bedrijfspanden springt Studiogebouw A in het oog met zijn gevel in geometrische vormen uit massieve azobé-balken; daarachter schuilt een ruimtelijk pand uit hoofdzakelijk CLT.
Studiogebouw A maakt deel uit van een blok bedrijfspanden in de hoek van de A10 en Spaklerweg, die in eigen beheer zijn ontwikkeld. Voor het kleinschalige bedrijfsgebouw werkten architect Jesse Zweers van Atelier Zweers en opdrachtgever Willem Groeneveld van Twentyten Photography & Film intensief samen. Dit resulteerde volgens Zweers in “meer ruimte voor creatieve en esthetische oplossingen binnen de ontwerpeisen”.
Houtbouw met groen
De nauwe samenwerking leidde onder andere tot de logische keuze om CLT als basismateriaal te gebruiken; opdrachtgever en architect hechten beide veel waarde aan ‘het echte, het natuurlijke”, zegt Zweers. Naast de duurzame kwaliteiten van het hout heeft het gebruik van prefab CLT-elementen als groot voordeel dat het pand grotendeels demontabel en recyclebaar is.
Omdat Studiogebouw A is gerealiseerd op de laatste kavel van het blok, is de begane-grondvloer van beton en heeft het gebouw een fundering met stalen buispalen, legt Zweers uit. De liftschacht, technische schacht en het extra beschermde vluchttrappenhuis zijn echter uitgevoerd in CLT, voorzien van de noodzakelijke brandklasse. De kruislaaghouten constructie is grotendeels in het zicht gelaten, wat het interieur een zowel robuuste als aangenaam natuurlijke uitstraling geeft.
De opdrachtgever had ook de wens om veel groen op te nemen in het ontwerp. Atelier Zweers heeft planten tot een integraal onderdeel van de architectuur gemaakt en zowel de patio als de loggia op de eerste verdieping voorzien van levend groen. De planten worden bewaterd met regenwater dat wordt opgevangen en verspreid via een geïntegreerd irrigatiesysteem.
Flexibele werkplekken
Naast de nadruk op een duurzame materiaalkeuze en natuurlijke omgeving, vormde het creëren van een professionele en inspirerende werkplek een kern van de opgave. Overeenkomstig met de principes van het Nieuwe Werken zijn flexibele werkplekken gerealiseerd. Verder ontvangen alle ruimten direct daglicht. Daarbij is rekening gehouden met het feit dat fotografie – de belangrijkste activiteit van Twentyten – vraagt om specifieke lichtval, of juist het vermijden ervan.
Fotografie vraagt als specifieke conditie voor de werkruimten ook simpelweg de aanwezigheid van elektriciteit: elke ruimte is daarom voorzien van krachtstroom. Zelfs in de parkeergarage kan worden gefotografeerd.
Daglicht
Het was een uitdaging om elke werkplek van daglicht te voorzien, vertelt Zweers. Doordat Studiogebouw A de laatste van acht kavels invulde, is het pand aan drie kanten ingesloten. Het architectenbureau heeft op verschillende manieren toch alle ruimten van daglicht kunnen voorzien.
Naast de loggia’s aan de voorzijde is er bijvoorbeeld de verzonken patio die in het hart van het gebouw de eerste en tweede verdieping van daglicht voorziet. De achterste ruimte van de eerste verdieping en de begane grond krijgen nog extra licht via een lichtstraat in het plafond aan de achterzijde. Door de extra hoge plint valt ook ruim daglicht op de begane grond aan de voorzijde.
Programma en indeling
In totaal biedt het pand 1.115 m
2
bedrijfsruimte, verdeeld over drie bouwlagen. Het gebouw beschikt over zes parkeerplaatsen, geschikt voor elektrische auto’s, en ruime parkeergelegenheid voor fietsers. Zowel de eerste als tweede verdieping omvatten een open keuken en flexibele werkplekken voor de werknemers en gasten.
Studiogebouw A bezit drie buitenruimten. De loggia op de eerste verdieping beslaat de halve gevelbreedte en op split level bevindt zich een patio. Op de tweede verdieping is de loggia doorgetrokken over de gehele breedte van de gevel.
Naast de houten trap in de kern van het gebouw bieden twee groene trappen een extra verbinding tussen de ruimten. De groene spiltrap verbindt de werkruimte op de eerste verdieping met de vergaderruimte op de begane grond. De patio is bereikbaar vanaf de groene steektrap op de eerste verdieping en direct bereikbaar vanaf tweede verdieping.
Trefwoorden
bedrijfsgebouw
cross laminated timber
atelier zweers
fotografiestudio
houtbouw
amstel business park
amsterdam
studiogebouw
Locatie
Best gelezen
1
Realisatie woongebouw Atlas I naast Essalammoskee in Rotterdam-Zuid gestart
woensdag, 10 december
2
Architecten tonen voorstellen voor woningbouw in tussenruimtes Wallengebied
donderdag, 11 december
3
Kollhoff & Pols realiseert 58 woningen in monumentale panden Den Haag
dinsdag, 9 december
4
Pixelgevel van MVRDV versterkt uitstraling modulaire woontorens in Singapore
maandag, 8 december
5
Gebouwen niet slopen, maar langzaam laten rijpen
donderdag, 11 december
Gerelateerde nieuwsberichten
Volledig houten constructie voor bedrijfsgebouw HoutWerk
9 juni 2020
EVA architecten ontwerpt demontabel houten kantoorpand
31 mei 2023
Campus Werkspoor in Utrecht krijgt tweede volledig houten werkgebouw
13 februari 2023
Studio Prototype ontwerpt nieuwbouw voor Dienst Vervoer en Ondersteuning
8 juni 2022
Duurzame gezinswoning gericht op het landschap
1 juli 2024
Kamp C voor duurzaamheid en bouwinnovatie heeft bijzonder circulair kantoorgebouw
30 mei 2022
Bedrijfsgebouw van Paul de Ruiter met herbruikbare en hergebruikte materialen
28 april 2022
Wubben.Chan ontwerpt hoofdkantoor SBG als archetypische schuren
15 maart 2023
Programma Pakhuis de Zwijger: De Houten Eeuw
22 augustus 2023
KOW ontwerpt bedrijfspand met onverwachte functiestapeling
29 maart 2021
Duurzaam en open bedrijfsgebouw van BDG Architecten
11 november 2020
MeesVisser ontwerpt transparant bedrijfsgebouw in Amsterdam
10 augustus 2020
Bedrijfspand met symbolische 'sheddaken'
29 augustus 2019
Bouwbedrijf en ontwikkelaar breidt kantoor uit met houten gebouw
7 november 2022
Binckhorst krijgt 36 meter hoog woongebouw in CLT
2 september 2024
Kinderdagverblijf met duurzaam karakter en natuurlijke uitstraling
13 februari
Een dansende toren van hout
14 december 2023
Samenwerking Staatsbosbeheer en Heijmans voor Hollands hout in woningbouw
9 januari 2024
Brandwerendste lijm bij CLT is minst gezond
2 december 2024
Alex de Rijke benoemd tot hoogleraar houtbouw aan TU Delft
3 november 2023
Volledig houten constructie voor bedrijfsgebouw HoutWerk
9 juni 2020
EVA architecten ontwerpt demontabel houten kantoorpand
31 mei 2023
Campus Werkspoor in Utrecht krijgt tweede volledig houten werkgebouw
13 februari 2023
Studio Prototype ontwerpt nieuwbouw voor Dienst Vervoer en Ondersteuning
8 juni 2022
Duurzame gezinswoning gericht op het landschap
1 juli 2024
Kamp C voor duurzaamheid en bouwinnovatie heeft bijzonder circulair kantoorgebouw
30 mei 2022
Bedrijfsgebouw van Paul de Ruiter met herbruikbare en hergebruikte materialen
28 april 2022
Wubben.Chan ontwerpt hoofdkantoor SBG als archetypische schuren
15 maart 2023
Programma Pakhuis de Zwijger: De Houten Eeuw
22 augustus 2023
KOW ontwerpt bedrijfspand met onverwachte functiestapeling
29 maart 2021
Duurzaam en open bedrijfsgebouw van BDG Architecten
11 november 2020
MeesVisser ontwerpt transparant bedrijfsgebouw in Amsterdam
10 augustus 2020
Bedrijfspand met symbolische 'sheddaken'
29 augustus 2019
Bouwbedrijf en ontwikkelaar breidt kantoor uit met houten gebouw
7 november 2022
Binckhorst krijgt 36 meter hoog woongebouw in CLT
2 september 2024
Kinderdagverblijf met duurzaam karakter en natuurlijke uitstraling
13 februari
Een dansende toren van hout
14 december 2023
Samenwerking Staatsbosbeheer en Heijmans voor Hollands hout in woningbouw
9 januari 2024
Brandwerendste lijm bij CLT is minst gezond
2 december 2024
Alex de Rijke benoemd tot hoogleraar houtbouw aan TU Delft
3 november 2023
Toon alles
Andere nieuwsberichten
Faculteit ITC Universiteit Twente onderscheiden met Abe Bonnema Architectuurprijs 2025
12 december, 5:30
Vrijdag ontving Civic Architects de prijs en het bijbehorend geldbedrag van 50.000 euro uit handen van Ed Nijpels, voorzitter van de ir. Abe Bonnema Stichting.
MVRDV werkt aan renovatie boeddhistisch klooster in Franse Dordogne
12 december, 11:37
Naar ontwerp van MVRDV en het plaatselijke architectenbureau MoonWalkLocal ondergaat het boeddhistische klooster Plum Village in de Franse Dordogne een grote renovatie.
Studio for New Realities ontwerpt twee woongebouwen in District U
12 december, 10:00
De transformatie van het voormalige Unilever-terrein in Vlaardingen gaat een nieuwe fase in nu gestart is met de bouw van de eerste woningbouwprojecten.
Wanden uit leemsteen verbinden woning met Limburgs landschap
12 december, 9:00
In de landelijke omgeving van Weert, in het noorden van Limburg, heeft De Nieuwe Context een woning ontworpen waar wanden uit leemsteenblokken de verbinding tussen binnen en buiten manifest maken.
RIVM: verbeterde luchtkwaliteit leidde tot afname sterfte
12 december, 12:27
Een verbeterde luchtkwaliteit heeft ervoor gezorgd dat er tussen 1995 en 2019 een kwart minder mensen zijn overleden na dagen met verhoogde concentraties van luchtverontreinigende stoffen.
Zuid-Holland: met dubbel agrarisch ruimtegebruik stroom voor 700.000 huizen
12 december, 11:06
De provincie heeft laten uitzoeken waar de combinatie van landbouw en zonnepanelen in theorie mogelijk is.
Miljarden extra nodig voor aanleg landelijk waterstofnetwerk
11 december, 3:13
Volgens de Algemene Rekenkamer zijn de verwachte opstartverliezen meer dan drie keer zo hoog als het beschikbare subsidiebedrag van 750 miljoen euro.
Brussel wil snellere vergunningen voor elektriciteitsprojecten
11 december, 1:39
De Europese Commissie wil dat elektriciteitsnetwerken van lidstaten beter op elkaar aansluiten.
Zeeland stopt samenwerking met aannemers over aanpak Zeelandbrug
10 december, 1:56
Volgens de provincie heeft de aannemerscombinatie een kostenraming gepresenteerd die fors boven het eerder vastgestelde budget van 5,5 miljoen euro ligt.
Verbreding Betuwelijn in Duitsland duurt nog minstens tien jaar
10 december, 12:30
De bedoeling is dat er in Duitsland meer dan zeventig kilometer spoor bijkomt, elf stations worden omgebouwd en 47 viaducten en bruggen worden aangepast.
Ga naar het nieuws-archief
Robert Muis
Redacteur
4
0
0
0
Voor een optimale gebruikservaring plaatst Architectenweb functionele cookies. Wat de verschillende cookies precies doen leggen we uit in een
overzicht
. Cookies van social media kun je optioneel
aanzetten
.
Akkoord
Instellingen
Annuleren
OK
Sluiten
Doorgaan
Inloggen
Maak een gratis persoonlijk account aan
Feedback
Feedback
Wij horen graag jouw feedback. Laat je reactie achter en eventueel jouw e-mail adres.
Reactie
Verstuur