Projecten
Producten
Bedrijven
Vacatures
Agenda
Awards
Podcasts
more_horiz
Videos
Magazine
Thema's
Favorieten
Profiel
Uitloggen
Nieuw
Populair
Toon alles
Architectenweb magazine #14
Architectenweb magazine #13
Publieke gebouwen
Architectenweb magazine #12
Kantoren
Architectenweb magazine #11
Scholen
Architectenweb magazine #10
Zorg
Architectenweb magazine #14
Architectenweb magazine #10
Zorg
Architectenweb magazine #12
Kantoren
Architectenweb magazine #13
Publieke gebouwen
Architectenweb magazine #6
Transformatie en Renovatie
Om direct naar je favorieten te kunnen gaan is het nodig om eerst in te loggen.
Nieuw
Architectenweb Awards 2025
Architectenweb Awards 2024
Architectenweb Awards 2023
Architectenweb Awards 2022
Architectenweb Awards 2021
Architectenweb Awards 2020
Architectenweb Awards 2019
Architectenweb Awards 2018
Om direct naar je favorieten te kunnen gaan is het nodig om eerst in te loggen.
Nieuw
Populair
Favorieten
Toon alles
Vakwerk Architecten
Nominatie voor de prijs voor Architect van het Jaar 2025
Sanne van Manen
Nominatie voor de prijs voor Architect van het Jaar 2025
KSA
Nominatie voor de prijs voor Architect van het Jaar 2025
KRFT
Nominatie voor de prijs voor Architect van het Jaar 2025
Joost Ector
Nominatie voor de prijs voor Architect van het Jaar 2025
Prijsuitreiking Architectenweb Awards 2024
Impressie van een feestelijke avond
Martens, Willems & Humblé Architecten
Nominatie voor de prijs voor Architect van het Jaar 2024
Uitreiking van Architectenweb Awards 2020
Impressie van de prijsuitreiking via Zoom
De Zwarte Hond
Nominatie voor de prijs voor Architect van het Jaar 2024
Avond met De Zwarte Hond
Symposium
Om direct naar je favorieten te kunnen gaan is het nodig om eerst in te loggen.
Nieuw
Populair
Categorieën
Favorieten
Toon alles
Brandpreventie Academy BV
Cay Circulaire Keukens
Circulaire keukens en pantry's
Studio Kirsten Reith
Interieurontwerp
Studio175
Interieuradvies in regio Utrecht
Orange Automatic Doors
Indoorwrap
De specialist in Keukenwrappen
Cay Circulaire Keukens
Circulaire keukens en pantry's
Studio Kirsten Reith
Interieurontwerp
Studio175
Interieuradvies in regio Utrecht
Interior & Co
Orange Automatic Doors
Indoorwrap
De specialist in Keukenwrappen
Architecten
Architectuur
Mobiliteit en infrastructuur
Stedenbouw en landschapsarchitectuur
Leveranciers
Gevels
Daken
Ramen en deuren
Trappen, liften en balustrades
Binnenwanden
Vloeren
Plafonds
Verlichting
Sanitair
Projectinrichting
Installaties
Constructies
Buitenruimte
Software
Adviseurs
Bestekschrijvers
Bouwmanagement
Installatie adviseurs E
Bouwfysica
Calculators
Installatie adviseurs G/W
Bouwkundig tekenwerk
Constructeurs
Lichtadviseurs
Adviseur beveiliging
Juristen
Intermediairs, Payrolling
Aannemers
Overig
Presentatie
Instellingen / onderwijs
Overig
Om direct naar je favorieten te kunnen gaan is het nodig om eerst in te loggen.
Nieuw
Populair
Favorieten
Toon alles
Gesprek met Stephan Sliepenbeek over hoogbouw in Amstel III
Gesprek met Ellen van Bueren over gebiedsontwikkeling en hoogbouw
Gesprek met Ma Yansong over ontwerpen die emotie oproepen
Gesprek met Paul de Ruiter over innovatieve en duurzame hoogbouw
Gesprek met Pi de Bruijn over zijn ontwerpen voor de Tweede Kamer toen en nu
Gesprek met Ellen van Bueren over gebiedsontwikkeling en hoogbouw
Gesprek met Oresti Sarafopoulos over het ontwerpen van een kantoorgebouw met bijna geen installaties
Gesprek met Stijn Steenbakkers over verdichting en hoogbouw in Eindhoven
Gesprek met Pi de Bruijn over zijn ontwerpen voor de Tweede Kamer toen en nu
Gesprek met Paul de Ruiter over innovatieve en duurzame hoogbouw
Om direct naar je favorieten te kunnen gaan is het nodig om eerst in te loggen.
Nieuw
Populair
Categorieën
Favorieten
Toon alles
Renovatieproject Ockenburghstraat
Aluminium kozijnen: de isolerende oplossing
Den Hartogh Basecamp
FÆnslet
Exclusieve wooneenheden
ASML Gebouw 3
Prinsenpark, Rotterdam
IVY, Amsterdam
IKC De Brug
Houthavens, Amsterdam
Architectuur
Woningbouw
Zorg
Hotels
Restaurants en café’s
Winkels
Sportgebouwen
Culturele gebouwen
Overheidsgebouwen
Scholen
Kantoren
Bedrijfsgebouwen
Paviljoens en kunst
Overig
Mobiliteit en infrastructuur
Trein- en metrostations
Luchthavens
Busstations
Parkeergarages
Fietsparkeren
Wegen
Bruggen
Water
Energie
Tankstations en laadstations
Waterzuivering en afvalverwerking
Overig
Stedenbouw en landschapsarchitectuur
Regionale visies
Gebiedsvisies
Plannen stedelijk weefsel
Amusementsparken en dierentuinen
Lichtontwerpen
Openbare ruimte
Pleinen
Parken
Tuinen
Speelplaatsen
Uitkijktorens
Overige (bijv. begraafplaatsen)
Om direct naar je favorieten te kunnen gaan is het nodig om eerst in te loggen.
Nieuw
Populair
Categorieën
Favorieten
Toon alles
Flux-totaalaanbod vraaggestuurde Renson WTW-ventilatie
Compacte wand- en plafondmontage voor alle debieten
Wie denkt er aan slopen tijdens bouwen?
Kies voor de toekomst, kies voor circulair isoleren!
StoTherm Wood: cementvrij gevelsysteem met houtvezelisolatie
Biobased gevelisolatie met natuurlijke prestaties
Lambda: sleutel tot betere isolatie en energie-efficiëntie
Rockfit en Rockvent: betere lambda-waarde, beter isolerend
SlimFix RenoPro
Waterkerende na-isolatie zonder koudebruggen
Digital Prints
Meer mogelijkheden in gekleurd staal
Element+ H-I
Hout - Aluminium Elementgevel
Vierkante vluchtroutearmaturen voor grote ruimtes
Zichtbare veiligheid van alle kanten
Schüco Zonweringsysteem Integralmaster in FWS
Bescherming tegen zon, verblinding en privacy – verborgen en volledig geïntegreerd
GROHE Cubeo: kranen voor elke badkamer
Stijlvol en duurzaam design voor jarenlang plezier
Gevels
Gevelbekleding
Vliesgevels
Zonwering buiten
Isolatie
Gevelconstructies
Signing
Overig
Daken
Dakafwerkingen
Dakisolatie
Dakconstructies
Dakranden, dakgoten en HWA's
Dakramen
Lichtkoepels
Lichtstraten
Schoorstenen
Overig
Dakluiken
Ramen en deuren
Raam- en deursystemen / kozijnen
Vliesgevels
Hang- en sluitwerk
Beveiliging en luiken
Dorpels en vensterbanken
Lateien
Roosters
Glas
Dakramen
Dakkoepels
Lichtstraten
Zonwering buiten
Zonwering binnen
Buitendeuren
Binnendeuren
Postvakken en brievenbussen
Overig
Dakluiken
Trappen, liften en balustrades
Trappen
Roltrappen
Liften
Balustrades en hekwerken
Galerijen
Binnenwanden
Binnenwanden
Wandafwerking
Vloeren
Constructieve vloeren
Verhoogde vloeren
Vloerafwerkingen
Overig
Plafonds
Tegels
Lineair
Grill
Open en roosters
Naadloos
Eilanden en baffles
Plafondafwerkingen
Ophangsystemen
Overig
Klimaatplafonds
Verlichting
Binnenverlichting
Buitenverlichting
Sanitair
Kranen en douchesets
Wastafels
Douchewanden en douchebakken
Baden
Waterclosets
Accessoires
Overig
Projectinrichting
Stoelen
Banken
Tafels
Kasten
Balies
Vrijstaande wanden
Keukens
Accessoires
Overig
Cabines
Interieurbeplanting
Stoffering
Installaties
Verwarming, koeling en ventilatie
Elektrotechnische installaties
Schakelmateriaal
Domotica
Deurcommunicatie
Beveiliging
Liften
Onderhoudsinstallaties
Overig
Brandbeveiliging
Constructies
Draagconstructies
Funderingen en kelders
Overig
Brandbeveiliging
Buitenruimte
Bestratingen en verhardingen
Afwateringen
Terreinafscheidingen en geluidsschermen
Buitenmeubilair
Fietsparkeren
Terrassen
Terrasoverkappingen
Bruggen
Accessoires
Overig
Beplanting
Sport- en speeltoestellen
Software
Tekenen 2D
Modelleren 3D / BIM
Visualisatie / rendering
Parametrisch ontwerpen
Bouwfysica
Draagconstructie
Overig
Virtual Reality
Cloudoplossingen
Om direct naar je favorieten te kunnen gaan is het nodig om eerst in te loggen.
Nieuw
Populair
Favorieten
Toon alles
LIAG over duurzaamheid centraal in project
Online
Zomerwandelingen Nieuwe Stad op Zondag 2025
Amsterdam
Prefab beurs - 7 t/m 9 oktober 2025
Brabanthallen 's-Hertogenbosch
Boekpresentatie en panelgesprek met Floor Milikows
Prins Hendrikkade 600, 1011 VX Amsterdam
Architects Table ’25: Lunch & Inspiratie in HAUT Amsterdam
ATAG LIVE – HAUT gebouw, Spaklerweg 10F, 1096 BA Amsterdam (tegenover metrostation Spaklerweg)
Architects Table ’25: Lunch & Inspiratie in HAUT Amsterdam
ATAG LIVE – HAUT gebouw, Spaklerweg 10F, 1096 BA Amsterdam (tegenover metrostation Spaklerweg)
Ontdek het seminarieprogramma van Architect@Work Amsterdam
De Kromhouthal, Gedempt Hamerkanaal 231, Amsterdam
LIAG over duurzaamheid centraal in project
Online
1.Lectures HouseEurope! Renovate, don’t speculate
Pakhuis de Zwijger
Carbon Stories: Architects taking sustainable initiatives
Keilepand Rotterdam
Om direct naar je favorieten te kunnen gaan is het nodig om eerst in te loggen.
Nieuw
Toon alles
Design
Duurzaamheid
Gevel
Infrastructuur
Interieur
Kantoren
Leisure
Openbare ruimte
Publieke gebouwen
Scholen
Transformatie en Renovatie
Woningbouw
Zorg
Om direct naar je favorieten te kunnen gaan is het nodig om eerst in te loggen.
Nieuw
Populair
Toon alles
Bouwkundig projectleider (per direct)
Revit Modelleur / bouwkundige (per direct)
BIM/REVIT-modelleur
Bureaumanager
Nederlandstalige projectleider
Medior Technisch Interieurtekenaar
Junior Architect gezocht!
wUrck zoekt junior Architect
Project Architect
Shift zoekt medior/senior architect
Assistent Ontwerper & vakidioot
Architect
Om direct naar je favorieten te kunnen gaan is het nodig om eerst in te loggen.
Copyright: Wubben.Chan
Copyright: Wubben.Chan
Copyright: Wubben.Chan
Copyright: Wubben.Chan
Copyright: Wubben.Chan
Copyright: Wubben.Chan
Copyright: Wubben.Chan
Copyright: Wubben.Chan
Copyright: Wubben.Chan
Copyright: Wubben.Chan
Wubben.Chan ontwerpt hoofdkantoor SBG als archetypische schuren
15 maart 2023, 14:59
De Sportief Besteed Groep (SBG) wil een nieuw hoofdkantoor realiseren op het bedrijventerrein RijswijkBuiten in de gemeente Rijswijk. Architectenbureau
Wubben.Chan
ontwierp een gebouw dat oogt als twee tegen elkaar geplaatste archetypische schuren, voorzien van een transparante voorgevel.
Het beeldkwaliteitsplan voor kavel H7 van bedrijventerrein RijswijkBuiten schrijft voor dat de bebouwing bestaat uit orthogonaal geplaatste, rechthoekige volumes met de uitstraling van het ‘archetype schuur’. Voor opdrachtgever SBG heeft Wubben.Chan dan ook een langwerpig bedrijfsgebouw ontworpen met twee parallelle zadeldaken.
In de voor- en achtergevel heeft het architectenbureau de suggestie van twee afzonderlijke ‘schuren’ versterkt door de contouren van voor- en achtergevel te benadrukken met een ferm kader. Daarin is bovendien in het midden een knip gemaakt, zodat twee zuivere volumes ontstaan.
Gevarieerd gevelbeeld
In het ontwerp worden de zijkanten en het dak opgetrokken uit één materiaal, wat eenheid en rust creëert. De plint en het bovendeel van het gebouw vertonen een subtiel verschil in zowel de belijning in het gevelmateriaal als de gevelopeningen. De gevelopeningen volgen de gebruikelijke opzet van bedrijfsunits, met een toegangs- en een overhead-deur; deze opzet is in de ritmisch doorgezet in de gehele langsgevel.
Het gebouw biedt onderdak aan een kantoor en tien bedrijfsunits. Het kantoor is gesitueerd aan de voorzijde, achter een volglazen gevel. De SBG organiseert activiteiten voor jong en oud met het oog op een gezonde en actieve samenleving. Het ontwerp beoogt de energie van de onderneming uit te stralen. De transparante voorgevel maakt haar expliciet zichtbaar.
Open
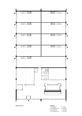
SBG bestaat uit verschillende werkmaatschappijen, die wel als e´e´n familie samenwerken, vertelt Wubben.Chan. In het nieuwe hoofdkantoor krijgen alle werkmaatschappijen een plek. Door op de begane grond de gezamenlijke functies te plaatsen, brengt het architectenbureau de ‘familieleden’ hier samen.
Zo biedt de begane grond een ruime entree met een multifunctionele tribunetrap. Deze ruimte kan ook als kantine en informele overleg- en ontmoetingsplek fungeren. Daarnaast bevinden zich op de begane grond een grote vergaderzaal en een sportruimte.
Op de verdiepingen liggen voornamelijk de kantoren, die afwisselend als open werklandschappen en traditionele kantoren met vergaderplekken zijn ingericht. Op de tweede verdieping bevindt zich in een tussenlid een rustruimte met uitzicht over het gebied.
Groen bedrijventerrein
De ambitie voor het pand van SBG is een energie-efficie¨nt, gasloos en duurzaam ontwerp te realiseren, zegt Wubben.Chan. Dat past in de doelstellingen van het bedrijventerrein als geheel. De bedrijfslocatie RijswijkBuiten ligt aan de rand van Parkrijk, een deelgebied van de grotere nieuwbouwwijk RijswijkBuiten. Het bedrijventerrein is bedoeld voor duurzame, toekomstgerichte en innovatieve ondernemingen.
Het ontwerp van het terrein zet in op een verbetering van de biodiversiteit binnen het gebied. Er wordt gestreefd naar zoveel mogelijk groen door veel bomen, hagen en onverharde parkeerplekken. Aan de waterzijde zijn uittreedplaatsen ten behoeve van dieren en de beschoeiing is maximaal 10 cm boven waterpeil.
Om vleermuizen en andere nachtdieren niet te storen is er alleen terreinverlichting waar dat acht noodzakelijk is. Hekwerken op het terrein hebben openingen van minimaal 20x20 cm, zodat dieren hier makkelijk doorheen kunnen. De overdekte fietsenstalling heeft een begroeide gevel en een groendak.
Trefwoorden
kantoorgebouw
kantoor
duurzaamheid
wubben.chan
schuur
bedrijfsgebouw
rijswijk
rijswijkbuiten
bedrijventerrein
Locatie
Best gelezen
1
Na renovatie en verduurzaming heeft Aquarium van Artis zijn helderheid terug
donderdag, 25 september
2
Rapport: rijke Amsterdammers leven steeds vaker apart van rest
dinsdag, 30 september
3
Kabinet wil wijken erbij op 127 plekken in Nederland
maandag, 29 september
4
Architectenweb symposium: klein maar fijn wonen?
donderdag, 2 oktober
5
Leiden wil verhoogd busstation naast treinperrons centraal station
dinsdag, 30 september
Gerelateerde nieuwsberichten
Wubben.Chan ontwerpt woningbouwproject voor ‘s-Gravenzande
5 oktober 2022
Wubben.Chan ontwerpt woongebouw nabij Marconiplein
29 november 2023
Gemeente Rijswijk teruggekeerd in oude stadhuis
2 januari 2024
Robuust gebouwenensemble markeert entree tot woonbuurt in RijswijkBuiten
26 augustus 2024
Gemeente Rijswijk laat zelf woningen bouwen voor middeninkomens
28 juni 2021
Anterieure overeenkomst getekend voor UrbanParks in Rijswijk
5 januari 2024
Bouw De Koploper RijswijkBuiten van start
14 april 2021
Muurbloem ontwerpt kleurrijk kantoorinterieur voor Enginia
20 april 2023
Energieleverende woning heeft sterke relatie met tuin
24 januari 2020
Studioninedots en BOOM Landscape maken ontwerp At The Park Rijswijk
8 september 2022
Versteend plein bij winkelcentrum Rijswijk omgetoverd tot stadspark
22 juli 2022
Barcode Architects toont definitief ontwerp The Orchard II voor Rijswijk
11 januari 2022
Ruimtelijk en licht studiogebouw uit CLT
13 juni 2023
Voormalig belastingkantoor Rijswijk getransformeerd tot woongebouw
21 juli 2021
Appartementencomplex De Colijn verenigt verschillende karakters
14 juni 2021
'Geworteld wonen' in cpo-project Rijswijk
27 maart 2015
Studioninedots presenteert definitief ontwerp At the Park in Rijswijk
19 maart 2024
Beeldkwaliteitsplan voor grootschalige Flora Campus Westland vastgesteld
27 mei
Wubben.Chan ontwerpt woningbouwproject voor ‘s-Gravenzande
5 oktober 2022
Wubben.Chan ontwerpt woongebouw nabij Marconiplein
29 november 2023
Gemeente Rijswijk teruggekeerd in oude stadhuis
2 januari 2024
Robuust gebouwenensemble markeert entree tot woonbuurt in RijswijkBuiten
26 augustus 2024
Gemeente Rijswijk laat zelf woningen bouwen voor middeninkomens
28 juni 2021
Anterieure overeenkomst getekend voor UrbanParks in Rijswijk
5 januari 2024
Bouw De Koploper RijswijkBuiten van start
14 april 2021
Muurbloem ontwerpt kleurrijk kantoorinterieur voor Enginia
20 april 2023
Energieleverende woning heeft sterke relatie met tuin
24 januari 2020
Studioninedots en BOOM Landscape maken ontwerp At The Park Rijswijk
8 september 2022
Versteend plein bij winkelcentrum Rijswijk omgetoverd tot stadspark
22 juli 2022
Barcode Architects toont definitief ontwerp The Orchard II voor Rijswijk
11 januari 2022
Ruimtelijk en licht studiogebouw uit CLT
13 juni 2023
Voormalig belastingkantoor Rijswijk getransformeerd tot woongebouw
21 juli 2021
Appartementencomplex De Colijn verenigt verschillende karakters
14 juni 2021
'Geworteld wonen' in cpo-project Rijswijk
27 maart 2015
Studioninedots presenteert definitief ontwerp At the Park in Rijswijk
19 maart 2024
Beeldkwaliteitsplan voor grootschalige Flora Campus Westland vastgesteld
27 mei
Toon alles
Gerelateerde bedrijven
Wubben.Chan architecten
Het bureau voor architectuur, engineering, innovatie en communicatie
Andere nieuwsberichten
Architectenweb symposium: klein maar fijn wonen?
32 minuten geleden
Woensdag 15 oktober 2025 organiseert Architectenweb samen met Hogeschool van Amsterdam, MORE Architecture, UFO Urbanism en Pakhuis de Zwijger een symposium rond de opkomst van grootschalige wooncomplexen met kleine woningen en gedeelde voorzieningen.
Atelier van Berlo en Ector Hoogstad Architecten breiden scholengemeenschap uit
1 uur geleden
In Ede hebben Atelier van Berlo en Ector Hoogstad Architecten een nieuw gebouw voor het Het Streek Lyceum ontworpen.
EGM architecten voltooit duurzame renovatie rijksmonument Moreelsepark
Gisteren, 13:20
De hoogwaardige renovatie van Utrechts kantoorpand brengt monumentale architectuur en Paris Proof-ambitie samen
Nudus en Proof of the Sum geselecteerd voor groot laboratoriumgebouw Groningen
Gisteren, 11:00
Een team met onder meer Nudus en Proof of the Sum is geselecteerd voor het ontwerp van het nieuwe Centraal Laboratorium voor Diagnostiek en Research (CLDR) op de Healthy Ageing Campus in Groningen.
Zuid-Holland wil in ‘oogstjaar’ 2026 plannen uitvoeren
Gisteren, 15:16
De provincie investeert onder meer in infrastructuur, woningbouw, natuur en versterking van kleine kernen.
Rijk schrijft aanbesteding uit voor nieuwe marinierskazerne
Gisteren, 14:27
Eind 2031 wil het Korps Mariniers vanuit zijn huidige kazerne in Doorn verhuizen naar een nieuw onderkomen op de bestaande Defensielocatie Kamp Nieuw-Milligen vlakbij Apeldoorn.
Landschapstriënnale 2026 strijkt neer in Arnhem
Gisteren, 11:57
Het thema van de komende editie van de manifestatie is ‘Op Waterbasis’.
Veelzijdig ontwerper Mathieu Bruls verzorgt 21e Peutz-lezing
30 september, 3:05
Bruls (1960) is een veelzijdig ontwerper, die naast gebouwen en stedenbouwkundige plannen onder meer interieurs, meubels en tentoonstellingen ontwerpt.
Rekenkamer betwijfelt of miljoenen voor Woningbouwimpuls nuttig waren
30 september, 12:03
Het is ‘twijfelachtig’ of honderden miljoenen euro's overheidsgeld hebben geleid tot meer woningen, schrijft de Rekenkamer.
Rapport: rijke Amsterdammers leven steeds vaker apart van rest
30 september, 9:44
Het wel of niet bezitten van een woning zorgt voor een steeds grotere welvaartskloof tussen Amsterdammers.
Ga naar het nieuws-archief
Robert Muis
Redacteur
0
0
0
0
Voor een optimale gebruikservaring plaatst Architectenweb functionele cookies. Wat de verschillende cookies precies doen leggen we uit in een
overzicht
. Cookies van social media kun je optioneel
aanzetten
.
Akkoord
Instellingen
Annuleren
OK
Sluiten
Doorgaan
Inloggen
Maak een gratis persoonlijk account aan
Feedback
Feedback
Wij horen graag jouw feedback. Laat je reactie achter en eventueel jouw e-mail adres.
Reactie
Verstuur