Projecten
Producten
Bedrijven
Vacatures
Agenda
Awards
Podcasts
more_horiz
Videos
Magazine
Thema's
Favorieten
Profiel
Uitloggen
Abonneer je nu op onze nieuwsbrieven!
Abonneren
Nee, bedankt
Ja, denk met me mee rond de
materialisering van mijn project
Copyright: Robertino Nikolic
Copyright: Robertino Nikolic
Copyright: Robertino Nikolic
Copyright: Robertino Nikolic
Copyright: Robertino Nikolic
Copyright: Robertino Nikolic
Copyright: Robertino Nikolic
Copyright: Robertino Nikolic
Copyright: Robertino Nikolic
Copyright: Robertino Nikolic
Copyright: Robertino Nikolic
Copyright: Robertino Nikolic
Copyright: Robertino Nikolic
Copyright: Robertino Nikolic
Copyright: Robertino Nikolic
Copyright: Robertino Nikolic
Copyright: Robertino Nikolic
Copyright: Robertino Nikolic
Copyright: Robertino Nikolic
Copyright: Robertino Nikolic
Copyright: Robertino Nikolic
Copyright: Robertino Nikolic
Copyright: Robertino Nikolic
Copyright: studio Prototype
Copyright: studio Prototype
Van boven- en benedenhuis naar een architectenwoning
12 oktober 2021, 17:51
Dat het voor gezinnen steeds moeilijker wordt om in de huidige Amsterdamse woningmarkt een huis te vinden, ondervond architect Jeroen Spee aan den lijve. Toen hij de kans kreeg zijn benedenwoning samen te voegen met de bovengelegen woning, creëerde hij voor zijn gezin een bijzonder huis “met trekjes van een stadsvilla”, aldus de architect.
Jeroen Spee, architect en oprichter van
studio Prototype
, bewoont met zijn gezin als eigenaar een huis op de begane grond in de Hugo de Grootbuurt. De woning dateert uit het begin van de 20
e
eeuw; ze maakt deel uit van een traditioneel, gesloten bouwblok met een riante groene oase als binnentuin, vertelt Spee.
Als de bovenbuurman wil verhuizen weet Spee hem te overtuigen de woning niet per inschrijving te verkopen, maar direct aan de familie. Een samenvoegingsvergunning is geen probleem; de gemeente Amsterdam stimuleert initiatieven als deze om gezinnen in de stad te houden.
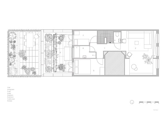
Sequentie van ruimten
Aan de tuinzijde is extra woonruimte gecreëerd, waarna de architect het huis heeft opgedeeld volgens het bekende principe van een voor- en achterhuis. Een ruimtelijk trappenhuis ligt centraal als donkere kern en versterkt het principe.
Door deze indeling ontstaat een prettige sequentie van ruimten en ervaren de bewoners de overgangen van licht naar donker en van donker naar licht, legt Spee uit. De ervaring van licht wordt aan de voorzijde van het huis nog eens vergroot door de realisatie van een smalle vide, die bovendien het voormalige beneden- en bovenhuis visueel verbindt.
De uitbreiding aan de binnentuin oogt zwaar en massief, zegt Spee. Drie functionele zuilen in baksteen maken de overgang tussen binnen en buiten duidelijk voelbaar. Het baksteen van de uitbreiding loopt door in het interieur, waar het wordt gecombineerd met lichte materialen zoals hout en verschillende bijzondere vormen van stucwerk.
Tijdloos
Spee heeft met het oog op duurzaamheid maatregelen getroffen als lage-temperatuurverwarming en –koeling, hoogwaardige isolatie en een waterpomp. Duurzaamheid ligt echter ook in de keuze voor tijdloze materialen die op mooie wijze verouderen en die een volgende bewoner zal willen behouden, aldus de architect.
Als voorbeeld noemt hij de grijze terrazzovloer, die vanuit de oorspronkelijke entree uit 1910 is doorgetrokken over de gehele begane grond. Het nieuw ontworpen trappenhuis doet volgens Spee aan alsof het altijd onderdeel van de woning is geweest. Op het dak van de uitbreiding heeft de familie een kruidentuin.
In het interieur zijn binnen de leefruimten aangename verblijfsplekken gecreëerd. Het fijnste plekje van het huis, aldus Spee, is het betonnen bankje aan de binnentuin. Met de geopende vensters komt het groen in huis, hebben de kinderen een speelbankje en kunnen de ouders zitten op de grens van binnen en buiten.
Trefwoorden
samenvoeging
transformatie
jeroen spee
studio prototype
amsterdam
interieur
woning
architectenwoning
Best gelezen
1
Luxe appartementengebouw naast klooster Etten-Leur door Studio AAAN klaar
donderdag, 19 maart
2
BureauVanEig verbetert uitstraling Haagse rijtjeswoningen bij verduurzaming
dinsdag, 17 maart
3
Houten Stelthuis van Woonpioniers is aardbevings- en klimaatbestendig
woensdag, 18 maart
4
De nieuwe kleren van de keizer
dinsdag, 17 maart
5
Landschappelijk ontworpen buurt in Vinex-wijk Schuytgraaf voltooid
woensdag, 18 maart
Gerelateerde nieuwsberichten
Een bescheiden maar uitgesproken villa van studio Prototype
28 februari 2023
Architect verbouwt eigen woning als continu werk in uitvoering
16 augustus 2023
Studio Prototype ontwerpt nieuwbouw voor Dienst Vervoer en Ondersteuning
8 juni 2022
Een woonhuis waaraan de tijd en natuurprocessen afleesbaar mogen zijn
14 december 2021
Woonbuurt in het groen door studio Prototype
2 maart 2023
Studio Modijefsky geeft traditioneel dijkhuis eigentijdse accenten
31 mei 2022
Blog – Function Junction op een eiland bij Vancouver
16 november 2022
Ingetogen ontmoetingsruimte voor advocatenkantoor
17 juli 2023
Nieuw justitieel complex in Zaanstad naar ontwerp van Studio Prototype voltooid
30 april 2025
Blog – Huizenruil in serie
9 november 2022
Multifunctioneel en fris groen interieur voor Rijkskantoor B73 door Studio Prototype en Zenber Architecten
14 mei 2025
Een efficiënte en modulaire woonmachine in de duinen
2 januari 2024
Studio Prototype ontwerpt kantoorgebouw in zakendistrict Schiphol
26 augustus 2020
Interieur advocatenkantoor biedt een sequentie van sferen
21 april 2020
The Vital House: tijdelijke zorgcentra voor virusuitbraken
25 maart 2020
Moderne kadewoning met serene sfeer
5 september 2019
Amstellofts van Studio Prototype hebben heldere gevelritmiek
15 juli 2019
Woonhuis Vught uitgebreid met 'tiny office'-paviljoen
27 februari 2018
Villa Schoorl is een schakeling van volumes
3 maart 2016
Studio Prototype presenteert House W
24 november 2014
Kantoor van PUUR geïnspireerd op Arsenale en soberheid
19 oktober 2021
Nederlandse architect ontwerpt Italiaans appartement met kalm karakter
2 maart 2023
Een bescheiden maar uitgesproken villa van studio Prototype
28 februari 2023
Architect verbouwt eigen woning als continu werk in uitvoering
16 augustus 2023
Studio Prototype ontwerpt nieuwbouw voor Dienst Vervoer en Ondersteuning
8 juni 2022
Een woonhuis waaraan de tijd en natuurprocessen afleesbaar mogen zijn
14 december 2021
Woonbuurt in het groen door studio Prototype
2 maart 2023
Studio Modijefsky geeft traditioneel dijkhuis eigentijdse accenten
31 mei 2022
Blog – Function Junction op een eiland bij Vancouver
16 november 2022
Ingetogen ontmoetingsruimte voor advocatenkantoor
17 juli 2023
Nieuw justitieel complex in Zaanstad naar ontwerp van Studio Prototype voltooid
30 april 2025
Blog – Huizenruil in serie
9 november 2022
Multifunctioneel en fris groen interieur voor Rijkskantoor B73 door Studio Prototype en Zenber Architecten
14 mei 2025
Een efficiënte en modulaire woonmachine in de duinen
2 januari 2024
Studio Prototype ontwerpt kantoorgebouw in zakendistrict Schiphol
26 augustus 2020
Interieur advocatenkantoor biedt een sequentie van sferen
21 april 2020
The Vital House: tijdelijke zorgcentra voor virusuitbraken
25 maart 2020
Moderne kadewoning met serene sfeer
5 september 2019
Amstellofts van Studio Prototype hebben heldere gevelritmiek
15 juli 2019
Woonhuis Vught uitgebreid met 'tiny office'-paviljoen
27 februari 2018
Villa Schoorl is een schakeling van volumes
3 maart 2016
Studio Prototype presenteert House W
24 november 2014
Kantoor van PUUR geïnspireerd op Arsenale en soberheid
19 oktober 2021
Nederlandse architect ontwerpt Italiaans appartement met kalm karakter
2 maart 2023
Toon alles
Andere nieuwsberichten
PSV presenteert plannen voor uitbreiding Philips Stadion
Gisteren, 15:37
De Eindhovense club wil de capaciteit van zijn onderkomen opschroeven met maximaal 25.000 bezoekers. Om dit te bewerkstelligen, komt er een nieuwe schil rond het stadion waarin een derde ring is opgenomen.
Rijkswaterstaat staakt renovatie markante houten Krùsrak-brug in Sneek
Gisteren, 11:32
Tijdens de renovatie werd duidelijk dat de constructieve veiligheid van de brug niet langer kan worden verzekerd, laat RWS weten. De uit 2008 stammende Krúsrak-brug over de rijksweg 7 is ontworpen door Onix en Archterbosch Architecten.
KAAN Architecten en De Zwarte Hond winnen tender voor Area 19 TU Eindhoven
Gisteren, 10:35
De opdracht omvat het ontwerp van een nieuw onderzoeks- en onderwijsgebouw en de stedenbouwkundige ontwikkeling van een nieuw campusgebied.
Projecten gezocht voor vijfde Adriaan Dessingprijs
19 maart, 2:42
De tweejaarlijkse architectuurprijs vestigt de aandacht op bijzondere, gerealiseerde plannen in de Zuid-Hollandse gemeenten Westland en Midden-Delfland. Het kan gaan om nieuwbouw, restauratie of landschappelijke projecten.
Friesland brengt duizenden karakteristieke boerderijen in kaart
Gisteren, 14:16
Door alle informatie over de voor het landschap kenmerkende gebouwen op één plek te brengen, moet het makkelijker worden om ze te behouden.
ING: bijna de helft van de huiseigenaren stelt verduurzaming uit
Gisteren, 12:18
De meeste mensen vinden dat de overheid te weinig doet om dit te stimuleren.
Rekenkamer kraakt resultaten EU-innovatiefonds voor verduurzaming
Gisteren, 09:25
Het Innovatiefonds van de Europese Unie levert veel minder resultaat op dan verwacht op het gebied van verduurzaming en innovatie.
Provincie schrapt beoogde locaties windturbines in Groene Hart
19 maart, 1:35
De provincie had twaalf plekken op het oog, maar dat leidde tot maatschappelijk en politiek verzet.
Staten Utrecht willen netcongestie versneld aanpakken
19 maart, 9:44
De fracties wezen op de noodzaak van het zo snel mogelijk realiseren van een hoogspanningsstation dat essentieel is voor het opsplitsen van het elektriciteitsnetwerk tussen de Flevopolder, Gelderland en Utrecht.
Rotterdam wil woningbouw versnellen met pilot ‘Ontwikkelaar aan Zet’
18 maart, 4:33
De gemeente Rotterdam start een pilot waarbij projectontwikkelaars een grotere rol krijgen bij de voorbereiding van woningbouwprojecten.
Ga naar het nieuws-archief
Robert Muis
Redacteur
6
0
0
0
Voor een optimale gebruikservaring plaatst Architectenweb functionele cookies. Wat de verschillende cookies precies doen leggen we uit in een
overzicht
. Cookies van social media kun je optioneel
aanzetten
.
Akkoord
Instellingen
Annuleren
OK
Sluiten
Doorgaan
Inloggen
Maak een gratis persoonlijk account aan
Feedback
Feedback
Wij horen graag jouw feedback. Laat je reactie achter en eventueel jouw e-mail adres.
Reactie
Verstuur