Projecten
Producten
Bedrijven
Vacatures
Agenda
Awards
Podcasts
more_horiz
Videos
Magazine
Thema's
Favorieten
Profiel
Uitloggen
Copyright: grafie Jeroen Musch
Copyright: grafie Jeroen Musch
Copyright: grafie Jeroen Musch
Copyright: grafie Jeroen Musch
Copyright: grafie Jeroen Musch
Copyright: grafie Jeroen Musch
Copyright: grafie Jeroen Musch
Copyright: grafie Jeroen Musch
Copyright: grafie Jeroen Musch
Copyright: grafie Jeroen Musch
Copyright: grafie Jeroen Musch
Copyright: grafie Jeroen Musch
Copyright: grafie Jeroen Musch
Copyright: grafie Jeroen Musch
Copyright: Studio Prototype
Copyright: Studio Prototype
Copyright: Studio Prototype
Copyright: Studio Prototype
Copyright: Studio Prototype
Copyright: Studio Prototype
Studio Prototype presenteert House W
24 november 2014, 16:28
Studio Prototype
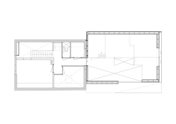
heeft een woonhuis in het Gelderse Duiven gerenoveerd en uitgebreid met nieuwbouw. Dankzij zelfbouw en een creatieve manier van aanbesteden heeft het bureau voor de derde generatie van een familie tegen een beperkte bouwsom architectonische kwaliteit weten te leveren.
Het nieuwbouwvolume van House W is versprongen ten opzichte van het bestaande woning en fungeert aan de straatzijde als een gesloten object, dat contrasteert met het oude woonhuis. Aan de tuinzijde opent de woningen zich door middel van een royale L-vormige veranda Een groot venster, voorzien van twee openschuivende puien zorgt voor het contact met de diepe tuin.
Als onderdeel van de kapvorm is de schoorsteen opnieuw geïnterpreteerd en zijn zowel de lichtkoker als een daklicht geïntegreerd.
Complete update
Door een aantal functionele ingrepen in het bestaande woonhuis heeft het woonhuis een complete
update
gekregen en vloeit het functioneel over in de nieuwbouw. In het bestaande gedeelte bevindt zich de keuken en het entreegedeelte. In het nieuwe volume bevindt zich het leef- en woongedeelte.
Het woongedeelte staat in directe verbinding met de tuin door de veranda. Op de eerste verdieping bevinden zich de slaapkamers en de badkamer. Deze ruimten staan in direct contact met het woongedeelte via de vide.
In de woning is door diverse ingrepen getracht om het daglicht maximaal naar binnen te halen. De binnenruimten zijn ruimtelijk opgezet rondom een vide. De vide koppelt de begane grond en verdieping, het daglicht moet zorgen voor een optimale beleving van de geboden sculpturale ruimtelijkheid.
Dankzij de verspringing van de twee hoofdvolumes wordt een gekaderd uitzicht geboden naar de straatzijde. De L-vormige veranda in combinatie met grote schuivende glazen vensters zorgt dat het contact met de diepe tuin wordt versterkt.
Houten bekleding
Het gevelconcept van House W bestaat uit diagonale richtingen, wat is vertaald naar een houten bekleding bestaande uit western red cedar-latten. De afmetingen van de latten zijn zo fijn mogelijk gehouden, in contrast met de zware baksteen van het bestaande woonhuis. Aluminium profielen zijn ingezet om subtiele overgangen in materiaal en ruimte te krijgen.
Het diagonale patroon wordt op verschillende strategische posities geopend en werken als privacyschermen, meldt Studio Prototype.
Bouwmeesterschap
Om in de uitvoering de kwaliteit van de bijzondere detaillering te kunnen garanderen, is niet uitgegaan van een traditionele aanbesteding met een hoofdaannemer maar heeft de architect de verantwoordelijkheid genomen om vanuit bouwmeesterschap verschillende uitvoeringspartijen en leveranciers te contracteren.
Daarnaast is het woonhuis deels een zelfbouwproject, de bewoners hebben aan de binnenzijde van de woning het project in samenspraak met de architect verder afgerond. Op die manier heeft de opdrachtgever betere kwaliteit tegen een veel lagere bouwsom gekregen, besluit Studio Prototype.
Trefwoorden
studio prototype
duiven
woning
Best gelezen
1
Het streven naar nieuw is ouderwets
donderdag, 20 november
2
SAWA officieel geopend door Koningin Máxima
donderdag, 20 november
3
Space&Matter ontwerpt ingetogen houten paviljoen voor BSO in Zeist
vrijdag, 21 november
4
MoederscheimMoonen Architects ontwerpt eigen kantoor in historische vertrekhal Oranjelijn Rotterdam
woensdag, 19 november
5
Studioninedots deelt nieuwe beelden van project Spark op Smakkelaarsveld in Utrecht
maandag, 24 november
Gerelateerde nieuwsberichten
Een bescheiden maar uitgesproken villa van studio Prototype
28 februari 2023
Blog – Function Junction op een eiland bij Vancouver
16 november 2022
Blog – Huizenruil in serie
9 november 2022
Ingetogen ontmoetingsruimte voor advocatenkantoor
17 juli 2023
Nieuw justitieel complex in Zaanstad naar ontwerp van Studio Prototype voltooid
30 april
Multifunctioneel en fris groen interieur voor Rijkskantoor B73 door Studio Prototype en Zenber Architecten
14 mei
Sculpturale en open orthodontiepraktijk in Wijchen
7 december 2016
Studio Prototype ontwerpt paviljoen IJburg
25 juli 2011
Flexibele herontwikkeling St. Anna-terrein Venray
19 december 2012
Amstellofts van Studio Prototype hebben heldere gevelritmiek
15 juli 2019
Moderne kadewoning met serene sfeer
5 september 2019
Interieur advocatenkantoor biedt een sequentie van sferen
21 april 2020
Van boven- en benedenhuis naar een architectenwoning
12 oktober 2021
Een bescheiden maar uitgesproken villa van studio Prototype
28 februari 2023
Blog – Function Junction op een eiland bij Vancouver
16 november 2022
Blog – Huizenruil in serie
9 november 2022
Ingetogen ontmoetingsruimte voor advocatenkantoor
17 juli 2023
Nieuw justitieel complex in Zaanstad naar ontwerp van Studio Prototype voltooid
30 april
Multifunctioneel en fris groen interieur voor Rijkskantoor B73 door Studio Prototype en Zenber Architecten
14 mei
Sculpturale en open orthodontiepraktijk in Wijchen
7 december 2016
Studio Prototype ontwerpt paviljoen IJburg
25 juli 2011
Flexibele herontwikkeling St. Anna-terrein Venray
19 december 2012
Amstellofts van Studio Prototype hebben heldere gevelritmiek
15 juli 2019
Moderne kadewoning met serene sfeer
5 september 2019
Interieur advocatenkantoor biedt een sequentie van sferen
21 april 2020
Van boven- en benedenhuis naar een architectenwoning
12 oktober 2021
Toon alles
Andere nieuwsberichten
RxDOMI ontwikkelt modulaire, biobased mantelzorgwoning op basis van WikiHouse-systeem
Vandaag, 16:06
Met 3D-modules van 10 m2 kunnen kleinere en grote woonruimtes gerealiseerd worden. RxDOMI ontwikkelt en bouwt de modulaire mantelzorgwoning.
Open oproep: deel jullie ontwerp binnen de Merwedekanaalzone
Vandaag, 12:30
Half december willen we op Architectenweb.nl een overzichtsartikel van de verschillende ontwerpen publiceren en nemen jullie ontwerp daar dan graag in mee!
Stad Villingen-Schwenningen kiest VenhoevenCS en RKW Architektur voor nieuw Zentralbad
Vandaag, 12:00
VenhoevenCS heeft, in samenwerking met RKW Architektur +, de aanbesteding gewonnen voor het nieuwe Zentralbad in Villingen-Schwenningen, Duitsland.
Compacter schoolgebouw in Klein-Zundert maakt veel groener schoolplein mogelijk
Vandaag, 10:30
In Klein-Zundert, een dorp in Noord-Brabant, heeft een uitgestrekte, eenlaagse school plaats gemaakt voor een tweelaagse, duurzame school met houten aula als hart. Door de compactere opzet van de nieuwe school kon de omgeving ervan vergroend worden.
Kennisinstituut: reizen met auto, vliegtuig en e-bike in de lift
Vandaag, 12:56
Het wegverkeer, het aantal vliegtuigpassagiers, en het gebruik van de elektrische fiets zijn in 2024 gegroeid en naar verwachting zet die stijging door.
Amsterdam koppelt metrolijn 50 en 53 om capaciteit metronetwerk te verhogen
Vandaag, 10:00
Op het nieuwe netwerk kunnen de metro's vaker rijden: acht keer per uur overdag en tien keer per uur in de spits. Door de ontvlechting rijden er straks minder lijnen op hetzelfde spoor.
Gemeente Den Haag komt met meldpunt voor onveilige plekken
Gisteren, 12:11
De gemeente Den Haag heeft een meldpunt gecreëerd waar mensen melding kunnen maken van onveilige plekken. Experts bekijken de locaties vervolgens om vast te stellen welke maatregelen er nodig zijn om het gevoel van veiligheid te verbeteren.
Vervoersregio's Rotterdam, Den Haag en Amsterdam willen miljard extra voor OV
21 november, 11:29
Volgens burgemeester Jan van Zanen van Den Haag is 500 miljoen euro extra nodig "om niet achteruit te gaan door indexering en bezuinigingen". En nog eens 500 miljoen euro is nodig "om het OV mee te laten groeien met het aantal inwoners.
Mogelijke proef zelfrijdende pendelbussen tussen station Hoofddorp en Schiphol Trade Park
20 november, 2:15
De provincie Noord-Holland onderzoekt of het zelfrijdende pendelbussen zonder chauffeur kan laten rijden in de buurt van Schiphol. Als dit qua veiligheid en techniek haalbaar is, wil de provincie in 2027 een proef starten.
Fietsflat bij Amsterdam Centraal wordt na 25 jaar gesloopt
20 november, 1:45
Voor de door VMX Architects ontworpen fietsenstalling is geen nieuwe plek gevonden. Daarom wordt de 'fietsflat' nu gesloopt.
Ga naar het nieuws-archief
0
0
0
0
Voor een optimale gebruikservaring plaatst Architectenweb functionele cookies. Wat de verschillende cookies precies doen leggen we uit in een
overzicht
. Cookies van social media kun je optioneel
aanzetten
.
Akkoord
Instellingen
Annuleren
OK
Sluiten
Doorgaan
Inloggen
Maak een gratis persoonlijk account aan
Feedback
Feedback
Wij horen graag jouw feedback. Laat je reactie achter en eventueel jouw e-mail adres.
Reactie
Verstuur