Projecten
Producten
Bedrijven
Vacatures
Agenda
Awards
Podcasts
more_horiz
Videos
Magazine
Thema's
Favorieten
Profiel
Uitloggen
Abonneer je nu op onze nieuwsbrieven!
Abonneren
Nee, bedankt
Ja, denk met me mee rond de
materialisering van mijn project
Copyright: Jeroen Musch
Copyright: Jeroen Musch
Copyright: Jeroen Musch
Copyright: Jeroen Musch
Copyright: Jeroen Musch
Copyright: Jeroen Musch
Copyright: Jeroen Musch
Copyright: Jeroen Musch
Copyright: Jeroen Musch
Copyright: Jeroen Musch
Copyright: Jeroen Musch
Copyright: Jeroen Musch
Copyright: Jeroen Musch
Copyright: Jeroen Musch
Copyright: Jeroen Musch
Copyright: Jeroen Musch
Copyright: Jeroen Musch
Copyright: Jeroen Musch
Copyright: Jeroen Musch
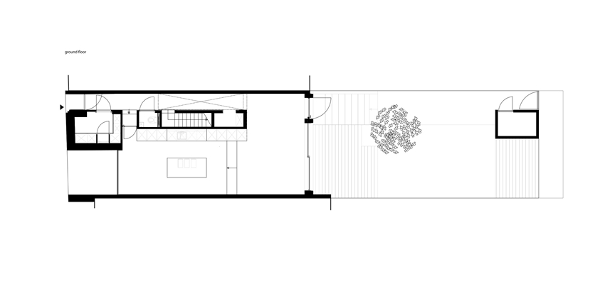
Quay house IJburg, begane grond
Copyright: studio Prototype
Quay house IJburg, eerste verdieping
Copyright: studio Prototype
Quay house IJburg, tweede verdieping
Copyright: studio Prototype
Quay house IJburg, derde verdieping
Copyright: studio Prototype
Quay house IJburg, doorsnede
Copyright: studio Prototype
Quay house IJburg, voorgevel
Copyright: studio Prototype
Quay house IJburg, achtergevel
Copyright: studio Prototype
Moderne kadewoning met serene sfeer
5 september 2019, 11:02
Voor een zelfbouwkavel op IJburg in Amsterdam heeft
studio Prototype
een woning met even ingetogen als uitgesproken woning ontworpen. Centraal in het ‘Quay House IJburg’ heeft het bureau een samenspel van massa en leegte gecreëerd.
Woonstichting De Key heeft op Rieteiland, een van de eilanden van IJburg, een zelfbouwstrook aan het water uitgegeven. De kade van het eiland toont een grote verscheidenheid aan typen vrije-kavelwoningen.
Studio Prototype heeft daaraan een ontwerp toegevoegd, dat het bureau zelf omschrijft als een moderne vertaling van een traditionele kadewoning. Voor een particuliere opdrachtgever tekende het bureau een woning met een oppervlak van 300 m2.
Leegte en massa
Een combinatie van leegte en massa vormt het hart van het huis. De leegte is door studio Prototype vormgegeven als een hoge, sobere en lichte ruimte. Deze vide zorgt voor ruimtelijke verbinding en interactie tussen de niveaus en de vertrekken van het huis.
De massa organiseert en verdeelt de woning in een voor- en achterhuis, leggen de architecten uit. Daarbij doorboort een trap de kern en rijgt de verschillende vertrekken, van woonkamers tot slaapkamers, op een speelse wijze aaneen.
Sereniteit
De spanning tussen de lichte vide en de massa van de kern met trap is voelbaar op verschillende plekken in de woning, aldus studio Prototype. Daaraan draagt de gecreëerde ingetogenheid door de gekozen kleuren en materialen bij.
Het basismateriaal is beton; overige materialen en afwerkingen sluiten daar in kleur, textuur en tactiliteit op aan. Dit resulteert in een serene sfeer, die met name in de centrale vide met dramatische lichtinval bijna sacraal aandoet.
Trefwoorden
rieteiland
particulier opdrachtgeverschap
woningbouw
amsterdam
zelfbouw
interieur
ijburg
studio prototype
Locatie
Best gelezen
1
Finalisten presenteren ontwerp voor Shift Landmark in Rotterdam
woensdag, 4 maart
2
Architect Oliver Thill op 55-jarige leeftijd overleden
donderdag, 5 maart
3
Nieuwe Hittekaart Woningmarkt 2026 van BPD toont aanhoudende woningdruk
dinsdag, 3 maart
4
Strijp-S krijgt woonbuurtje met karakteristieken voormalig Philips-terrein
maandag, 2 maart
5
Haagse gemeenteraad stemt in met bouw van 11.400 woningen in nieuw stadscentrum
maandag, 2 maart
Gerelateerde nieuwsberichten
Acht genomineerden voor Dutch Daylight Award 2020
19 oktober 2020
Een bescheiden maar uitgesproken villa van studio Prototype
28 februari 2023
Een benedenwoning met lange zichtlijnen
19 november 2020
Studio Prototype ontwerpt nieuwbouw voor Dienst Vervoer en Ondersteuning
8 juni 2022
Woonbuurt in het groen door studio Prototype
2 maart 2023
Een hedendaags herenhuis met klassieke kenmerken
21 september 2020
Een persoonlijke zoektocht naar een woning die én duurzaam is én ruimtelijke kwaliteit biedt én betaalbaar is
22 juli 2021
Blog – Function Junction op een eiland bij Vancouver
16 november 2022
Nieuw justitieel complex in Zaanstad naar ontwerp van Studio Prototype voltooid
30 april 2025
Blog – Huizenruil in serie
9 november 2022
Ingetogen ontmoetingsruimte voor advocatenkantoor
17 juli 2023
Multifunctioneel en fris groen interieur voor Rijkskantoor B73 door Studio Prototype en Zenber Architecten
14 mei 2025
Nominaties 'Woongebouw van het Jaar 2019' bekend
4 september 2019
Amstellofts van Studio Prototype hebben heldere gevelritmiek
15 juli 2019
Woonhuis Vught uitgebreid met 'tiny office'-paviljoen
27 februari 2018
Heijmans bouwt nieuw Pieter Baan Centrum
10 januari 2017
Sculpturale en open orthodontiepraktijk in Wijchen
7 december 2016
Architizer Awards voor vijf Nederlandse bureaus
19 april 2016
Villa Schoorl is een schakeling van volumes
3 maart 2016
Studio Prototype presenteert House W
24 november 2014
Open Kaart schept woonruimte door samenvoeging appartementen
24 oktober 2019
Clubgebouw met contrasterende volumes voor watersportvereniging
10 december 2019
The Vital House: tijdelijke zorgcentra voor virusuitbraken
25 maart 2020
Interieur advocatenkantoor biedt een sequentie van sferen
21 april 2020
Strak en modern interieur in historische hofwoning
21 april 2020
Architecten herontwerpen hun eigen rijtjeshuis
30 april 2020
Uitreiking Dutch Daylight Award 2020/21 op de langste dag
7 juni 2021
Van boven- en benedenhuis naar een architectenwoning
12 oktober 2021
Sociaal woongebouw met flexibele indeling voor IJburg
22 november 2021
Boskalis en De Vries & van de Wiel realiseren contouren Buiteneiland
23 maart 2023
Acht genomineerden voor Dutch Daylight Award 2020
19 oktober 2020
Een bescheiden maar uitgesproken villa van studio Prototype
28 februari 2023
Een benedenwoning met lange zichtlijnen
19 november 2020
Studio Prototype ontwerpt nieuwbouw voor Dienst Vervoer en Ondersteuning
8 juni 2022
Woonbuurt in het groen door studio Prototype
2 maart 2023
Een hedendaags herenhuis met klassieke kenmerken
21 september 2020
Een persoonlijke zoektocht naar een woning die én duurzaam is én ruimtelijke kwaliteit biedt én betaalbaar is
22 juli 2021
Blog – Function Junction op een eiland bij Vancouver
16 november 2022
Nieuw justitieel complex in Zaanstad naar ontwerp van Studio Prototype voltooid
30 april 2025
Blog – Huizenruil in serie
9 november 2022
Ingetogen ontmoetingsruimte voor advocatenkantoor
17 juli 2023
Multifunctioneel en fris groen interieur voor Rijkskantoor B73 door Studio Prototype en Zenber Architecten
14 mei 2025
Nominaties 'Woongebouw van het Jaar 2019' bekend
4 september 2019
Amstellofts van Studio Prototype hebben heldere gevelritmiek
15 juli 2019
Woonhuis Vught uitgebreid met 'tiny office'-paviljoen
27 februari 2018
Heijmans bouwt nieuw Pieter Baan Centrum
10 januari 2017
Sculpturale en open orthodontiepraktijk in Wijchen
7 december 2016
Architizer Awards voor vijf Nederlandse bureaus
19 april 2016
Villa Schoorl is een schakeling van volumes
3 maart 2016
Studio Prototype presenteert House W
24 november 2014
Open Kaart schept woonruimte door samenvoeging appartementen
24 oktober 2019
Clubgebouw met contrasterende volumes voor watersportvereniging
10 december 2019
The Vital House: tijdelijke zorgcentra voor virusuitbraken
25 maart 2020
Interieur advocatenkantoor biedt een sequentie van sferen
21 april 2020
Strak en modern interieur in historische hofwoning
21 april 2020
Architecten herontwerpen hun eigen rijtjeshuis
30 april 2020
Uitreiking Dutch Daylight Award 2020/21 op de langste dag
7 juni 2021
Van boven- en benedenhuis naar een architectenwoning
12 oktober 2021
Sociaal woongebouw met flexibele indeling voor IJburg
22 november 2021
Boskalis en De Vries & van de Wiel realiseren contouren Buiteneiland
23 maart 2023
Toon alles
Andere nieuwsberichten
André Kempe: ‘Het ging Oliver Thill om het geven van betekenis’
6 maart, 7:15
Agelopen maandag is architect Oliver Thill overleden. Zijn compagnon André Kempe gedenkt de man met wie hij al meer dan 35 jaar bevriend was en ruim een kwarteeuw geleden Atelier Kempe Thill oprichtte.
TconcepT transformeert voormalig warenhuis in Offenbach tot bibliotheek
6 maart, 3:54
Het 12.000 vierkante meter omvattende complex gaat in bredere zin fungeren als een cultuur- en educatiecentrum met vele functies. In 2027 moet Station Mitte, zoals het gebouw zijn volgende leven wordt genoemd, klaar zijn.
Werkstatt gaat verder zonder medeoprichter Niels Groeneveld
6 maart, 2:49
Medeoprichter van Werkstatt Niels Groeneveld stopt als partner bij het bureau, om zich te kunnen richten op zijn gezin en onderwijs. Floor Frings en Raoul Vleugels blijven het Eindhovense bureau leiden.
Binationaal ontwerpteam buigt zich over waterhuishouding Cartagena in Colombia
6 maart, 1:43
Een Colombiaans-Nederlands ontwerpteam met Felixx Landscape Architects & Planners en Witteveen+Bos moedigt Cartagena aan om haar relatie met water te heroverwegen en na te denken over een veerkrachtige toekomst
Kunstmuseum in Den Haag moet worden verbouwd
6 maart, 4:32
Daarvoor dient het museum in het Statenkwartier waarschijnlijk een tijd te sluiten.
Coen van Oostrom benoemd tot nieuwe voorzitter VNO-NCW
6 maart, 12:23
De oprichter van ontwikkelaar Edge volgt in die rol Ingrid Thijssen op, die deze week is begonnen als nieuwe bestuursvoorzitter van de TU Delft.
Rapport: lokaal klimaatbeleid schiet nog tekort
6 maart, 10:25
De makers van de zogeheten Toekomstmeter hebben het beleid van zeventig gemeenten doorgelicht.
Hardt Hyperloop failliet verklaard door rechtbank
5 maart, 11:37
Het Rotterdamse bedrijf was bezig met de ontwikkeling van technologie om mensen op hoge snelheid via capsules door een vacuümbuis te vervoeren.
Onderzoek: zeespiegel kustgebieden hoger dan in studies aangenomen
5 maart, 9:13
De zeespiegel aan de kust is in grote delen van de wereld waarschijnlijk hoger dan in veel wetenschappelijke studies wordt aangenomen.
Gelderland geeft voorrang aan vergunningen met minder stikstof
4 maart, 12:24
De plannen zijn onderdeel van het pakket maatregelen dat het Gelderse bestuur wil nemen om de vergunningverlening voor zaken als de woningbouw weer op gang te krijgen.
Ga naar het nieuws-archief
Robert Muis
Redacteur
0
0
0
0
Voor een optimale gebruikservaring plaatst Architectenweb functionele cookies. Wat de verschillende cookies precies doen leggen we uit in een
overzicht
. Cookies van social media kun je optioneel
aanzetten
.
Akkoord
Instellingen
Annuleren
OK
Sluiten
Doorgaan
Inloggen
Maak een gratis persoonlijk account aan
Feedback
Feedback
Wij horen graag jouw feedback. Laat je reactie achter en eventueel jouw e-mail adres.
Reactie
Verstuur