Projecten
Producten
Bedrijven
Vacatures
Agenda
Awards
Podcasts
more_horiz
Videos
Magazine
Favorieten
Profiel
Uitloggen
Abonneer je nu op onze nieuwsbrieven!
Abonneren
Nee, bedankt
Ja, denk met me mee rond de
materialisering van mijn project
Copyright: Jeroen Musch
Copyright: Jeroen Musch
Copyright: Jeroen Musch
Copyright: Jeroen Musch
Copyright: Jeroen Musch
Copyright: Jeroen Musch
Copyright: Jeroen Musch
Copyright: Jeroen Musch
Copyright: Studio Prototype
Copyright: Studio Prototype
Copyright: Studio Prototype
Copyright: Studio Prototype
Ontwerp voor het theepaviljoen, dat in april wordt opgeleverd
Copyright: Studio Prototype
Woonhuis Vught uitgebreid met 'tiny office'-paviljoen
27 februari 2018, 16:49
Ter uitbreiding van een villa in Vught heeft
Studio Prototype
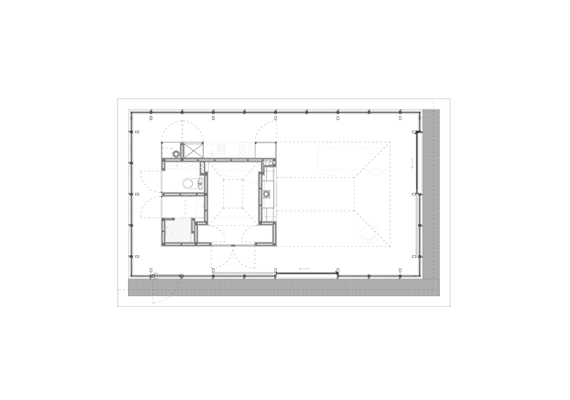
twee paviljoens ontworpen, elk met een eigen identiteit en materialisatie. Als eerste is nu een kantoorpaviljoen opgeleverd. Het gaat om een transparant volume met daarin een vrije ruimte.
De gevel van het ‘tiny office-paviljoen’ bestaat volledig uit glas, omgeven door kozijnen van Iroko-hout. Het schuine koperen dak is aan de binnenzijde uitgehold, waardoor de open ruimte op subtiele wijze in verschillende compartimenten met een eigen ruimtelijke kwaliteit is onderverdeeld.
Strategisch gepositioneerd in het paviljoen staat een voorzieningenblok, waarin dienende functies zoals een bedstee, pantry, toilet en open haard zijn opgenomen.
In april wordt een tweede, eveneens door Studio Prototype ontworpen theepaviljoen opgeleverd. Beide paviljoens zijn zo ontworpen dat ze subtiel aansluiten bij het huis, dat stamt uit de jaren dertig van de vorige eeuw en in de voor die tijd typerende rode bakstenen is opgetrokken.
Bij elkaar vormen de drie gebouwen een ensemble binnen een kavel met een parkachtige kwaliteit.
Trefwoorden
woonhuis
studio prototype
paviljoen
kantoor
vught
Best gelezen
1
Woontoren Front door Monadnock wint tiende Architectuurprijs Nijmegen
donderdag, 9 april
2
Spoorwegverleden inspireert ontwerp woonblok Wisselspoor 10 in Utrecht
woensdag, 8 april
3
Rotterdam mag woningen gaan bouwen aan de Parkhaven
woensdag, 8 april
4
SeARCH en Heutink Groep winnen tender voor woongebouw Sluisbuurt
vrijdag, 10 april
5
KOW wint met Marker Woods tender voor nieuwe wijk Eschmarkerveld
woensdag, 8 april
Gerelateerde nieuwsberichten
Amstellofts van Studio Prototype hebben heldere gevelritmiek
15 juli 2019
Spoor en station Vught gaan op de schop
10 juli 2023
Negenhonderd woningen op historisch zorglandgoed in Vught
19 december 2025
Een bescheiden maar uitgesproken villa van studio Prototype
28 februari 2023
Studio Prototype ontwerpt nieuwbouw voor Dienst Vervoer en Ondersteuning
8 juni 2022
Een woonhuis als origami met hout
29 mei 2019
Woonbuurt in het groen door studio Prototype
2 maart 2023
Blog – Function Junction op een eiland bij Vancouver
16 november 2022
Nieuw justitieel complex in Zaanstad naar ontwerp van Studio Prototype voltooid
30 april 2025
Blog – Huizenruil in serie
9 november 2022
Ingetogen ontmoetingsruimte voor advocatenkantoor
17 juli 2023
Minitopia ontwikkelt nieuwe locatie in Valkenswaard
3 mei 2024
Multifunctioneel en fris groen interieur voor Rijkskantoor B73 door Studio Prototype en Zenber Architecten
14 mei 2025
Van boven- en benedenhuis naar een architectenwoning
12 oktober 2021
Interieur advocatenkantoor biedt een sequentie van sferen
21 april 2020
The Vital House: tijdelijke zorgcentra voor virusuitbraken
25 maart 2020
Vughtse villa ontworpen als traditionele hoeve
12 november 2019
Een familiehuis uit lokale materialen
11 november 2019
Moderne kadewoning met serene sfeer
5 september 2019
Bibliotheek en 'ontmoetingscentrum' in voormalige kerk Vught
13 april 2018
Woonhuis met sterke relatie tussen binnen en buiten
22 maart 2018
Heijmans bouwt nieuw Pieter Baan Centrum
10 januari 2017
Amstellofts met knipoog naar pakhuizen
21 juni 2016
Villa Schoorl is een schakeling van volumes
3 maart 2016
Architectuur op het water
14 maart 2011
Amstellofts van Studio Prototype hebben heldere gevelritmiek
15 juli 2019
Spoor en station Vught gaan op de schop
10 juli 2023
Negenhonderd woningen op historisch zorglandgoed in Vught
19 december 2025
Een bescheiden maar uitgesproken villa van studio Prototype
28 februari 2023
Studio Prototype ontwerpt nieuwbouw voor Dienst Vervoer en Ondersteuning
8 juni 2022
Een woonhuis als origami met hout
29 mei 2019
Woonbuurt in het groen door studio Prototype
2 maart 2023
Blog – Function Junction op een eiland bij Vancouver
16 november 2022
Nieuw justitieel complex in Zaanstad naar ontwerp van Studio Prototype voltooid
30 april 2025
Blog – Huizenruil in serie
9 november 2022
Ingetogen ontmoetingsruimte voor advocatenkantoor
17 juli 2023
Minitopia ontwikkelt nieuwe locatie in Valkenswaard
3 mei 2024
Multifunctioneel en fris groen interieur voor Rijkskantoor B73 door Studio Prototype en Zenber Architecten
14 mei 2025
Van boven- en benedenhuis naar een architectenwoning
12 oktober 2021
Interieur advocatenkantoor biedt een sequentie van sferen
21 april 2020
The Vital House: tijdelijke zorgcentra voor virusuitbraken
25 maart 2020
Vughtse villa ontworpen als traditionele hoeve
12 november 2019
Een familiehuis uit lokale materialen
11 november 2019
Moderne kadewoning met serene sfeer
5 september 2019
Bibliotheek en 'ontmoetingscentrum' in voormalige kerk Vught
13 april 2018
Woonhuis met sterke relatie tussen binnen en buiten
22 maart 2018
Heijmans bouwt nieuw Pieter Baan Centrum
10 januari 2017
Amstellofts met knipoog naar pakhuizen
21 juni 2016
Villa Schoorl is een schakeling van volumes
3 maart 2016
Architectuur op het water
14 maart 2011
Toon alles
Andere nieuwsberichten
Architect Cees Dam op 93-jarige leeftijd overleden
Gisteren, 14:35
De oprichter van Dam & Partners architecten ontwierp onder meer de Stopera in Amsterdam (samen met Wilhelm Holzbauer), het stadhuis van Almere en het Huis van de Toekomst in Rosmalen.
Powerhouse Company wint aanbesteding voor verbouwing Vista College Maastricht
Gisteren, 12:16
Het onderkomen van de mbo-school wordt gerenoveerd en uitgebreid met een houten gebouwdeel, dat onder meer de nieuwe hoofdentree en twee atria bevat. Ook moet de nieuwbouw de bestaande gebouwen beter met elkaar verbinden.
Stedelijk Museum organiseert tentoonstelling over ontwerper Kho Liang Ie
Gisteren, 10:52
Met zijn ontwerpen voor meubels en interieurs van de jaren vijftig tot zijn dood halverwege de jaren zeventig nam Kho een centrale positie in binnen de Nederlandse vormgeving. Vermaard is onder meer zijn inrichting van luchthaven Schiphol.
Restauratie Atlasbeeld op dak Koninklijk Paleis Amsterdam afgerond
10 april, 3:38
Het beeld op het fronton van het paleis was in juli van zijn plek gehaald voor een uitgebreide onderhoudsbeurt in Antwerpen.
AFM: funderingsproblemen bij bijna 220.000 woningen
Gisteren, 13:25
De huizen van bijna een half miljoen woningeigenaren hebben een hoog risico op funderingsproblemen of een mogelijke kwetsbare fundering.
Oprichter omgevallen vastgoedconcern Evergrande bekent schuld
Gisteren, 09:17
Evergrande was ooit de grootste projectontwikkelaar van China, maar kwam in de problemen toen het zijn schulden niet kon terugbetalen.
Grote en kleine gemeenten balen van bouwregels Zuid-Holland
10 april, 4:31
Grote en kleine gemeenten in Zuid-Holland hebben hun zorgen geuit over nieuwe regels van de provincie, die volgens hen de woningbouw belemmeren.
Twijfels in Zuid-Holland over halen van doelen landelijk gebied
10 april, 12:18
De meeste partijen in de Zuid-Hollandse politiek hebben twijfels over de plannen die in zestien deelgebieden zijn gemaakt voor de aanpak van het landelijk gebied.
Huurprijzen stijgen harder dan koopwoningprijzen
10 april, 9:31
Volgens Huurwoningen.nl en Pararius moesten nieuwe huurders in het eerste kwartaal gemiddeld 21,12 euro per vierkante meter per maand neerleggen.
ABN AMRO: investeringen defensie vergroten druk op bouwcapaciteit
9 april, 12:29
Kazernes, opslagplaatsen en oefenterreinen dingen om dezelfde aannemers, ingenieurs en installateurs die ook nodig zijn voor bijvoorbeeld woningbouw.
Ga naar het nieuws-archief
Ronnie Weessies
Redacteur
2
0
0
0
Voor een optimale gebruikservaring plaatst Architectenweb functionele cookies. Wat de verschillende cookies precies doen leggen we uit in een
overzicht
. Cookies van social media kun je optioneel
aanzetten
.
Akkoord
Instellingen
Annuleren
OK
Sluiten
Doorgaan
Inloggen
Maak een gratis persoonlijk account aan
Feedback
Feedback
Wij horen graag jouw feedback. Laat je reactie achter en eventueel jouw e-mail adres.
Reactie
Verstuur