Projecten
Producten
Bedrijven
Vacatures
Agenda
Awards
Podcasts
more_horiz
Videos
Magazine
Thema's
Favorieten
Profiel
Uitloggen
Abonneer je nu op onze nieuwsbrieven!
Abonneren
Nee, bedankt
Ja, denk met me mee rond de
materialisering van mijn project
Copyright: Ossip van Duivenbode
Copyright: Ossip van Duivenbode
Copyright: Ossip van Duivenbode
Copyright: Ossip van Duivenbode
Copyright: Ossip van Duivenbode
Copyright: Ossip van Duivenbode
Copyright: Ossip van Duivenbode
Copyright: Ossip van Duivenbode
Copyright: Ossip van Duivenbode
Copyright: Ossip van Duivenbode
Copyright: Ossip van Duivenbode
Copyright: Ossip van Duivenbode
Copyright: Ossip van Duivenbode
Copyright: VenhoevenCS
Copyright: VenhoevenCS
Copyright: VenhoevenCS
Copyright: VenhoevenCS
Copyright: VenhoevenCS
Copyright: VenhoevenCS
Copyright: VenhoevenCS
Copyright: VenhoevenCS
Copyright: Ossip van Duivenbode
Copyright: Ossip van Duivenbode
VenhoevenCS stapelt sportzalen op campus Erasmus Universiteit
17 november 2022, 9:53
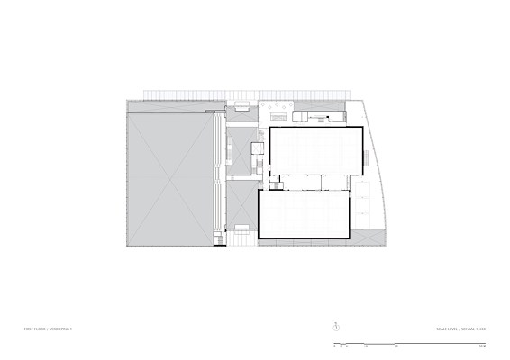
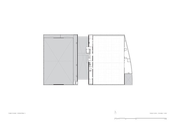
Aan de promenade van de Woudestein Campus van de Erasmus Universiteit in Rotterdam heeft
VenhoevenCS architecture+urbanism
een energieneutraal sportcomplex ontworpen. De stapeling van sportzalen, noodzakelijk vanwege de compacte locatie, is in een hoge binnenstraat leesbaar gemaakt voor de gebruikers. De plint is verlevendigd met een café en fitnessruimtes.
Eerst wat cijfers. Het sportcomplex heeft zes sportzalen, die deels ook nog te splitsen zijn, en deze zijn te gebruiken door 25 sportverenigingen voor de uitoefening van meer dan 50 sporten. De verwachting is dat zo’n 11.000 studenten, medewerkers en topsporters gebruik zullen maken van de accommodatie.
Het sportcomplex wordt doorsneden door een binnenstraat. “De binnenstraat is echt een fysieke en sociale verbinder; licht, hoog, met trappen en loopbruggen, veel groen en natuurlijk een bar. Vanaf hier moedigt zicht op sportende studenten echt aan tot meedoen”, vertelt Manfred Wansink, architect en partner van VenhoevenCS.
De sportzalen zijn aan weerszijden van deze binnenstraat opgestapeld, aan beide zijden in twee lagen. Aan de oostzijde zijn de zalen nog een extra verdieping opgetild, om eronder ruimte te maken voor de kleedruimtes, een café en fitnessruimte. Doordat de sportzalen boven de fitnessruimte eerst iets kleiner zijn en pas daarna wat hoger, kon zowel het café als de fitnessruimte twee verdiepingen beslaan.
In de binnenstraat en in verschillende andere publieke plekken in het sportcomplex zijn hergebruikte materialen ingezet. Metalen panelen van een voormalig detentiecentrum in Zeist fungeren er opnieuw als plafond. Zo’n 1.000 m2 aan houten vloerdelen van een paviljoen van de TU Eindhoven heeft hier een tweede leven gekregen als ‘gevel’ aan de binnenstraat.
Het sportcomplex is van meet af aan als energieneutraal complex ontworpen. Dat is anno 2022 cruciaal, stelt VenhoevenCS. Op het dak wordt zonne-energie en water opgevangen. In het gebouw is verder ingezet om minimaal gebruik van elektriciteit en water.
Het sportcomplex, dat de naam ‘Sports Building’ gekregen heeft, is gebouwd door Remmers Sport en Onderwijs en opende dit najaar zijn deuren.
Trefwoorden
sport
sportcomplex
campus
rotterdam
sportzalen
erasmus universiteit
venhoevencs
Best gelezen
1
Kantoorcomplex door Goof Spruit bij station Utrecht krijgt tweede leven als De Nieuwe Tuin
woensdag, 11 maart
2
Woongebouw door van Bergen Kolpa vormt nieuwe markering langs bocht Rotte
dinsdag, 10 maart
3
Gerenoveerd Valkhof Museum heropent deuren op 6 juni
dinsdag, 10 maart
4
Alkmaar selecteert VenhoevenCS en Wind voor nieuwbouw Hoornse Vaart
maandag, 9 maart
5
Zeven ontwerpteams aan de slag met herontwikkeling Bernhardkazerne Amersfoort
woensdag, 11 maart
Gerelateerde nieuwsberichten
VenhoevenCS heeft 'eigen' MFA Het Zand in Utrecht verbouwd
12 december 2023
Olympisch zwemstadion Parijs door VenhoevenCS en Ateliers 2/3/4/ geopend
8 april 2024
Winnend ontwerp van VenhoevenCS en Wind Design + Build voor zwembad in Apeldoorn Noord
6 mei 2024
Noodroep KNVB aan politiek om sportaccommodaties te redden
30 juni 2025
VenhoevenCS verrijkt campus TU/e met woongebouwen in moderne traditie
11 april 2025
Rotterdam kiest plan Amvest, Kavel Vastgoed en VenhoevenCS voor Schuttersveld
21 augustus 2024
VenhoevenCS tilt zwembadcomplex op om lokale bodem te ontzien
4 februari 2025
VenhoevenCS ontwerpt zwembad met houten draagconstructie dat zich letterlijk opent naar park
23 april 2025
Sporthal Bredius in Muiden gerealiseerd met circulaire visie
20 juli 2023
VenhoevenCS verwelkomt drie nieuwe partners en richt zich op collectief leiderschap van het bureau
4 februari
Team met VenhoevenCS en DS Landschapsarchitecten wint tender kavel 4a Sluisbuurt
18 juli 2022
Natuurinclusieve brug vormt entree voor Amstelkwartier
1 juni 2022
VenhoevenCS presenteert masterplan uitbreiding Corda Campus Hasselt
25 februari 2022
Video: eerste element fietsenstalling IJboulevard ingevaren
3 december 2021
Team VenhoevenCS maakt masterplan voor stadsnatuur langs rivier Shenzhen
26 oktober 2021
VenhoevenCS maakt plan voor doorontwikkeling Arenapark Hilversum
25 augustus 2021
Zes integrale plannen voor landschap, natuur en energie
5 juli 2021
Team VenhoevenCS en B2Ai ontwerpt Durmebad Lokeren
29 juni 2021
Team met VenhoevenCS en B2Ai wint competitie Piscine de Blocry
31 mei 2021
Polestar toont kansen elektrisch vervoer voor inrichting binnenstad Amsterdam
28 mei 2021
VenhoevenCS ontwerpt 735 studentenwoningen op campus TU/e
6 januari 2021
Gaming als inspiratie voor hoofdkantoor E-Sportsorganisatie
22 september 2020
Olympisch zwemstadion als investering in de toekomst
17 september 2020
Het Platform: 'microstad' op krappe kavel naast Utrecht Centraal
25 juni 2020
Bouw IJboulevard Amsterdam CS volgend jaar van start
4 juni 2020
VenhoevenCS ontwerpt Olympisch watersportcentrum in Parijs
20 mei 2020
Nieuwe brug verbindt Amstelkwartier met groene bufferzone
16 maart 2020
Zwembad van VenhoevenCS stimuleert gezondheid in brede zin
27 februari 2020
Gemeente Purmerend stemt in met visie voor stationsgebied door VenhoevenCS
12 februari 2020
Ontwikkeling VDMA-terrein Eindhoven: de runner-up
27 november 2019
Bouw hotel en appartementen Stationsplein Arnhem van start
25 oktober 2019
VenhoevenCS geselecteerd voor sportgebouw Erasmus Universiteit
11 oktober 2019
Zwembad van VenhoevenCS in Ronse geopend
4 oktober 2019
Groen licht voor ontwikkeling landgoed Wickevoort
12 februari 2019
VenhoevenCS ontwerpt sluitstuk stationsgebied Arnhem
23 november 2018
Sportcentrum Europapark open voor publiek
14 november 2018
VenhoevenCS inspireert Krakau met multifunctioneel spoorviaduct
23 oktober 2018
VenhoevenCS ontwerpt woonblokken tegenover Amstelstation
1 augustus 2018
Vernieuwd Beursplein en fietsenstalling officieel geopend
19 juli 2018
Video: Ton Venhoeven over mobiliteit
15 september 2017
Yisheng ontwikkelt entreegebied Leiden Bio Science Campus
19 juli 2018
Zwembad geeft impuls aan groene bufferzone
16 mei 2017
Woningen en sporthal op Watertorenterrein Egmond
8 februari 2017
VenhoevenCS werkt aan toegankelijkheid stations
7 april 2016
Haskoning en VenhoevenCS aan de slag met vernieuwing station Amsterdam Lelylaan
16 februari
Merwede – overzicht stadsblokken eerste fase
17 december 2025
Timpaan en VenhoevenCS winnen tender woonzorgproject in Vlaardingen
21 oktober 2025
Amsterdam bouwt nieuwe Jaap Eden IJshal
15 juli 2025
Nederlandse bureaus gelauwerd bij Prix Versailles
12 december 2024
Faculteit ITC van Universiteit Twente uitgeroepen tot BNA Beste Gebouw van het Jaar 2024
23 mei 2024
Nominaties Publiek gebouw van het Jaar 2023 bekend
9 oktober 2023
Alle werkzaamheden aan IJboulevard Amsterdam afgerond
18 april 2023
Fietsenstalling IJboulevard achter station Amsterdam CS in gebruik genomen
22 februari 2023
Winnaars Nationale Staalprijs 2022 bekend
6 oktober 2022
Architectuurprijs Zoetermeer 2020 voor station Lansingerland
14 september 2020
VenhoevenCS ontwerpt sportcentrum Europapark
8 februari 2016
Verslag van Het Grote Leisure Congres
23 juni 2015
Het Grote Leisure Congres met tour en lezing Energiehuis
15 juni 2015
Ton Venhoeven geeft keynote op Het Grote Leisure Congres
10 juni 2015
Co-founder Zoku geeft keynote op Het Grote Leisure Congres
3 juni 2015
Architectenweb houdt Het Grote Leisure Congres
28 mei 2015
College Middelburg wil renovatie schouwburg
4 september 2013
Schuine gevel beperkt geluidsoverlast
17 april 2013
Team OKRA ontwerpt waterpark in Cork
26 juni 2012
Nederlandse experts ontwerpen visie Delhi
15 november 2011
Bouw brede school Hoogvliet van start
30 juni 2011
Zes visies geselecteerd voor knopen Drechtsteden
27 oktober 2010
Venhoeven presenteert ontwerp De Warande
1 oktober 2009
Nederlandse architecten naar Shanghai
22 september 2009
Ontwerpen Kenniscluster Arnhem openbaar
17 juni 2009
VenhoevenCS heeft 'eigen' MFA Het Zand in Utrecht verbouwd
12 december 2023
Olympisch zwemstadion Parijs door VenhoevenCS en Ateliers 2/3/4/ geopend
8 april 2024
Winnend ontwerp van VenhoevenCS en Wind Design + Build voor zwembad in Apeldoorn Noord
6 mei 2024
Noodroep KNVB aan politiek om sportaccommodaties te redden
30 juni 2025
VenhoevenCS verrijkt campus TU/e met woongebouwen in moderne traditie
11 april 2025
Rotterdam kiest plan Amvest, Kavel Vastgoed en VenhoevenCS voor Schuttersveld
21 augustus 2024
VenhoevenCS tilt zwembadcomplex op om lokale bodem te ontzien
4 februari 2025
VenhoevenCS ontwerpt zwembad met houten draagconstructie dat zich letterlijk opent naar park
23 april 2025
Sporthal Bredius in Muiden gerealiseerd met circulaire visie
20 juli 2023
VenhoevenCS verwelkomt drie nieuwe partners en richt zich op collectief leiderschap van het bureau
4 februari
Team met VenhoevenCS en DS Landschapsarchitecten wint tender kavel 4a Sluisbuurt
18 juli 2022
Natuurinclusieve brug vormt entree voor Amstelkwartier
1 juni 2022
VenhoevenCS presenteert masterplan uitbreiding Corda Campus Hasselt
25 februari 2022
Video: eerste element fietsenstalling IJboulevard ingevaren
3 december 2021
Team VenhoevenCS maakt masterplan voor stadsnatuur langs rivier Shenzhen
26 oktober 2021
VenhoevenCS maakt plan voor doorontwikkeling Arenapark Hilversum
25 augustus 2021
Zes integrale plannen voor landschap, natuur en energie
5 juli 2021
Team VenhoevenCS en B2Ai ontwerpt Durmebad Lokeren
29 juni 2021
Team met VenhoevenCS en B2Ai wint competitie Piscine de Blocry
31 mei 2021
Polestar toont kansen elektrisch vervoer voor inrichting binnenstad Amsterdam
28 mei 2021
VenhoevenCS ontwerpt 735 studentenwoningen op campus TU/e
6 januari 2021
Gaming als inspiratie voor hoofdkantoor E-Sportsorganisatie
22 september 2020
Olympisch zwemstadion als investering in de toekomst
17 september 2020
Het Platform: 'microstad' op krappe kavel naast Utrecht Centraal
25 juni 2020
Bouw IJboulevard Amsterdam CS volgend jaar van start
4 juni 2020
VenhoevenCS ontwerpt Olympisch watersportcentrum in Parijs
20 mei 2020
Nieuwe brug verbindt Amstelkwartier met groene bufferzone
16 maart 2020
Zwembad van VenhoevenCS stimuleert gezondheid in brede zin
27 februari 2020
Gemeente Purmerend stemt in met visie voor stationsgebied door VenhoevenCS
12 februari 2020
Ontwikkeling VDMA-terrein Eindhoven: de runner-up
27 november 2019
Bouw hotel en appartementen Stationsplein Arnhem van start
25 oktober 2019
VenhoevenCS geselecteerd voor sportgebouw Erasmus Universiteit
11 oktober 2019
Zwembad van VenhoevenCS in Ronse geopend
4 oktober 2019
Groen licht voor ontwikkeling landgoed Wickevoort
12 februari 2019
VenhoevenCS ontwerpt sluitstuk stationsgebied Arnhem
23 november 2018
Sportcentrum Europapark open voor publiek
14 november 2018
VenhoevenCS inspireert Krakau met multifunctioneel spoorviaduct
23 oktober 2018
VenhoevenCS ontwerpt woonblokken tegenover Amstelstation
1 augustus 2018
Vernieuwd Beursplein en fietsenstalling officieel geopend
19 juli 2018
Video: Ton Venhoeven over mobiliteit
15 september 2017
Yisheng ontwikkelt entreegebied Leiden Bio Science Campus
19 juli 2018
Zwembad geeft impuls aan groene bufferzone
16 mei 2017
Woningen en sporthal op Watertorenterrein Egmond
8 februari 2017
VenhoevenCS werkt aan toegankelijkheid stations
7 april 2016
Haskoning en VenhoevenCS aan de slag met vernieuwing station Amsterdam Lelylaan
16 februari
Merwede – overzicht stadsblokken eerste fase
17 december 2025
Timpaan en VenhoevenCS winnen tender woonzorgproject in Vlaardingen
21 oktober 2025
Amsterdam bouwt nieuwe Jaap Eden IJshal
15 juli 2025
Nederlandse bureaus gelauwerd bij Prix Versailles
12 december 2024
Faculteit ITC van Universiteit Twente uitgeroepen tot BNA Beste Gebouw van het Jaar 2024
23 mei 2024
Nominaties Publiek gebouw van het Jaar 2023 bekend
9 oktober 2023
Alle werkzaamheden aan IJboulevard Amsterdam afgerond
18 april 2023
Fietsenstalling IJboulevard achter station Amsterdam CS in gebruik genomen
22 februari 2023
Winnaars Nationale Staalprijs 2022 bekend
6 oktober 2022
Architectuurprijs Zoetermeer 2020 voor station Lansingerland
14 september 2020
VenhoevenCS ontwerpt sportcentrum Europapark
8 februari 2016
Verslag van Het Grote Leisure Congres
23 juni 2015
Het Grote Leisure Congres met tour en lezing Energiehuis
15 juni 2015
Ton Venhoeven geeft keynote op Het Grote Leisure Congres
10 juni 2015
Co-founder Zoku geeft keynote op Het Grote Leisure Congres
3 juni 2015
Architectenweb houdt Het Grote Leisure Congres
28 mei 2015
College Middelburg wil renovatie schouwburg
4 september 2013
Schuine gevel beperkt geluidsoverlast
17 april 2013
Team OKRA ontwerpt waterpark in Cork
26 juni 2012
Nederlandse experts ontwerpen visie Delhi
15 november 2011
Bouw brede school Hoogvliet van start
30 juni 2011
Zes visies geselecteerd voor knopen Drechtsteden
27 oktober 2010
Venhoeven presenteert ontwerp De Warande
1 oktober 2009
Nederlandse architecten naar Shanghai
22 september 2009
Ontwerpen Kenniscluster Arnhem openbaar
17 juni 2009
Toon alles
Gerelateerde podcasts
Gesprek met Cécilia Gross over het nieuwe Olympisch zwembad in Parijs
16 februari 2024
Andere nieuwsberichten
De Urbanisten schetst perspectief voor vitale en aantrekkelijke Rotterdamse binnenstad
13 maart, 4:41
In opdracht van BIZ RotterdamCentrum maakte De Urbanisten een perspectief voor een vitale en aantrekkelijke binnenstad die samengaat met een meer klimaat- en natuursensitieve inrichting
Studio Vinke en Loos van Vliet ontwerpen blok met woningen in haven Lelystad
13 maart, 3:24
In de haven van Lelystad wordt een blok met 160 woningen naar ontwerp van Studio Vinke in samenwerking met Atelier Loos van Vliet gerealiseerd. Bataviahof wordt het middelste van vijf wooncomplexen, waarvan er inmiddels twee zijn gerealiseerd.
Cepezed geselecteerd voor ontwerp Collectiecentrum Overijssel
13 maart, 2:15
Het Delftse bureau won de Europese aanbesteding die was uitgeschreven voor het gebouw, dat een plek krijgt in het Havenkwartier in Deventer.
Smiljan Radic onderscheiden met Pritzker Prize 2026
13 maart, 12:09
De zestigjarige Chileen wordt door de jury geprezen als een architect die elke opgave met een hoge mate van originaliteit benadert en gebouwen ontwerpt die zowel fragiel ogen als een stille vorm van plezier uitstralen.
NVM: verkoopgolf huurwoningen vergroot ongelijkheid starters
13 maart, 4:03
Waar een recordaantal starters hun eerste woning kon kopen, zagen anderen hun kansen juist afnemen, zegt de makelaarsorganisatie.
IT-systeem Omgevingswet schiet na twee jaar nog steeds tekort
13 maart, 1:20
Het IT-systeem dat overheden nodig hebben om de Omgevingswet uit te voeren, voldoet nog steeds niet aan minimale eisen.
Eindhoven bouwt 5400 studentenwoningen
13 maart, 11:04
De woningen moeten het tekort aan studentenhuisvesting helpen oplossen.
Experts: versnel energietransitie en hou Gronings gas als airbag
12 maart, 1:58
Dat is nodig om minder afhankelijk te worden van andere landen, stellen 22 experts die gespecialiseerd zijn in veiligheid en energie.
Wet die leegstandheffing mogelijk maakt volgende week van kracht
12 maart, 11:35
Gemeenten mogen zelf bepalen of ze de belasting invoeren en hoe hoog die dan wordt.
Raad van State blokkeert plan voor verbouwing ring Utrecht
11 maart, 4:31
Vorig jaar kreeg het kabinet de opdracht om de stikstofuitstoot van het project beter uit te leggen, maar dat is niet gelukt.
Ga naar het nieuws-archief
1
0
0
0
Voor een optimale gebruikservaring plaatst Architectenweb functionele cookies. Wat de verschillende cookies precies doen leggen we uit in een
overzicht
. Cookies van social media kun je optioneel
aanzetten
.
Akkoord
Instellingen
Annuleren
OK
Sluiten
Doorgaan
Inloggen
Maak een gratis persoonlijk account aan
Feedback
Feedback
Wij horen graag jouw feedback. Laat je reactie achter en eventueel jouw e-mail adres.
Reactie
Verstuur