Projecten
Producten
Bedrijven
Vacatures
Agenda
Awards
Podcasts
more_horiz
Videos
Magazine
Thema's
Favorieten
Profiel
Uitloggen
Abonneer je nu op onze nieuwsbrieven!
Abonneren
Nee, bedankt
Ja, denk met me mee rond de
materialisering van mijn project
Copyright: Ossip van Duivenbode
Copyright: Ossip van Duivenbode
Copyright: Ossip van Duivenbode
Copyright: Ossip van Duivenbode
Copyright: Ossip van Duivenbode
Copyright: Ossip van Duivenbode
Copyright: Ossip van Duivenbode
Copyright: Ossip van Duivenbode
Copyright: Ossip van Duivenbode
Copyright: VenhoevenCS
Copyright: VenhoevenCS
Copyright: VenhoevenCS
Zwembad geeft impuls aan groene bufferzone
16 mei 2017, 17:01
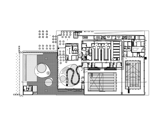
Het begin dit jaar geopende zwembad De Steur in Kampen fungeert als een paviljoen in het ‘groene hart’ van de Overijsselse stad. Met zijn natuurlijke uitstraling en (neven)functie als ontmoetingsplek moet het alzijdig gebouw een impuls geven aan de groene bufferzone tussen het stadscentrum en de buitenwijken.
VenhoevenCS
is verantwoordelijk voor het ontwerp.
Het gebouw legt op verschillende manieren relaties met zijn omgeving. Allereerst dankzij de hoge mate van transparantie, die de zwemactiviteiten zichtbaar maakt voor voorbijgangers en hen idealiter stimuleert ook eens te komen zwemmen. Daarnaast hebben de gebruikers zicht op het omliggende park en op de andere functies in het gebouw.
Ook de horeca speelt een belangrijke rol bij de nagestreefde interactie. Dankzij het restaurant-café met terras trekt het gebouw ook passanten aan en versterkt het zijn functie als ontmoetingsplaats.
Ondanks zijn ligging midden in het groen is De Steur goed zichtbaar vanaf de nabijgelegen Europa-Allee. Het verhoogde perron werkt als een steenachtige sokkel waarop de zwemactiviteiten gepresenteerd worden. Over een groot deel is een houten dak gevouwen, waarlangs licht op meerdere plaatsen binnenstroomt.
Op het niveau van de baden bevindt zich een smalle strook glas , waardoor zwemactiviteiten wel zichtbaar zijn voor wandelende voorbijgangers, maar het verkeer voor zwemmers aan het oog onttrokken wordt. Om te voorkomen dat het glas spiegeling van de zon op het wateroppervlak van de baden veroorzaakt, steekt het dak aan de oost- en westgevel verder uit.
Oorspronkelijke kleur
Door materialen toe te passen in hun oorspronkelijke kleur en textuur, hebben de architecten het gebouw een natuurlijke uitstraling willen geven. “Patio’s en lichtstroken trekken het park als het ware naar binnen, donkere monumentale raamstijlen vallen weg tegen de achtergrond van donkere boomstammen en grote glaspartijen scheppen de illusie dat je buiten zit in het park”, meldt VenhoevenCS.
De materialen zijn eveneens gekozen omwille van de duurzaamheid. Bij het exterieur is bijvoorbeeld gekozen voor drievoudig glas en een zwarte houten gevel. Deze bestaat uit hout dat verduurzaamd is via de Shou Sugi Ban-techniek. Dit is een Japanse techniek waarbij de buitenste laag van het hout verkoold wordt waardoor het vijftig jaar zonder verder onderhoud meegaat. Het vergrijsde deel bestaat uit door impregnatie verduurzaamde Douglas-spar.
Het uitnodigende karakter van het gebouw wordt versterkt als het terras bij de buitenbaden op mooie dagen een geheel wordt met het recreatiebad. Dat gebeurt doordat de gevelpuien opengezet kunnen worden. In de winter staan de poorten van de ligweide open en vormt de buitenruimte van het zwembad een onderdeel van de routing door het park.
Gesloten volumes
De meer intieme ruimtes in het gebouw bevinden zich in gesloten volumes die herkenbaar worden bekleed met tegels, mozaïek in subtiele kleuren en patronen. De houten plafonds in combinatie met de grote hoeveelheid licht door daklichten zorgen voor een natuurlijke atmosfeer.
Tot de andere duurzame toepassingen behoren zonnepanelen op het dak, opvang van regenwater en LED-verlichting.
Trefwoorden
zwembad
venhoevencs
kampen
Best gelezen
1
Finalisten presenteren ontwerp voor Shift Landmark in Rotterdam
woensdag, 4 maart
2
Architect Oliver Thill op 55-jarige leeftijd overleden
donderdag, 5 maart
3
Nieuwe Hittekaart Woningmarkt 2026 van BPD toont aanhoudende woningdruk
dinsdag, 3 maart
4
Strijp-S krijgt woonbuurtje met karakteristieken voormalig Philips-terrein
maandag, 2 maart
5
Haagse gemeenteraad stemt in met bouw van 11.400 woningen in nieuw stadscentrum
maandag, 2 maart
Gerelateerde nieuwsberichten
VenhoevenCS ontwerpt zwembad met houten draagconstructie dat zich letterlijk opent naar park
23 april 2025
Sportcomplex is nieuw hart in Tilburgse wijk
23 december 2013
VenhoevenCS ontwerpt sportcentrum Europapark
8 februari 2016
Verslag van Het Grote Leisure Congres
23 juni 2015
Woningen en sporthal op Watertorenterrein Egmond
8 februari 2017
VenhoevenCS ontwerpt zwembad Kampen
23 september 2013
Modernisering sportcomplex Alkmaar gestart
28 april 2014
Nieuw topsportcomplex voor Amersfoort
12 september 2014
ZJA ontwerpt zwemcomplex met zwevend buitenbad Deurne (B)
28 februari 2018
Flinke opfrisbeurt voor wooncomplex en buitenruimte in Kampen
22 oktober 2021
VenhoevenCS stapelt sportzalen op campus Erasmus Universiteit
17 november 2022
VenhoevenCS ontwerpt zwembad met houten draagconstructie dat zich letterlijk opent naar park
23 april 2025
Sportcomplex is nieuw hart in Tilburgse wijk
23 december 2013
VenhoevenCS ontwerpt sportcentrum Europapark
8 februari 2016
Verslag van Het Grote Leisure Congres
23 juni 2015
Woningen en sporthal op Watertorenterrein Egmond
8 februari 2017
VenhoevenCS ontwerpt zwembad Kampen
23 september 2013
Modernisering sportcomplex Alkmaar gestart
28 april 2014
Nieuw topsportcomplex voor Amersfoort
12 september 2014
ZJA ontwerpt zwemcomplex met zwevend buitenbad Deurne (B)
28 februari 2018
Flinke opfrisbeurt voor wooncomplex en buitenruimte in Kampen
22 oktober 2021
VenhoevenCS stapelt sportzalen op campus Erasmus Universiteit
17 november 2022
Toon alles
Andere nieuwsberichten
André Kempe: ‘Het ging Oliver Thill om het geven van betekenis’
Gisteren, 19:15
Agelopen maandag is architect Oliver Thill overleden. Zijn compagnon André Kempe gedenkt de man met wie hij al meer dan 35 jaar bevriend was en ruim een kwarteeuw geleden Atelier Kempe Thill oprichtte.
TconcepT transformeert voormalig warenhuis in Offenbach tot bibliotheek
Gisteren, 15:54
Het 12.000 vierkante meter omvattende complex gaat in bredere zin fungeren als een cultuur- en educatiecentrum met vele functies. In 2027 moet Station Mitte, zoals het gebouw zijn volgende leven wordt genoemd, klaar zijn.
Werkstatt gaat verder zonder medeoprichter Niels Groeneveld
Gisteren, 14:49
Medeoprichter van Werkstatt Niels Groeneveld stopt als partner bij het bureau, om zich te kunnen richten op zijn gezin en onderwijs. Floor Frings en Raoul Vleugels blijven het Eindhovense bureau leiden.
Binationaal ontwerpteam buigt zich over waterhuishouding Cartagena in Colombia
Gisteren, 13:43
Een Colombiaans-Nederlands ontwerpteam met Felixx Landscape Architects & Planners en Witteveen+Bos moedigt Cartagena aan om haar relatie met water te heroverwegen en na te denken over een veerkrachtige toekomst
Kunstmuseum in Den Haag moet worden verbouwd
Gisteren, 16:32
Daarvoor dient het museum in het Statenkwartier waarschijnlijk een tijd te sluiten.
Coen van Oostrom benoemd tot nieuwe voorzitter VNO-NCW
Gisteren, 12:23
De oprichter van ontwikkelaar Edge volgt in die rol Ingrid Thijssen op, die deze week is begonnen als nieuwe bestuursvoorzitter van de TU Delft.
Rapport: lokaal klimaatbeleid schiet nog tekort
Gisteren, 10:25
De makers van de zogeheten Toekomstmeter hebben het beleid van zeventig gemeenten doorgelicht.
Hardt Hyperloop failliet verklaard door rechtbank
5 maart, 11:37
Het Rotterdamse bedrijf was bezig met de ontwikkeling van technologie om mensen op hoge snelheid via capsules door een vacuümbuis te vervoeren.
Onderzoek: zeespiegel kustgebieden hoger dan in studies aangenomen
5 maart, 9:13
De zeespiegel aan de kust is in grote delen van de wereld waarschijnlijk hoger dan in veel wetenschappelijke studies wordt aangenomen.
Gelderland geeft voorrang aan vergunningen met minder stikstof
4 maart, 12:24
De plannen zijn onderdeel van het pakket maatregelen dat het Gelderse bestuur wil nemen om de vergunningverlening voor zaken als de woningbouw weer op gang te krijgen.
Ga naar het nieuws-archief
Ronnie Weessies
Redacteur
0
0
0
0
Voor een optimale gebruikservaring plaatst Architectenweb functionele cookies. Wat de verschillende cookies precies doen leggen we uit in een
overzicht
. Cookies van social media kun je optioneel
aanzetten
.
Akkoord
Instellingen
Annuleren
OK
Sluiten
Doorgaan
Inloggen
Maak een gratis persoonlijk account aan
Feedback
Feedback
Wij horen graag jouw feedback. Laat je reactie achter en eventueel jouw e-mail adres.
Reactie
Verstuur