Projecten
Producten
Bedrijven
Vacatures
Agenda
Awards
Podcasts
more_horiz
Videos
Magazine
Thema's
Favorieten
Profiel
Uitloggen
Copyright: Luuk Kramer
Copyright: Luuk Kramer
Copyright: Luuk Kramer
Copyright: Luuk Kramer
Copyright: Luuk Kramer
Copyright: Luuk Kramer
Copyright: Luuk Kramer
Copyright: Luuk Kramer
Copyright: Luuk Kramer
Copyright: Luuk Kramer
Copyright: Luuk Kramer
Copyright: Luuk Kramer
Copyright: Luuk Kramer
Axo
Copyright: VenhoevenCS architecture + urbanism
Doorsnede
Copyright: VenhoevenCS architecture + urbanism
Oost- en westgevel
Copyright: VenhoevenCS architecture + urbanism
Noord- en zuidgevel
Copyright: VenhoevenCS architecture + urbanism
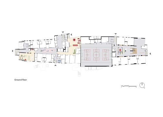
Plattegrond
Copyright: VenhoevenCS architecture + urbanism
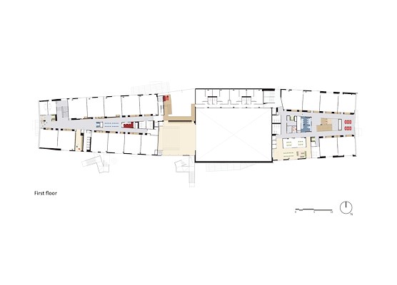
Plattegrond
Copyright: VenhoevenCS architecture + urbanism
Plattegrond
Copyright: VenhoevenCS architecture + urbanism
VenhoevenCS heeft 'eigen' MFA Het Zand in Utrecht verbouwd
12 december 2023, 9:40
In Utrecht Leidsche Rijn heeft
VenhoevenCS architecture + urbanism
MFA Het Zand gerenoveerd en uitgebreid. De uit 2006 stammende multifunctionele accommodatie, die oorspronkelijk ook door dit bureau is ontworpen, is verbouwd om onder meer de groei van de twee scholen en vernieuwing in onderwijsvisie te kunnen faciliteren. Daarnaast is het complex verduurzaamd.
Forum ‘t Zand behoorde bij oplevering tot de eerste multifunctionele accommodaties in Nederland. Het gebouw was ontworpen als een ruimteschip, geland in de oude Romeinse nederzetting Het Zand. Het complex biedt plek aan twee basisscholen, een kinderdagverblijf, een buitenschoolse opvang, een buurtcentrum, een theaterzaal en een gymzaal.
Na vijftien jaar was het gebouw, dat tegenwoordig MFA Het Zand heet, toe aan een vernieuwing en uitbreiding. Behalve dat er meer ruimte nodig was, voldeed het gebouw qua indeling niet meer aan de huidige standaarden qua gebruik en de huidige onderwijspraktijk. Daarnaast moesten het binnenklimaat, de luchtkwaliteit en de akoestiek worden verbeterd.
Centrale ontmoetingsruimte
Nadat het gebouw bijna volledig was gestript, werden de functies gereorganiseerd rond en ontsloten door een centrale ontmoetingsruimte in het hart van het gebouw. Aan weerszijden van deze ruimte strekken de scholen zich over drie verdiepingen uit tot de verlengde koppen van het gebouw. Om de scholen en de collectieve ruimtes ook zelfstandig te kunnen laten functioneren, zijn ze alle voorzien van een eigen entree, die bereikbaar zijn vanaf de heringerichte buitenpleinen.
Omdat onderwijs zich vandaag de dag niet meer beperkt tot klaslokalen, zijn leerpleinen met plekken voor concentratie, niet-klassikale activiteiten en spel gerealiseerd. “Brede gangen, nissen en hoeken nodigen kinderen uit om er op hun eigen wijze gebruik van te maken. Bij groepsoverstijgende lessen en evenementen kunnen de leerpleinen worden vergroot door de nieuwe, flexibele wanden te openen”, meldt VenhoevenCS.
Het interieur heeft een geheel andere uitstraling gekregen, met als uitgangspunt dat het interieur robuust, rustig en op maat gemaakt moest zijn. Van de toegepaste materialen voert bamboe de boventoon. Verder kregen nissen geluiddempende bekleding in contrasterende kleuren, zijn verticale connecties geaccentueerd met lichte tegelpatronen en werden de werkkamers van gelaagde behangpatronen voorzien.
Dakterrassen
Om spelend leren in de buitenlucht mogelijk te maken, hebben de architecten dakterrassen ingericht met doe-, leer- en ontdekplekken. Verder kunnen kinderen aan de slag in eigen moestuinen, is er een kippenhok waar ze leren dieren te verzorgen en dienen de vleermuiskasten in de gevel mede om ze bewust te maken van leven met de natuur.
De pleinen rondom Het Zand zijn door kunstenaar Guido de Boer, in workshops met leerlingen, herontworpen. In lijn met het idee van het gebouw als een ruimteschip zijn in de bestrating voor de entrees enorme woorden gemaakt, die bezoekers begroeten en van bovenaf ook zichtbaar is voor eventueel buitenaards leven. De kunstenaars Marjolijn Mandersloot en Hans van Wezel voegden met dezelfde bedoeling zes bronzen dierfiguren toe.
Trefwoorden
venhoevencs
mfa het zand
leidsche rijn
utrecht
forum 't zand
mfa
school
renovatie
Locatie
Best gelezen
1
Amsterdam schrijft internationale architectenprijsvraag uit voor Nationaal Slavernijmuseum
donderdag, 12 februari
2
Singelbloktoren Amsterdam-Noord biedt ook bewoners tussenwoningen overhoeks zicht
maandag, 16 februari
3
Groninger Museum belicht cultuurgeschiedenis karakteristieke Groningse baksteen
woensdag, 11 februari
4
Bouwstart voor zestig seniorenwoningen in groen landschap Hoorn
vrijdag, 13 februari
5
Meerdaags evenement over bouwen met aarde aangekondigd
donderdag, 12 februari
Gerelateerde nieuwsberichten
Alle werkzaamheden aan IJboulevard Amsterdam afgerond
18 april 2023
VenhoevenCS stapelt sportzalen op campus Erasmus Universiteit
17 november 2022
Energiezuinige wijk Haarzicht in Utrecht opgeleverd
14 december 2023
Archeologische vindplaats inspiratie voor woningbouwplan Leeuwesteyn
19 januari 2024
Olympisch zwemstadion Parijs door VenhoevenCS en Ateliers 2/3/4/ geopend
8 april 2024
Winnend ontwerp van VenhoevenCS en Wind Design + Build voor zwembad in Apeldoorn Noord
6 mei 2024
Team met VenhoevenCS en DS Landschapsarchitecten wint tender kavel 4a Sluisbuurt
18 juli 2022
Maarten van Kesteren smeedt onderwijsgebouwen Nimeto tot een geheel
2 februari 2024
Natuurinclusieve brug vormt entree voor Amstelkwartier
1 juni 2022
VenhoevenCS presenteert masterplan uitbreiding Corda Campus Hasselt
25 februari 2022
Multifunctionele Accommodatie met ruimte voor buitenonderwijs
31 januari 2024
VenhoevenCS tilt zwembadcomplex op om lokale bodem te ontzien
4 februari 2025
VenhoevenCS verrijkt campus TU/e met woongebouwen in moderne traditie
11 april 2025
Team VenhoevenCS maakt masterplan voor stadsnatuur langs rivier Shenzhen
26 oktober 2021
Rotterdam kiest plan Amvest, Kavel Vastgoed en VenhoevenCS voor Schuttersveld
21 augustus 2024
VenhoevenCS ontwerpt zwembad met houten draagconstructie dat zich letterlijk opent naar park
23 april 2025
VenhoevenCS maakt plan voor doorontwikkeling Arenapark Hilversum
25 augustus 2021
Zes integrale plannen voor landschap, natuur en energie
5 juli 2021
Team VenhoevenCS en B2Ai ontwerpt Durmebad Lokeren
29 juni 2021
Team met VenhoevenCS en B2Ai wint competitie Piscine de Blocry
31 mei 2021
Polestar toont kansen elektrisch vervoer voor inrichting binnenstad Amsterdam
28 mei 2021
De Kroon op Leeuwesteyn als sociale en groene leefomgeving
26 maart 2025
VenhoevenCS ontwerpt 735 studentenwoningen op campus TU/e
6 januari 2021
VenhoevenCS verwelkomt drie nieuwe partners en richt zich op collectief leiderschap van het bureau
4 februari
Gaming als inspiratie voor hoofdkantoor E-Sportsorganisatie
22 september 2020
Architectuurprijs Zoetermeer 2020 voor station Lansingerland
14 september 2020
VenhoevenCS ontwerpt Olympisch watersportcentrum in Parijs
20 mei 2020
Alle werkzaamheden aan IJboulevard Amsterdam afgerond
18 april 2023
VenhoevenCS stapelt sportzalen op campus Erasmus Universiteit
17 november 2022
Energiezuinige wijk Haarzicht in Utrecht opgeleverd
14 december 2023
Archeologische vindplaats inspiratie voor woningbouwplan Leeuwesteyn
19 januari 2024
Olympisch zwemstadion Parijs door VenhoevenCS en Ateliers 2/3/4/ geopend
8 april 2024
Winnend ontwerp van VenhoevenCS en Wind Design + Build voor zwembad in Apeldoorn Noord
6 mei 2024
Team met VenhoevenCS en DS Landschapsarchitecten wint tender kavel 4a Sluisbuurt
18 juli 2022
Maarten van Kesteren smeedt onderwijsgebouwen Nimeto tot een geheel
2 februari 2024
Natuurinclusieve brug vormt entree voor Amstelkwartier
1 juni 2022
VenhoevenCS presenteert masterplan uitbreiding Corda Campus Hasselt
25 februari 2022
Multifunctionele Accommodatie met ruimte voor buitenonderwijs
31 januari 2024
VenhoevenCS tilt zwembadcomplex op om lokale bodem te ontzien
4 februari 2025
VenhoevenCS verrijkt campus TU/e met woongebouwen in moderne traditie
11 april 2025
Team VenhoevenCS maakt masterplan voor stadsnatuur langs rivier Shenzhen
26 oktober 2021
Rotterdam kiest plan Amvest, Kavel Vastgoed en VenhoevenCS voor Schuttersveld
21 augustus 2024
VenhoevenCS ontwerpt zwembad met houten draagconstructie dat zich letterlijk opent naar park
23 april 2025
VenhoevenCS maakt plan voor doorontwikkeling Arenapark Hilversum
25 augustus 2021
Zes integrale plannen voor landschap, natuur en energie
5 juli 2021
Team VenhoevenCS en B2Ai ontwerpt Durmebad Lokeren
29 juni 2021
Team met VenhoevenCS en B2Ai wint competitie Piscine de Blocry
31 mei 2021
Polestar toont kansen elektrisch vervoer voor inrichting binnenstad Amsterdam
28 mei 2021
De Kroon op Leeuwesteyn als sociale en groene leefomgeving
26 maart 2025
VenhoevenCS ontwerpt 735 studentenwoningen op campus TU/e
6 januari 2021
VenhoevenCS verwelkomt drie nieuwe partners en richt zich op collectief leiderschap van het bureau
4 februari
Gaming als inspiratie voor hoofdkantoor E-Sportsorganisatie
22 september 2020
Architectuurprijs Zoetermeer 2020 voor station Lansingerland
14 september 2020
VenhoevenCS ontwerpt Olympisch watersportcentrum in Parijs
20 mei 2020
Toon alles
Gerelateerde podcasts
Gesprek met Cécilia Gross over het nieuwe Olympisch zwembad in Parijs
16 februari 2024
Andere nieuwsberichten
AG NOVA ontwerpt woon-zorggebouw voor kwetsbare ouderen op Centrumeiland
30 minuten geleden
Het pand is bestemd voor bewoners die complexe zorg nodig hebben en met ondersteuning in de stad kunnen blijven wonen.
Team van Nederlandse en Oekraïense architecten ontwikkelt open-source bouwsysteem voor publieke voorzieningen in Oekraïne
1 uur geleden
Een team van Orange Architects, NOVA en ReThink heeft samen met een verschillende vastgoed en productontwikkelaars op het gebied van modulair bouwen een schaalbaar, open-source bouwsysteem voor publieke voorzieningen in Oekraïne ontwikkeld.
Expositie toont mogelijkheden voor nieuwe woonruimte in bestaande Rotterdamse wijken
4 uur geleden
Hoe kun je in Rotterdam honderdduizend nieuwe woningen realiseren zonder nieuwe wijken te hoeven aanleggen? In een tentoonstelling bij OMI laten Platform Woonopgave en Recht op de Stad zien op welke manieren dat kan.
Vincent Bijlo en Berlage Saxophone Quartet brengen iconisch ontwerp van Berlage tot leven
Gisteren, 15:50
In de nieuwe voorstelling ‘Het Visioen van Berlage’ van cabaretier en schrijver Vincent Bijlo en het Berlage Saxophone Quartet speelt het iconische ontwerp Pantheon der Menschheid (1915) van architect Berlage een centrale rol.
Zichtbaar verduurzaamde huizen leveren meer op bij verkoop
3 uur geleden
Cijfers wijzen uit dat in het derde kwartaal van vorig jaar bijna 4700 euro per vierkante meter werd betaald voor woningen met een energielabel A of beter.
Noord-Brabant verdeelt vijftig miljoen euro over regio-Moerdijk
Vandaag, 09:09
Het geld dient om de leefbaarheid op peil te houden in het gebied waar de komende jaren diverse energieprojecten worden uitgevoerd.
Nederland en Vlaanderen maken afspraken over stikstofuitstoot
Gisteren, 14:51
Overheden in de grensregio moeten als ze een vergunning geven voor zaken als woningbouw ook kijken naar de mogelijke gevolgen die de uitstoot heeft voor beschermde natuurgebieden aan de andere kant van de grens.
Blaricum lost Laren af als gemeente met duurste woningen
Gisteren, 10:39
Het verschil tussen de duurste en goedkoopste koophuizen is in 2025 groter geworden.
Noord-Hollands dorp Opmeer wil eerste mini-kernreactor huisvesten
16 februari, 1:34
Opmeer heeft in het Nederlandse bedrijf Allseas een mogelijke bouwer van een Small Modular Reactor gevonden.
India wil grote datastad ontwikkelen vanwege opmars AI
16 februari, 9:37
De datastad moet volgens minister Nara Lokesh een straal van 100 kilometer krijgen.
Ga naar het nieuws-archief
Ronnie Weessies
Redacteur
0
0
0
0
Voor een optimale gebruikservaring plaatst Architectenweb functionele cookies. Wat de verschillende cookies precies doen leggen we uit in een
overzicht
. Cookies van social media kun je optioneel
aanzetten
.
Akkoord
Instellingen
Annuleren
OK
Sluiten
Doorgaan
Inloggen
Maak een gratis persoonlijk account aan
Feedback
Feedback
Wij horen graag jouw feedback. Laat je reactie achter en eventueel jouw e-mail adres.
Reactie
Verstuur