Abonneer je nu op onze nieuwsbrieven!
Abonneren
Nee, bedankt
Ja, denk met me mee rond de
materialisering van mijn project
Producten
AP Hogeschool Slachthuissite Antwerpen
Copyright: Renson
AP Hogeschool Slachthuissite Antwerpen
Copyright: Renson
AP Hogeschool Slachthuissite Antwerpen
Copyright: Renson
AP Hogeschool Slachthuissite Antwerpen
Copyright: Renson
AP Hogeschool Slachthuissite Antwerpen
Copyright: Renson
AP Hogeschool Slachthuissite Antwerpen
Copyright: Renson
AP Hogeschool Slachthuissite Antwerpen
Copyright: Renson
ProducttagsAANUIT

Ronde ventilatieroosters geven unieke identiteit

23 oktober 2025
De AP Hogeschool nestelt zich in Antwerpen in de voormalige Slachthuishallen. De grondig gerenoveerde hallen vormen, samen met een nieuwbouwtoren, de uitvalsbasis voor studenten van de STEM-opleidingen. Grote raampartijen en zichtbeton definiëren het ritme van de gevel. Toch springen vooral de ronde vormen in het beton in het oog. Die geven licht, zicht en verse lucht aan de achterliggende ruimtes.

Sinds de sluiting van het Stedelijk Slachthuis in 2006 lagen de terreinen van het slachthuis en de buurt er verlaten bij. De site bleef evenwel een enorm potentieel hebben. Uiteindelijk gaf het stadsbestuur de opdracht aan projectontwikkelaars Triple Living en Immobel om een ambitieus masterplan uit te werken. Dit plan zette de krijtlijnen uit voor een innovatieve buurt op het vlak van architectuur, groenaanleg, openbaar domein, gebouwfunctie, … Zo vormt het de blauwdruk voor 18 hectare nieuwe stad, een complete transformatie van de zones Slachthuissite, Noordschippersdok en Lobroekkade. Het wordt een thuis voor bewoners, maar ook voor lokale handelszaken, horeca, creatieve initiatieven en studenten. De hoogtechnologische campus – maar liefst 22.000 vierkante meter groot – is de perfecte aanvulling op deze gevarieerde site.

De Slachthuishallen ondergingen een volledige transformatie, weliswaar met respect voor het historische gebouw. Het beton werd zorgvuldig gerestaureerd en dat vroeg heel wat engineering. Zo is de betongevel op bepaalde plaatsen bijvoorbeeld amper 9 centimeter dik. Aansluitend op de gerenoveerde hallen verrees een nieuw torengebouw van 8 verdiepingen. Dat bevat vooral leslokalen en een thuis voor het administratieve personeel van de school. “Het was een uitgelezen kans om ons met de nieuwe campus te vestigen in dit fantastische gebouw dat voor veel Antwerpenaren een echte landmark in hun stad is”, klinkt het bij AP Hogeschool.

De uitvoering van het project begon in 2020 met een renovatie van het oorspronkelijke slachthuis. Deze hal dateerde uit de jaren 30. De prefab betonstructuren waren vooruitstrevend voor die tijd. De ‘cassettes’ in het plafond getuigden van een gesofisticeerde aanpak en een doorgedreven engineering. De architecten lieten zich inspireren door de hoge plafonds. Ze voegden een nieuwe betonnen vloerplaat toe, de zogenaamde ‘tafel’, om de bruikbare ruimte te verdubbelen. Die combinatie van de authentieke en de nieuwe betonnen structuur laat het historische gebouw tot zijn volle potentieel komen.

“Om de patine en de ziel van het bestaande gebouw te bewaren en tegelijk een modern en comfortabele gebruik mogelijk te maken, werd in de ontwerpfase over veel aspecten lang en grondig nagedacht”, pikt execution architect Bart Lantmeeters van Jaspers-Eyers in. “We moesten in een bestaande hal een compleet interieur realiseren met binnenruimtes die energetisch voldoen aan de wetgeving en de huidige normen. Ook de akoestiek was een aandachtspunt, door de bestaande verouderde betonstructuur en het open karakter van de binnenruimte. Dat we de gevels aan de binnenkant zouden isoleren, was wel al snel duidelijk. Buitenmuurisolatie zou het authentieke karakter van het slachthuis meteen wegnemen.”

Thuis voor studenten
Triple Living, een van de grootste ontwikkelaars in Antwerpen, won de ontwerpwedstrijd voor de Slachthuissite en nam architectenbureau OFFICE Kersten Geers David Van Severen mee aan boord. Gezien de nieuwe campus voorbehouden is voor de STEM-opleidingen van AP Hogeschool zijn heel wat laboruimtes voorzien. Dat maakt van de technieken een belangrijk onderdeel in het project, met ventilatie en rookafvoer hoog op de agenda. “Voor de laboruimtes op de eerste verdieping konden we vrij eenvoudig toevoer van verse buitenlucht en afvoer van vervuilde binnenlucht voorzien via het dak”, licht Inga Karen, van het Brusselse OFFICE KGDVS, toe. “Op het gelijkvloers was dat moeilijker. Daar moesten we de luchtaanvoer via de gevel voorzien. We gingen op zoek naar een esthetische oplossing die de comforteisen voldoende beantwoordde.”

De ronde openingen zijn een toevoeging aan het gekende gevelbeeld. Verder werden evenwel geen grote ingrepen gedaan in de gebouwschil. “De ronde openingen passen zich in de bestaande gevelritmiek in maar geven het gebouw tegelijk een nieuwe identiteit”, duidt Inga deze keuze. De technieken, zoals de ventilatiekanalen die aangesloten zijn op de ronde openingen, zijn zichtbaar gehouden. Omwille van de veelheid aan technieken ontwikkelde OFFICE KGDVS een passend framework om ze in te verwerken. Door de materiaal- en kleurkeuzes sluiten ze evenwel optimaal aan bij de bestaande betonstructuren, met visuele harmonie als rechtstreeks resultaat. Zo draagt onder meer de gevelritmiek met natuurlijk geanodiseerde aluminium profielen en zwarte deuren – en andere opengaande delen – in het zwart bij aan het harmonieuze totaalbeeld.

Rustend op tussenvloeren in mezzaninestijl blijven de ventilatie-units en buizen subtiel zichtbaar in de ruimte. Deze technische ‘vloeren’ situeren zich boven de labo’s. Het is deels een esthetische en deels een praktische keuze. Door met een mezzanine te werken moesten de architecten en aannemers zo min mogelijk raken aan de bestaande betonstructuur. Verlaagde plafonds waren dus mogelijk noch wenselijk.

Ronde gevelroosters, zonder flens
Voor het updaten en upgraden van de gevel was algemeen aannemer Vanhout aan zet. De grootste uitdaging lag in de geschiedenis van die gevel. “De betongevel was in het verleden meermaals overschilderd”, schetst projectleider Yvan Selleslags. “Om die terug waterdicht te krijgen, werd hij eerst gezandstraald voor een goede aanhechting van de nieuwe beschermlaag. Omwille van betonrot behandelden we de volledige structuur met een speciale coating voor een kathodische bescherming, die meteen ook toekomstige corrosie vermijdt.” Vervolgens werden 448 gaten in de gevel geboord. De complexiteit: zowel de stabiliteit van het gebouw bewaken als voorkomen dat de kathodische bescherming onderbroken werd. Een intensief maar succesvol proces.

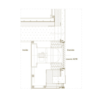
Het architectenteam integreerde drie rijen ronde openingen in de betonnen gedeeltes van de gebouwschil. De bovenste twee rijen zijn uitsluitend ronde vensters, die licht binnentrekken in de lokalen op de eerste verdieping. De onderste rij bedient het gelijkvloers en is een mix van vensters en ventilatieroosters. Inga Karen: “We berekenden de vereiste debieten. Op basis daarvan bepaalden we het nodige aantal ventilatieroosters. Ook de voorwaarden qua rookafvoer speelden hierbij een doorslaggevende rol.” In totaal werden zo 81 ronde 421R ZF-roosters van Renson in de gevel geïntegreerd. Qua kleur zijn de roosters afgestemd op de ronde ramen, die zwart lijken.

Bovendien hebben de roosters in dit project geen flens, zodat ze perfect vlak vallen in de gevel, net zoals de ramen in de andere openingen. “Omdat er nieuwe gaten geboord werden in de bestaande betonconstructie, hadden we geen aanslag om zowel de roosters als de ramen langs buiten te monteren”, verduidelijkt Koen Schoemaekers van Group Ceyssens de keuze voor flensloze roosters. Group Ceyssens, expert in glas- en gevelprojecten, plaatste de typerende ronde roosters. “Net zoals bij de ronde ramen moesten deze roosters aan de buitenkant overal afgekit worden met een siliconevoeg, vlak met de wand, om nadien te overschilderen. Aan de binnenzijde van de roosters maakten we telkens een EPDM manchet voor een volledige afdichting en waterdichtheid.”

Roosters zonder buitenflens zijn ook bij Renson niet standaard. Toch twijfelde Koen geen seconde om de vraag te stellen. “Ik weet dat Renson altijd met veel enthousiasme mee stapt in een project en ver durft gaan om de beste oplossing te vinden”, klinkt het. Voor de plaatsing van de roosters maakte Group Ceyssens beugels op maat, om met rvs schroeven vast te trekken zonder de roosters te beschadiging. De plaatsing verliep vlot.

Het mooie resultaat is een verhaal van vlotte samenwerking, open blikken en heldere communicatie. Gert Van Hoof, projectverantwoordelijke bij Triple Living besluit: “De school stond gedurende het hele bouwproces open voor de gedurfde aanpak van de architecten. Dat leidde tot dit prachtige eindresultaat. We mochten het gebouw zeer tevreden overdragen aan de school op 30 augustus 2024. In het nieuwe academiejaar worden er een 2.000-tal studenten opgeleid.”

Download brochures

Stel jezelf kort voor! Dan weet het betreffende bedrijf wie hun brochure gedownload heeft.
Wil je niet bij elke download jouw gegevens in hoeven voeren?
Klik dan hier om in te loggen. Heb je nog geen account? Maak dan hier een gratis account aan.
Voornaam
Achternaam
E-mailadres
Downloaden
Wanneer je brochures downloadt op Architectenweb.nl worden relevante gegevens van jou – zoals jouw naam en e-mailadres – met het betreffende bedrijf gedeeld. Meer hierover lees je in ons privacybeleid.
Wanneer je brochures downloadt op Architectenweb.nl worden relevante gegevens van jou – zoals jouw naam en e-mailadres – met het betreffende bedrijf gedeeld. Meer hierover lees je in ons privacybeleid.

Locatie

Neem contact op met Renson

Je bent momenteel niet ingelogd. Hierdoor is het alleen mogelijk om meer informatie per e-mail op te vragen. Wil je liever gebeld worden of documentatie per post ontvangen? Klik dan hier om in te loggen.
Heb je nog geen account? Maak dan hier een gratis account aan.
Voornaam
Achternaam
E-mailadres
Opmerkingen
Bij iedere aanvraag worden relevante gegevens van jou gedeeld met het betreffende bedrijf. Meer hierover lees je in ons privacybeleid.
Ja, denk met me mee rond de
materialisering van mijn project

Meer projecten van Renson

Toon alles

Gerelateerde producten

ATAG Nederland
KUBUS | Specialist in Archicad
SAPA
Reynaers Aluminium Nederland
Jansen
SAB-profiel bv
Aliplast Aluminium Systems
Kingspan Light & Air
ALUCOBOND®
Caparol
Tarkett BV
Kawneer
Grohe Nederland B.V.
Malaysian Timber Council
OCS | Office Cabling Systems
Swisspearl Nederland
Forster Nederland N.V.
VELUX Commercial Benelux B.V.
Sempergreen
Houthandel van Dam
Aluprof Nederland BV
QbiQ Wall Systems
Forbo Flooring
Schüco Nederland
Cedral
Sto Isoned bv
Triflex bv
Gorter Luiken BV
wienerberger
DUCO Ventilation & Sun Control
BEWI IsoBouw
ROCKWOOL B.V.
Mview+
Rockfon (ROCKWOOL B.V.)
Gira Nederland B.V.
Kingspan Geïsoleerde Panelen
GEZE Benelux  B.V.
Renson
Metaglas Groep
ABB | Busch-Jaeger
Jung | Hateha B.V.
Knauf B.V.
Saint-Gobain Glass Benelux
Faay Vianen B.V.
objectflor
Boon Edam Nederland B.V.
Hunter Douglas Architectural
VOLA Nederland BV
Forbo Eurocol Nederland B.V.
EQUITONE gevelpanelen
Holonite B.V.
Tata Steel Colorcoat®
Architectenweb
Over ons
Contact

© 2002 - 2026 Architectenweb BV / Voorwaarden / Privacy / Disclaimer / Sitemap
Annuleren
OK
Sluiten
Doorgaan
Inloggen
Maak een gratis persoonlijk account aan